Property
Account |
| Property ID: | 17607 | Abbreviated Legal Description: | BLALOCK ORCHARDS LOT 4 BLOCK 8 LESS N 10' |
| Parcel Number: | 350723520804 | Agent Code: | |
| Type: | Real | | |
| Tax Area: | 311 - 250-4 | Land Use Code | 11 |
| Open Space: | N | DFL | N |
| Historic Property: | N | Remodel Property: | N |
| Multi-Family Redevelopment: | N | | |
| Township: | 7 | Section: | 23 |
| Range: | 35 |
Location |
| Address: | 3013 HERITAGE RD WA 99324 | Mapsco: | |
| Neighborhood: | A SFR Rural/City Infl | Map ID: | |
| Neighborhood CD: | 313012 |
Owner |
| Name: | PHILLIPS RICHARD | Owner ID: | 73444 |
| Mailing Address: | TIFFANY T LIM 3013 HERITAGE RD WALLA WALLA, WA 99362 | % Ownership: | 100.0000000000% |
| | | Exemptions: | |
Taxes and Assessment Details
Property Tax Information as of
02/21/2026
Click on "Statement Details" to expand or collapse a tax statement.
* Please enter a valid date ** Please enter a valid date *
Statement Details |
| | TOTAL: | $0.00 | $0.00 | $0.00 | $0.00 | $0.00 | $0.00 |
|
| | $0.00 | $0.00 | $0.00 | $0.00 | $0.00 | $0.00 |
Values
| (+) Improvement Homesite Value: | + | $97,140 | |
| (+) Improvement Non-Homesite Value: | + | $0 | |
| (+) Land Homesite Value: | + | $135,230 | |
| (+) Land Non-Homesite Value: | + | $0 | |
| (+) Curr Use (HS): | + | $0 | $0 |
| (+) Curr Use (NHS): | + | $0 | $0 |
| | | -------------------------- | |
| (=) Market Value: | = | $232,370 | |
| (–) Productivity Loss: | – | $0 | |
| | | -------------------------- | |
| (=) Subtotal: | = | $232,370 | |
| (+) Senior Appraised Value: | + | $0 | |
| (+) Non-Senior Appraised Value: | + | $232,370 | |
| | | -------------------------- | |
| (=) Total Appraised Value: | = | $232,370 | |
| (–) Senior Exemption Loss: | – | $0 | |
| (–) Exemption Loss: | – | $0 | |
| | | -------------------------- | |
| (=) Taxable Value: | = | $232,370 | |
Taxing Jurisdiction
| Owner: | PHILLIPS RICHARD | | |
| % Ownership: | 100.0000000000% | | |
| Total Value: | $232,370 | | |
| Tax Area: | 311 - 250-4 |
| CERFD | CURRENT EXPENSE REFUND 010 | 0.0000000000 | $232,370 | $232,370 | $0.00 | | |
| CURREXP | CURRENT EXPENSE 010 | 1.0175366760 | $232,370 | $232,370 | $236.44 | | |
| HUMNSERV | HUMAN SERVICES 119 | 0.0250000000 | $232,370 | $232,370 | $5.81 | | |
| SLDREL | SOLDIERS RELIEF 121 | 0.0155990005 | $232,370 | $232,370 | $3.62 | | |
| EMERGSER | EMS 147 | 0.3792580840 | $232,370 | $232,370 | $88.13 | | |
| EMSRFD | EMS REFUND 147 | 0.0000000000 | $232,370 | $232,370 | $0.00 | | |
| FD4EXP | FD #4 EXPENSE 686 | 0.8836993059 | $232,370 | $232,370 | $205.35 | | |
| RLBRFD | RURAL LIBRARY REFUND 623 | 0.0000000000 | $232,370 | $232,370 | $0.00 | | |
| RURALLIB | RURAL LIBRARY 623 | 0.3710609029 | $232,370 | $232,370 | $86.22 | | |
| PORTRFD | PORT REFUND 640 | 0.0000000000 | $232,370 | $232,370 | $0.00 | | |
| PORTWWGEN | PORT OF WW 640 | 0.2460186015 | $232,370 | $232,370 | $57.17 | | |
| SD250BOND | SD #250 BOND 773 | 1.4560608159 | $232,370 | $232,370 | $338.34 | | |
| SD250GEN | SD #250 GENERAL 770 | 2.3880724087 | $232,370 | $232,370 | $554.92 | | |
| ST2 | STATE SCHOOL PART 2 600 | 0.8131451643 | $232,370 | $232,370 | $188.95 | | |
| STATESCHL | STATE SCHOOL 600 | 1.5158548041 | $232,370 | $232,370 | $352.24 | | |
| STREFUND | STATE REFUND LEVY 603 | 0.0000000000 | $232,370 | $232,370 | $0.00 | | |
| COROAD | COUNTY ROAD 115 | 1.6549953990 | $232,370 | $232,370 | $384.57 | | |
| CRPRD | COUNTY ROAD REFUND 115 | 0.0000000000 | $232,370 | $232,370 | $0.00 | | |
| | Total Tax Rate: | 10.7663011628 | | | | | |
| | | | | Taxes w/Current Exemptions: | $2,501.76 | | |
| | | | | Taxes w/o Exemptions: | $2,501.76 | | |
Improvement / Building
| Improvement #1: | RESIDENTIAL | State Code: | 11 | 1513.0 sqft | Value: | $97,140 |
| Exterior Wall: | SIDING | Heating/Cooling: | BASEBOARD ELECTRIC | | Number of Bathrooms: | 1 | Number of Bedrooms: | 3 | | Plumbing: | 6 | Roof Covering: | GALVANIZED METAL |
|
| | Type | Description | Class CD | Sub Class CD | Year Built | Area |
| | MA | Main Area | 1 | 20 | 1938 | 1513.0 |
| | CPC | COVERED CARPORT/PATIO | 1 | 20 | 0 | 273.0 |
| | DTG | Detached Garage | 1 | 20 | 0 | 480.0 |
| | SI1 | SITE IMPROVEMENT | 1 | 20 | 0 | 1.0 |
| | SWP | Solid Wall Porch | 1 | 20 | 1938 | 272.0 |
Sketch
Property Image
Land
| 1 | RES 1 | Converted: Residential | 2.0200 | 0.00 | 0.00 | 0.00 | 1.00 | $135,230 | $0 |
Roll Value History
| 2026 | N/A | N/A | N/A | N/A | N/A |
| 2025 | $155,420 | $135,230 | $0 | $290,650 | $290,650 |
| 2024 | $155,420 | $135,230 | $0 | $290,650 | $290,650 |
| 2023 | $97,140 | $135,230 | $0 | $232,370 | $232,370 |
| 2022 | $48,570 | $135,230 | $0 | $183,800 | $183,800 |
| 2021 | $48,570 | $83,200 | $0 | $131,770 | $131,770 |
| 2020 | $48,570 | $83,200 | $0 | $131,770 | $131,770 |
| 2019 | $48,570 | $83,200 | $0 | $131,770 | $131,770 |
| 2018 | $37,360 | $83,200 | $0 | $120,560 | $120,560 |
| 2017 | $37,360 | $83,200 | $0 | $120,560 | $120,560 |
| 2016 | $37,360 | $83,200 | $0 | $120,560 | $120,560 |
| 2015 | $31,500 | $83,200 | $0 | $114,700 | $114,700 |
| 2014 | $31,500 | $83,200 | $0 | $114,700 | $0 |
| 2013 | $31,500 | $83,200 | $0 | $114,700 | $0 |
| 2012 | $31,500 | $83,200 | $0 | $0 | $0 |
| 2011 | $31,500 | $83,200 | $0 | $0 | $0 |
| 2010 | $44,700 | $83,200 | $0 | $0 | $0 |
| 2009 | $93,000 | $49,100 | $0 | $0 | $0 |
| 2008 | $45,600 | $49,100 | $0 | $0 | $0 |
| 2007 | $45,600 | $49,100 | $0 | $0 | $0 |
Deed and Sales History
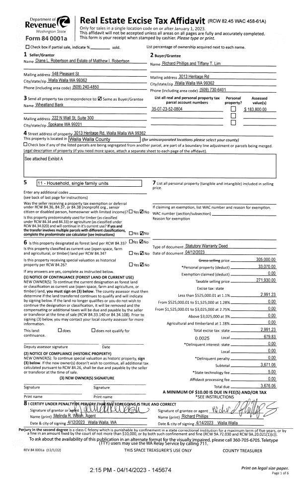
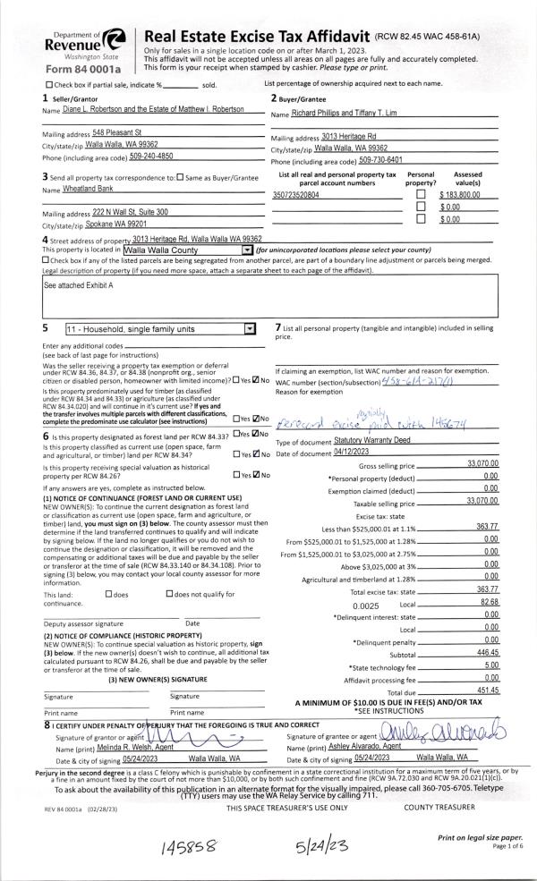
| 1 | 04/12/2023 | SWD | STATUTORY WARRANTY DEED | ROBERTSON DIANE L | PHILLIPS RICHARD | | | $33,070.00 | 145858 | 2023-02798 |
| 2 | 04/14/2023 | SWD | STATUTORY WARRANTY DEED | ROBERTSON DIANE L | PHILLIPS RICHARD | | | $271,930.00 | 145674 | 2023-01987 |
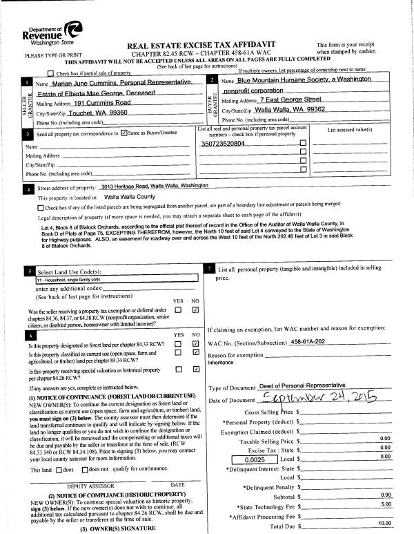
| 3 | 12/09/2015 | SWD | STATUTORY WARRANTY DEED | BLUE MOUNTAIN HUMANE SOCIETY | ROBERTSON DIANE L | | | $120,000.00 | 129312 | 2015-10516 |
| 4 | 09/24/2015 | DPR | DEED OF PERSONAL REPRESENTATIVE | GEORGE ELBERTA MAY | BLUE MOUNTAIN HUMANE SOCIETY | | | $0.00 | 128881 | 2015-08417 |
| 5 | 10/29/1985 | WARRANTY D | WARRANTY DEED | | | | | $10,500.00 | 0 | 2950-423896 |
Payout Agreement
| No payout information available.. |