Property
Account |
| Property ID: | 17567 | Abbreviated Legal Description: | 10-8-32 TAX 1; PLUS PTN; VAC SLATER RD ON W |
| Parcel Number: | 320810230002 | Agent Code: | |
| Type: | Real | | |
| Tax Area: | 321 - 300-5 | Land Use Code | 81 |
| Open Space: | N | DFL | N |
| Historic Property: | N | Remodel Property: | N |
| Multi-Family Redevelopment: | N | | |
| Township: | 8 | Section: | 10 |
| Range: | 32 |
Location |
| Address: | WA 99360 | Mapsco: | |
| Neighborhood: | 0 Farm | Map ID: | |
| Neighborhood CD: | 2220 |
Owner |
| Name: | VILLANUEVA RAFAEL & MIRELLA VILLANUEVA AGUILAR | Owner ID: | 70655 |
| Mailing Address: | 1212 W JAN ST PASCO, WA 99301 | % Ownership: | 100.0000000000% |
| | | Exemptions: | |
Taxes and Assessment Details
Property Tax Information as of
02/21/2026
Click on "Statement Details" to expand or collapse a tax statement.
* Please enter a valid date ** Please enter a valid date *
Statement Details |
| | TOTAL: | $0.00 | $0.00 | $0.00 | $0.00 | $0.00 | $0.00 |
|
| | $0.00 | $0.00 | $0.00 | $0.00 | $0.00 | $0.00 |
Values
| (+) Improvement Homesite Value: | + | $0 | |
| (+) Improvement Non-Homesite Value: | + | $0 | |
| (+) Land Homesite Value: | + | $0 | |
| (+) Land Non-Homesite Value: | + | $4,740 | |
| (+) Curr Use (HS): | + | $0 | $0 |
| (+) Curr Use (NHS): | + | $0 | $0 |
| | | -------------------------- | |
| (=) Market Value: | = | $4,740 | |
| (–) Productivity Loss: | – | $0 | |
| | | -------------------------- | |
| (=) Subtotal: | = | $4,740 | |
| (+) Senior Appraised Value: | + | $0 | |
| (+) Non-Senior Appraised Value: | + | $4,740 | |
| | | -------------------------- | |
| (=) Total Appraised Value: | = | $4,740 | |
| (–) Senior Exemption Loss: | – | $0 | |
| (–) Exemption Loss: | – | $0 | |
| | | -------------------------- | |
| (=) Taxable Value: | = | $4,740 | |
Taxing Jurisdiction
| Owner: | VILLANUEVA RAFAEL & MIRELLA VILLANUEVA AGUILAR | | |
| % Ownership: | 100.0000000000% | | |
| Total Value: | $4,740 | | |
| Tax Area: | 321 - 300-5 |
| CERFD | CURRENT EXPENSE REFUND 010 | 0.0000000000 | $4,740 | $4,740 | $0.00 | | |
| CURREXP | CURRENT EXPENSE 010 | 1.0175366760 | $4,740 | $4,740 | $4.82 | | |
| HUMNSERV | HUMAN SERVICES 119 | 0.0250000000 | $4,740 | $4,740 | $0.12 | | |
| SLDREL | SOLDIERS RELIEF 121 | 0.0155990005 | $4,740 | $4,740 | $0.07 | | |
| EMERGSER | EMS 147 | 0.3792580840 | $4,740 | $4,740 | $1.80 | | |
| EMSRFD | EMS REFUND 147 | 0.0000000000 | $4,740 | $4,740 | $0.00 | | |
| FD5EXP | FD #5 EXPENSE 689 | 1.2045331840 | $4,740 | $4,740 | $5.71 | | |
| RLBRFD | RURAL LIBRARY REFUND 623 | 0.0000000000 | $4,740 | $4,740 | $0.00 | | |
| RURALLIB | RURAL LIBRARY 623 | 0.3710609029 | $4,740 | $4,740 | $1.76 | | |
| PORTRFD | PORT REFUND 640 | 0.0000000000 | $4,740 | $4,740 | $0.00 | | |
| PORTWWGEN | PORT OF WW 640 | 0.2460186015 | $4,740 | $4,740 | $1.17 | | |
| SD300BOND | SD #300 BOND 783 | 1.8964951620 | $4,740 | $4,740 | $8.99 | | |
| SD300GEN | SD #300 GENERAL 780 | 2.1198322866 | $4,740 | $4,740 | $10.05 | | |
| ST2 | STATE SCHOOL PART 2 600 | 0.8131451643 | $4,740 | $4,740 | $3.85 | | |
| STATESCHL | STATE SCHOOL 600 | 1.5158548041 | $4,740 | $4,740 | $7.19 | | |
| STREFUND | STATE REFUND LEVY 603 | 0.0000000000 | $4,740 | $4,740 | $0.00 | | |
| COROAD | COUNTY ROAD 115 | 1.6549953990 | $4,740 | $4,740 | $7.84 | | |
| CRPRD | COUNTY ROAD REFUND 115 | 0.0000000000 | $4,740 | $4,740 | $0.00 | | |
| | Total Tax Rate: | 11.2593292649 | | | | | |
| | | | | Taxes w/Current Exemptions: | $53.37 | | |
| | | | | Taxes w/o Exemptions: | $53.37 | | |
Improvement / Building
Sketch
| No sketches available for this property. |
Property Image
Land
| 1 | DLP | Dry Land Pasture | 12.0100 | 0.00 | 0.00 | 0.00 | 1.00 | $4,740 | $0 |
Roll Value History
| 2026 | N/A | N/A | N/A | N/A | N/A |
| 2025 | $0 | $4,740 | $0 | $4,740 | $4,740 |
| 2024 | $0 | $4,740 | $0 | $4,740 | $4,740 |
| 2023 | $0 | $4,740 | $0 | $4,740 | $4,740 |
| 2022 | $0 | $4,200 | $0 | $4,200 | $4,200 |
| 2021 | $0 | $4,200 | $0 | $4,200 | $4,200 |
| 2020 | $0 | $3,600 | $0 | $3,600 | $3,600 |
| 2019 | $0 | $3,600 | $0 | $3,600 | $3,600 |
| 2018 | $0 | $3,600 | $0 | $3,600 | $3,600 |
| 2017 | $0 | $3,600 | $0 | $3,600 | $3,600 |
| 2016 | $0 | $1,200 | $0 | $1,200 | $1,200 |
| 2015 | $0 | $1,200 | $0 | $1,200 | $1,200 |
| 2014 | $0 | $1,200 | $0 | $1,200 | $1,200 |
| 2013 | $0 | $1,200 | $1,200 | $1,200 | $1,200 |
| 2012 | $0 | $1,200 | $0 | $0 | $0 |
| 2011 | $0 | $1,200 | $0 | $0 | $0 |
| 2010 | $0 | $1,200 | $0 | $0 | $0 |
| 2009 | $0 | $1,200 | $0 | $0 | $0 |
| 2008 | $0 | $1,200 | $0 | $0 | $0 |
| 2007 | $0 | $1,200 | $0 | $0 | $0 |
Deed and Sales History
| 1 | 11/19/2021 | BARGAIN & | BARGAIN & SALE DEED | PD INVESTMENT GROUP LLC | VILLANUEVA RAFAEL & MIRELLA VILLANUEVA AGUILAR | | | $20,500.00 | 142906 | 2021-13772 |
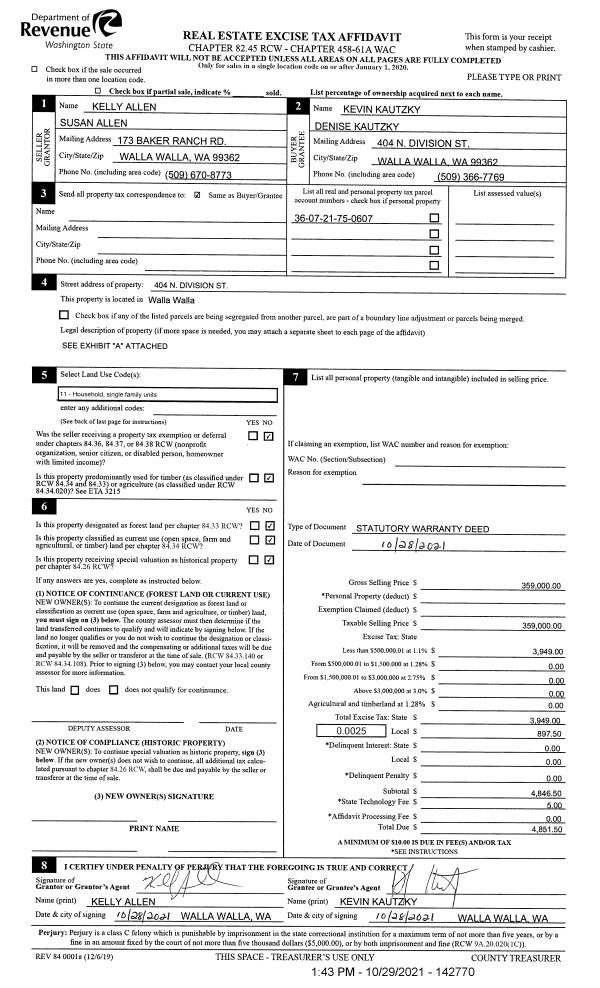
| 2 | 10/29/2021 | SWD | STATUTORY WARRANTY DEED | WINTHROP HALLS LLC | PD INVESTMENT GROUP LLC | | | $7,680.00 | 142769 | 2021-13064 |
| 3 | 07/18/2007 | WARRANTY D | WARRANTY DEED | MONTGOMERY, DALE & ELAINE | WINTHROP HALLS LLC | | | | 113289 | 2007-08295 |
| 4 | 07/18/2007 | WARRANTY D | WARRANTY DEED | MONTGOMERY, PERCY DALE | MONTGOMERY, DALE & ELAINE | | | | 113288 | 2007-08294 |
| 5 | 05/16/1980 | QCD | QUIT CLAIM DEED | | | | | $0.00 | 0 | 1228-004047 |
Payout Agreement
| No payout information available.. |