Property
Account |
| Property ID: | 17554 | Abbreviated Legal Description: | LAURELLA ADDITION LOT 12 |
| Parcel Number: | 350726730012 | Agent Code: | |
| Type: | Real | | |
| Tax Area: | 74 - CP-250-FB | Land Use Code | 11 |
| Open Space: | N | DFL | N |
| Historic Property: | N | Remodel Property: | N |
| Multi-Family Redevelopment: | N | | |
| Township: | 7 | Section: | 26 |
| Range: | 35 |
Location |
| Address: | 247 NW LAURELLA LN WA 99324 | Mapsco: | |
| Neighborhood: | A SFR | Map ID: | |
| Neighborhood CD: | 113011 |
Owner |
| Name: | BENNETT ZACHARY & OLIVIA | Owner ID: | 67731 |
| Mailing Address: | 247 NW LAURELLA LN COLLEGE PLACE, WA 99324 | % Ownership: | 100.0000000000% |
| | | Exemptions: | |
Taxes and Assessment Details
Property Tax Information as of
02/21/2026
Click on "Statement Details" to expand or collapse a tax statement.
* Please enter a valid date ** Please enter a valid date *
Statement Details |
| | TOTAL: | $0.00 | $0.00 | $0.00 | $0.00 | $0.00 | $0.00 |
|
| | $0.00 | $0.00 | $0.00 | $0.00 | $0.00 | $0.00 |
Values
| (+) Improvement Homesite Value: | + | $0 | |
| (+) Improvement Non-Homesite Value: | + | $299,710 | |
| (+) Land Homesite Value: | + | $0 | |
| (+) Land Non-Homesite Value: | + | $70,000 | |
| (+) Curr Use (HS): | + | $0 | $0 |
| (+) Curr Use (NHS): | + | $0 | $0 |
| | | -------------------------- | |
| (=) Market Value: | = | $369,710 | |
| (–) Productivity Loss: | – | $0 | |
| | | -------------------------- | |
| (=) Subtotal: | = | $369,710 | |
| (+) Senior Appraised Value: | + | $0 | |
| (+) Non-Senior Appraised Value: | + | $369,710 | |
| | | -------------------------- | |
| (=) Total Appraised Value: | = | $369,710 | |
| (–) Senior Exemption Loss: | – | $0 | |
| (–) Exemption Loss: | – | $0 | |
| | | -------------------------- | |
| (=) Taxable Value: | = | $369,710 | |
Taxing Jurisdiction
| Owner: | BENNETT ZACHARY & OLIVIA | | |
| % Ownership: | 100.0000000000% | | |
| Total Value: | $369,710 | | |
| Tax Area: | 74 - CP-250-FB |
| CERFD | CURRENT EXPENSE REFUND 010 | 0.0000000000 | $369,710 | $369,710 | $0.00 | | |
| CURREXP | CURRENT EXPENSE 010 | 1.0175366760 | $369,710 | $369,710 | $376.19 | | |
| HUMNSERV | HUMAN SERVICES 119 | 0.0250000000 | $369,710 | $369,710 | $9.24 | | |
| SLDREL | SOLDIERS RELIEF 121 | 0.0155990005 | $369,710 | $369,710 | $5.77 | | |
| COLLPLBOND | C OF CP BOND 644 | 0.4374241808 | $369,710 | $369,710 | $161.72 | | |
| COLLPLGEN | CITY OF CP 632 | 1.4453819216 | $369,710 | $369,710 | $534.37 | | |
| EMERGSER | EMS 147 | 0.3792580840 | $369,710 | $369,710 | $140.22 | | |
| EMSRFD | EMS REFUND 147 | 0.0000000000 | $369,710 | $369,710 | $0.00 | | |
| RURALLIB | RURAL LIBRARY 623 | 0.3710609029 | $369,710 | $369,710 | $137.18 | | |
| PORTRFD | PORT REFUND 640 | 0.0000000000 | $369,710 | $369,710 | $0.00 | | |
| PORTWWGEN | PORT OF WW 640 | 0.2460186015 | $369,710 | $369,710 | $90.96 | | |
| SD250BOND | SD #250 BOND 773 | 1.4560608159 | $369,710 | $369,710 | $538.32 | | |
| SD250GEN | SD #250 GENERAL 770 | 2.3880724087 | $369,710 | $369,710 | $882.89 | | |
| ST2 | STATE SCHOOL PART 2 600 | 0.8131451643 | $369,710 | $369,710 | $300.63 | | |
| STATESCHL | STATE SCHOOL 600 | 1.5158548041 | $369,710 | $369,710 | $560.43 | | |
| STREFUND | STATE REFUND LEVY 603 | 0.0000000000 | $369,710 | $369,710 | $0.00 | | |
| | Total Tax Rate: | 10.1104125603 | | | | | |
| | | | | Taxes w/Current Exemptions: | $3,737.92 | | |
| | | | | Taxes w/o Exemptions: | $3,737.92 | | |
Improvement / Building
| Improvement #1: | RESIDENTIAL | State Code: | 11 | 1492.0 sqft | Value: | $299,710 |
| Exterior Wall: | PLYWOOD | Heating/Cooling: | WARM & COOLED AIR | | Number of Bathrooms: | 2 | Number of Bedrooms: | 4 | | Plumbing: | 9 | Roof Covering: | COMP SHINGLE |
|
| | Type | Description | Class CD | Sub Class CD | Year Built | Area |
| | MA | Main Area | 1 | 30 | 2005 | 1492.0 |
| | SI1 | SITE IMPROVEMENT | 1 | 30 | 2005 | 2.0 |
| | ATG | Attached Garage | 1 | 30 | 2005 | 400.0 |
| | RPO | OPEN PORCH W/ROOF | 1 | 30 | 2005 | 92.0 |
Sketch
Property Image
Land
| 1 | RES 1 | Converted: Residential | 0.1395 | 6077.00 | 0.00 | 0.00 | 1.00 | $70,000 | $0 |
Roll Value History
| 2026 | N/A | N/A | N/A | N/A | N/A |
| 2025 | $254,760 | $100,000 | $0 | $354,760 | $354,760 |
| 2024 | $299,710 | $70,000 | $0 | $369,710 | $369,710 |
| 2023 | $299,710 | $70,000 | $0 | $369,710 | $369,710 |
| 2022 | $299,710 | $70,000 | $0 | $369,710 | $369,710 |
| 2021 | $199,810 | $70,000 | $0 | $269,810 | $269,810 |
| 2020 | $142,720 | $70,000 | $0 | $212,720 | $212,720 |
| 2019 | $157,720 | $55,000 | $0 | $212,720 | $212,720 |
| 2018 | $137,150 | $55,000 | $0 | $192,150 | $192,150 |
| 2017 | $137,150 | $55,000 | $0 | $192,150 | $192,150 |
| 2016 | $130,620 | $55,000 | $0 | $185,620 | $185,620 |
| 2015 | $124,400 | $55,000 | $0 | $179,400 | $179,400 |
| 2014 | $124,400 | $55,000 | $0 | $179,400 | $179,400 |
| 2013 | $124,400 | $55,000 | $0 | $179,400 | $179,400 |
| 2012 | $124,400 | $55,000 | $0 | $0 | $0 |
| 2011 | $124,400 | $55,000 | $0 | $0 | $0 |
| 2010 | $124,400 | $55,000 | $0 | $0 | $0 |
| 2009 | $144,300 | $55,000 | $0 | $0 | $0 |
| 2008 | $136,400 | $45,000 | $0 | $0 | $0 |
| 2007 | $136,400 | $45,000 | $0 | $0 | $0 |
Deed and Sales History
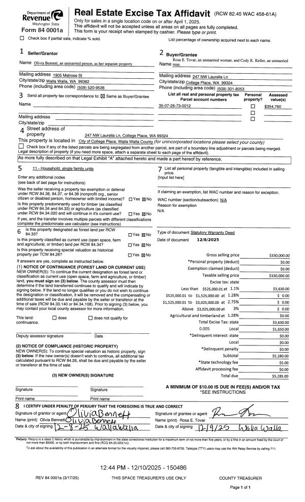
| 1 | 12/10/2025 | SWD | STATUTORY WARRANTY DEED | BENNETT OLIVIA | TOVAR ROSA E & CODY K KELLER | | | $330,000.00 | 150486 | 2025-07583 |
| 2 | 06/22/2023 | COURT CASE | COURT CASE | BENNETT ZACHARY & OLIVIA | BENNETT OLIVIA | | | | 0 | 23-3-00030-36 |
| 3 | 08/07/2020 | SWD | STATUTORY WARRANTY DEED | GOODMAN LUKE F | BENNETT ZACHARY & OLIVIA | | | $275,900.00 | 139671 | 2020-07764 |
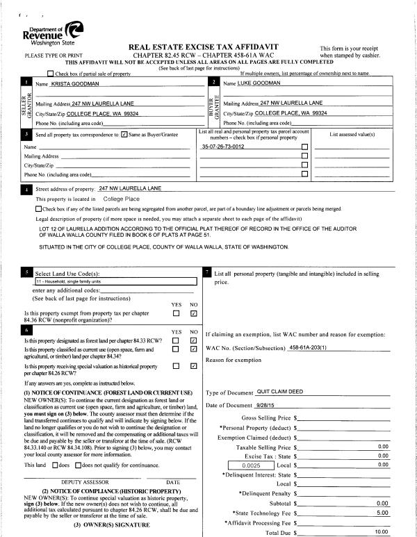
| 4 | 09/30/2015 | QCD | QUIT CLAIM DEED | GOODMAN KRISTA | GOODMAN LUKE F | | | | 128911 | 2015-08589 |
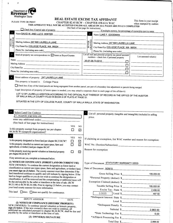
| 5 | 09/30/2015 | SWD | STATUTORY WARRANTY DEED | WINTER DAVID W & LUZ D | GOODMAN LUKE F | | | $195,000.00 | 128910 | 2015-08588 |
| 6 | 07/09/2007 | QCD | QUIT CLAIM DEED | WINTER, DAVID W | WINTER, DAVID W & LUZ D | | | | 113230 | 2007-07846 |
| 7 | 03/15/2005 | WARRANTY D | WARRANTY DEED | HAYDEN ENTERPRISES INC | WINTER, DAVID W | | | $182,690.00 | 106989 | 2005-02911 |
| 8 | 05/27/2004 | WARRANTY D | WARRANTY DEED | "BOTIMER, DOUGLAS A &~GLORIA J | HAYDEN ENTERPRISES INC | | | | 104869 | 2004-05787 |
Payout Agreement
| No payout information available.. |