Property
Account |
| Property ID: | 17545 | Abbreviated Legal Description: | 14-6-35 LOT 3 OF S/P (NLY PTN TAX 15) |
| Parcel Number: | 350614120029 | Agent Code: | |
| Type: | Real | | |
| Tax Area: | 311 - 250-4 | Land Use Code | 11 |
| Open Space: | N | DFL | N |
| Historic Property: | N | Remodel Property: | N |
| Multi-Family Redevelopment: | N | | |
| Township: | 6 | Section: | 14 |
| Range: | 35 |
Location |
| Address: | 147 HORIZON VIEW LN WA 99324 | Mapsco: | |
| Neighborhood: | G SFR Rural | Map ID: | |
| Neighborhood CD: | 214013 |
Owner |
| Name: | MCANDREWS ROBERT & SHANNON | Owner ID: | 62595 |
| Mailing Address: | 147 HORIZON VIEW LN WALLA WALLA, WA 99362 | % Ownership: | 100.0000000000% |
| | | Exemptions: | |
Taxes and Assessment Details
Property Tax Information as of
02/21/2026
Click on "Statement Details" to expand or collapse a tax statement.
* Please enter a valid date ** Please enter a valid date *
Statement Details |
| | TOTAL: | $0.00 | $0.00 | $0.00 | $0.00 | $0.00 | $0.00 |
|
| | $0.00 | $0.00 | $0.00 | $0.00 | $0.00 | $0.00 |
Values
| (+) Improvement Homesite Value: | + | $0 | |
| (+) Improvement Non-Homesite Value: | + | $835,710 | |
| (+) Land Homesite Value: | + | $0 | |
| (+) Land Non-Homesite Value: | + | $129,340 | |
| (+) Curr Use (HS): | + | $0 | $0 |
| (+) Curr Use (NHS): | + | $0 | $0 |
| | | -------------------------- | |
| (=) Market Value: | = | $965,050 | |
| (–) Productivity Loss: | – | $0 | |
| | | -------------------------- | |
| (=) Subtotal: | = | $965,050 | |
| (+) Senior Appraised Value: | + | $0 | |
| (+) Non-Senior Appraised Value: | + | $965,050 | |
| | | -------------------------- | |
| (=) Total Appraised Value: | = | $965,050 | |
| (–) Senior Exemption Loss: | – | $0 | |
| (–) Exemption Loss: | – | $0 | |
| | | -------------------------- | |
| (=) Taxable Value: | = | $965,050 | |
Taxing Jurisdiction
| Owner: | MCANDREWS ROBERT & SHANNON | | |
| % Ownership: | 100.0000000000% | | |
| Total Value: | $965,050 | | |
| Tax Area: | 311 - 250-4 |
| CERFD | CURRENT EXPENSE REFUND 010 | 0.0000000000 | $965,050 | $965,050 | $0.00 | | |
| CURREXP | CURRENT EXPENSE 010 | 1.0175366760 | $965,050 | $965,050 | $981.97 | | |
| HUMNSERV | HUMAN SERVICES 119 | 0.0250000000 | $965,050 | $965,050 | $24.13 | | |
| SLDREL | SOLDIERS RELIEF 121 | 0.0155990005 | $965,050 | $965,050 | $15.05 | | |
| EMERGSER | EMS 147 | 0.3792580840 | $965,050 | $965,050 | $366.00 | | |
| EMSRFD | EMS REFUND 147 | 0.0000000000 | $965,050 | $965,050 | $0.00 | | |
| FD4EXP | FD #4 EXPENSE 686 | 0.8836993059 | $965,050 | $965,050 | $852.81 | | |
| RLBRFD | RURAL LIBRARY REFUND 623 | 0.0000000000 | $965,050 | $965,050 | $0.00 | | |
| RURALLIB | RURAL LIBRARY 623 | 0.3710609029 | $965,050 | $965,050 | $358.09 | | |
| PORTRFD | PORT REFUND 640 | 0.0000000000 | $965,050 | $965,050 | $0.00 | | |
| PORTWWGEN | PORT OF WW 640 | 0.2460186015 | $965,050 | $965,050 | $237.42 | | |
| SD250BOND | SD #250 BOND 773 | 1.4560608159 | $965,050 | $965,050 | $1,405.17 | | |
| SD250GEN | SD #250 GENERAL 770 | 2.3880724087 | $965,050 | $965,050 | $2,304.61 | | |
| ST2 | STATE SCHOOL PART 2 600 | 0.8131451643 | $965,050 | $965,050 | $784.73 | | |
| STATESCHL | STATE SCHOOL 600 | 1.5158548041 | $965,050 | $965,050 | $1,462.88 | | |
| STREFUND | STATE REFUND LEVY 603 | 0.0000000000 | $965,050 | $965,050 | $0.00 | | |
| COROAD | COUNTY ROAD 115 | 1.6549953990 | $965,050 | $965,050 | $1,597.15 | | |
| CRPRD | COUNTY ROAD REFUND 115 | 0.0000000000 | $965,050 | $965,050 | $0.00 | | |
| | Total Tax Rate: | 10.7663011628 | | | | | |
| | | | | Taxes w/Current Exemptions: | $10,390.01 | | |
| | | | | Taxes w/o Exemptions: | $10,390.01 | | |
Improvement / Building
| Improvement #1: | RESIDENTIAL | State Code: | 11 | 2365.0 sqft | Value: | $835,710 |
| Exterior Wall: | PLYWOOD | Heating/Cooling: | WARM & COOLED AIR | | Number of Bathrooms: | 4 | Number of Bedrooms: | 3 | | Plumbing: | 20 | Roof Covering: | COMP SHINGLE |
|
| | Type | Description | Class CD | Sub Class CD | Year Built | Area |
| | MA | Main Area | 1 | 35 | 1995 | 2365.0 |
| | SI1 | SITE IMPROVEMENT | 1 | 35 | 1995 | 3.5 |
| | BASE | BASEMENT | 1 | 35 | 1995 | 1292.0 |
| | BPF | BASEMENT -PARTITIONED FINISH | 1 | 35 | 1995 | 1292.0 |
| | RPC | OPEN PORCH W/ROOF , CEILED | 1 | 35 | 1995 | 346.0 |
| | RPC | OPEN PORCH W/ROOF , CEILED | 1 | 35 | 1995 | 620.0 |
| | ATG | Attached Garage | 1 | 35 | 1995 | 732.0 |
| | STFARM-UTI | STEEL FARM UTILITY BUILDING | 1 | 30 | 1995 | 4000.0 |
| | FBAT | FULL BATH | 1 | 30 | 1995 | 1.0 |
Sketch
Property Image
Land
| 1 | RES 1 | Converted: Residential | 2.8300 | 123274.80 | 0.00 | 0.00 | 1.00 | $129,340 | $0 |
Roll Value History
| 2026 | N/A | N/A | N/A | N/A | N/A |
| 2025 | $869,130 | $129,340 | $0 | $998,470 | $998,470 |
| 2024 | $835,710 | $129,340 | $0 | $965,050 | $965,050 |
| 2023 | $835,710 | $129,340 | $0 | $965,050 | $965,050 |
| 2022 | $726,700 | $129,340 | $0 | $856,040 | $856,040 |
| 2021 | $363,350 | $129,340 | $0 | $492,690 | $492,690 |
| 2020 | $313,320 | $90,000 | $0 | $403,320 | $403,320 |
| 2019 | $313,320 | $90,000 | $0 | $403,320 | $403,320 |
| 2018 | $313,320 | $90,000 | $0 | $403,320 | $403,320 |
| 2017 | $313,320 | $90,000 | $0 | $403,320 | $403,320 |
| 2016 | $298,400 | $90,000 | $0 | $388,400 | $388,400 |
| 2015 | $298,400 | $90,000 | $0 | $388,400 | $388,400 |
| 2014 | $298,400 | $90,000 | $0 | $388,400 | $388,400 |
| 2013 | $298,400 | $90,000 | $0 | $388,400 | $388,400 |
| 2012 | $253,400 | $135,000 | $0 | $0 | $0 |
| 2011 | $253,400 | $135,000 | $0 | $0 | $0 |
| 2010 | $233,400 | $155,000 | $0 | $0 | $0 |
| 2009 | $235,100 | $155,000 | $0 | $0 | $0 |
| 2008 | $301,500 | $70,000 | $0 | $0 | $0 |
| 2007 | $301,500 | $70,000 | $0 | $0 | $0 |
Deed and Sales History
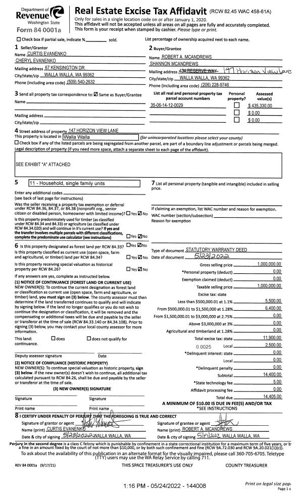
| 1 | 05/24/2022 | SWD | STATUTORY WARRANTY DEED | EVANENKO CURTIS & CHERYL | MCANDREWS ROBERT & SHANNON | | | $1,000,000.00 | 144008 | 2022-04477 |
| 2 | 06/19/2007 | WARRANTY D | WARRANTY DEED | WELLS FARGO BANK | EVANENKO, CURTIS & CHERYL | | | $410,000.00 | 113086 | 2007-07001 |
| 3 | 01/03/2007 | WARRANTY D | WARRANTY DEED | JAMES, TROY M & LISA E | WELLS FARGO BANK | | | $361,633.00 | 112015 | 2007-00108 |
| 4 | 02/15/2005 | WARRANTY D | WARRANTY DEED | HAGEN, LARRY L | JAMES, TROY M & LISA E | | | $379,000.00 | 106775 | 2005-01752 |
| 5 | 01/03/1994 | WARRANTY D | WARRANTY DEED | | | | | $40,000.00 | 80787 | 2149-400067 |
Payout Agreement
| No payout information available.. |