Property
Account |
| Property ID: | 17542 | Abbreviated Legal Description: | RITZ LOT 7 BLK 5 AND TRACT |
| Parcel Number: | 360730540507 | Agent Code: | |
| Type: | Real | | |
| Tax Area: | 1 - OL-140-F | Land Use Code | 11 |
| Open Space: | N | DFL | N |
| Historic Property: | N | Remodel Property: | N |
| Multi-Family Redevelopment: | N | | |
| Township: | 7 | Section: | 30 |
| Range: | 36 |
Location |
| Address: | 930 W CHESTNUT ST WA 99362 | Mapsco: | |
| Neighborhood: | A-SFR | Map ID: | |
| Neighborhood CD: | 313011 |
Owner |
| Name: | HANSON LAURA | Owner ID: | 61285 |
| Mailing Address: | 930 W CHESTNUT ST WALLA WALLA, WA 99362 | % Ownership: | 100.0000000000% |
| | | Exemptions: | |
Taxes and Assessment Details
Values
| (+) Improvement Homesite Value: | + | $153,020 | |
| (+) Improvement Non-Homesite Value: | + | $0 | |
| (+) Land Homesite Value: | + | $62,480 | |
| (+) Land Non-Homesite Value: | + | $0 | |
| (+) Curr Use (HS): | + | $0 | $0 |
| (+) Curr Use (NHS): | + | $0 | $0 |
| | | -------------------------- | |
| (=) Market Value: | = | $215,500 | |
| (–) Productivity Loss: | – | $0 | |
| | | -------------------------- | |
| (=) Subtotal: | = | $215,500 | |
| (+) Senior Appraised Value: | + | $0 | |
| (+) Non-Senior Appraised Value: | + | $215,500 | |
| | | -------------------------- | |
| (=) Total Appraised Value: | = | $215,500 | |
| (–) Senior Exemption Loss: | – | $0 | |
| (–) Exemption Loss: | – | $0 | |
| | | -------------------------- | |
| (=) Taxable Value: | = | $215,500 | |
Taxing Jurisdiction
| Owner: | HANSON LAURA | | |
| % Ownership: | 100.0000000000% | | |
| Total Value: | $215,500 | | |
| Tax Area: | 1 - OL-140-F |
| CERFD | CURRENT EXPENSE REFUND 010 | 0.0000000000 | $215,500 | $215,500 | $0.00 | | |
| CURREXP | CURRENT EXPENSE 010 | 1.0175366760 | $215,500 | $215,500 | $219.28 | | |
| HUMNSERV | HUMAN SERVICES 119 | 0.0250000000 | $215,500 | $215,500 | $5.39 | | |
| SLDREL | SOLDIERS RELIEF 121 | 0.0155990005 | $215,500 | $215,500 | $3.36 | | |
| EMERGSER | EMS 147 | 0.3792580840 | $215,500 | $215,500 | $81.73 | | |
| EMSRFD | EMS REFUND 147 | 0.0000000000 | $215,500 | $215,500 | $0.00 | | |
| PORTRFD | PORT REFUND 640 | 0.0000000000 | $215,500 | $215,500 | $0.00 | | |
| PORTWWGEN | PORT OF WW 640 | 0.2460186015 | $215,500 | $215,500 | $53.02 | | |
| SD140BOND | SD #140 BOND 764 | 0.8342371393 | $215,500 | $215,500 | $179.78 | | |
| SD140GEN | SD #140 GENERAL 760 | 2.0646500647 | $215,500 | $215,500 | $444.93 | | |
| ST2 | STATE SCHOOL PART 2 600 | 0.8131451643 | $215,500 | $215,500 | $175.23 | | |
| STATESCHL | STATE SCHOOL 600 | 1.5158548041 | $215,500 | $215,500 | $326.67 | | |
| STREFUND | STATE REFUND LEVY 603 | 0.0000000000 | $215,500 | $215,500 | $0.00 | | |
| CWWBOND | C OF WW BOND 643 | 0.2760494372 | $215,500 | $215,500 | $59.49 | | |
| CWWGEN | CITY OF WW 631 | 1.6100204973 | $215,500 | $215,500 | $346.96 | | |
| CWWRFD | CITY OF WALLA WALLA REFUND 631 | 0.0000000000 | $215,500 | $215,500 | $0.00 | | |
| | Total Tax Rate: | 8.7973694689 | | | | | |
| | | | | Taxes w/Current Exemptions: | $1,895.84 | | |
| | | | | Taxes w/o Exemptions: | $1,895.84 | | |
Improvement / Building
| Improvement #1: | RESIDENTIAL | State Code: | 11 | 768.0 sqft | Value: | $153,020 |
| Exterior Wall: | VINYL | Heating/Cooling: | WARM & COOLED AIR | | Number of Bathrooms: | 1 | Number of Bedrooms: | 2 | | Plumbing: | 7 | Roof Covering: | COMP SHINGLE |
|
| | Type | Description | Class CD | Sub Class CD | Year Built | Area |
| | MA | Main Area | 1 | 25 | 1906 | 768.0 |
| | CPC | COVERED CARPORT/PATIO | 1 | 25 | 0 | 360.0 |
| | HBAT | HALF BATH | 1 | 25 | 0 | 1.0 |
| | SI1 | SITE IMPROVEMENT | 1 | 25 | 0 | 1.0 |
| | BASE | BASEMENT | 1 | 25 | 1906 | 576.0 |
| | BPF | BASEMENT -PARTITIONED FINISH | 1 | 25 | 1906 | 384.0 |
| | DTG | Detached Garage | 1 | 25 | 1906 | 672.0 |
| | RPC | OPEN PORCH W/ROOF , CEILED | 1 | 25 | 1906 | 120.0 |
Sketch
Property Image
Land
| 1 | RES 1 | Converted: Residential | 0.1791 | 7800.00 | 0.00 | 0.00 | 1.00 | $62,480 | $0 |
Roll Value History
| 2026 | N/A | N/A | N/A | N/A | N/A |
| 2025 | $191,280 | $62,480 | $0 | $253,760 | $253,760 |
| 2024 | $153,020 | $62,480 | $0 | $215,500 | $215,500 |
| 2023 | $153,020 | $62,480 | $0 | $215,500 | $215,500 |
| 2022 | $109,300 | $62,480 | $0 | $171,780 | $171,780 |
| 2021 | $127,180 | $25,700 | $0 | $152,880 | $152,880 |
| 2020 | $115,620 | $25,700 | $0 | $141,320 | $141,320 |
| 2019 | $115,620 | $25,700 | $0 | $141,320 | $141,320 |
| 2018 | $105,110 | $25,700 | $0 | $130,810 | $130,810 |
| 2017 | $100,100 | $25,700 | $0 | $125,800 | $125,800 |
| 2016 | $91,000 | $25,700 | $0 | $116,700 | $116,700 |
| 2015 | $91,000 | $25,700 | $0 | $116,700 | $116,700 |
| 2014 | $91,000 | $25,700 | $0 | $116,700 | $116,700 |
| 2013 | $91,000 | $25,700 | $0 | $116,700 | $116,700 |
| 2012 | $104,000 | $25,700 | $0 | $0 | $0 |
| 2011 | $104,000 | $25,700 | $0 | $0 | $0 |
| 2010 | $106,100 | $25,700 | $0 | $0 | $0 |
| 2009 | $125,800 | $12,900 | $0 | $0 | $0 |
| 2008 | $44,900 | $12,900 | $0 | $0 | $0 |
| 2007 | $44,900 | $12,900 | $0 | $0 | $0 |
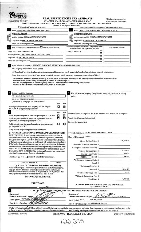
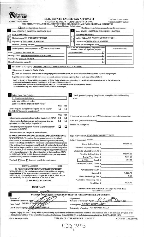
Deed and Sales History
| 1 | 12/10/2019 | QCD | QUIT CLAIM DEED | LINDSTROM DAVID I & LAURA | HANSON LAURA | | | $0.00 | 138227 | 2019-10216 |
| 2 | 07/28/2017 | COURT CASE | COURT CASE | LINDSTROM DAVID I | HANSON LAURA | | | | 0 | CC 17-3-00095-1 |
| 3 | 07/26/2012 | WARRANTY D | WARRANTY DEED | SANDOVAL-MARTINEZ, JESSICA C | LINDSTROM, DAVID I & LAURA | | | $119,000.00 | 122395 | 2012-06368 |
| 4 | 06/18/2007 | WARRANTY D | WARRANTY DEED | HALLA, JOSEPH F | SANDOVAL-MARTINEZ, JESSICA C | | | $144,900.00 | 113079 | 2007-06971 |
| 5 | 06/18/2007 | QCD | QUIT CLAIM DEED | MARTINEZ, PABLO | SANDOVAL-MARTINEZ, JESSICA C | | | | 113080 | 2007-06972 |
Payout Agreement
| No payout information available.. |