Property
Account |
| Property ID: | 17541 | Abbreviated Legal Description: | COUNTRY GLEN ESTATES LOT 5 BLK 1 |
| Parcel Number: | 360731770106 | Agent Code: | |
| Type: | Real | | |
| Tax Area: | 5 - OL-140 | Land Use Code | 11 |
| Open Space: | N | DFL | N |
| Historic Property: | N | Remodel Property: | N |
| Multi-Family Redevelopment: | N | | |
| Township: | 7 | Section: | 31 |
| Range: | 36 |
Location |
| Address: | 1030 WILLIAMS PL WA 99362 | Mapsco: | |
| Neighborhood: | VG SFR | Map ID: | |
| Neighborhood CD: | 115011 |
Owner |
| Name: | REED THOMAS H | Owner ID: | 69366 |
| Mailing Address: | 1030 WILLIAMS PL WALLA WALLA, WA 99362 | % Ownership: | 100.0000000000% |
| | | Exemptions: | |
Taxes and Assessment Details
Property Tax Information as of
02/21/2026
Click on "Statement Details" to expand or collapse a tax statement.
* Please enter a valid date ** Please enter a valid date *
Statement Details |
| | TOTAL: | $0.00 | $0.00 | $0.00 | $0.00 | $0.00 | $0.00 |
|
| | $0.00 | $0.00 | $0.00 | $0.00 | $0.00 | $0.00 |
Values
| (+) Improvement Homesite Value: | + | $0 | |
| (+) Improvement Non-Homesite Value: | + | $594,810 | |
| (+) Land Homesite Value: | + | $0 | |
| (+) Land Non-Homesite Value: | + | $100,000 | |
| (+) Curr Use (HS): | + | $0 | $0 |
| (+) Curr Use (NHS): | + | $0 | $0 |
| | | -------------------------- | |
| (=) Market Value: | = | $694,810 | |
| (–) Productivity Loss: | – | $0 | |
| | | -------------------------- | |
| (=) Subtotal: | = | $694,810 | |
| (+) Senior Appraised Value: | + | $0 | |
| (+) Non-Senior Appraised Value: | + | $694,810 | |
| | | -------------------------- | |
| (=) Total Appraised Value: | = | $694,810 | |
| (–) Senior Exemption Loss: | – | $0 | |
| (–) Exemption Loss: | – | $0 | |
| | | -------------------------- | |
| (=) Taxable Value: | = | $694,810 | |
Taxing Jurisdiction
| Owner: | REED THOMAS H | | |
| % Ownership: | 100.0000000000% | | |
| Total Value: | $694,810 | | |
| Tax Area: | 5 - OL-140 |
| CERFD | CURRENT EXPENSE REFUND 010 | 0.0000000000 | $694,810 | $694,810 | $0.00 | | |
| CURREXP | CURRENT EXPENSE 010 | 1.0175366760 | $694,810 | $694,810 | $706.99 | | |
| HUMNSERV | HUMAN SERVICES 119 | 0.0250000000 | $694,810 | $694,810 | $17.37 | | |
| SLDREL | SOLDIERS RELIEF 121 | 0.0155990005 | $694,810 | $694,810 | $10.84 | | |
| EMERGSER | EMS 147 | 0.3792580840 | $694,810 | $694,810 | $263.51 | | |
| EMSRFD | EMS REFUND 147 | 0.0000000000 | $694,810 | $694,810 | $0.00 | | |
| PORTRFD | PORT REFUND 640 | 0.0000000000 | $694,810 | $694,810 | $0.00 | | |
| PORTWWGEN | PORT OF WW 640 | 0.2460186015 | $694,810 | $694,810 | $170.94 | | |
| SD140BOND | SD #140 BOND 764 | 0.8342371393 | $694,810 | $694,810 | $579.64 | | |
| SD140GEN | SD #140 GENERAL 760 | 2.0646500647 | $694,810 | $694,810 | $1,434.54 | | |
| ST2 | STATE SCHOOL PART 2 600 | 0.8131451643 | $694,810 | $694,810 | $564.98 | | |
| STATESCHL | STATE SCHOOL 600 | 1.5158548041 | $694,810 | $694,810 | $1,053.23 | | |
| STREFUND | STATE REFUND LEVY 603 | 0.0000000000 | $694,810 | $694,810 | $0.00 | | |
| CWWBOND | C OF WW BOND 643 | 0.2760494372 | $694,810 | $694,810 | $191.80 | | |
| CWWGEN | CITY OF WW 631 | 1.6100204973 | $694,810 | $694,810 | $1,118.66 | | |
| CWWRFD | CITY OF WALLA WALLA REFUND 631 | 0.0000000000 | $694,810 | $694,810 | $0.00 | | |
| | Total Tax Rate: | 8.7973694689 | | | | | |
| | | | | Taxes w/Current Exemptions: | $6,112.50 | | |
| | | | | Taxes w/o Exemptions: | $6,112.50 | | |
Improvement / Building
| Improvement #1: | RESIDENTIAL | State Code: | 11 | 2478.0 sqft | Value: | $594,810 |
| Exterior Wall: | COMMON BRICK | Heating/Cooling: | WARM & COOLED AIR | | Number of Bathrooms: | 2.5 | Number of Bedrooms: | 3 | | Plumbing: | 12 | Roof Covering: | WOOD SHAKE |
|
| | Type | Description | Class CD | Sub Class CD | Year Built | Area |
| | MA | Main Area | 1 | 50 | 1997 | 2478.0 |
| | ATG | Attached Garage | 1 | 50 | 1997 | 552.0 |
| | RPC | OPEN PORCH W/ROOF , CEILED | 1 | 50 | 1997 | 308.0 |
| | SI1 | SITE IMPROVEMENT | 1 | 50 | 1997 | 4.5 |
| | OPS | OPEN PORCH W/STEPS | 1 | 50 | 1997 | 32.0 |
| | GFP | GAS FIREPLACE | 1 | 50 | 1997 | 1.0 |
Sketch
Property Image
Land
| 1 | RES 1 | Converted: Residential | 0.2958 | 12886.00 | 0.00 | 0.00 | 1.00 | $100,000 | $0 |
Roll Value History
| 2026 | N/A | N/A | N/A | N/A | N/A |
| 2025 | $535,330 | $150,000 | $0 | $685,330 | $685,330 |
| 2024 | $594,810 | $100,000 | $0 | $694,810 | $694,810 |
| 2023 | $594,810 | $100,000 | $0 | $694,810 | $694,810 |
| 2022 | $540,740 | $100,000 | $0 | $640,740 | $640,740 |
| 2021 | $470,210 | $100,000 | $0 | $570,210 | $570,210 |
| 2020 | $293,880 | $100,000 | $0 | $393,880 | $393,880 |
| 2019 | $303,880 | $90,000 | $0 | $393,880 | $393,880 |
| 2018 | $289,410 | $90,000 | $0 | $379,410 | $379,410 |
| 2017 | $275,630 | $90,000 | $0 | $365,630 | $365,630 |
| 2016 | $262,500 | $90,000 | $0 | $352,500 | $352,500 |
| 2015 | $262,500 | $90,000 | $0 | $352,500 | $352,500 |
| 2014 | $262,500 | $90,000 | $0 | $352,500 | $352,500 |
| 2013 | $262,500 | $90,000 | $0 | $352,500 | $352,500 |
| 2012 | $301,700 | $90,000 | $0 | $0 | $0 |
| 2011 | $301,700 | $90,000 | $0 | $0 | $0 |
| 2010 | $301,700 | $90,000 | $0 | $0 | $0 |
| 2009 | $322,300 | $90,000 | $0 | $0 | $0 |
| 2008 | $259,000 | $45,000 | $0 | $0 | $0 |
| 2007 | $259,000 | $45,000 | $0 | $0 | $0 |
Deed and Sales History
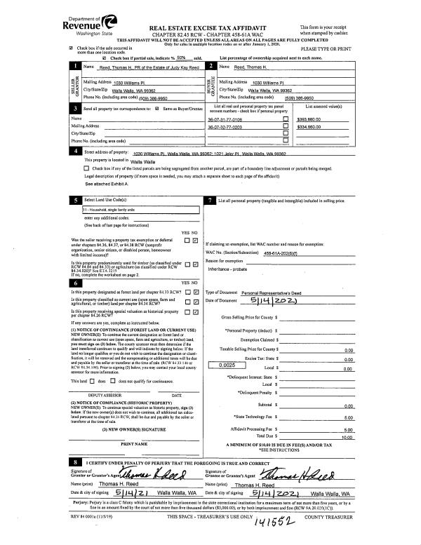
| 1 | 05/14/2021 | DPR | DEED OF PERSONAL REPRESENTATIVE | REED THOMAS H & JUDY K | REED THOMAS H | | 2 PARCELS | $0.00 | 141552 | 2021-05805 |
| 2 | 12/22/2011 | WARRANTY D | WARRANTY DEED | SMITH, ELIZABETH MARTIN TRUSTE | REED, THOMAS H & JUDY K | | | $365,000.00 | 121154 | 2011-10073 |
| 3 | 06/18/2007 | WARRANTY D | WARRANTY DEED | MARTIN, SHARON L ESTATE OF | SMITH, ELIZABETH MARTIN TRUSTE | | | | 113075 | 2007-06953 |
| 4 | 05/03/1996 | WARRANTY D | WARRANTY DEED | | | | | $46,000.00 | 86055 | 2409-604427 |
Payout Agreement
| No payout information available.. |