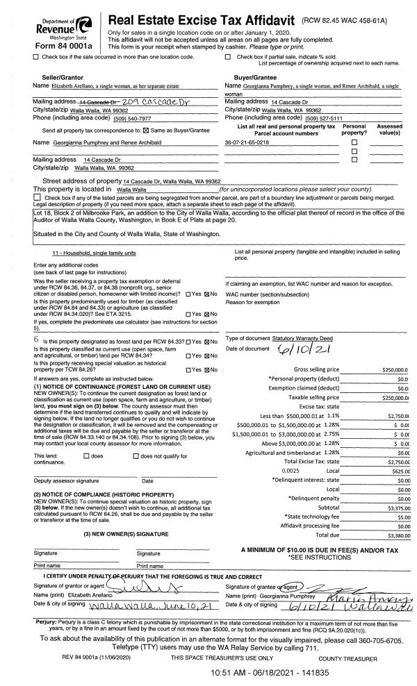
Property
Account |
| Property ID: | 17534 | Abbreviated Legal Description: | MILBROOKE PARK LOT 18 BLK 2 |
| Parcel Number: | 360721650218 | Agent Code: | |
| Type: | Real | | |
| Tax Area: | 1 - OL-140-F | Land Use Code | 11 |
| Open Space: | N | DFL | N |
| Historic Property: | N | Remodel Property: | N |
| Multi-Family Redevelopment: | N | | |
| Township: | 7 | Section: | 21 |
| Range: | 36 |
Location |
| Address: | 14 CASCADE DR WA 99362 | Mapsco: | |
| Neighborhood: | A-Superior SFR | Map ID: | |
| Neighborhood CD: | 513211 |
Owner |
| Name: | PUMPHREY GEORGIANNA | Owner ID: | 69634 |
| Mailing Address: | RENEE ARCHIBALD 14 CASCADE DR WALLA WALLA, WA 99362 | % Ownership: | 100.0000000000% |
| | | Exemptions: | |
Taxes and Assessment Details
Values
| (+) Improvement Homesite Value: | + | $0 | |
| (+) Improvement Non-Homesite Value: | + | $205,400 | |
| (+) Land Homesite Value: | + | $0 | |
| (+) Land Non-Homesite Value: | + | $38,590 | |
| (+) Curr Use (HS): | + | $0 | $0 |
| (+) Curr Use (NHS): | + | $0 | $0 |
| | | -------------------------- | |
| (=) Market Value: | = | $243,990 | |
| (–) Productivity Loss: | – | $0 | |
| | | -------------------------- | |
| (=) Subtotal: | = | $243,990 | |
| (+) Senior Appraised Value: | + | $0 | |
| (+) Non-Senior Appraised Value: | + | $243,990 | |
| | | -------------------------- | |
| (=) Total Appraised Value: | = | $243,990 | |
| (–) Senior Exemption Loss: | – | $0 | |
| (–) Exemption Loss: | – | $0 | |
| | | -------------------------- | |
| (=) Taxable Value: | = | $243,990 | |
Taxing Jurisdiction
| Owner: | PUMPHREY GEORGIANNA | | |
| % Ownership: | 100.0000000000% | | |
| Total Value: | $243,990 | | |
| Tax Area: | 1 - OL-140-F |
| CERFD | CURRENT EXPENSE REFUND 010 | 0.0000000000 | $243,990 | $243,990 | $0.00 | | |
| CURREXP | CURRENT EXPENSE 010 | 1.0175366760 | $243,990 | $243,990 | $248.27 | | |
| HUMNSERV | HUMAN SERVICES 119 | 0.0250000000 | $243,990 | $243,990 | $6.10 | | |
| SLDREL | SOLDIERS RELIEF 121 | 0.0155990005 | $243,990 | $243,990 | $3.81 | | |
| EMERGSER | EMS 147 | 0.3792580840 | $243,990 | $243,990 | $92.54 | | |
| EMSRFD | EMS REFUND 147 | 0.0000000000 | $243,990 | $243,990 | $0.00 | | |
| PORTRFD | PORT REFUND 640 | 0.0000000000 | $243,990 | $243,990 | $0.00 | | |
| PORTWWGEN | PORT OF WW 640 | 0.2460186015 | $243,990 | $243,990 | $60.03 | | |
| SD140BOND | SD #140 BOND 764 | 0.8342371393 | $243,990 | $243,990 | $203.55 | | |
| SD140GEN | SD #140 GENERAL 760 | 2.0646500647 | $243,990 | $243,990 | $503.75 | | |
| ST2 | STATE SCHOOL PART 2 600 | 0.8131451643 | $243,990 | $243,990 | $198.40 | | |
| STATESCHL | STATE SCHOOL 600 | 1.5158548041 | $243,990 | $243,990 | $369.85 | | |
| STREFUND | STATE REFUND LEVY 603 | 0.0000000000 | $243,990 | $243,990 | $0.00 | | |
| CWWBOND | C OF WW BOND 643 | 0.2760494372 | $243,990 | $243,990 | $67.35 | | |
| CWWGEN | CITY OF WW 631 | 1.6100204973 | $243,990 | $243,990 | $392.83 | | |
| CWWRFD | CITY OF WALLA WALLA REFUND 631 | 0.0000000000 | $243,990 | $243,990 | $0.00 | | |
| | Total Tax Rate: | 8.7973694689 | | | | | |
| | | | | Taxes w/Current Exemptions: | $2,146.48 | | |
| | | | | Taxes w/o Exemptions: | $2,146.48 | | |
Improvement / Building
| Improvement #1: | RESIDENTIAL | State Code: | 11 | 816.0 sqft | Value: | $205,400 |
| Exterior Wall: | VINYL | Heating/Cooling: | BASEBOARD ELECTRIC | | Number of Bathrooms: | 1 | Number of Bedrooms: | 2 | | Plumbing: | 6 | Roof Covering: | COMP SHINGLE |
|
| | Type | Description | Class CD | Sub Class CD | Year Built | Area |
| | MA | Main Area | 1 | 30 | 1949 | 816.0 |
| | SI1 | SITE IMPROVEMENT | 1 | 30 | 1949 | 1.0 |
| | ATG | Attached Garage | 1 | 30 | 1949 | 252.0 |
| | RPS | PORCH W/STEPS,ROOF | 1 | 30 | 1949 | 30.0 |
| | CPC | COVERED CARPORT/PATIO | 1 | 30 | 1949 | 200.0 |
| | GFP | GAS FIREPLACE | 1 | 30 | 1949 | 1.0 |
Sketch
Property Image
Land
| 1 | RES 1 | Converted: Residential | 0.1418 | 6175.00 | 0.00 | 0.00 | 1.00 | $38,590 | $0 |
Roll Value History
| 2026 | N/A | N/A | N/A | N/A | N/A |
| 2025 | $209,340 | $61,750 | $0 | $271,090 | $271,090 |
| 2024 | $174,450 | $61,750 | $0 | $236,200 | $236,200 |
| 2023 | $205,400 | $38,590 | $0 | $243,990 | $243,990 |
| 2022 | $205,400 | $38,590 | $0 | $243,990 | $243,990 |
| 2021 | $117,370 | $38,590 | $0 | $155,960 | $155,960 |
| 2020 | $86,940 | $38,590 | $0 | $125,530 | $125,530 |
| 2019 | $86,940 | $38,590 | $0 | $125,530 | $125,530 |
| 2018 | $82,800 | $38,590 | $0 | $121,390 | $121,390 |
| 2017 | $86,900 | $24,700 | $0 | $111,600 | $111,600 |
| 2016 | $86,900 | $24,700 | $0 | $111,600 | $111,600 |
| 2015 | $86,900 | $24,700 | $0 | $111,600 | $111,600 |
| 2014 | $86,900 | $24,700 | $0 | $111,600 | $111,600 |
| 2013 | $86,900 | $24,700 | $0 | $111,600 | $111,600 |
| 2012 | $90,100 | $24,700 | $0 | $0 | $0 |
| 2011 | $90,100 | $24,700 | $0 | $0 | $0 |
| 2010 | $90,100 | $24,700 | $0 | $0 | $0 |
| 2009 | $102,800 | $24,700 | $0 | $0 | $0 |
| 2008 | $66,400 | $24,700 | $0 | $0 | $0 |
| 2007 | $66,400 | $24,700 | $0 | $0 | $0 |
Deed and Sales History
| 1 | 06/18/2021 | SWD | STATUTORY WARRANTY DEED | ARELLANO ELIZABETH | PUMPHREY GEORGIANNA | | | $250,000.00 | 141835 | 2021-07439 |
| 2 | 11/21/2013 | WARRANTY D | WARRANTY DEED | MORAMARCO MICHELLE | ARELLANO ELIZABETH | | | $118,500.00 | 124988 | 2013-11403 |
| 3 | 06/14/2007 | WARRANTY D | WARRANTY DEED | ALLESSIO, JANICE ESTATE OF | ALLESSIO, RODNEY D | | | | 0 | CC #07-4-00014-1 |
| 4 | 06/11/2007 | WARRANTY D | WARRANTY DEED | ALLESSIO, JANICE B ESTATE OF | REMINGTON, MICHELLE | | | $135,900.00 | 113033 | 2007-06661 |
| 5 | 10/18/1984 | QCD | QUIT CLAIM DEED | | | | | $0.00 | 0 | 1468-407166 |
Payout Agreement
| No payout information available.. |