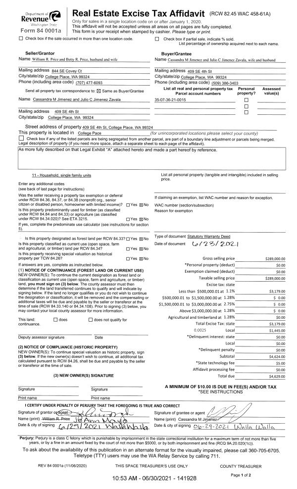
Property
Account |
| Property ID: | 17522 | Abbreviated Legal Description: | MTN VIEW LOTS 18 & 19 BLK 5 |
| Parcel Number: | 360728850518 | Agent Code: | |
| Type: | Real | | |
| Tax Area: | 1 - OL-140-F | Land Use Code | 11 |
| Open Space: | N | DFL | N |
| Historic Property: | N | Remodel Property: | N |
| Multi-Family Redevelopment: | N | | |
| Township: | 7 | Section: | 28 |
| Range: | 36 |
Location |
| Address: | 609 LIBERTY ST WA 99362 | Mapsco: | |
| Neighborhood: | A Res | Map ID: | |
| Neighborhood CD: | 613011 |
Owner |
| Name: | ROMINE BETTY A | Owner ID: | 69713 |
| Mailing Address: | 1884 RUSTIC PL WALLA WALLA, WA 99362 | % Ownership: | 100.0000000000% |
| | | Exemptions: | |
Taxes and Assessment Details
Values
| (+) Improvement Homesite Value: | + | $0 | |
| (+) Improvement Non-Homesite Value: | + | $232,600 | |
| (+) Land Homesite Value: | + | $0 | |
| (+) Land Non-Homesite Value: | + | $91,080 | |
| (+) Curr Use (HS): | + | $0 | $0 |
| (+) Curr Use (NHS): | + | $0 | $0 |
| | | -------------------------- | |
| (=) Market Value: | = | $323,680 | |
| (–) Productivity Loss: | – | $0 | |
| | | -------------------------- | |
| (=) Subtotal: | = | $323,680 | |
| (+) Senior Appraised Value: | + | $0 | |
| (+) Non-Senior Appraised Value: | + | $323,680 | |
| | | -------------------------- | |
| (=) Total Appraised Value: | = | $323,680 | |
| (–) Senior Exemption Loss: | – | $0 | |
| (–) Exemption Loss: | – | $0 | |
| | | -------------------------- | |
| (=) Taxable Value: | = | $323,680 | |
Taxing Jurisdiction
| Owner: | ROMINE BETTY A | | |
| % Ownership: | 100.0000000000% | | |
| Total Value: | $323,680 | | |
| Tax Area: | 1 - OL-140-F |
| CERFD | CURRENT EXPENSE REFUND 010 | 0.0000000000 | $323,680 | $323,680 | $0.00 | | |
| CURREXP | CURRENT EXPENSE 010 | 1.0175366760 | $323,680 | $323,680 | $329.36 | | |
| HUMNSERV | HUMAN SERVICES 119 | 0.0250000000 | $323,680 | $323,680 | $8.09 | | |
| SLDREL | SOLDIERS RELIEF 121 | 0.0155990005 | $323,680 | $323,680 | $5.05 | | |
| EMERGSER | EMS 147 | 0.3792580840 | $323,680 | $323,680 | $122.76 | | |
| EMSRFD | EMS REFUND 147 | 0.0000000000 | $323,680 | $323,680 | $0.00 | | |
| PORTRFD | PORT REFUND 640 | 0.0000000000 | $323,680 | $323,680 | $0.00 | | |
| PORTWWGEN | PORT OF WW 640 | 0.2460186015 | $323,680 | $323,680 | $79.63 | | |
| SD140BOND | SD #140 BOND 764 | 0.8342371393 | $323,680 | $323,680 | $270.03 | | |
| SD140GEN | SD #140 GENERAL 760 | 2.0646500647 | $323,680 | $323,680 | $668.29 | | |
| ST2 | STATE SCHOOL PART 2 600 | 0.8131451643 | $323,680 | $323,680 | $263.20 | | |
| STATESCHL | STATE SCHOOL 600 | 1.5158548041 | $323,680 | $323,680 | $490.65 | | |
| STREFUND | STATE REFUND LEVY 603 | 0.0000000000 | $323,680 | $323,680 | $0.00 | | |
| CWWBOND | C OF WW BOND 643 | 0.2760494372 | $323,680 | $323,680 | $89.35 | | |
| CWWGEN | CITY OF WW 631 | 1.6100204973 | $323,680 | $323,680 | $521.13 | | |
| CWWRFD | CITY OF WALLA WALLA REFUND 631 | 0.0000000000 | $323,680 | $323,680 | $0.00 | | |
| | Total Tax Rate: | 8.7973694689 | | | | | |
| | | | | Taxes w/Current Exemptions: | $2,847.54 | | |
| | | | | Taxes w/o Exemptions: | $2,847.54 | | |
Improvement / Building
| Improvement #1: | RESIDENTIAL | State Code: | 11 | 950.0 sqft | Value: | $232,600 |
| Exterior Wall: | SIDING | Heating/Cooling: | WARM & COOLED AIR | | Number of Bathrooms: | 1 | Number of Bedrooms: | 2 | | Plumbing: | 7 | Roof Covering: | COMP SHINGLE |
|
| | Type | Description | Class CD | Sub Class CD | Year Built | Area |
| | MA | Main Area | 1 | 30 | 1945 | 950.0 |
| | SI1 | SITE IMPROVEMENT | 1 | 30 | 1945 | 2.0 |
| | DTG | Detached Garage | 1 | 30 | 1945 | 504.0 |
| | RPC | OPEN PORCH W/ROOF , CEILED | 1 | 30 | 1945 | 180.0 |
| | RPS | PORCH W/STEPS,ROOF | 1 | 30 | 1945 | 84.0 |
Sketch
Property Image
Land
| 1 | RES 1 | Converted: Residential | 0.2640 | 11500.00 | 0.00 | 0.00 | 1.00 | $91,080 | $0 |
Roll Value History
| 2026 | N/A | N/A | N/A | N/A | N/A |
| 2025 | $228,760 | $111,320 | $0 | $340,080 | $340,080 |
| 2024 | $232,600 | $91,080 | $0 | $323,680 | $323,680 |
| 2023 | $232,600 | $91,080 | $0 | $323,680 | $323,680 |
| 2022 | $232,600 | $73,260 | $0 | $305,860 | $305,860 |
| 2021 | $141,410 | $73,260 | $0 | $214,670 | $214,670 |
| 2020 | $94,270 | $73,260 | $0 | $167,530 | $167,530 |
| 2019 | $94,270 | $73,260 | $0 | $167,530 | $167,530 |
| 2018 | $87,780 | $48,400 | $0 | $136,180 | $136,180 |
| 2017 | $87,780 | $48,400 | $0 | $136,180 | $136,180 |
| 2016 | $87,780 | $48,400 | $0 | $136,180 | $136,180 |
| 2015 | $87,780 | $48,400 | $0 | $136,180 | $136,180 |
| 2014 | $83,600 | $48,400 | $0 | $132,000 | $132,000 |
| 2013 | $83,600 | $48,400 | $0 | $132,000 | $132,000 |
| 2012 | $83,600 | $48,400 | $0 | $0 | $0 |
| 2011 | $83,600 | $48,400 | $0 | $0 | $0 |
| 2010 | $55,500 | $48,400 | $0 | $0 | $0 |
| 2009 | $79,800 | $48,400 | $0 | $0 | $0 |
| 2008 | $79,800 | $48,400 | $0 | $0 | $0 |
| 2007 | $47,800 | $25,900 | $0 | $0 | $0 |
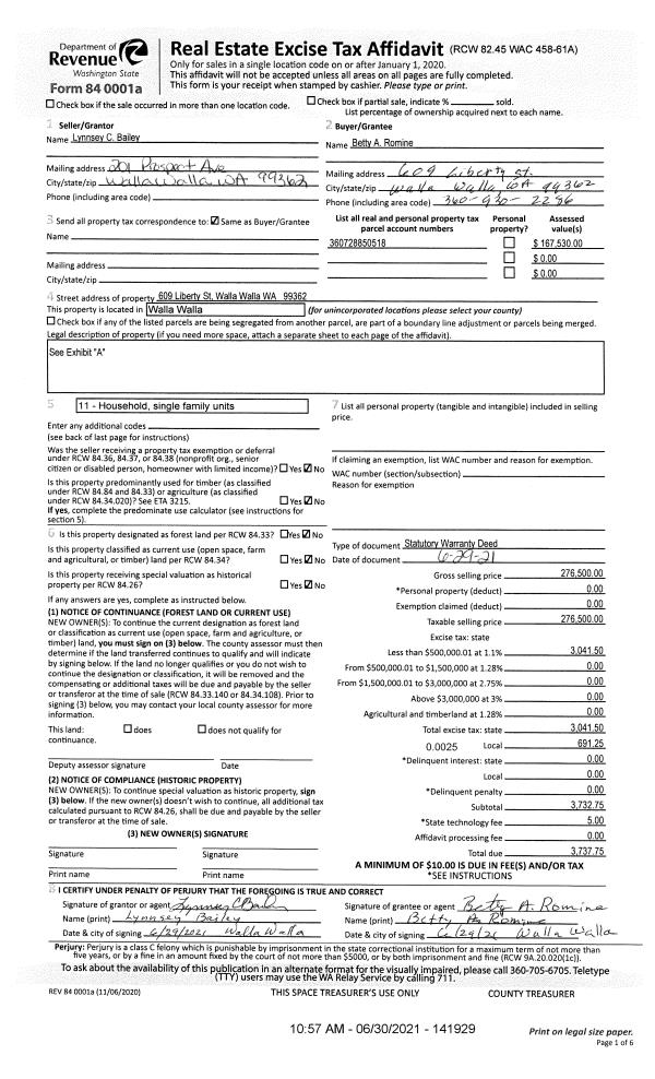
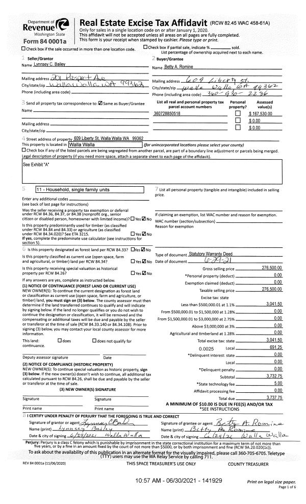
Deed and Sales History
| 1 | 06/30/2021 | SWD | STATUTORY WARRANTY DEED | BAILEY LYNNSEY C | ROMINE BETTY A | | | $276,500.00 | 141929 | 2021-07930 |
| 2 | 12/30/2010 | WARRANTY D | WARRANTY DEED | CONAWAY, NORMAN T II | BAILEY, LYNNSEY C | | | $135,000.00 | 119543 | 2010-10843 |
| 3 | 06/15/2007 | WARRANTY D | WARRANTY DEED | DUNCAN, DONNA | CONAWAY, NORMAN T II | | | $129,500.00 | 113058 | 2007-06829 |
| 4 | 01/01/1956 | QCD | QUIT CLAIM DEED | | | | | $0.00 | 0 | 1869-008984 |
Payout Agreement
| No payout information available.. |