Property
Account |
| Property ID: | 17516 | Abbreviated Legal Description: | PARKSIDE LOTS 1 AND 2 BLK 1 LESS ESTLY 10' |
| Parcel Number: | 360727500128 | Agent Code: | |
| Type: | Real | | |
| Tax Area: | 1 - OL-140-F | Land Use Code | 11 |
| Open Space: | N | DFL | N |
| Historic Property: | N | Remodel Property: | N |
| Multi-Family Redevelopment: | N | | |
| Township: | 7 | Section: | 27 |
| Range: | 36 |
Location |
| Address: | 502 SCHOOL AVE WA 99362 | Mapsco: | |
| Neighborhood: | A Res | Map ID: | |
| Neighborhood CD: | 613011 |
Owner |
| Name: | RICK TYLER | Owner ID: | 61085 |
| Mailing Address: | 502 SCHOOL AVE WALLA WALLA, WA 99362 | % Ownership: | 100.0000000000% |
| | | Exemptions: | |
Taxes and Assessment Details
Values
| (+) Improvement Homesite Value: | + | $0 | |
| (+) Improvement Non-Homesite Value: | + | $256,310 | |
| (+) Land Homesite Value: | + | $0 | |
| (+) Land Non-Homesite Value: | + | $92,140 | |
| (+) Curr Use (HS): | + | $0 | $0 |
| (+) Curr Use (NHS): | + | $0 | $0 |
| | | -------------------------- | |
| (=) Market Value: | = | $348,450 | |
| (–) Productivity Loss: | – | $0 | |
| | | -------------------------- | |
| (=) Subtotal: | = | $348,450 | |
| (+) Senior Appraised Value: | + | $0 | |
| (+) Non-Senior Appraised Value: | + | $348,450 | |
| | | -------------------------- | |
| (=) Total Appraised Value: | = | $348,450 | |
| (–) Senior Exemption Loss: | – | $0 | |
| (–) Exemption Loss: | – | $0 | |
| | | -------------------------- | |
| (=) Taxable Value: | = | $348,450 | |
Taxing Jurisdiction
| Owner: | RICK TYLER | | |
| % Ownership: | 100.0000000000% | | |
| Total Value: | $348,450 | | |
| Tax Area: | 1 - OL-140-F |
| CERFD | CURRENT EXPENSE REFUND 010 | 0.0000000000 | $348,450 | $348,450 | $0.00 | | |
| CURREXP | CURRENT EXPENSE 010 | 1.0175366760 | $348,450 | $348,450 | $354.56 | | |
| HUMNSERV | HUMAN SERVICES 119 | 0.0250000000 | $348,450 | $348,450 | $8.71 | | |
| SLDREL | SOLDIERS RELIEF 121 | 0.0155990005 | $348,450 | $348,450 | $5.44 | | |
| EMERGSER | EMS 147 | 0.3792580840 | $348,450 | $348,450 | $132.15 | | |
| EMSRFD | EMS REFUND 147 | 0.0000000000 | $348,450 | $348,450 | $0.00 | | |
| PORTRFD | PORT REFUND 640 | 0.0000000000 | $348,450 | $348,450 | $0.00 | | |
| PORTWWGEN | PORT OF WW 640 | 0.2460186015 | $348,450 | $348,450 | $85.73 | | |
| SD140BOND | SD #140 BOND 764 | 0.8342371393 | $348,450 | $348,450 | $290.69 | | |
| SD140GEN | SD #140 GENERAL 760 | 2.0646500647 | $348,450 | $348,450 | $719.43 | | |
| ST2 | STATE SCHOOL PART 2 600 | 0.8131451643 | $348,450 | $348,450 | $283.34 | | |
| STATESCHL | STATE SCHOOL 600 | 1.5158548041 | $348,450 | $348,450 | $528.20 | | |
| STREFUND | STATE REFUND LEVY 603 | 0.0000000000 | $348,450 | $348,450 | $0.00 | | |
| CWWBOND | C OF WW BOND 643 | 0.2760494372 | $348,450 | $348,450 | $96.19 | | |
| CWWGEN | CITY OF WW 631 | 1.6100204973 | $348,450 | $348,450 | $561.01 | | |
| CWWRFD | CITY OF WALLA WALLA REFUND 631 | 0.0000000000 | $348,450 | $348,450 | $0.00 | | |
| | Total Tax Rate: | 8.7973694689 | | | | | |
| | | | | Taxes w/Current Exemptions: | $3,065.45 | | |
| | | | | Taxes w/o Exemptions: | $3,065.45 | | |
Improvement / Building
| Improvement #1: | RESIDENTIAL | State Code: | 11 | 1538.0 sqft | Value: | $256,310 |
| Exterior Wall: | HARDBOARD | Heating/Cooling: | WARM & COOLED AIR | | Number of Bathrooms: | 3 | Number of Bedrooms: | 3 | | Plumbing: | 13 | Roof Covering: | COMP SHINGLE |
|
| | Type | Description | Class CD | Sub Class CD | Year Built | Area |
| | MA | Main Area | 1 | 35 | 1951 | 1538.0 |
| | SI1 | SITE IMPROVEMENT | 1 | 35 | 1951 | 2.5 |
| | BASE | BASEMENT | 1 | 35 | 1951 | 1202.0 |
| | BPF | BASEMENT -PARTITIONED FINISH | 1 | 35 | 1951 | 1202.0 |
| | RPS | PORCH W/STEPS,ROOF | 1 | 35 | 1951 | 30.0 |
| | WOD | Wood Deck | 1 | 35 | 1951 | 372.0 |
| | WDR | WOOD DECK W/ROOF | 1 | 35 | 1951 | 112.0 |
| | DTG | Detached Garage | 1 | 35 | 1951 | 702.0 |
Sketch
Property Image
Land
| 1 | RES 1 | Converted: Residential | 0.2979 | 12978.00 | 0.00 | 0.00 | 1.00 | $92,140 | $0 |
Roll Value History
| 2026 | N/A | N/A | N/A | N/A | N/A |
| 2025 | $288,110 | $112,650 | $0 | $400,760 | $400,760 |
| 2024 | $256,310 | $92,140 | $0 | $348,450 | $348,450 |
| 2023 | $256,310 | $92,140 | $0 | $348,450 | $348,450 |
| 2022 | $256,310 | $74,100 | $0 | $330,410 | $330,410 |
| 2021 | $222,880 | $74,100 | $0 | $296,980 | $296,980 |
| 2020 | $202,620 | $74,100 | $0 | $276,720 | $276,720 |
| 2019 | $202,620 | $74,100 | $0 | $276,720 | $276,720 |
| 2018 | $215,420 | $49,700 | $0 | $265,120 | $265,120 |
| 2017 | $187,320 | $49,700 | $0 | $237,020 | $237,020 |
| 2016 | $178,400 | $49,700 | $0 | $228,100 | $228,100 |
| 2015 | $178,400 | $49,700 | $0 | $228,100 | $228,100 |
| 2014 | $178,400 | $49,700 | $0 | $228,100 | $228,100 |
| 2013 | $178,400 | $49,700 | $0 | $228,100 | $228,100 |
| 2012 | $195,600 | $49,700 | $0 | $0 | $0 |
| 2011 | $195,600 | $49,700 | $0 | $0 | $0 |
| 2010 | $163,600 | $49,700 | $0 | $0 | $0 |
| 2009 | $187,300 | $49,700 | $0 | $0 | $0 |
| 2008 | $187,300 | $49,700 | $0 | $0 | $0 |
| 2007 | $126,800 | $27,200 | $0 | $0 | $0 |
Deed and Sales History
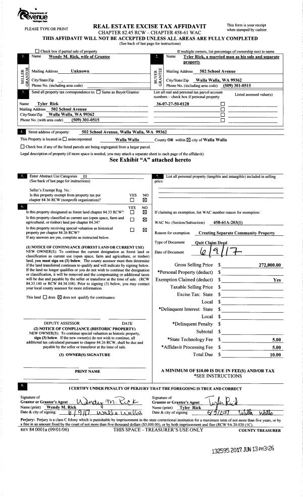
| 1 | 06/13/2017 | QCD | QUIT CLAIM DEED | RICK WENDY M | RICK TYLER | | | | 132595 | 2017-04522 |
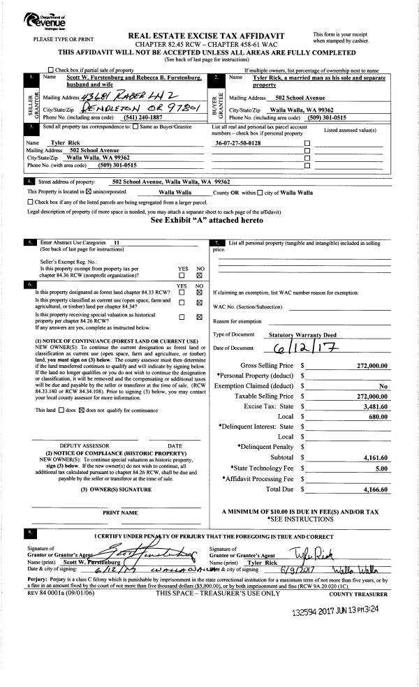
| 2 | 06/13/2017 | SWD | STATUTORY WARRANTY DEED | FURSTENBURG SCOTT W & REBECCA B | RICK TYLER | | | $272,000.00 | 132594 | 2017-04521 |
| 3 | 06/28/2007 | WARRANTY D | WARRANTY DEED | HENRY, THERESA P | FURSTENBURG, SCOTT W & REBECCA | | | $247,500.00 | 113159 | 2007-07469 |
| 4 | 12/04/2003 | WARRANTY D | WARRANTY DEED | NELSON, ROBERT & JULIET D | HENRY, THERESA P | | | $195,000.00 | 103650 | 2003-18443 |
| 5 | 12/11/1996 | WARRANTY D | WARRANTY DEED | | | | | $92,000.00 | 87364 | 2479-612286 |
Payout Agreement
| No payout information available.. |