Property
Account |
| Property ID: | 17445 | Abbreviated Legal Description: | ENNIS ANNEX TAX 10 LOT 2 BLK 7 |
| Parcel Number: | 360721550719 | Agent Code: | |
| Type: | Real | | |
| Tax Area: | 1 - OL-140-F | Land Use Code | 11 |
| Open Space: | N | DFL | N |
| Historic Property: | N | Remodel Property: | N |
| Multi-Family Redevelopment: | N | | |
| Township: | 7 | Section: | 21 |
| Range: | 36 |
Location |
| Address: | 18 N ROOSEVELT ST WA 99362 | Mapsco: | |
| Neighborhood: | A-SFR | Map ID: | |
| Neighborhood CD: | 513011 |
Owner |
| Name: | FLETCHER KOREY D | Owner ID: | 69466 |
| Mailing Address: | 18 N ROOSEVELT ST WALLA WALLA, WA 99362 | % Ownership: | 100.0000000000% |
| | | Exemptions: | |
Taxes and Assessment Details
Property Tax Information as of
04/19/2026
Click on "Statement Details" to expand or collapse a tax statement.
* Please enter a valid date ** Please enter a valid date *
Statement Details |
| | TOTAL: | $0.00 | $0.00 | $0.00 | $0.00 | $0.00 | $0.00 |
|
| | $0.00 | $0.00 | $0.00 | $0.00 | $0.00 | $0.00 |
Values
| (+) Improvement Homesite Value: | + | $0 | |
| (+) Improvement Non-Homesite Value: | + | $268,070 | |
| (+) Land Homesite Value: | + | $0 | |
| (+) Land Non-Homesite Value: | + | $42,000 | |
| (+) Curr Use (HS): | + | $0 | $0 |
| (+) Curr Use (NHS): | + | $0 | $0 |
| | | -------------------------- | |
| (=) Market Value: | = | $310,070 | |
| (–) Productivity Loss: | – | $0 | |
| | | -------------------------- | |
| (=) Subtotal: | = | $310,070 | |
| (+) Senior Appraised Value: | + | $0 | |
| (+) Non-Senior Appraised Value: | + | $310,070 | |
| | | -------------------------- | |
| (=) Total Appraised Value: | = | $310,070 | |
| (–) Senior Exemption Loss: | – | $0 | |
| (–) Exemption Loss: | – | $0 | |
| | | -------------------------- | |
| (=) Taxable Value: | = | $310,070 | |
Taxing Jurisdiction
| Owner: | FLETCHER KOREY D | | |
| % Ownership: | 100.0000000000% | | |
| Total Value: | $310,070 | | |
| Tax Area: | 1 - OL-140-F |
| CERFD | CURRENT EXPENSE REFUND 010 | 0.0000000000 | $310,070 | $310,070 | $0.00 | | |
| CURREXP | CURRENT EXPENSE 010 | 1.0175366760 | $310,070 | $310,070 | $315.51 | | |
| HUMNSERV | HUMAN SERVICES 119 | 0.0250000000 | $310,070 | $310,070 | $7.75 | | |
| SLDREL | SOLDIERS RELIEF 121 | 0.0155990005 | $310,070 | $310,070 | $4.84 | | |
| EMERGSER | EMS 147 | 0.3792580840 | $310,070 | $310,070 | $117.60 | | |
| EMSRFD | EMS REFUND 147 | 0.0000000000 | $310,070 | $310,070 | $0.00 | | |
| PORTRFD | PORT REFUND 640 | 0.0000000000 | $310,070 | $310,070 | $0.00 | | |
| PORTWWGEN | PORT OF WW 640 | 0.2460186015 | $310,070 | $310,070 | $76.28 | | |
| SD140BOND | SD #140 BOND 764 | 0.8342371393 | $310,070 | $310,070 | $258.67 | | |
| SD140GEN | SD #140 GENERAL 760 | 2.0646500647 | $310,070 | $310,070 | $640.19 | | |
| ST2 | STATE SCHOOL PART 2 600 | 0.8131451643 | $310,070 | $310,070 | $252.13 | | |
| STATESCHL | STATE SCHOOL 600 | 1.5158548041 | $310,070 | $310,070 | $470.02 | | |
| STREFUND | STATE REFUND LEVY 603 | 0.0000000000 | $310,070 | $310,070 | $0.00 | | |
| CWWBOND | C OF WW BOND 643 | 0.2760494372 | $310,070 | $310,070 | $85.59 | | |
| CWWGEN | CITY OF WW 631 | 1.6100204973 | $310,070 | $310,070 | $499.22 | | |
| CWWRFD | CITY OF WALLA WALLA REFUND 631 | 0.0000000000 | $310,070 | $310,070 | $0.00 | | |
| | Total Tax Rate: | 8.7973694689 | | | | | |
| | | | | Taxes w/Current Exemptions: | $2,727.80 | | |
| | | | | Taxes w/o Exemptions: | $2,727.80 | | |
Improvement / Building
| Improvement #1: | RESIDENTIAL | State Code: | 11 | 959.0 sqft | Value: | $268,070 |
| Exterior Wall: | SIDING | Heating/Cooling: | WARM & COOLED AIR | | Number of Bathrooms: | 2 | Number of Bedrooms: | 3 | | Plumbing: | 9 | Roof Covering: | COMP SHINGLE |
|
| | Type | Description | Class CD | Sub Class CD | Year Built | Area |
| | MA | Main Area | 1 | 30 | 1959 | 959.0 |
| | SI1 | SITE IMPROVEMENT | 1 | 30 | 0 | 1.5 |
| | BASE | BASEMENT | 1 | 30 | 1959 | 959.0 |
| | OPS | OPEN PORCH W/STEPS | 1 | | 1959 | 55.0 |
| | BRF | BASEMENT - REC FINISH | 1 | 30 | 1959 | 959.0 |
| | DTG | Detached Garage | 1 | 30 | 1959 | 440.0 |
| | WDR | WOOD DECK W/ROOF | 1 | 30 | 1959 | 200.0 |
Sketch
Property Image
Land
| 1 | RES 1 | Converted: Residential | 0.1543 | 6720.00 | 0.00 | 0.00 | 1.00 | $42,000 | $0 |
Roll Value History
| 2026 | N/A | N/A | N/A | N/A | N/A |
| 2025 | $268,930 | $67,200 | $0 | $336,130 | $336,130 |
| 2024 | $244,480 | $67,200 | $0 | $311,680 | $311,680 |
| 2023 | $268,070 | $42,000 | $0 | $310,070 | $310,070 |
| 2022 | $268,070 | $42,000 | $0 | $310,070 | $310,070 |
| 2021 | $233,100 | $42,000 | $0 | $275,100 | $275,100 |
| 2020 | $155,400 | $42,000 | $0 | $197,400 | $197,400 |
| 2019 | $155,400 | $42,000 | $0 | $197,400 | $197,400 |
| 2018 | $148,000 | $42,000 | $0 | $190,000 | $190,000 |
| 2017 | $160,520 | $26,900 | $0 | $187,420 | $187,420 |
| 2016 | $160,520 | $26,900 | $0 | $187,420 | $187,420 |
| 2015 | $152,880 | $26,900 | $0 | $179,780 | $179,780 |
| 2014 | $145,600 | $26,900 | $0 | $172,500 | $172,500 |
| 2013 | $145,600 | $26,900 | $0 | $172,500 | $172,500 |
| 2012 | $145,600 | $26,900 | $0 | $0 | $0 |
| 2011 | $111,100 | $26,900 | $0 | $0 | $0 |
| 2010 | $104,500 | $26,900 | $0 | $0 | $0 |
| 2009 | $119,100 | $26,900 | $0 | $0 | $0 |
| 2008 | $119,100 | $26,900 | $0 | $0 | $0 |
| 2007 | $119,100 | $26,900 | $0 | $0 | $0 |
Deed and Sales History
| 1 | 05/27/2021 | DPR | DEED OF PERSONAL REPRESENTATIVE | ELLIOTT JAN MARIE | FLETCHER KOREY D | | | $0.00 | 141702 | 2021-06706 |
| 2 | 07/31/2019 | SWD | STATUTORY WARRANTY DEED | FLETCHER WILLIAM | ELLIOTT JAN MARIE | | | $210,000.00 | 137403 | 2019-05654 |
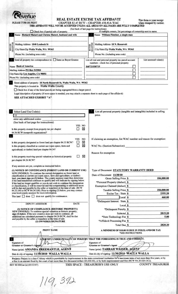
| 3 | 11/30/2010 | WARRANTY D | WARRANTY DEED | MAIURI, RICHARD & CHRISTA | FLETCHER, WILLIAM | | | $184,000.00 | 119392 | 2010-09842 |
| 4 | 05/10/2007 | WARRANTY D | WARRANTY DEED | MEEKS, BENJAMIN & TERESA | MAIURI, RICHARD & CHRISTA | | | $169,500.00 | 112785 | 2007-05263 |
| 5 | 10/03/1990 | WARRANTY D | WARRANTY DEED | | | | | $51,500.00 | 57138 | 1859-006936 |
Payout Agreement
| No payout information available.. |