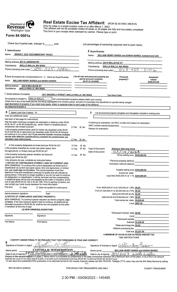
Property
Account |
| Property ID: | 17442 | Abbreviated Legal Description: | 36 07 21 TAX 185 |
| Parcel Number: | 360721240055 | Agent Code: | |
| Type: | Real | | |
| Tax Area: | 1 - OL-140-F | Land Use Code | 12 |
| Open Space: | N | DFL | N |
| Historic Property: | N | Remodel Property: | N |
| Multi-Family Redevelopment: | N | | |
| Township: | 7 | Section: | 21 |
| Range: | 36 |
Location |
| Address: | 1011 WAVERLY ST WA 99362 | Mapsco: | |
| Neighborhood: | A-Duplex | Map ID: | |
| Neighborhood CD: | 513031 |
Owner |
| Name: | BARES WILLIAM HENRY & SARAH | Owner ID: | 73268 |
| Mailing Address: | 224 N BELLEVUE ST WALLA WALLA, WA 99362 | % Ownership: | 100.0000000000% |
| | | Exemptions: | |
Taxes and Assessment Details
Values
| (+) Improvement Homesite Value: | + | $0 | |
| (+) Improvement Non-Homesite Value: | + | $189,000 | |
| (+) Land Homesite Value: | + | $0 | |
| (+) Land Non-Homesite Value: | + | $13,610 | |
| (+) Curr Use (HS): | + | $0 | $0 |
| (+) Curr Use (NHS): | + | $0 | $0 |
| | | -------------------------- | |
| (=) Market Value: | = | $202,610 | |
| (–) Productivity Loss: | – | $0 | |
| | | -------------------------- | |
| (=) Subtotal: | = | $202,610 | |
| (+) Senior Appraised Value: | + | $0 | |
| (+) Non-Senior Appraised Value: | + | $202,610 | |
| | | -------------------------- | |
| (=) Total Appraised Value: | = | $202,610 | |
| (–) Senior Exemption Loss: | – | $0 | |
| (–) Exemption Loss: | – | $0 | |
| | | -------------------------- | |
| (=) Taxable Value: | = | $202,610 | |
Taxing Jurisdiction
| Owner: | BARES WILLIAM HENRY & SARAH | | |
| % Ownership: | 100.0000000000% | | |
| Total Value: | $202,610 | | |
| Tax Area: | 1 - OL-140-F |
| CERFD | CURRENT EXPENSE REFUND 010 | 0.0000000000 | $202,610 | $202,610 | $0.00 | | |
| CURREXP | CURRENT EXPENSE 010 | 1.0175366760 | $202,610 | $202,610 | $206.16 | | |
| HUMNSERV | HUMAN SERVICES 119 | 0.0250000000 | $202,610 | $202,610 | $5.07 | | |
| SLDREL | SOLDIERS RELIEF 121 | 0.0155990005 | $202,610 | $202,610 | $3.16 | | |
| EMERGSER | EMS 147 | 0.3792580840 | $202,610 | $202,610 | $76.84 | | |
| EMSRFD | EMS REFUND 147 | 0.0000000000 | $202,610 | $202,610 | $0.00 | | |
| PORTRFD | PORT REFUND 640 | 0.0000000000 | $202,610 | $202,610 | $0.00 | | |
| PORTWWGEN | PORT OF WW 640 | 0.2460186015 | $202,610 | $202,610 | $49.85 | | |
| SD140BOND | SD #140 BOND 764 | 0.8342371393 | $202,610 | $202,610 | $169.02 | | |
| SD140GEN | SD #140 GENERAL 760 | 2.0646500647 | $202,610 | $202,610 | $418.32 | | |
| ST2 | STATE SCHOOL PART 2 600 | 0.8131451643 | $202,610 | $202,610 | $164.75 | | |
| STATESCHL | STATE SCHOOL 600 | 1.5158548041 | $202,610 | $202,610 | $307.13 | | |
| STREFUND | STATE REFUND LEVY 603 | 0.0000000000 | $202,610 | $202,610 | $0.00 | | |
| CWWBOND | C OF WW BOND 643 | 0.2760494372 | $202,610 | $202,610 | $55.93 | | |
| CWWGEN | CITY OF WW 631 | 1.6100204973 | $202,610 | $202,610 | $326.21 | | |
| CWWRFD | CITY OF WALLA WALLA REFUND 631 | 0.0000000000 | $202,610 | $202,610 | $0.00 | | |
| | Total Tax Rate: | 8.7973694689 | | | | | |
| | | | | Taxes w/Current Exemptions: | $1,782.44 | | |
| | | | | Taxes w/o Exemptions: | $1,782.44 | | |
Improvement / Building
| Improvement #1: | RESIDENTIAL | State Code: | 12 | 708.0 sqft | Value: | $189,000 |
| Exterior Wall: | SIDING | Heating/Cooling: | FORCED AIR | | Number of Bathrooms: | 2 | Number of Bedrooms: | 2 | | Plumbing: | 10 | Roof Covering: | COMP SHINGLE |
|
| | Type | Description | Class CD | Sub Class CD | Year Built | Area |
| | MA | Main Area | 1 | 30 | 1940 | 708.0 |
| | SI1 | SITE IMPROVEMENT | 1 | 30 | 0 | 2.0 |
| | BASE | BASEMENT | 1 | 30 | 1940 | 708.0 |
| | BPF | BASEMENT -PARTITIONED FINISH | 1 | 30 | 1940 | 708.0 |
| | OUT | OUTSIDE BASEMENT ENTRY | 1 | 30 | 1940 | 1.0 |
| | WOD | Wood Deck | 1 | 30 | 2019 | 16.0 |
| | RPC | OPEN PORCH W/ROOF , CEILED | 1 | 30 | 0 | 99.0 |
| | OSP | Open | 1 | 30 | 1940 | 475.0 |
Sketch
Property Image
Land
| 1 | RES 1 | Converted: Residential | 0.0500 | 2178.00 | 0.00 | 0.00 | 1.00 | $13,610 | $0 |
Roll Value History
| 2026 | N/A | N/A | N/A | N/A | N/A |
| 2025 | $255,100 | $21,800 | $0 | $276,900 | $276,900 |
| 2024 | $225,730 | $21,800 | $0 | $247,530 | $247,530 |
| 2023 | $189,000 | $13,610 | $0 | $202,610 | $202,610 |
| 2022 | $189,000 | $13,610 | $0 | $202,610 | $202,610 |
| 2021 | $157,500 | $13,610 | $0 | $171,110 | $171,110 |
| 2020 | $150,000 | $13,610 | $0 | $163,610 | $163,610 |
| 2019 | $150,000 | $13,610 | $0 | $163,610 | $163,610 |
| 2018 | $125,000 | $13,610 | $0 | $138,610 | $138,610 |
| 2017 | $117,700 | $8,700 | $0 | $126,400 | $126,400 |
| 2016 | $107,000 | $8,700 | $0 | $115,700 | $115,700 |
| 2015 | $101,900 | $8,700 | $0 | $110,600 | $110,600 |
| 2014 | $101,900 | $8,700 | $0 | $110,600 | $110,600 |
| 2013 | $101,900 | $8,700 | $0 | $110,600 | $110,600 |
| 2012 | $101,900 | $8,700 | $0 | $0 | $0 |
| 2011 | $101,900 | $8,700 | $0 | $0 | $0 |
| 2010 | $96,600 | $8,700 | $0 | $0 | $0 |
| 2009 | $108,300 | $8,700 | $0 | $0 | $0 |
| 2008 | $81,300 | $8,700 | $0 | $0 | $0 |
| 2007 | $81,300 | $8,700 | $0 | $0 | $0 |
Deed and Sales History
| 1 | 03/09/2023 | SWD | STATUTORY WARRANTY DEED | WITHERSPOON CYNTHIA K AS TRUSTEE | BARES WILLIAM HENRY & SARAH | | | $239,000.00 | 145495 | 2023-01220 |
| 2 | 05/25/2007 | WARRANTY D | WARRANTY DEED | ZUG BRIAN P | WITHERSPOON CYNTHIA K AS TRUSTEE | | | | 112903 | 2007-05960 |
| 3 | 12/09/2002 | WARRANTY D | WARRANTY DEED | WATTON, DAVID J & SHELLY A | ZUG, BRIAN P | | | $59,000.00 | 100979 | 2002-14020 |
| 4 | 11/12/1991 | WARRANTY D | WARRANTY DEED | | | | | $28,904.00 | 0 | 1929-107981 |
Payout Agreement
| No payout information available.. |