Property
Account |
| Property ID: | 17421 | Abbreviated Legal Description: | TABLEROCK SUBDIVISION II LOT 15 |
| Parcel Number: | 360604590015 | Agent Code: | |
| Type: | Real | | |
| Tax Area: | 5 - OL-140 | Land Use Code | 11 |
| Open Space: | N | DFL | N |
| Historic Property: | N | Remodel Property: | N |
| Multi-Family Redevelopment: | N | | |
| Township: | 6 | Section: | 4 |
| Range: | 36 |
Location |
| Address: | 28 COYOTE RIDGE DR WA 99362 | Mapsco: | |
| Neighborhood: | VG Res | Map ID: | |
| Neighborhood CD: | 615011 |
Owner |
| Name: | EDWARDS BART M & MARY | Owner ID: | 64781 |
| Mailing Address: | 28 COYOTE RIDGE DR WALLA WALLA, WA 99362 | % Ownership: | 100.0000000000% |
| | | Exemptions: | |
Taxes and Assessment Details
Property Tax Information as of
04/19/2026
Click on "Statement Details" to expand or collapse a tax statement.
* Please enter a valid date ** Please enter a valid date *
Statement Details |
| | TOTAL: | $0.00 | $0.00 | $0.00 | $0.00 | $0.00 | $0.00 |
|
| | $0.00 | $0.00 | $0.00 | $0.00 | $0.00 | $0.00 |
Values
| (+) Improvement Homesite Value: | + | N/A | |
| (+) Improvement Non-Homesite Value: | + | N/A | |
| (+) Land Homesite Value: | + | N/A | |
| (+) Land Non-Homesite Value: | + | N/A | Ag / Timber Use Value |
| (+) Curr Use (HS): | + | N/A | N/A |
| (+) Curr Use (NHS): | + | N/A | N/A |
| | | -------------------------- | |
| (=) Market Value: | = | N/A | |
| (–) Productivity Loss: | – | N/A | |
| | | -------------------------- | |
| (=) Subtotal: | = | N/A | |
| (+) Senior Appraised Value: | + | N/A | |
| (+) Non-Senior Appraised Value: | + | N/A | |
| | | -------------------------- | |
| (=) Total Appraised Value: | = | N/A | |
| (–) Senior Exemption Loss: | – | N/A | |
| (–) Exemption Loss: | – | N/A | |
| | | -------------------------- | |
| (=) Taxable Value: | = | N/A | |
Taxing Jurisdiction
| Owner: | EDWARDS BART M & MARY | | |
| % Ownership: | 100.0000000000% | | |
| Total Value: | N/A | | |
| Tax Area: | 5 - OL-140 |
| CERFD | CURRENT EXPENSE REFUND 010 | N/A | N/A | N/A | N/A | | |
| CURREXP | CURRENT EXPENSE 010 | N/A | N/A | N/A | N/A | | |
| HUMNSERV | HUMAN SERVICES 119 | N/A | N/A | N/A | N/A | | |
| SLDREL | SOLDIERS RELIEF 121 | N/A | N/A | N/A | N/A | | |
| EMERGSER | EMS 147 | N/A | N/A | N/A | N/A | | |
| EMSRFD | EMS REFUND 147 | N/A | N/A | N/A | N/A | | |
| PORTRFD | PORT REFUND 640 | N/A | N/A | N/A | N/A | | |
| PORTWWGEN | PORT OF WW 640 | N/A | N/A | N/A | N/A | | |
| SD140BOND | SD #140 BOND 764 | N/A | N/A | N/A | N/A | | |
| SD140GEN | SD #140 GENERAL 760 | N/A | N/A | N/A | N/A | | |
| ST2 | STATE SCHOOL PART 2 600 | N/A | N/A | N/A | N/A | | |
| STATESCHL | STATE SCHOOL 600 | N/A | N/A | N/A | N/A | | |
| STREFUND | STATE REFUND LEVY 603 | N/A | N/A | N/A | N/A | | |
| CWWBOND | C OF WW BOND 643 | N/A | N/A | N/A | N/A | | |
| CWWGEN | CITY OF WW 631 | N/A | N/A | N/A | N/A | | |
| CWWRFD | CITY OF WALLA WALLA REFUND 631 | N/A | N/A | N/A | N/A | | |
| | Total Tax Rate: | N/A | | | | | |
| | | | | Taxes w/Current Exemptions: | N/A | | |
| | | | | Taxes w/o Exemptions: | N/A | | |
Improvement / Building
| Improvement #1: | RESIDENTIAL | State Code: | 11 | 2424.0 sqft | Value: | N/A |
| Exterior Wall: | HARDBOARD | Heating/Cooling: | HEAT PUMP | | Number of Bathrooms: | 3 | Number of Bedrooms: | 5 | | Plumbing: | 15 | Roof Covering: | COMP SHINGLE |
|
| | Type | Description | Class CD | Sub Class CD | Year Built | Area |
| | MA | Main Area | 1 | 45 | 2013 | 2424.0 |
| | BONU | BONUS ROOM W/FINISH | 1 | 45 | 2013 | 540.0 |
| | GFP | GAS FIREPLACE | 1 | 45 | 2013 | 1.0 |
| | RPC | OPEN PORCH W/ROOF , CEILED | 1 | 45 | 2013 | 75.0 |
| | RPC | OPEN PORCH W/ROOF , CEILED | 1 | 45 | 2013 | 220.0 |
| | SI1 | SITE IMPROVEMENT | 1 | 45 | 2013 | 5.0 |
| | ATG | Attached Garage | 1 | 45 | 2013 | 930.0 |
Sketch
Property Image
Land
| 1 | RES 1 | Converted: Residential | 0.2456 | 10699.00 | 0.00 | 0.00 | 1.00 | N/A | N/A |
Roll Value History
| 2026 | N/A | N/A | N/A | N/A | N/A |
| 2025 | $559,280 | $180,000 | $0 | $739,280 | $739,280 |
| 2024 | $552,330 | $120,000 | $0 | $672,330 | $672,330 |
| 2023 | $552,330 | $120,000 | $0 | $672,330 | $672,330 |
| 2022 | $502,110 | $95,000 | $0 | $597,110 | $597,110 |
| 2021 | $456,470 | $95,000 | $0 | $551,470 | $551,470 |
| 2020 | $434,730 | $95,000 | $0 | $529,730 | $529,730 |
| 2019 | $434,730 | $95,000 | $0 | $529,730 | $529,730 |
| 2018 | $383,010 | $50,000 | $0 | $433,010 | $433,010 |
| 2017 | $364,770 | $50,000 | $0 | $414,770 | $414,770 |
| 2016 | $347,400 | $50,000 | $0 | $397,400 | $397,400 |
| 2015 | $347,400 | $50,000 | $0 | $397,400 | $397,400 |
| 2014 | $347,400 | $50,000 | $0 | $397,400 | $397,400 |
| 2013 | $347,400 | $50,000 | $0 | $397,400 | $397,400 |
| 2012 | $0 | $55,000 | $0 | $0 | $0 |
| 2011 | $0 | $70,000 | $0 | $0 | $0 |
| 2010 | $0 | $70,000 | $0 | $0 | $0 |
| 2009 | $0 | $70,000 | $0 | $0 | $0 |
| 2008 | $0 | $70,000 | $0 | $0 | $0 |
| 2007 | $0 | $500 | $0 | $0 | $0 |
Deed and Sales History
| 1 | 02/28/2019 | SWD | STATUTORY WARRANTY DEED | SANDOVAL EMILIO A | EDWARDS BART M & MARY | | | $555,000.00 | 136451 | 2019-01291 |
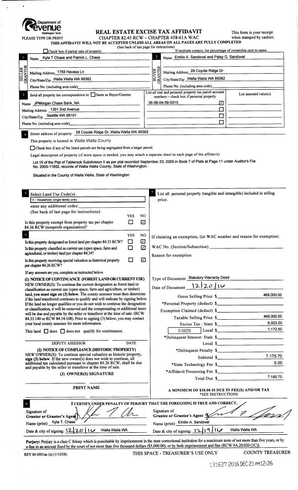
| 2 | 12/21/2016 | SWD | STATUTORY WARRANTY DEED | GREINER KYLA T | SANDOVAL EMILIO A | | | $469,000.00 | 131637 | 2016-10515 |
| 3 | 06/13/2013 | WARRANTY D | WARRANTY DEED | SONOMA HOMES LLC | GREINER, KYLA T | | | $400,000.00 | 124117 | 2013-05958 |
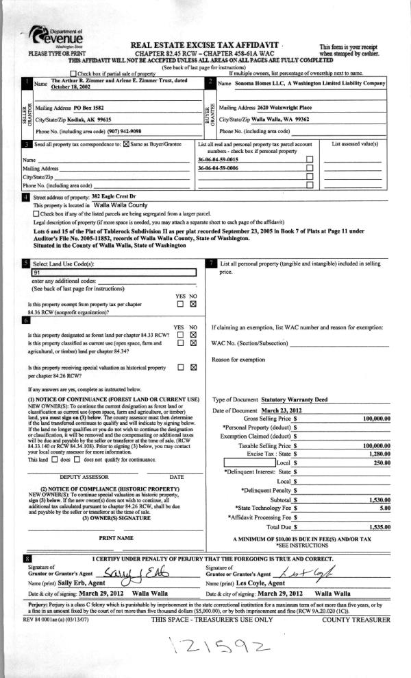
| 4 | 03/29/2012 | WARRANTY D | WARRANTY DEED | ZIMMER ARTHUR R & ARLENE E TRUSTEES OF THE | SONOMA HOMES LLC | | | $100,000.00 | 121592 | 2012-02548 |
|   | |
| 5 | 06/05/2007 | WARRANTY D | WARRANTY DEED | GATEWOOD, W PAUL & CAROL | ZIMMER, ARTHUR R & ARLENE E~TR | | | $70,000.00 | 112995 | 2007-06419 |
Payout Agreement
| No payout information available.. |