Property
Account |
| Property ID: | 17416 | Abbreviated Legal Description: | ARLENES #3 LT 4 BLK 3 |
| Parcel Number: | 310807560304 | Agent Code: | |
| Type: | Real | | |
| Tax Area: | 328 - 400-M-5 | Land Use Code | 11 |
| Open Space: | N | DFL | N |
| Historic Property: | N | Remodel Property: | N |
| Multi-Family Redevelopment: | N | | |
| Township: | 8 | Section: | 7 |
| Range: | 31 |
Location |
| Address: | 139 JILL MARIE ST WA 99323 | Mapsco: | |
| Neighborhood: | G BURBANK SFR | Map ID: | |
| Neighborhood CD: | 214711 |
Owner |
| Name: | RULE JASON J & JENEE P | Owner ID: | 71810 |
| Mailing Address: | 139 JILL MARIE ST BURBANK, WA 99323 | % Ownership: | 100.0000000000% |
| | | Exemptions: | |
Taxes and Assessment Details
Values
| (+) Improvement Homesite Value: | + | $0 | |
| (+) Improvement Non-Homesite Value: | + | $271,510 | |
| (+) Land Homesite Value: | + | $0 | |
| (+) Land Non-Homesite Value: | + | $75,000 | |
| (+) Curr Use (HS): | + | $0 | $0 |
| (+) Curr Use (NHS): | + | $0 | $0 |
| | | -------------------------- | |
| (=) Market Value: | = | $346,510 | |
| (–) Productivity Loss: | – | $0 | |
| | | -------------------------- | |
| (=) Subtotal: | = | $346,510 | |
| (+) Senior Appraised Value: | + | $0 | |
| (+) Non-Senior Appraised Value: | + | $346,510 | |
| | | -------------------------- | |
| (=) Total Appraised Value: | = | $346,510 | |
| (–) Senior Exemption Loss: | – | $0 | |
| (–) Exemption Loss: | – | $0 | |
| | | -------------------------- | |
| (=) Taxable Value: | = | $346,510 | |
Taxing Jurisdiction
| Owner: | RULE JASON J & JENEE P | | |
| % Ownership: | 100.0000000000% | | |
| Total Value: | $346,510 | | |
| Tax Area: | 328 - 400-M-5 |
| CERFD | CURRENT EXPENSE REFUND 010 | 0.0000000000 | $346,510 | $346,510 | $0.00 | | |
| CURREXP | CURRENT EXPENSE 010 | 1.0175366760 | $346,510 | $346,510 | $352.59 | | |
| HUMNSERV | HUMAN SERVICES 119 | 0.0250000000 | $346,510 | $346,510 | $8.66 | | |
| SLDREL | SOLDIERS RELIEF 121 | 0.0155990005 | $346,510 | $346,510 | $5.41 | | |
| EMERGSER | EMS 147 | 0.3792580840 | $346,510 | $346,510 | $131.42 | | |
| EMSRFD | EMS REFUND 147 | 0.0000000000 | $346,510 | $346,510 | $0.00 | | |
| FD5EXP | FD #5 EXPENSE 689 | 1.2045331840 | $346,510 | $346,510 | $417.38 | | |
| RLBRFD | RURAL LIBRARY REFUND 623 | 0.0000000000 | $346,510 | $346,510 | $0.00 | | |
| RURALLIB | RURAL LIBRARY 623 | 0.3710609029 | $346,510 | $346,510 | $128.58 | | |
| PORTRFD | PORT REFUND 640 | 0.0000000000 | $346,510 | $346,510 | $0.00 | | |
| PORTWWGEN | PORT OF WW 640 | 0.2460186015 | $346,510 | $346,510 | $85.25 | | |
| SD400BOND | SD #400 BOND 793 | 0.0000000000 | $346,510 | $346,510 | $0.00 | | |
| SD400CAP | SD #400 CP 792 | 0.3443722657 | $346,510 | $346,510 | $119.33 | | |
| SD400GEN | SD #400 GENERAL 790 | 1.9278469916 | $346,510 | $346,510 | $668.02 | | |
| ST2 | STATE SCHOOL PART 2 600 | 0.8131451643 | $346,510 | $346,510 | $281.76 | | |
| STATESCHL | STATE SCHOOL 600 | 1.5158548041 | $346,510 | $346,510 | $525.26 | | |
| STREFUND | STATE REFUND LEVY 603 | 0.0000000000 | $346,510 | $346,510 | $0.00 | | |
| COROAD | COUNTY ROAD 115 | 1.6549953990 | $346,510 | $346,510 | $573.47 | | |
| CRPRD | COUNTY ROAD REFUND 115 | 0.0000000000 | $346,510 | $346,510 | $0.00 | | |
| | Total Tax Rate: | 9.5152210736 | | | | | |
| | | | | Taxes w/Current Exemptions: | $3,297.13 | | |
| | | | | Taxes w/o Exemptions: | $3,297.13 | | |
Improvement / Building
| Improvement #1: | RESIDENTIAL | State Code: | 11 | 1420.0 sqft | Value: | $271,510 |
| Exterior Wall: | PLYWOOD | Foundation: | SLAB FOUNDATION | | Heating/Cooling: | HEAT PUMP | Number of Bathrooms: | 2 | | Number of Bedrooms: | 3 | Plumbing: | 9 | | Roof Covering: | COMP SHINGLE |   |   |
|
| | Type | Description | Class CD | Sub Class CD | Year Built | Area |
| | MA | Main Area | 1 | 30 | 1993 | 1420.0 |
| | SI1 | SITE IMPROVEMENT | 1 | 30 | 1993 | 1.0 |
| | ATG | Attached Garage | 1 | 30 | 1993 | 360.0 |
| | RPO | OPEN PORCH W/ROOF | 1 | 30 | 1993 | 108.0 |
Sketch
Property Image
Land
| 1 | RES 1 | Converted: Residential | 0.5781 | 25181.00 | 0.00 | 0.00 | 1.00 | $75,000 | $0 |
Roll Value History
| 2026 | N/A | N/A | N/A | N/A | N/A |
| 2025 | $285,090 | $75,000 | $0 | $360,090 | $360,090 |
| 2024 | $271,510 | $75,000 | $0 | $346,510 | $346,510 |
| 2023 | $271,510 | $75,000 | $0 | $346,510 | $346,510 |
| 2022 | $236,100 | $75,000 | $0 | $311,100 | $311,100 |
| 2021 | $168,640 | $75,000 | $0 | $243,640 | $243,640 |
| 2020 | $154,390 | $35,000 | $0 | $189,390 | $189,390 |
| 2019 | $154,390 | $35,000 | $0 | $189,390 | $189,390 |
| 2018 | $134,250 | $35,000 | $0 | $169,250 | $169,250 |
| 2017 | $134,250 | $35,000 | $0 | $169,250 | $169,250 |
| 2016 | $127,860 | $35,000 | $0 | $162,860 | $162,860 |
| 2015 | $121,770 | $35,000 | $0 | $156,770 | $156,770 |
| 2014 | $110,700 | $35,000 | $0 | $145,700 | $145,700 |
| 2013 | $110,700 | $35,000 | $0 | $145,700 | $145,700 |
| 2012 | $103,800 | $35,000 | $0 | $0 | $0 |
| 2011 | $88,900 | $35,000 | $0 | $0 | $0 |
| 2010 | $88,900 | $35,000 | $0 | $0 | $0 |
| 2009 | $119,400 | $25,000 | $0 | $0 | $0 |
| 2008 | $100,100 | $25,000 | $0 | $0 | $0 |
| 2007 | $100,100 | $25,000 | $0 | $0 | $0 |
Deed and Sales History
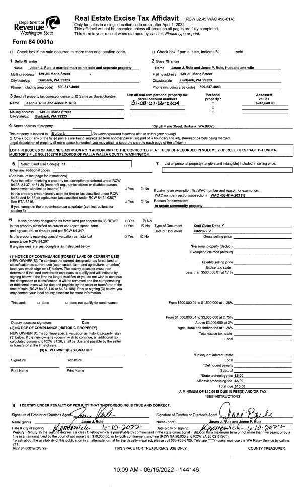
| 1 | 06/15/2022 | QCD | QUIT CLAIM DEED | RULE JASON J | RULE JASON J & JENEE P | | | $0.00 | 144146 | 2022-05070 |
| 2 | 03/27/2015 | QCD | QUIT CLAIM DEED | RULE JENEE | RULE JASON J | | | | 127678 | 2015-02532 |
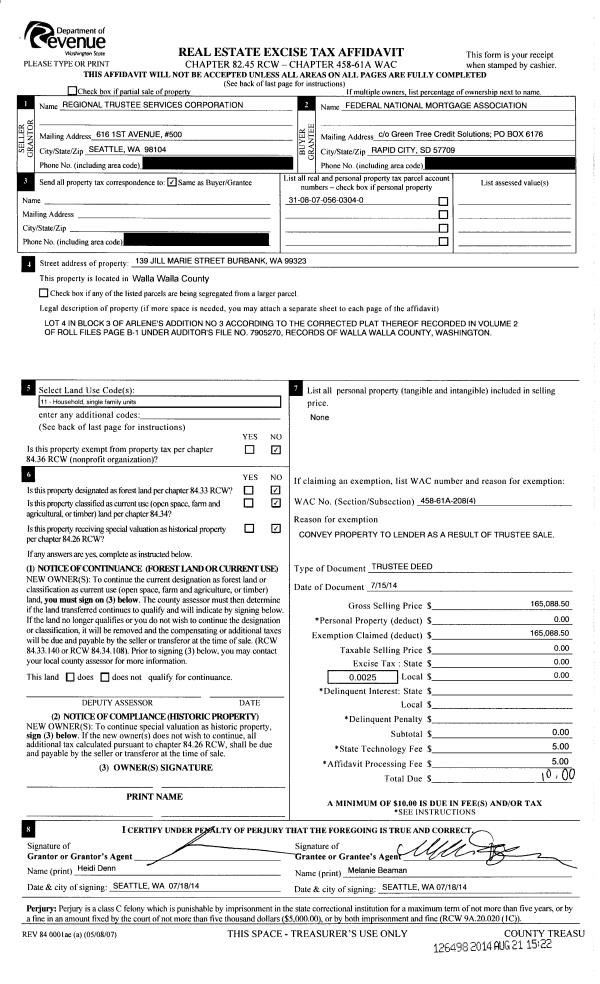
| 3 | 03/27/2015 | WARRANTY D | WARRANTY DEED | FEDERAL NATIONAL MORTGAGE ASSOCIATION | RULE JASON J | | | $165,000.00 | 127677 | 2015-02531 |
| 4 | 08/21/2014 | TRUSTEES D | TRUSTEE'S DEED | WALLIS SHERRI NICOLE | FEDERAL NATIONAL MORTGAGE ASSOCIATION | | | $165,088.00 | 126498 | 2014-06073 |
| 5 | 06/04/2007 | WARRANTY D | WARRANTY DEED | WHITE, ROXANNA | WALLIS, SHERRI NICOLE | | | $150,000.00 | 112984 | 2007-06379 |
| 6 | 12/04/2002 | WARRANTY D | WARRANTY DEED | WHITE LIVING TRUST | WHITE ROXANNA | | | | 100941 | 2002-13825 |
| 7 | 05/01/1990 | WARRANTY D | WARRANTY DEED | | | | | $34,200.00 | 0 | 1839-000357 |
Payout Agreement
| No payout information available.. |