Property
Account |
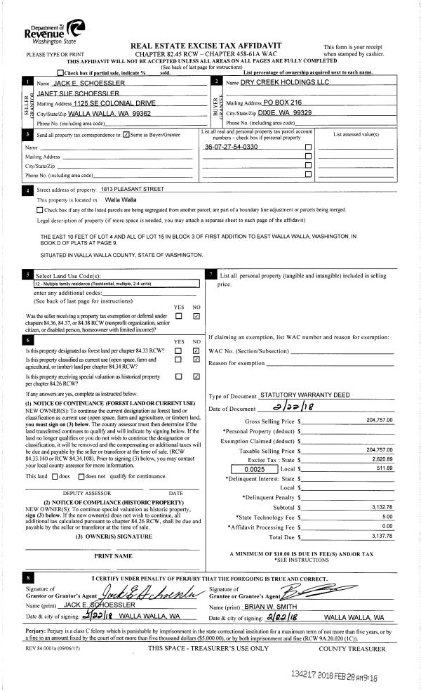
| Property ID: | 1739 | Abbreviated Legal Description: | E 10' LT 14 & ALL LT 15 BLK 3 FIRST ADDN TO EAST WALLA WALLA |
| Parcel Number: | 360727540330 | Agent Code: | |
| Type: | Real | | |
| Tax Area: | 1 - OL-140-F | Land Use Code | 12 |
| Open Space: | N | DFL | N |
| Historic Property: | N | Remodel Property: | N |
| Multi-Family Redevelopment: | N | | |
| Township: | 7 | Section: | 27 |
| Range: | 36 |
Location |
| Address: | 1813 PLEASANT ST WA 99362 | Mapsco: | |
| Neighborhood: | A- Multi Res | Map ID: | |
| Neighborhood CD: | 413181 |
Owner |
| Name: | GOULET STEVEN & DANIKA | Owner ID: | 69679 |
| Mailing Address: | 4491 CORVINA ST RICHLAND, WA 99352 | % Ownership: | 100.0000000000% |
| | | Exemptions: | |
Taxes and Assessment Details
Values
| (+) Improvement Homesite Value: | + | $0 | |
| (+) Improvement Non-Homesite Value: | + | $275,900 | |
| (+) Land Homesite Value: | + | $0 | |
| (+) Land Non-Homesite Value: | + | $57,600 | |
| (+) Curr Use (HS): | + | $0 | $0 |
| (+) Curr Use (NHS): | + | $0 | $0 |
| | | -------------------------- | |
| (=) Market Value: | = | $333,500 | |
| (–) Productivity Loss: | – | $0 | |
| | | -------------------------- | |
| (=) Subtotal: | = | $333,500 | |
| (+) Senior Appraised Value: | + | $0 | |
| (+) Non-Senior Appraised Value: | + | $333,500 | |
| | | -------------------------- | |
| (=) Total Appraised Value: | = | $333,500 | |
| (–) Senior Exemption Loss: | – | $0 | |
| (–) Exemption Loss: | – | $0 | |
| | | -------------------------- | |
| (=) Taxable Value: | = | $333,500 | |
Taxing Jurisdiction
| Owner: | GOULET STEVEN & DANIKA | | |
| % Ownership: | 100.0000000000% | | |
| Total Value: | $333,500 | | |
| Tax Area: | 1 - OL-140-F |
| CERFD | CURRENT EXPENSE REFUND 010 | 0.0000000000 | $333,500 | $333,500 | $0.00 | | |
| CURREXP | CURRENT EXPENSE 010 | 1.0175366760 | $333,500 | $333,500 | $339.35 | | |
| HUMNSERV | HUMAN SERVICES 119 | 0.0250000000 | $333,500 | $333,500 | $8.34 | | |
| SLDREL | SOLDIERS RELIEF 121 | 0.0155990005 | $333,500 | $333,500 | $5.20 | | |
| EMERGSER | EMS 147 | 0.3792580840 | $333,500 | $333,500 | $126.48 | | |
| EMSRFD | EMS REFUND 147 | 0.0000000000 | $333,500 | $333,500 | $0.00 | | |
| PORTRFD | PORT REFUND 640 | 0.0000000000 | $333,500 | $333,500 | $0.00 | | |
| PORTWWGEN | PORT OF WW 640 | 0.2460186015 | $333,500 | $333,500 | $82.05 | | |
| SD140BOND | SD #140 BOND 764 | 0.8342371393 | $333,500 | $333,500 | $278.22 | | |
| SD140GEN | SD #140 GENERAL 760 | 2.0646500647 | $333,500 | $333,500 | $688.56 | | |
| ST2 | STATE SCHOOL PART 2 600 | 0.8131451643 | $333,500 | $333,500 | $271.18 | | |
| STATESCHL | STATE SCHOOL 600 | 1.5158548041 | $333,500 | $333,500 | $505.54 | | |
| STREFUND | STATE REFUND LEVY 603 | 0.0000000000 | $333,500 | $333,500 | $0.00 | | |
| CWWBOND | C OF WW BOND 643 | 0.2760494372 | $333,500 | $333,500 | $92.06 | | |
| CWWGEN | CITY OF WW 631 | 1.6100204973 | $333,500 | $333,500 | $536.94 | | |
| CWWRFD | CITY OF WALLA WALLA REFUND 631 | 0.0000000000 | $333,500 | $333,500 | $0.00 | | |
| | Total Tax Rate: | 8.7973694689 | | | | | |
| | | | | Taxes w/Current Exemptions: | $2,933.92 | | |
| | | | | Taxes w/o Exemptions: | $2,933.92 | | |
Improvement / Building
| Improvement #1: | RESIDENTIAL | State Code: | 12 | 1392.0 sqft | Value: | $200,000 |
| Exterior Wall: | SIDING | Heating/Cooling: | FORCED AIR | | Number of Bathrooms: | 2 | Number of Bedrooms: | 2 | | Plumbing: | 10 | Roof Covering: | COMP SHINGLE |
|
| | Type | Description | Class CD | Sub Class CD | Year Built | Area |
| | MA | Main Area | 4 | 30 | 1925 | 1392.0 |
| | SI1 | SITE IMPROVEMENT | 4 | 30 | 0 | 2.0 |
| | BASE | BASEMENT | 4 | 30 | 1925 | 560.0 |
| | SWP | Solid Wall Porch | 4 | 30 | 1925 | 84.0 |
| | UPFL | Upper Floor (included in main area) | 4 | 30 | 1925 | 440.0 |
| Improvement #2: | RESIDENTIAL | State Code: | 12 | 520.0 sqft | Value: | $75,900 |
| Exterior Wall: | SIDING | Heating/Cooling: | BASEBOARD ELECTRIC | | Number of Bathrooms: | 1 | Number of Bedrooms: | 1 | | Plumbing: | 6 | Roof Covering: | COMP SHINGLE |
|
Sketch
Property Image
Land
| 1 | RES 1 | Converted: Residential | 0.1653 | 7200.00 | 0.00 | 0.00 | 1.00 | $57,600 | $0 |
Roll Value History
| 2026 | N/A | N/A | N/A | N/A | N/A |
| 2025 | $280,000 | $57,600 | $0 | $337,600 | $337,600 |
| 2024 | $280,000 | $57,600 | $0 | $337,600 | $337,600 |
| 2023 | $275,900 | $57,600 | $0 | $333,500 | $333,500 |
| 2022 | $275,040 | $43,200 | $0 | $318,240 | $318,240 |
| 2021 | $171,900 | $43,200 | $0 | $215,100 | $215,100 |
| 2020 | $143,250 | $43,200 | $0 | $186,450 | $186,450 |
| 2019 | $143,250 | $43,200 | $0 | $186,450 | $186,450 |
| 2018 | $114,600 | $43,200 | $0 | $157,800 | $157,800 |
| 2017 | $104,180 | $43,200 | $0 | $147,380 | $147,380 |
| 2016 | $103,000 | $43,200 | $0 | $146,200 | $146,200 |
| 2015 | $103,000 | $43,200 | $0 | $146,200 | $146,200 |
| 2014 | $103,000 | $43,200 | $0 | $146,200 | $146,200 |
| 2013 | $103,000 | $43,200 | $0 | $146,200 | $146,200 |
| 2012 | $103,000 | $43,200 | $0 | $0 | $0 |
| 2011 | $108,100 | $43,200 | $0 | $0 | $0 |
| 2010 | $108,100 | $43,200 | $0 | $0 | $0 |
| 2009 | $108,100 | $43,200 | $0 | $0 | $0 |
| 2008 | $108,100 | $43,200 | $0 | $0 | $0 |
| 2007 | $106,400 | $21,600 | $0 | $0 | $0 |
Deed and Sales History
| 1 | 06/25/2021 | SWD | STATUTORY WARRANTY DEED | DRY CREEK HOLDINGS LLC | GOULET STEVEN & DANIKA | | | $332,000.00 | 141896 | 2021-07756 |
| 2 | 02/28/2018 | SWD | STATUTORY WARRANTY DEED | SCHOESSLER JACK E & JANET SUE | DRY CREEK HOLDINGS LLC | | | $204,757.00 | 134217 | 2018-01603 |
| 3 | 03/14/2003 | WARRANTY D | WARRANTY DEED | JEWELL, RAY R & DIANE M | SCHOESSLER, JACK E & JANET | | | $130,000.00 | 101591 | 2003-03429 |
| 4 | 05/19/1994 | WARRANTY D | WARRANTY DEED | | | | | $78,500.00 | 81681 | 2199-405965 |
Payout Agreement
| No payout information available.. |