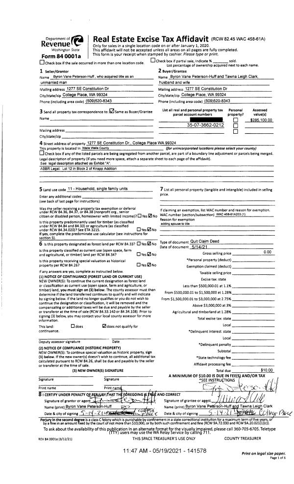
Property
Account |
| Property ID: | 17387 | Abbreviated Legal Description: | KNAPP ADDN PARCEL 12 BLK 2 |
| Parcel Number: | 350736620212 | Agent Code: | |
| Type: | Real | | |
| Tax Area: | 77 - CP-250-F | Land Use Code | 11 |
| Open Space: | N | DFL | N |
| Historic Property: | N | Remodel Property: | N |
| Multi-Family Redevelopment: | N | | |
| Township: | 7 | Section: | 36 |
| Range: | 35 |
Location |
| Address: | 1277 SE CONSTITUTION DR WA 99324 | Mapsco: | |
| Neighborhood: | A SFR Rural/City Inf | Map ID: | |
| Neighborhood CD: | 113012 |
Owner |
| Name: | PETERSON HUFF BURON VANE & TAWNA LEIGH CLARK | Owner ID: | 69412 |
| Mailing Address: | 1277 SE CONSTITUTION DR COLLEGE PLACE, WA 99324 | % Ownership: | 100.0000000000% |
| | | Exemptions: | |
Taxes and Assessment Details
Property Tax Information as of
02/21/2026
Click on "Statement Details" to expand or collapse a tax statement.
* Please enter a valid date ** Please enter a valid date *
Statement Details |
| | TOTAL: | $0.00 | $0.00 | $0.00 | $0.00 | $0.00 | $0.00 |
|
| | $0.00 | $0.00 | $0.00 | $0.00 | $0.00 | $0.00 |
Values
| (+) Improvement Homesite Value: | + | $0 | |
| (+) Improvement Non-Homesite Value: | + | $394,550 | |
| (+) Land Homesite Value: | + | $0 | |
| (+) Land Non-Homesite Value: | + | $70,000 | |
| (+) Curr Use (HS): | + | $0 | $0 |
| (+) Curr Use (NHS): | + | $0 | $0 |
| | | -------------------------- | |
| (=) Market Value: | = | $464,550 | |
| (–) Productivity Loss: | – | $0 | |
| | | -------------------------- | |
| (=) Subtotal: | = | $464,550 | |
| (+) Senior Appraised Value: | + | $0 | |
| (+) Non-Senior Appraised Value: | + | $464,550 | |
| | | -------------------------- | |
| (=) Total Appraised Value: | = | $464,550 | |
| (–) Senior Exemption Loss: | – | $0 | |
| (–) Exemption Loss: | – | $0 | |
| | | -------------------------- | |
| (=) Taxable Value: | = | $464,550 | |
Taxing Jurisdiction
| Owner: | PETERSON HUFF BURON VANE & TAWNA LEIGH CLARK | | |
| % Ownership: | 100.0000000000% | | |
| Total Value: | $464,550 | | |
| Tax Area: | 77 - CP-250-F |
| CERFD | CURRENT EXPENSE REFUND 010 | 0.0000000000 | $464,550 | $464,550 | $0.00 | | |
| CURREXP | CURRENT EXPENSE 010 | 1.0175366760 | $464,550 | $464,550 | $472.70 | | |
| HUMNSERV | HUMAN SERVICES 119 | 0.0250000000 | $464,550 | $464,550 | $11.61 | | |
| SLDREL | SOLDIERS RELIEF 121 | 0.0155990005 | $464,550 | $464,550 | $7.25 | | |
| COLLPLBOND | C OF CP BOND 644 | 0.4374241808 | $464,550 | $464,550 | $203.21 | | |
| COLLPLGEN | CITY OF CP 632 | 1.4453819216 | $464,550 | $464,550 | $671.45 | | |
| EMERGSER | EMS 147 | 0.3792580840 | $464,550 | $464,550 | $176.18 | | |
| EMSRFD | EMS REFUND 147 | 0.0000000000 | $464,550 | $464,550 | $0.00 | | |
| RURALLIB | RURAL LIBRARY 623 | 0.3710609029 | $464,550 | $464,550 | $172.38 | | |
| PORTRFD | PORT REFUND 640 | 0.0000000000 | $464,550 | $464,550 | $0.00 | | |
| PORTWWGEN | PORT OF WW 640 | 0.2460186015 | $464,550 | $464,550 | $114.29 | | |
| SD250BOND | SD #250 BOND 773 | 1.4560608159 | $464,550 | $464,550 | $676.41 | | |
| SD250GEN | SD #250 GENERAL 770 | 2.3880724087 | $464,550 | $464,550 | $1,109.38 | | |
| ST2 | STATE SCHOOL PART 2 600 | 0.8131451643 | $464,550 | $464,550 | $377.75 | | |
| STATESCHL | STATE SCHOOL 600 | 1.5158548041 | $464,550 | $464,550 | $704.19 | | |
| STREFUND | STATE REFUND LEVY 603 | 0.0000000000 | $464,550 | $464,550 | $0.00 | | |
| | Total Tax Rate: | 10.1104125603 | | | | | |
| | | | | Taxes w/Current Exemptions: | $4,696.80 | | |
| | | | | Taxes w/o Exemptions: | $4,696.80 | | |
Improvement / Building
| Improvement #1: | RESIDENTIAL | State Code: | 11 | 2164.0 sqft | Value: | $394,550 |
| Exterior Wall: | SIDING | Foundation: | SLAB FOUNDATION | | Heating/Cooling: | WARM & COOLED AIR | Number of Bathrooms: | 3 | | Number of Bedrooms: | 4 | Plumbing: | 15 | | Roof Covering: | COMP SHINGLE |   |   |
|
| | Type | Description | Class CD | Sub Class CD | Year Built | Area |
| | MA | Main Area | 3 | 30 | 1978 | 2164.0 |
| | UPFL | Upper Floor (included in main area) | 3 | 30 | 1978 | 1008.0 |
| | SI1 | SITE IMPROVEMENT | 3 | 30 | 0 | 2.5 |
| | BASE | BASEMENT | 3 | 30 | 1978 | 676.0 |
| | BPF | BASEMENT -PARTITIONED FINISH | 3 | 30 | 1978 | 676.0 |
| | BIG | Built In Garage | 3 | 30 | 1978 | 528.0 |
| | S1F | Single One Story Fireplace | 3 | 30 | 1978 | 2.0 |
| | SWP | Solid Wall Porch | 3 | 30 | 1978 | 56.0 |
Sketch
Property Image
Land
| 1 | RES 1 | Converted: Residential | 0.1722 | 7500.00 | 0.00 | 0.00 | 1.00 | $70,000 | $0 |
Roll Value History
| 2026 | N/A | N/A | N/A | N/A | N/A |
| 2025 | $315,640 | $130,000 | $0 | $445,640 | $445,640 |
| 2024 | $394,550 | $70,000 | $0 | $464,550 | $464,550 |
| 2023 | $394,550 | $70,000 | $0 | $464,550 | $464,550 |
| 2022 | $358,680 | $70,000 | $0 | $428,680 | $428,680 |
| 2021 | $311,900 | $70,000 | $0 | $381,900 | $381,900 |
| 2020 | $215,100 | $70,000 | $0 | $285,100 | $285,100 |
| 2019 | $230,100 | $55,000 | $0 | $285,100 | $285,100 |
| 2018 | $177,000 | $55,000 | $0 | $232,000 | $232,000 |
| 2017 | $177,000 | $55,000 | $0 | $232,000 | $232,000 |
| 2016 | $177,000 | $55,000 | $0 | $232,000 | $232,000 |
| 2015 | $177,000 | $55,000 | $0 | $232,000 | $232,000 |
| 2014 | $177,000 | $55,000 | $0 | $232,000 | $232,000 |
| 2013 | $177,000 | $55,000 | $0 | $232,000 | $232,000 |
| 2012 | $177,000 | $55,000 | $0 | $0 | $0 |
| 2011 | $189,200 | $55,000 | $0 | $0 | $0 |
| 2010 | $189,200 | $55,000 | $0 | $0 | $0 |
| 2009 | $202,000 | $55,000 | $0 | $0 | $0 |
| 2008 | $147,100 | $30,000 | $0 | $0 | $0 |
| 2007 | $147,100 | $30,000 | $0 | $0 | $0 |
Deed and Sales History
| 1 | 05/14/2021 | QCD | QUIT CLAIM DEED | PETERSON-HUFF BYRON | PETERSON HUFF BURON VANE & TAWNA LEIGH CLARK | | | $0.00 | 141578 | 2021-06059 |
| 2 | 08/05/2015 | SWD | STATUTORY WARRANTY DEED | VOEKS ROBERT C & JOELIE B | PETERSON-HUFF BYRON | | | $220,000.00 | 128550 | 2015-06774 |
| 3 | 05/11/2007 | WARRANTY D | WARRANTY DEED | VAN DONGE, CYNDRA | VOEKS, ROBERT C & JOELIE B | | | $265,000.00 | 112797 | 2007-05319 |
| 4 | 01/19/1999 | WARRANTY D | WARRANTY DEED | | | | | $150,000.00 | 92030 | 2789-900660 |
Payout Agreement
| No payout information available.. |