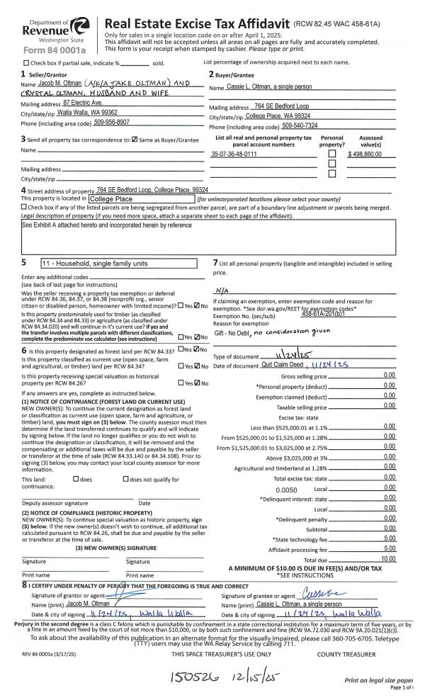
Property
Account |
| Property ID: | 17370 | Abbreviated Legal Description: | WHITMAN PUD PHASE IV LOT 11 BLOCK 1; PLUS STRIP FROM LOT 12 |
| Parcel Number: | 350736480111 | Agent Code: | |
| Type: | Real | | |
| Tax Area: | 75 - CP 250 | Land Use Code | 11 |
| Open Space: | N | DFL | N |
| Historic Property: | N | Remodel Property: | N |
| Multi-Family Redevelopment: | N | | |
| Township: | | Section: | |
| Range: | |
Location |
| Address: | 764 SE BEDFORD LOOP WA 99324 | Mapsco: | |
| Neighborhood: | G SFR | Map ID: | |
| Neighborhood CD: | 114011 |
Owner |
| Name: | OLTMAN JAKE & CRYSTAL | Owner ID: | 52493 |
| Mailing Address: | 87 ELECTRIC AVE WALLA WALLA, WA 99362 | % Ownership: | 100.0000000000% |
| | | Exemptions: | |
Taxes and Assessment Details
Property Tax Information as of
02/21/2026
Click on "Statement Details" to expand or collapse a tax statement.
* Please enter a valid date ** Please enter a valid date *
Statement Details |
| | TOTAL: | $0.00 | $0.00 | $0.00 | $0.00 | $0.00 | $0.00 |
|
| | $0.00 | $0.00 | $0.00 | $0.00 | $0.00 | $0.00 |
Values
| (+) Improvement Homesite Value: | + | $0 | |
| (+) Improvement Non-Homesite Value: | + | $428,860 | |
| (+) Land Homesite Value: | + | $0 | |
| (+) Land Non-Homesite Value: | + | $70,000 | |
| (+) Curr Use (HS): | + | $0 | $0 |
| (+) Curr Use (NHS): | + | $0 | $0 |
| | | -------------------------- | |
| (=) Market Value: | = | $498,860 | |
| (–) Productivity Loss: | – | $0 | |
| | | -------------------------- | |
| (=) Subtotal: | = | $498,860 | |
| (+) Senior Appraised Value: | + | $0 | |
| (+) Non-Senior Appraised Value: | + | $498,860 | |
| | | -------------------------- | |
| (=) Total Appraised Value: | = | $498,860 | |
| (–) Senior Exemption Loss: | – | $0 | |
| (–) Exemption Loss: | – | $0 | |
| | | -------------------------- | |
| (=) Taxable Value: | = | $498,860 | |
Taxing Jurisdiction
| Owner: | OLTMAN JAKE & CRYSTAL | | |
| % Ownership: | 100.0000000000% | | |
| Total Value: | $498,860 | | |
| Tax Area: | 75 - CP 250 |
| CERFD | CURRENT EXPENSE REFUND 010 | 0.0000000000 | $498,860 | $498,860 | $0.00 | | |
| CURREXP | CURRENT EXPENSE 010 | 1.0175366760 | $498,860 | $498,860 | $507.61 | | |
| HUMNSERV | HUMAN SERVICES 119 | 0.0250000000 | $498,860 | $498,860 | $12.47 | | |
| SLDREL | SOLDIERS RELIEF 121 | 0.0155990005 | $498,860 | $498,860 | $7.78 | | |
| COLLPLBOND | C OF CP BOND 644 | 0.4374241808 | $498,860 | $498,860 | $218.21 | | |
| COLLPLGEN | CITY OF CP 632 | 1.4453819216 | $498,860 | $498,860 | $721.04 | | |
| EMERGSER | EMS 147 | 0.3792580840 | $498,860 | $498,860 | $189.20 | | |
| EMSRFD | EMS REFUND 147 | 0.0000000000 | $498,860 | $498,860 | $0.00 | | |
| RURALLIB | RURAL LIBRARY 623 | 0.3710609029 | $498,860 | $498,860 | $185.11 | | |
| PORTRFD | PORT REFUND 640 | 0.0000000000 | $498,860 | $498,860 | $0.00 | | |
| PORTWWGEN | PORT OF WW 640 | 0.2460186015 | $498,860 | $498,860 | $122.73 | | |
| SD250BOND | SD #250 BOND 773 | 1.4560608159 | $498,860 | $498,860 | $726.37 | | |
| SD250GEN | SD #250 GENERAL 770 | 2.3880724087 | $498,860 | $498,860 | $1,191.31 | | |
| ST2 | STATE SCHOOL PART 2 600 | 0.8131451643 | $498,860 | $498,860 | $405.65 | | |
| STATESCHL | STATE SCHOOL 600 | 1.5158548041 | $498,860 | $498,860 | $756.20 | | |
| STREFUND | STATE REFUND LEVY 603 | 0.0000000000 | $498,860 | $498,860 | $0.00 | | |
| | Total Tax Rate: | 10.1104125603 | | | | | |
| | | | | Taxes w/Current Exemptions: | $5,043.68 | | |
| | | | | Taxes w/o Exemptions: | $5,043.68 | | |
Improvement / Building
| Improvement #1: | RESIDENTIAL | State Code: | 11 | 2492.0 sqft | Value: | $428,860 |
| Exterior Wall: | CEMENT FIBER | Heating/Cooling: | WARM & COOLED AIR | | Number of Bathrooms: | 3 | Number of Bedrooms: | 4 | | Plumbing: | 14 | Roof Covering: | COMP SHINGLE |
|
| | Type | Description | Class CD | Sub Class CD | Year Built | Area |
| | MA | Main Area | 3 | 40 | 2021 | 2492.0 |
| | UPFL | Upper Floor (included in main area) | 3 | 40 | 2021 | 1240.0 |
| | BIG | Built In Garage | 3 | 40 | 2021 | 775.0 |
| | SI1 | SITE IMPROVEMENT | 3 | 40 | 2021 | 4.0 |
Sketch
Property Image
Land
| 1 | RES 1 | Converted: Residential | 0.1556 | 6780.00 | 0.00 | 0.00 | 1.00 | $70,000 | $0 |
Roll Value History
| 2026 | N/A | N/A | N/A | N/A | N/A |
| 2025 | $385,970 | $130,000 | $0 | $515,970 | $515,970 |
| 2024 | $428,860 | $70,000 | $0 | $498,860 | $498,860 |
| 2023 | $428,860 | $70,000 | $0 | $498,860 | $498,860 |
| 2022 | $272,910 | $70,000 | $0 | $342,910 | $342,910 |
| 2021 | $0 | $70,000 | $0 | $70,000 | $70,000 |
| 2020 | $0 | $70,000 | $0 | $70,000 | $70,000 |
| 2019 | $0 | $35,000 | $0 | $35,000 | $35,000 |
| 2018 | $0 | $35,000 | $0 | $35,000 | $35,000 |
| 2017 | $0 | $35,000 | $0 | $35,000 | $35,000 |
| 2016 | $0 | $35,000 | $0 | $35,000 | $35,000 |
| 2015 | $0 | $35,000 | $0 | $35,000 | $35,000 |
| 2014 | $0 | $35,000 | $0 | $35,000 | $35,000 |
| 2013 | $0 | $35,000 | $0 | $35,000 | $35,000 |
| 2012 | $0 | $65,000 | $0 | $0 | $0 |
| 2011 | $0 | $65,000 | $0 | $0 | $0 |
| 2010 | $0 | $65,000 | $0 | $0 | $0 |
| 2009 | $0 | $65,000 | $0 | $0 | $0 |
| 2008 | $0 | $2,300 | $0 | $0 | $0 |
| 2007 | $0 | $2,300 | $0 | $0 | $0 |
Deed and Sales History
| 1 | 12/15/2025 | QCD | QUIT CLAIM DEED | OLTMAN JAKE & CRYSTAL | OLTMAN CASSIE L | | | | 150526 | 2025-07701 |
| 2 | 03/27/2013 | WARRANTY D | WARRANTY DEED | WHITMAN DEVELOPMENT CORP | OLTMAN, JAKE & CRYSTAL | | | $35,000.00 | 123673 | 2013-02895 |
Payout Agreement
| No payout information available.. |