Property
Account |
| Property ID: | 17369 | Abbreviated Legal Description: | WHITMAN PUD PHASE IV LOT 12 BLOCK 1; LESS ELY STRIP; PLUS STRIP FROM LOT 13 |
| Parcel Number: | 350736480112 | Agent Code: | |
| Type: | Real | | |
| Tax Area: | 75 - CP 250 | Land Use Code | 11 |
| Open Space: | N | DFL | N |
| Historic Property: | N | Remodel Property: | N |
| Multi-Family Redevelopment: | N | | |
| Township: | | Section: | |
| Range: | |
Location |
| Address: | 754 SE BEDFORD LOOP WA 99324 | Mapsco: | |
| Neighborhood: | G SFR | Map ID: | |
| Neighborhood CD: | 114011 |
Owner |
| Name: | OLTMAN TRUST | Owner ID: | 72724 |
| Mailing Address: | GUY E & PAULA M OLTMAN TRUSTEES 30531 CAROLYN CT HERMISTON, OR 97838 | % Ownership: | 100.0000000000% |
| | | Exemptions: | |
Taxes and Assessment Details
Property Tax Information as of
02/21/2026
Click on "Statement Details" to expand or collapse a tax statement.
* Please enter a valid date ** Please enter a valid date *
Statement Details |
| | TOTAL: | $0.00 | $0.00 | $0.00 | $0.00 | $0.00 | $0.00 |
|
| | $0.00 | $0.00 | $0.00 | $0.00 | $0.00 | $0.00 |
Values
| (+) Improvement Homesite Value: | + | $0 | |
| (+) Improvement Non-Homesite Value: | + | $323,390 | |
| (+) Land Homesite Value: | + | $0 | |
| (+) Land Non-Homesite Value: | + | $70,000 | |
| (+) Curr Use (HS): | + | $0 | $0 |
| (+) Curr Use (NHS): | + | $0 | $0 |
| | | -------------------------- | |
| (=) Market Value: | = | $393,390 | |
| (–) Productivity Loss: | – | $0 | |
| | | -------------------------- | |
| (=) Subtotal: | = | $393,390 | |
| (+) Senior Appraised Value: | + | $0 | |
| (+) Non-Senior Appraised Value: | + | $393,390 | |
| | | -------------------------- | |
| (=) Total Appraised Value: | = | $393,390 | |
| (–) Senior Exemption Loss: | – | $0 | |
| (–) Exemption Loss: | – | $0 | |
| | | -------------------------- | |
| (=) Taxable Value: | = | $393,390 | |
Taxing Jurisdiction
| Owner: | OLTMAN TRUST | | |
| % Ownership: | 100.0000000000% | | |
| Total Value: | $393,390 | | |
| Tax Area: | 75 - CP 250 |
| CERFD | CURRENT EXPENSE REFUND 010 | 0.0000000000 | $393,390 | $393,390 | $0.00 | | |
| CURREXP | CURRENT EXPENSE 010 | 1.0175366760 | $393,390 | $393,390 | $400.29 | | |
| HUMNSERV | HUMAN SERVICES 119 | 0.0250000000 | $393,390 | $393,390 | $9.83 | | |
| SLDREL | SOLDIERS RELIEF 121 | 0.0155990005 | $393,390 | $393,390 | $6.14 | | |
| COLLPLBOND | C OF CP BOND 644 | 0.4374241808 | $393,390 | $393,390 | $172.08 | | |
| COLLPLGEN | CITY OF CP 632 | 1.4453819216 | $393,390 | $393,390 | $568.60 | | |
| EMERGSER | EMS 147 | 0.3792580840 | $393,390 | $393,390 | $149.20 | | |
| EMSRFD | EMS REFUND 147 | 0.0000000000 | $393,390 | $393,390 | $0.00 | | |
| RURALLIB | RURAL LIBRARY 623 | 0.3710609029 | $393,390 | $393,390 | $145.97 | | |
| PORTRFD | PORT REFUND 640 | 0.0000000000 | $393,390 | $393,390 | $0.00 | | |
| PORTWWGEN | PORT OF WW 640 | 0.2460186015 | $393,390 | $393,390 | $96.78 | | |
| SD250BOND | SD #250 BOND 773 | 1.4560608159 | $393,390 | $393,390 | $572.80 | | |
| SD250GEN | SD #250 GENERAL 770 | 2.3880724087 | $393,390 | $393,390 | $939.44 | | |
| ST2 | STATE SCHOOL PART 2 600 | 0.8131451643 | $393,390 | $393,390 | $319.88 | | |
| STATESCHL | STATE SCHOOL 600 | 1.5158548041 | $393,390 | $393,390 | $596.32 | | |
| STREFUND | STATE REFUND LEVY 603 | 0.0000000000 | $393,390 | $393,390 | $0.00 | | |
| | Total Tax Rate: | 10.1104125603 | | | | | |
| | | | | Taxes w/Current Exemptions: | $3,977.33 | | |
| | | | | Taxes w/o Exemptions: | $3,977.33 | | |
Improvement / Building
| Improvement #1: | RESIDENTIAL | State Code: | 11 | 1516.0 sqft | Value: | $323,390 |
| Exterior Wall: | HARDBOARD | Heating/Cooling: | WARM & COOLED AIR | | Number of Bathrooms: | 2 | Number of Bedrooms: | 3 | | Plumbing: | 10 | Roof Covering: | COMP SHINGLE |
|
| | Type | Description | Class CD | Sub Class CD | Year Built | Area |
| | MA | Main Area | 1 | 35 | 2014 | 1516.0 |
| | ATG | Attached Garage | 1 | 35 | 2014 | 446.3 |
| | RPO | OPEN PORCH W/ROOF | 1 | 35 | 2014 | 94.7 |
| | GFP | GAS FIREPLACE | 1 | 35 | 2014 | 1.0 |
| | SI1 | SITE IMPROVEMENT | 1 | 35 | 2014 | 3.0 |
Sketch
Property Image
Land
| 1 | RES 1 | Converted: Residential | 0.1211 | 5276.00 | 0.00 | 0.00 | 1.00 | $70,000 | $0 |
Roll Value History
| 2026 | N/A | N/A | N/A | N/A | N/A |
| 2025 | $226,380 | $130,000 | $0 | $356,380 | $356,380 |
| 2024 | $323,390 | $70,000 | $0 | $393,390 | $393,390 |
| 2023 | $323,390 | $70,000 | $0 | $393,390 | $393,390 |
| 2022 | $307,990 | $70,000 | $0 | $377,990 | $377,990 |
| 2021 | $267,820 | $70,000 | $0 | $337,820 | $337,820 |
| 2020 | $191,300 | $70,000 | $0 | $261,300 | $261,300 |
| 2019 | $226,300 | $35,000 | $0 | $261,300 | $261,300 |
| 2018 | $188,590 | $35,000 | $0 | $223,590 | $223,590 |
| 2017 | $163,990 | $35,000 | $0 | $198,990 | $198,990 |
| 2016 | $156,180 | $35,000 | $0 | $191,180 | $191,180 |
| 2015 | $156,180 | $35,000 | $0 | $191,180 | $191,180 |
| 2014 | $164,400 | $35,000 | $0 | $199,400 | $199,400 |
| 2013 | $0 | $35,000 | $0 | $35,000 | $35,000 |
| 2012 | $0 | $65,000 | $0 | $0 | $0 |
| 2011 | $0 | $65,000 | $0 | $0 | $0 |
| 2010 | $0 | $65,000 | $0 | $0 | $0 |
| 2009 | $0 | $65,000 | $0 | $0 | $0 |
| 2008 | $0 | $2,300 | $0 | $0 | $0 |
| 2007 | $0 | $2,300 | $0 | $0 | $0 |
Deed and Sales History
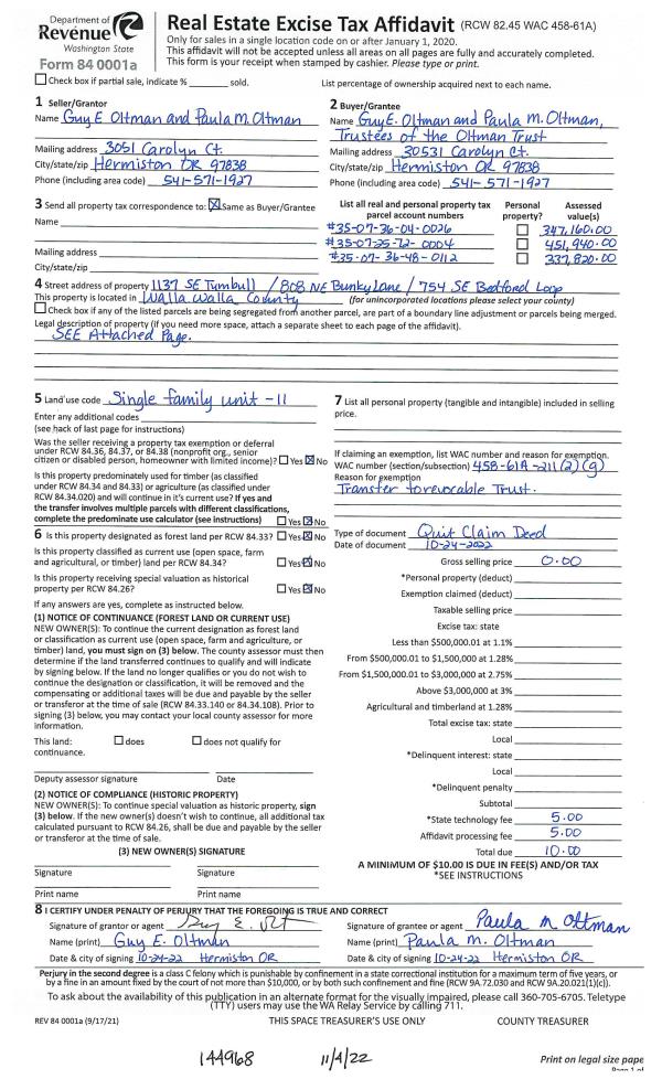
| 1 | 10/24/2022 | QCD | QUIT CLAIM DEED | OLTMAN GUY & PAULA M | OLTMAN TRUST | | 3-PARCELS | $0.00 | 144968 | 2022-08958 |
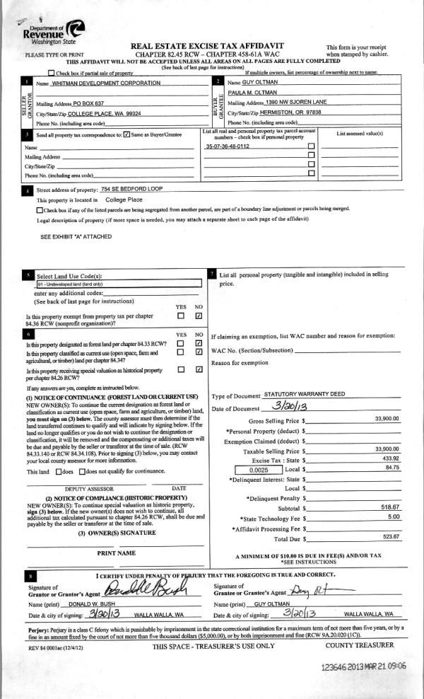
| 2 | 03/21/2013 | WARRANTY D | WARRANTY DEED | WHITMAN DEVELOPMENT CORP | OLTMAN, GUY & PAULA M | | | $33,900.00 | 123646 | 2013-02649 |
Payout Agreement
| No payout information available.. |