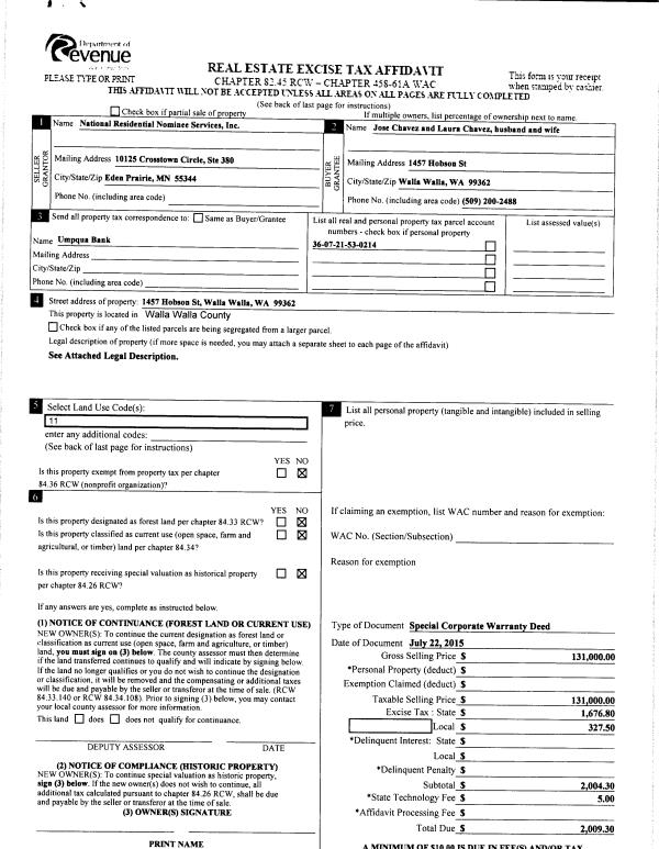
Property
Account |
| Property ID: | 17317 | Abbreviated Legal Description: | EASTLAWN TAX 5 BLK 2 |
| Parcel Number: | 360721530214 | Agent Code: | |
| Type: | Real | | |
| Tax Area: | 1 - OL-140-F | Land Use Code | 11 |
| Open Space: | N | DFL | N |
| Historic Property: | N | Remodel Property: | N |
| Multi-Family Redevelopment: | N | | |
| Township: | 7 | Section: | 21 |
| Range: | 36 |
Location |
| Address: | 1457 HOBSON ST WA 99362 | Mapsco: | |
| Neighborhood: | A-SFR | Map ID: | |
| Neighborhood CD: | 513011 |
Owner |
| Name: | CHAVEZ JOSE & LAURA | Owner ID: | 57385 |
| Mailing Address: | 1457 HOBSON ST WALLA WALLA, WA 99362 | % Ownership: | 100.0000000000% |
| | | Exemptions: | |
Taxes and Assessment Details
Values
| (+) Improvement Homesite Value: | + | $0 | |
| (+) Improvement Non-Homesite Value: | + | $163,620 | |
| (+) Land Homesite Value: | + | $0 | |
| (+) Land Non-Homesite Value: | + | $42,750 | |
| (+) Curr Use (HS): | + | $0 | $0 |
| (+) Curr Use (NHS): | + | $0 | $0 |
| | | -------------------------- | |
| (=) Market Value: | = | $206,370 | |
| (–) Productivity Loss: | – | $0 | |
| | | -------------------------- | |
| (=) Subtotal: | = | $206,370 | |
| (+) Senior Appraised Value: | + | $0 | |
| (+) Non-Senior Appraised Value: | + | $206,370 | |
| | | -------------------------- | |
| (=) Total Appraised Value: | = | $206,370 | |
| (–) Senior Exemption Loss: | – | $0 | |
| (–) Exemption Loss: | – | $0 | |
| | | -------------------------- | |
| (=) Taxable Value: | = | $206,370 | |
Taxing Jurisdiction
| Owner: | CHAVEZ JOSE & LAURA | | |
| % Ownership: | 100.0000000000% | | |
| Total Value: | $206,370 | | |
| Tax Area: | 1 - OL-140-F |
| CERFD | CURRENT EXPENSE REFUND 010 | 0.0000000000 | $206,370 | $206,370 | $0.00 | | |
| CURREXP | CURRENT EXPENSE 010 | 1.0175366760 | $206,370 | $206,370 | $209.99 | | |
| HUMNSERV | HUMAN SERVICES 119 | 0.0250000000 | $206,370 | $206,370 | $5.16 | | |
| SLDREL | SOLDIERS RELIEF 121 | 0.0155990005 | $206,370 | $206,370 | $3.22 | | |
| EMERGSER | EMS 147 | 0.3792580840 | $206,370 | $206,370 | $78.27 | | |
| EMSRFD | EMS REFUND 147 | 0.0000000000 | $206,370 | $206,370 | $0.00 | | |
| PORTRFD | PORT REFUND 640 | 0.0000000000 | $206,370 | $206,370 | $0.00 | | |
| PORTWWGEN | PORT OF WW 640 | 0.2460186015 | $206,370 | $206,370 | $50.77 | | |
| SD140BOND | SD #140 BOND 764 | 0.8342371393 | $206,370 | $206,370 | $172.16 | | |
| SD140GEN | SD #140 GENERAL 760 | 2.0646500647 | $206,370 | $206,370 | $426.08 | | |
| ST2 | STATE SCHOOL PART 2 600 | 0.8131451643 | $206,370 | $206,370 | $167.81 | | |
| STATESCHL | STATE SCHOOL 600 | 1.5158548041 | $206,370 | $206,370 | $312.83 | | |
| STREFUND | STATE REFUND LEVY 603 | 0.0000000000 | $206,370 | $206,370 | $0.00 | | |
| CWWBOND | C OF WW BOND 643 | 0.2760494372 | $206,370 | $206,370 | $56.97 | | |
| CWWGEN | CITY OF WW 631 | 1.6100204973 | $206,370 | $206,370 | $332.26 | | |
| CWWRFD | CITY OF WALLA WALLA REFUND 631 | 0.0000000000 | $206,370 | $206,370 | $0.00 | | |
| | Total Tax Rate: | 8.7973694689 | | | | | |
| | | | | Taxes w/Current Exemptions: | $1,815.52 | | |
| | | | | Taxes w/o Exemptions: | $1,815.52 | | |
Improvement / Building
| Improvement #1: | RESIDENTIAL | State Code: | 11 | 672.0 sqft | Value: | $163,620 |
| Exterior Wall: | METAL/STEEL | Heating/Cooling: | FORCED AIR | | Number of Bathrooms: | 1.5 | Number of Bedrooms: | 2 | | Plumbing: | 9 | Roof Covering: | COMP SHINGLE |
|
| | Type | Description | Class CD | Sub Class CD | Year Built | Area |
| | MA | Main Area | 1 | 20 | 1952 | 672.0 |
| | SI1 | SITE IMPROVEMENT | 1 | 20 | 1952 | 1.0 |
| | BASE | BASEMENT | 1 | 20 | 1952 | 672.0 |
| | BPF | BASEMENT -PARTITIONED FINISH | 1 | 20 | 1952 | 381.0 |
| | OPS | OPEN PORCH W/STEPS | 1 | 20 | 1952 | 36.0 |
| | CPC | COVERED CARPORT/PATIO | 1 | 20 | 1952 | 240.0 |
| | SWP | Solid Wall Porch | 1 | 20 | 1952 | 240.0 |
| | DTG | Detached Garage | 1 | 20 | 1952 | 396.0 |
Sketch
Property Image
Land
| 1 | RES 1 | Converted: Residential | 0.1570 | 6840.00 | 0.00 | 0.00 | 1.00 | $42,750 | $0 |
Roll Value History
| 2026 | N/A | N/A | N/A | N/A | N/A |
| 2025 | $142,930 | $68,400 | $0 | $211,330 | $211,330 |
| 2024 | $142,930 | $68,400 | $0 | $211,330 | $211,330 |
| 2023 | $163,620 | $42,750 | $0 | $206,370 | $206,370 |
| 2022 | $163,620 | $42,750 | $0 | $206,370 | $206,370 |
| 2021 | $142,280 | $42,750 | $0 | $185,030 | $185,030 |
| 2020 | $91,790 | $42,750 | $0 | $134,540 | $134,540 |
| 2019 | $91,790 | $42,750 | $0 | $134,540 | $134,540 |
| 2018 | $91,790 | $42,750 | $0 | $134,540 | $134,540 |
| 2017 | $102,480 | $27,400 | $0 | $129,880 | $129,880 |
| 2016 | $102,480 | $27,400 | $0 | $129,880 | $129,880 |
| 2015 | $102,480 | $27,400 | $0 | $129,880 | $129,880 |
| 2014 | $97,600 | $27,400 | $0 | $125,000 | $125,000 |
| 2013 | $97,600 | $27,400 | $0 | $125,000 | $125,000 |
| 2012 | $97,600 | $27,400 | $0 | $0 | $0 |
| 2011 | $97,600 | $27,400 | $0 | $0 | $0 |
| 2010 | $76,800 | $27,400 | $0 | $0 | $0 |
| 2009 | $88,400 | $27,400 | $0 | $0 | $0 |
| 2008 | $61,700 | $27,400 | $0 | $0 | $0 |
| 2007 | $61,700 | $27,400 | $0 | $0 | $0 |
Deed and Sales History
| 1 | 09/11/2015 | SWP | Special Warranty Deed | NATIONAL RESIDENTIAL NOMINEE SERVICES | CHAVEZ JOSE & LAURA | | | $131,000.00 | 128796 | 2015-07945 |
| 2 | 10/03/2014 | SWD | STATUTORY WARRANTY DEED | BOROWSKI MICHAEL JAN | NATIONAL RESIDENTIAL NOMINEE SERVICES | | | $135,250.00 | 127124 | 2014-09180 |
| 3 | 07/31/2009 | QCD | QUIT CLAIM DEED | SOMERVILLE, PATTI | BOROWSKI, MICHAEL JAN | | | $0.00 | 117106 | 2009-07828 |
| 4 | 07/31/2009 | WARRANTY D | WARRANTY DEED | BROWNE, MICHAEL T & REBECKA L | BOROWSKI, MICHAEL JAN | | | $129,900.00 | 117104 | 2009-07827 |
| 5 | 04/25/2007 | WARRANTY D | WARRANTY DEED | DYMOND, MARTY & DEBBIE | BROWNE, MICHAEL T & REBECKA L | | | $120,750.00 | 112694 | 2007-04602 |
| 6 | 03/28/1994 | WARRANTY D | WARRANTY DEED | | | | | $67,000.00 | 81289 | 2179-403619 |
Payout Agreement
| No payout information available.. |