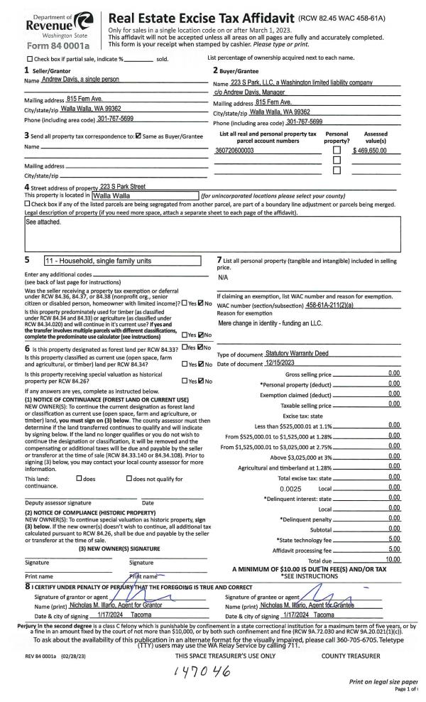
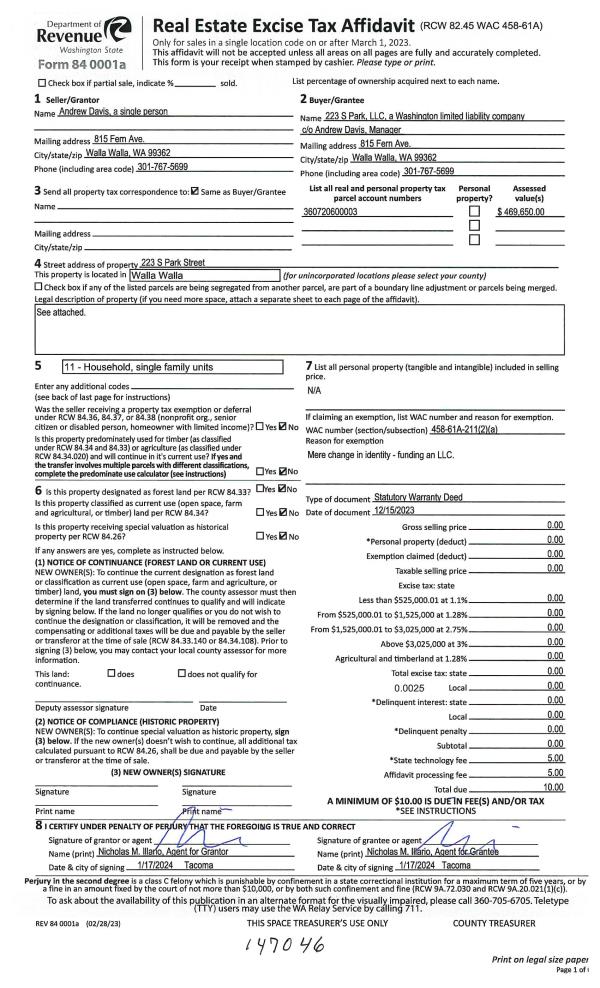
| 1 | 01/22/2024 | WARRANTY D | WARRANTY DEED | DAVIS ANDREW | 223 S PARK LLC | | | | 147046 | 2024-00338 |
| 2 | 12/01/2022 | SWD | STATUTORY WARRANTY DEED | DAVIS JOSEPH C & SARAH N | DAVIS ANDREW | | | $350,000.00 | 145081 | 2022-09443 |
| 3 | 10/05/2018 | SWD | STATUTORY WARRANTY DEED | LYMAN MOANAPUAAALAOKALANI A | DAVIS JOSEPH C & SARAH N | | | $230,000.00 | 135699 | 2018-08308 |
| 4 | 12/17/2014 | QCD | QUIT CLAIM DEED | LYMAN MOANAPUAAALAOKALANI A | LYMAN MOANAPUAAALAOKALANI A | | | $0.00 | 126926 | 2014-09148 |
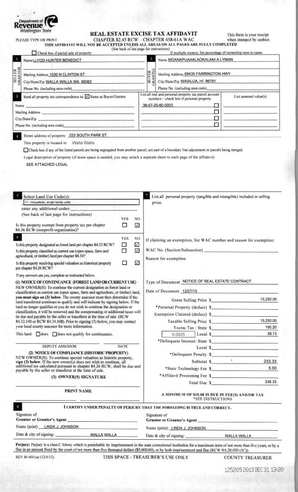
| 5 | 01/30/2014 | FUL | FULFILLMENT DEED | LYMAN MOANAPUAAALOAKALANI A | LYMAN MOANAPUAAALAOKALANI A | | | $15,250.00 | 125205 | 2014-00730 |
| 6 | 04/12/2013 | QCD | QUIT CLAIM DEED | LYMAN, VICTORIA A PANICCIA | LYMAN, MOANAPUAAALOAKALANI A | | | $0.00 | 123766 | 2013--03521 |
| 7 | 04/26/2007 | WARRANTY D | WARRANTY DEED | MASTIN, BARBARA J UNMARRIED PE | BENEDICT, LLOYD HUNTER ET AL | | | $170,000.00 | 112700 | 2007-04646 |