Property
Account |
| Property ID: | 17311 | Abbreviated Legal Description: | CAINS TAX 11 BLK B |
| Parcel Number: | 360720574614 | Agent Code: | |
| Type: | Real | | |
| Tax Area: | 1 - OL-140-F | Land Use Code | 11 |
| Open Space: | N | DFL | N |
| Historic Property: | N | Remodel Property: | N |
| Multi-Family Redevelopment: | N | | |
| Township: | 7 | Section: | 20 |
| Range: | 36 |
Location |
| Address: | 207 N COLVILLE ST WA 99362 | Mapsco: | |
| Neighborhood: | A-SFR | Map ID: | |
| Neighborhood CD: | 513011 |
Owner |
| Name: | GANNON RILEY ROBERT | Owner ID: | 65240 |
| Mailing Address: | 207 N COLVILLE ST WALLA WALLA, WA 99362 | % Ownership: | 100.0000000000% |
| | | Exemptions: | |
Taxes and Assessment Details
Property Tax Information as of
02/21/2026
Click on "Statement Details" to expand or collapse a tax statement.
* Please enter a valid date ** Please enter a valid date *
Statement Details |
| | TOTAL: | $0.00 | $0.00 | $0.00 | $0.00 | $0.00 | $0.00 |
|
| | $0.00 | $0.00 | $0.00 | $0.00 | $0.00 | $0.00 |
Values
| (+) Improvement Homesite Value: | + | $0 | |
| (+) Improvement Non-Homesite Value: | + | $251,110 | |
| (+) Land Homesite Value: | + | $0 | |
| (+) Land Non-Homesite Value: | + | $20,000 | |
| (+) Curr Use (HS): | + | $0 | $0 |
| (+) Curr Use (NHS): | + | $0 | $0 |
| | | -------------------------- | |
| (=) Market Value: | = | $271,110 | |
| (–) Productivity Loss: | – | $0 | |
| | | -------------------------- | |
| (=) Subtotal: | = | $271,110 | |
| (+) Senior Appraised Value: | + | $0 | |
| (+) Non-Senior Appraised Value: | + | $271,110 | |
| | | -------------------------- | |
| (=) Total Appraised Value: | = | $271,110 | |
| (–) Senior Exemption Loss: | – | $0 | |
| (–) Exemption Loss: | – | $0 | |
| | | -------------------------- | |
| (=) Taxable Value: | = | $271,110 | |
Taxing Jurisdiction
| Owner: | GANNON RILEY ROBERT | | |
| % Ownership: | 100.0000000000% | | |
| Total Value: | $271,110 | | |
| Tax Area: | 1 - OL-140-F |
| CERFD | CURRENT EXPENSE REFUND 010 | 0.0000000000 | $271,110 | $271,110 | $0.00 | | |
| CURREXP | CURRENT EXPENSE 010 | 1.0175366760 | $271,110 | $271,110 | $275.86 | | |
| HUMNSERV | HUMAN SERVICES 119 | 0.0250000000 | $271,110 | $271,110 | $6.78 | | |
| SLDREL | SOLDIERS RELIEF 121 | 0.0155990005 | $271,110 | $271,110 | $4.23 | | |
| EMERGSER | EMS 147 | 0.3792580840 | $271,110 | $271,110 | $102.82 | | |
| EMSRFD | EMS REFUND 147 | 0.0000000000 | $271,110 | $271,110 | $0.00 | | |
| PORTRFD | PORT REFUND 640 | 0.0000000000 | $271,110 | $271,110 | $0.00 | | |
| PORTWWGEN | PORT OF WW 640 | 0.2460186015 | $271,110 | $271,110 | $66.70 | | |
| SD140BOND | SD #140 BOND 764 | 0.8342371393 | $271,110 | $271,110 | $226.17 | | |
| SD140GEN | SD #140 GENERAL 760 | 2.0646500647 | $271,110 | $271,110 | $559.75 | | |
| ST2 | STATE SCHOOL PART 2 600 | 0.8131451643 | $271,110 | $271,110 | $220.45 | | |
| STATESCHL | STATE SCHOOL 600 | 1.5158548041 | $271,110 | $271,110 | $410.96 | | |
| STREFUND | STATE REFUND LEVY 603 | 0.0000000000 | $271,110 | $271,110 | $0.00 | | |
| CWWBOND | C OF WW BOND 643 | 0.2760494372 | $271,110 | $271,110 | $74.84 | | |
| CWWGEN | CITY OF WW 631 | 1.6100204973 | $271,110 | $271,110 | $436.49 | | |
| CWWRFD | CITY OF WALLA WALLA REFUND 631 | 0.0000000000 | $271,110 | $271,110 | $0.00 | | |
| | Total Tax Rate: | 8.7973694689 | | | | | |
| | | | | Taxes w/Current Exemptions: | $2,385.05 | | |
| | | | | Taxes w/o Exemptions: | $2,385.05 | | |
Improvement / Building
| Improvement #1: | RESIDENTIAL | State Code: | 11 | 650.0 sqft | Value: | $251,110 |
| Exterior Wall: | CEMENT FIBER | Heating/Cooling: | HEAT PUMP | | Number of Bathrooms: | 2 | Number of Bedrooms: | 2 | | Plumbing: | 9 | Roof Covering: | COMP SHINGLE |
|
| | Type | Description | Class CD | Sub Class CD | Year Built | Area |
| | MA | Main Area | 1 | 30 | 1939 | 650.0 |
| | SI1 | SITE IMPROVEMENT | 1 | 30 | 1939 | 2.0 |
| | BASE | BASEMENT | 1 | 30 | 1939 | 650.0 |
| | BMF | BASEMENT - MIN FINISH | 1 | 30 | 1939 | 650.0 |
| | ATG | Attached Garage | 1 | 30 | 1939 | 250.0 |
| | OSP | Open | 1 | 30 | 1939 | 25.0 |
Sketch
Property Image
Land
| 1 | RES 1 | Converted: Residential | 0.0735 | 3200.00 | 0.00 | 0.00 | 1.00 | $20,000 | $0 |
Roll Value History
| 2026 | N/A | N/A | N/A | N/A | N/A |
| 2025 | $263,350 | $32,000 | $0 | $295,350 | $295,350 |
| 2024 | $229,000 | $32,000 | $0 | $261,000 | $261,000 |
| 2023 | $251,110 | $20,000 | $0 | $271,110 | $271,110 |
| 2022 | $251,110 | $20,000 | $0 | $271,110 | $271,110 |
| 2021 | $209,260 | $20,000 | $0 | $229,260 | $229,260 |
| 2020 | $199,290 | $20,000 | $0 | $219,290 | $219,290 |
| 2019 | $199,290 | $20,000 | $0 | $219,290 | $219,290 |
| 2018 | $64,400 | $20,000 | $0 | $84,400 | $84,400 |
| 2017 | $85,140 | $12,800 | $0 | $97,940 | $97,940 |
| 2016 | $77,400 | $12,800 | $0 | $90,200 | $90,200 |
| 2015 | $77,400 | $12,800 | $0 | $90,200 | $90,200 |
| 2014 | $64,500 | $12,800 | $0 | $77,300 | $77,300 |
| 2013 | $64,500 | $12,800 | $0 | $77,300 | $77,300 |
| 2012 | $74,700 | $12,800 | $0 | $0 | $0 |
| 2011 | $74,700 | $12,800 | $0 | $0 | $0 |
| 2010 | $70,500 | $12,800 | $0 | $0 | $0 |
| 2009 | $79,800 | $12,800 | $0 | $0 | $0 |
| 2008 | $70,900 | $9,600 | $0 | $0 | $0 |
| 2007 | $70,900 | $9,600 | $0 | $0 | $0 |
Deed and Sales History
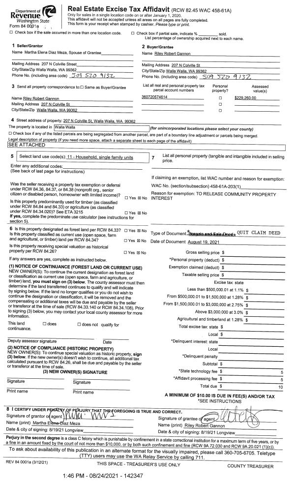
| 1 | 08/24/2021 | QCD | QUIT CLAIM DEED | MEZA MARTHA ELENA DIAZ | GANNON RILEY ROBERT | | | | 142347 | 2021-10368 |
| 2 | 06/05/2019 | SWD | STATUTORY WARRANTY DEED | MCKEE DENNIS MICHAEL | GANNON RILEY ROBERT | | | $229,000.00 | 137021 | 2019-03857 |
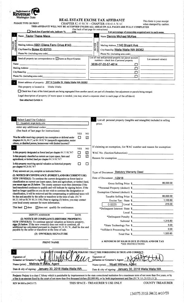
| 3 | 01/31/2018 | SWD | STATUTORY WARRANTY DEED | MACE TAYLOR THENE | MCKEE DENNIS MICHAEL | | | $86,000.00 | 134075 | 2018-00857 |
| 4 | 12/17/2013 | QCD | QUIT CLAIM DEED | MACE TAYLOR | MACE TAYLOR THENE | | | | 125125 | 2013-12038 |
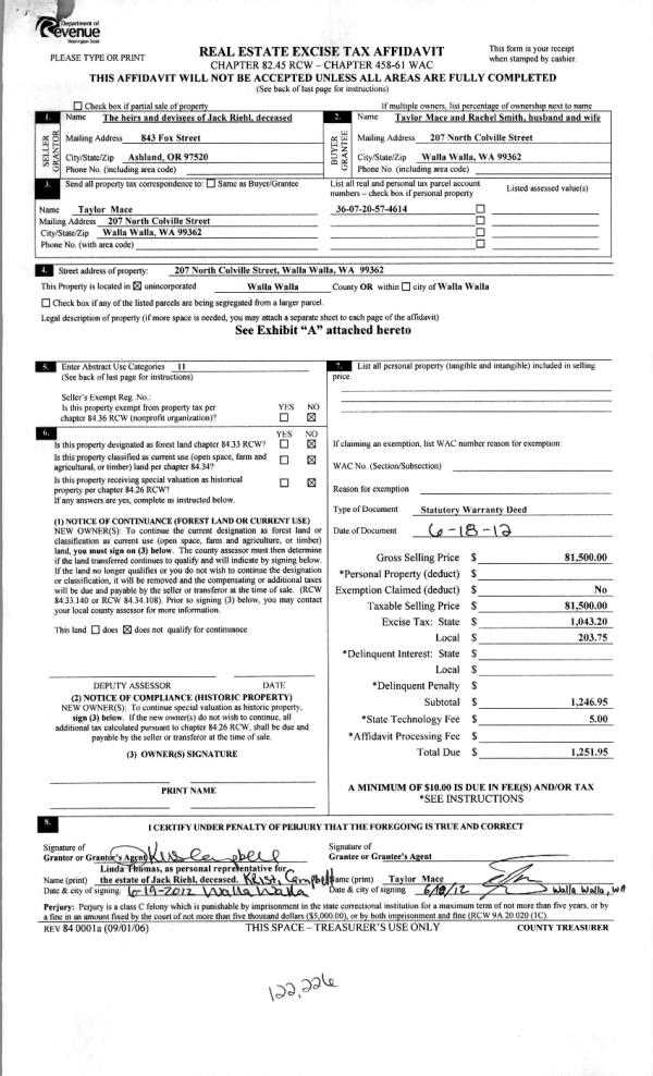
| 5 | 06/22/2012 | WARRANTY D | WARRANTY DEED | RIEHL, JACK R ESTATE OF | MACE, TAYLOR | | | $81,500.00 | 122226 | 2012-05238 |
| 6 | 04/17/2007 | WARRANTY D | WARRANTY DEED | RIEHL, LYDIA ESTATE OF | RIEHL, JACK R | | | | 112643 | 2007-04300 |
| 7 | 04/26/1995 | WARRANTY D | WARRANTY DEED | RIEHL, SOLOMON ESTATE OF | RIEHL, LYDIA | | | | 0 | CC #95-4-00131-7 |
| 8 | 01/01/1959 | WARRANTY D | WARRANTY DEED | | | | | $0.00 | 0 | 2833-991000 |
Payout Agreement
| No payout information available.. |