Property
Account |
| Property ID: | 17284 | Abbreviated Legal Description: | HILLTOP ACRES PHASE 1 LOT 9 BLK 3 |
| Parcel Number: | 350611510309 | Agent Code: | |
| Type: | Real | | |
| Tax Area: | 311 - 250-4 | Land Use Code | 11 |
| Open Space: | N | DFL | N |
| Historic Property: | N | Remodel Property: | N |
| Multi-Family Redevelopment: | N | | |
| Township: | 6 | Section: | 11 |
| Range: | 35 |
Location |
| Address: | 531 SUMMERS CIRCLE WA 99324 | Mapsco: | |
| Neighborhood: | G SFR Rural | Map ID: | |
| Neighborhood CD: | 214013 |
Owner |
| Name: | GILLHAM SETH B | Owner ID: | 70273 |
| Mailing Address: | 531 SUMMERS CIRCLE WALLA WALLA, WA 99362 | % Ownership: | 100.0000000000% |
| | | Exemptions: | |
Taxes and Assessment Details
Property Tax Information as of
02/21/2026
Click on "Statement Details" to expand or collapse a tax statement.
* Please enter a valid date ** Please enter a valid date *
Statement Details |
| | TOTAL: | $0.00 | $0.00 | $0.00 | $0.00 | $0.00 | $0.00 |
|
| | $0.00 | $0.00 | $0.00 | $0.00 | $0.00 | $0.00 |
Values
| (+) Improvement Homesite Value: | + | $0 | |
| (+) Improvement Non-Homesite Value: | + | $901,930 | |
| (+) Land Homesite Value: | + | $0 | |
| (+) Land Non-Homesite Value: | + | $133,240 | |
| (+) Curr Use (HS): | + | $0 | $0 |
| (+) Curr Use (NHS): | + | $0 | $0 |
| | | -------------------------- | |
| (=) Market Value: | = | $1,035,170 | |
| (–) Productivity Loss: | – | $0 | |
| | | -------------------------- | |
| (=) Subtotal: | = | $1,035,170 | |
| (+) Senior Appraised Value: | + | $0 | |
| (+) Non-Senior Appraised Value: | + | $1,035,170 | |
| | | -------------------------- | |
| (=) Total Appraised Value: | = | $1,035,170 | |
| (–) Senior Exemption Loss: | – | $0 | |
| (–) Exemption Loss: | – | $0 | |
| | | -------------------------- | |
| (=) Taxable Value: | = | $1,035,170 | |
Taxing Jurisdiction
| Owner: | GILLHAM SETH B | | |
| % Ownership: | 100.0000000000% | | |
| Total Value: | $1,035,170 | | |
| Tax Area: | 311 - 250-4 |
| CERFD | CURRENT EXPENSE REFUND 010 | 0.0000000000 | $1,035,170 | $1,035,170 | $0.00 | | |
| CURREXP | CURRENT EXPENSE 010 | 1.0175366760 | $1,035,170 | $1,035,170 | $1,053.32 | | |
| HUMNSERV | HUMAN SERVICES 119 | 0.0250000000 | $1,035,170 | $1,035,170 | $25.88 | | |
| SLDREL | SOLDIERS RELIEF 121 | 0.0155990005 | $1,035,170 | $1,035,170 | $16.15 | | |
| EMERGSER | EMS 147 | 0.3792580840 | $1,035,170 | $1,035,170 | $392.60 | | |
| EMSRFD | EMS REFUND 147 | 0.0000000000 | $1,035,170 | $1,035,170 | $0.00 | | |
| FD4EXP | FD #4 EXPENSE 686 | 0.8836993059 | $1,035,170 | $1,035,170 | $914.78 | | |
| RLBRFD | RURAL LIBRARY REFUND 623 | 0.0000000000 | $1,035,170 | $1,035,170 | $0.00 | | |
| RURALLIB | RURAL LIBRARY 623 | 0.3710609029 | $1,035,170 | $1,035,170 | $384.11 | | |
| PORTRFD | PORT REFUND 640 | 0.0000000000 | $1,035,170 | $1,035,170 | $0.00 | | |
| PORTWWGEN | PORT OF WW 640 | 0.2460186015 | $1,035,170 | $1,035,170 | $254.67 | | |
| SD250BOND | SD #250 BOND 773 | 1.4560608159 | $1,035,170 | $1,035,170 | $1,507.27 | | |
| SD250GEN | SD #250 GENERAL 770 | 2.3880724087 | $1,035,170 | $1,035,170 | $2,472.06 | | |
| ST2 | STATE SCHOOL PART 2 600 | 0.8131451643 | $1,035,170 | $1,035,170 | $841.74 | | |
| STATESCHL | STATE SCHOOL 600 | 1.5158548041 | $1,035,170 | $1,035,170 | $1,569.17 | | |
| STREFUND | STATE REFUND LEVY 603 | 0.0000000000 | $1,035,170 | $1,035,170 | $0.00 | | |
| COROAD | COUNTY ROAD 115 | 1.6549953990 | $1,035,170 | $1,035,170 | $1,713.20 | | |
| CRPRD | COUNTY ROAD REFUND 115 | 0.0000000000 | $1,035,170 | $1,035,170 | $0.00 | | |
| | Total Tax Rate: | 10.7663011628 | | | | | |
| | | | | Taxes w/Current Exemptions: | $11,144.95 | | |
| | | | | Taxes w/o Exemptions: | $11,144.95 | | |
Improvement / Building
| Improvement #1: | RESIDENTIAL | State Code: | 11 | 3132.0 sqft | Value: | $901,930 |
| Exterior Wall: | COMMON BRICK | Heating/Cooling: | WARM & COOLED AIR | | Number of Bathrooms: | 4 | Number of Bedrooms: | 4 | | Plumbing: | 27 | Roof Covering: | COMP SHINGLE |
|
| | Type | Description | Class CD | Sub Class CD | Year Built | Area |
| | MA | Main Area | 1 | 50 | 2003 | 3132.0 |
| | GFP | GAS FIREPLACE | 1 | 50 | 2003 | 3.0 |
| | SI1 | SITE IMPROVEMENT | 1 | 50 | 2003 | 9.0 |
| | SMP | SWIMMING POOL | 1 | 50 | 2003 | 1.0 |
| | RPO | OPEN PORCH W/ROOF | 1 | 50 | 2003 | 80.0 |
| | RPO | OPEN PORCH W/ROOF | 1 | 50 | 2003 | 148.0 |
| | RPO | OPEN PORCH W/ROOF | 1 | 50 | 2003 | 256.0 |
| | SWP | Solid Wall Porch | 1 | 50 | 2003 | 1680.0 |
| | BARN | BARN-AVE | 1 | 50 | 2003 | 1440.0 |
| | DTG | Detached Garage | 1 | 50 | 2003 | 1040.0 |
| | ATG | Attached Garage | 1 | 50 | 2003 | 756.0 |
Sketch
Property Image
Land
| 1 | RES 1 | Converted: Residential | 3.6200 | 157687.20 | 0.00 | 0.00 | 1.00 | $133,240 | $0 |
Roll Value History
| 2026 | N/A | N/A | N/A | N/A | N/A |
| 2025 | $901,930 | $133,240 | $0 | $1,035,170 | $1,035,170 |
| 2024 | $901,930 | $133,240 | $0 | $1,035,170 | $1,035,170 |
| 2023 | $901,930 | $133,240 | $0 | $1,035,170 | $1,035,170 |
| 2022 | $901,930 | $133,240 | $0 | $1,035,170 | $1,035,170 |
| 2021 | $721,540 | $133,240 | $0 | $854,780 | $854,780 |
| 2020 | $524,060 | $90,000 | $0 | $614,060 | $614,060 |
| 2019 | $524,060 | $90,000 | $0 | $614,060 | $614,060 |
| 2018 | $524,060 | $90,000 | $0 | $614,060 | $614,060 |
| 2017 | $524,060 | $90,000 | $0 | $614,060 | $614,060 |
| 2016 | $499,100 | $90,000 | $0 | $589,100 | $589,100 |
| 2015 | $499,100 | $90,000 | $0 | $589,100 | $589,100 |
| 2014 | $499,100 | $90,000 | $0 | $589,100 | $589,100 |
| 2013 | $499,100 | $90,000 | $0 | $589,100 | $589,100 |
| 2012 | $454,100 | $135,000 | $0 | $0 | $0 |
| 2011 | $454,100 | $135,000 | $0 | $0 | $0 |
| 2010 | $434,100 | $155,000 | $0 | $0 | $0 |
| 2009 | $413,900 | $155,000 | $0 | $0 | $0 |
| 2008 | $498,900 | $70,000 | $0 | $0 | $0 |
| 2007 | $498,900 | $70,000 | $0 | $0 | $0 |
Deed and Sales History
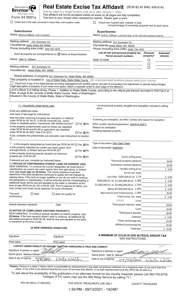
| 1 | 09/13/2021 | QCD | QUIT CLAIM DEED | GILLHAM SETH B & MELISSA K | GILLHAM SETH B | | | $0.00 | 142487 | 2021-11258 |
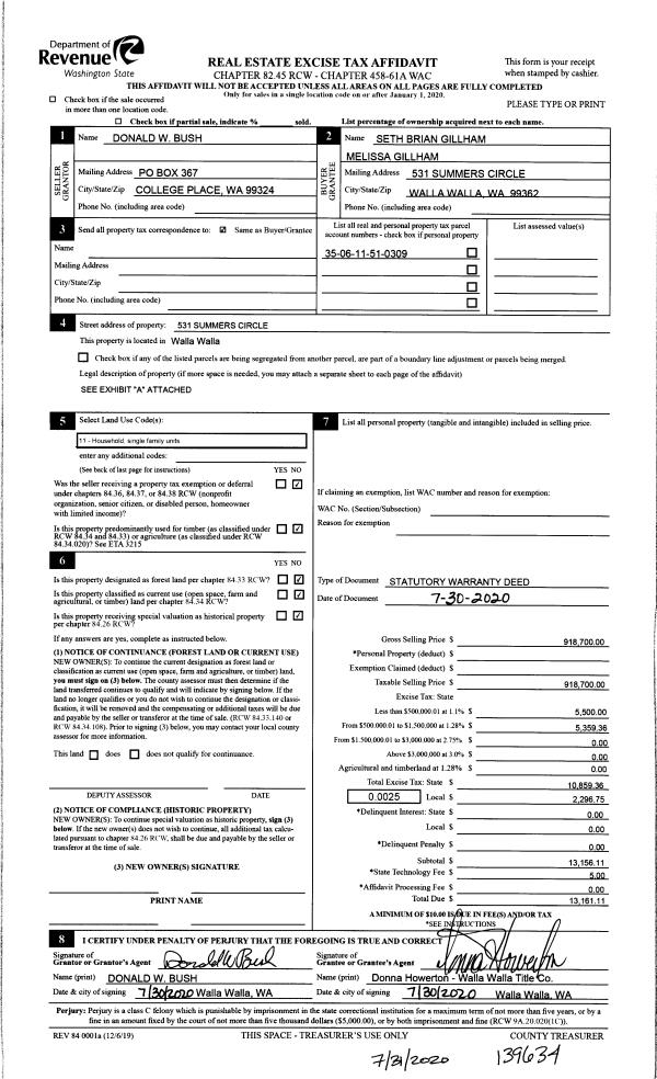
| 2 | 07/31/2020 | SWD | STATUTORY WARRANTY DEED | BUSH DONALD W | GILLHAM SETH B & MELISSA K | | | $918,700.00 | 139634 | 2020-07486 |
| 3 | 05/09/2018 | DEATH CERT | DEATH CERTIFICATE | BUSH RITA JOANNE | | | | | 0 | 2018-03643 |
| 4 | 05/09/2018 | COMMUNITY | COMMUNITY PROPERTY AGREEMENT | BUSH DONALD W & RITA J | | | | | 134674 | 2018-03642 |
| 5 | 08/26/2005 | WARRANTY D | WARRANTY DEED | "SUMMERS, JAY & JUNE" | | | | | 86447 | 2005--10601 |
| 6 | 08/08/2002 | WARRANTY D | WARRANTY DEED | GRAND VISTA ESTATES DEVELOPMEN | BUSH, DONALD W & RITA J | | | $28,500.00 | 100118 | 2002-0008908 |
Payout Agreement
| No payout information available.. |