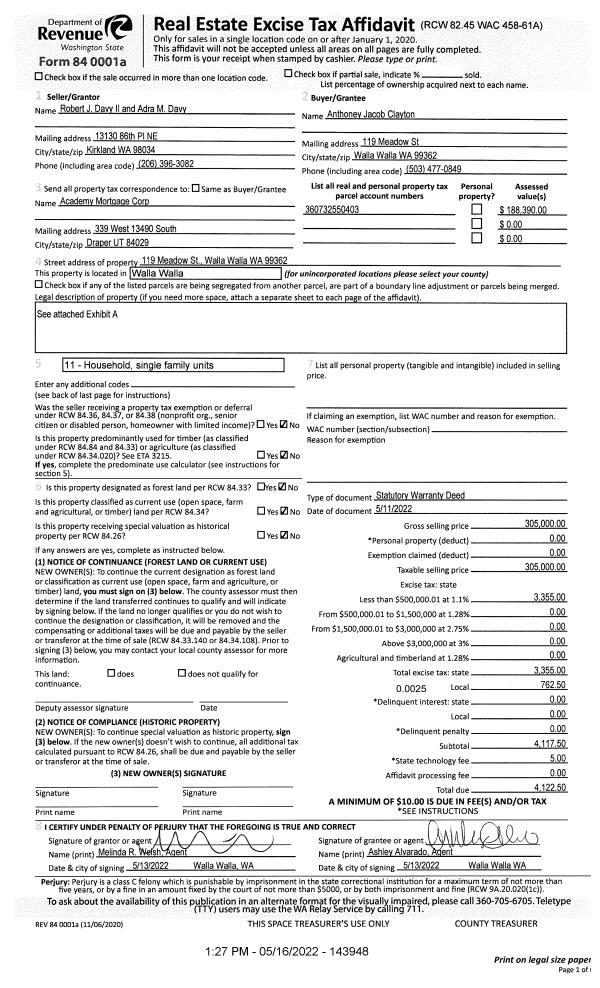
Property
Account |
| Property ID: | 17272 | Abbreviated Legal Description: | LT 3 BLK 4 MEADOW VIEW |
| Parcel Number: | 360732550403 | Agent Code: | |
| Type: | Real | | |
| Tax Area: | 1 - OL-140-F | Land Use Code | 11 |
| Open Space: | N | DFL | N |
| Historic Property: | N | Remodel Property: | N |
| Multi-Family Redevelopment: | N | | |
| Township: | 7 | Section: | 32 |
| Range: | 36 |
Location |
| Address: | 119 MEADOW ST WA 99362 | Mapsco: | |
| Neighborhood: | A Res | Map ID: | |
| Neighborhood CD: | 613011 |
Owner |
| Name: | CLAYTON ANTHONEY JACOB | Owner ID: | 71640 |
| Mailing Address: | 119 MEADOW ST WALLA WALLA, WA 99362 | % Ownership: | 100.0000000000% |
| | | Exemptions: | |
Taxes and Assessment Details
Property Tax Information as of
02/21/2026
Click on "Statement Details" to expand or collapse a tax statement.
* Please enter a valid date ** Please enter a valid date *
Statement Details |
| | TOTAL: | $0.00 | $0.00 | $0.00 | $0.00 | $0.00 | $0.00 |
|
| | $0.00 | $0.00 | $0.00 | $0.00 | $0.00 | $0.00 |
Values
| (+) Improvement Homesite Value: | + | $0 | |
| (+) Improvement Non-Homesite Value: | + | $229,120 | |
| (+) Land Homesite Value: | + | $0 | |
| (+) Land Non-Homesite Value: | + | $69,300 | |
| (+) Curr Use (HS): | + | $0 | $0 |
| (+) Curr Use (NHS): | + | $0 | $0 |
| | | -------------------------- | |
| (=) Market Value: | = | $298,420 | |
| (–) Productivity Loss: | – | $0 | |
| | | -------------------------- | |
| (=) Subtotal: | = | $298,420 | |
| (+) Senior Appraised Value: | + | $0 | |
| (+) Non-Senior Appraised Value: | + | $298,420 | |
| | | -------------------------- | |
| (=) Total Appraised Value: | = | $298,420 | |
| (–) Senior Exemption Loss: | – | $0 | |
| (–) Exemption Loss: | – | $0 | |
| | | -------------------------- | |
| (=) Taxable Value: | = | $298,420 | |
Taxing Jurisdiction
| Owner: | CLAYTON ANTHONEY JACOB | | |
| % Ownership: | 100.0000000000% | | |
| Total Value: | $298,420 | | |
| Tax Area: | 1 - OL-140-F |
| CERFD | CURRENT EXPENSE REFUND 010 | 0.0000000000 | $298,420 | $298,420 | $0.00 | | |
| CURREXP | CURRENT EXPENSE 010 | 1.0175366760 | $298,420 | $298,420 | $303.65 | | |
| HUMNSERV | HUMAN SERVICES 119 | 0.0250000000 | $298,420 | $298,420 | $7.46 | | |
| SLDREL | SOLDIERS RELIEF 121 | 0.0155990005 | $298,420 | $298,420 | $4.66 | | |
| EMERGSER | EMS 147 | 0.3792580840 | $298,420 | $298,420 | $113.18 | | |
| EMSRFD | EMS REFUND 147 | 0.0000000000 | $298,420 | $298,420 | $0.00 | | |
| PORTRFD | PORT REFUND 640 | 0.0000000000 | $298,420 | $298,420 | $0.00 | | |
| PORTWWGEN | PORT OF WW 640 | 0.2460186015 | $298,420 | $298,420 | $73.42 | | |
| SD140BOND | SD #140 BOND 764 | 0.8342371393 | $298,420 | $298,420 | $248.95 | | |
| SD140GEN | SD #140 GENERAL 760 | 2.0646500647 | $298,420 | $298,420 | $616.13 | | |
| ST2 | STATE SCHOOL PART 2 600 | 0.8131451643 | $298,420 | $298,420 | $242.66 | | |
| STATESCHL | STATE SCHOOL 600 | 1.5158548041 | $298,420 | $298,420 | $452.36 | | |
| STREFUND | STATE REFUND LEVY 603 | 0.0000000000 | $298,420 | $298,420 | $0.00 | | |
| CWWBOND | C OF WW BOND 643 | 0.2760494372 | $298,420 | $298,420 | $82.38 | | |
| CWWGEN | CITY OF WW 631 | 1.6100204973 | $298,420 | $298,420 | $480.46 | | |
| CWWRFD | CITY OF WALLA WALLA REFUND 631 | 0.0000000000 | $298,420 | $298,420 | $0.00 | | |
| | Total Tax Rate: | 8.7973694689 | | | | | |
| | | | | Taxes w/Current Exemptions: | $2,625.31 | | |
| | | | | Taxes w/o Exemptions: | $2,625.31 | | |
Improvement / Building
| Improvement #1: | RESIDENTIAL | State Code: | 11 | 999.0 sqft | Value: | $229,120 |
| Exterior Wall: | SIDING | Heating/Cooling: | WARM & COOLED AIR | | Number of Bathrooms: | 1 | Number of Bedrooms: | 3 | | Plumbing: | 6 | Roof Covering: | COMP SHINGLE |
|
| | Type | Description | Class CD | Sub Class CD | Year Built | Area |
| | MA | Main Area | 1 | 25 | 1961 | 999.0 |
| | SI1 | SITE IMPROVEMENT | 1 | 25 | 1961 | 1.5 |
| | OSP | Open | 1 | 25 | 1961 | 20.0 |
| | CPC | COVERED CARPORT/PATIO | 1 | 25 | 1961 | 352.0 |
| | UTST | Utility Storage Shed | 1 | 25 | 1961 | 30.0 |
Sketch
Property Image
Land
| 1 | RES 1 | Converted: Residential | 0.1768 | 7700.00 | 0.00 | 0.00 | 1.00 | $69,300 | $0 |
Roll Value History
| 2026 | N/A | N/A | N/A | N/A | N/A |
| 2025 | $223,290 | $84,700 | $0 | $307,990 | $307,990 |
| 2024 | $229,120 | $69,300 | $0 | $298,420 | $298,420 |
| 2023 | $229,120 | $69,300 | $0 | $298,420 | $298,420 |
| 2022 | $185,590 | $55,830 | $0 | $241,420 | $241,420 |
| 2021 | $132,560 | $55,830 | $0 | $188,390 | $188,390 |
| 2020 | $110,470 | $55,830 | $0 | $166,300 | $166,300 |
| 2019 | $110,470 | $55,830 | $0 | $166,300 | $166,300 |
| 2018 | $111,700 | $45,200 | $0 | $156,900 | $156,900 |
| 2017 | $106,380 | $45,200 | $0 | $151,580 | $151,580 |
| 2016 | $101,320 | $45,200 | $0 | $146,520 | $146,520 |
| 2015 | $101,320 | $45,200 | $0 | $146,520 | $146,520 |
| 2014 | $88,100 | $45,200 | $0 | $133,300 | $133,300 |
| 2013 | $88,100 | $45,200 | $0 | $133,300 | $133,300 |
| 2012 | $96,500 | $45,200 | $0 | $0 | $0 |
| 2011 | $104,000 | $45,200 | $0 | $0 | $0 |
| 2010 | $90,400 | $45,200 | $0 | $0 | $0 |
| 2009 | $105,500 | $45,200 | $0 | $0 | $0 |
| 2008 | $105,500 | $45,200 | $0 | $0 | $0 |
| 2007 | $69,400 | $22,700 | $0 | $0 | $0 |
Deed and Sales History
| 1 | 05/16/2022 | SWD | STATUTORY WARRANTY DEED | DAVY ROBERT J II & ADRA M | CLAYTON ANTHONEY JACOB | | | $305,000.00 | 143948 | 2022-04148 |
| 2 | 04/25/2007 | WARRANTY D | WARRANTY DEED | OBERG, JOANY | DAVY, ROBERT J II & ADRA M | | | $153,000.00 | 112691 | 2007-04587 |
| 3 | 11/28/2006 | WARRANTY D | WARRANTY DEED | AYCOCK, ROBERT | OBERG, JOANY | | | $122,880.00 | 111748 | 2006-14207 |
| 4 | 04/02/2003 | WARRANTY D | WARRANTY DEED | MATULA, RICHARD J & TINA M | AYCOCK, ROBERT | | | $97,000.00 | 101751 | 2003-04627 |
| 5 | 10/18/1996 | WARRANTY D | WARRANTY DEED | | | | | $86,500.00 | 87054 | 2459-610507 |
Payout Agreement
| No payout information available.. |