Property
Account |
| Property ID: | 17270 | Abbreviated Legal Description: | LENNONS & WILDWOOD LOT 9 BLK 4 |
| Parcel Number: | 360721630409 | Agent Code: | |
| Type: | Real | | |
| Tax Area: | 1 - OL-140-F | Land Use Code | 11 |
| Open Space: | N | DFL | N |
| Historic Property: | N | Remodel Property: | N |
| Multi-Family Redevelopment: | N | | |
| Township: | 7 | Section: | 21 |
| Range: | 36 |
Location |
| Address: | 1002 FRANCIS AVE WA 99362 | Mapsco: | |
| Neighborhood: | G-SFR | Map ID: | |
| Neighborhood CD: | 514011 |
Owner |
| Name: | KINCAID TERRY M II & MORGAN L | Owner ID: | 70255 |
| Mailing Address: | 1002 FRANCIS AVE WALLA WALLA, WA 99362 | % Ownership: | 100.0000000000% |
| | | Exemptions: | |
Taxes and Assessment Details
Property Tax Information as of
02/21/2026
Click on "Statement Details" to expand or collapse a tax statement.
* Please enter a valid date ** Please enter a valid date *
Statement Details |
| | TOTAL: | $0.00 | $0.00 | $0.00 | $0.00 | $0.00 | $0.00 |
|
| | $0.00 | $0.00 | $0.00 | $0.00 | $0.00 | $0.00 |
Values
| (+) Improvement Homesite Value: | + | $0 | |
| (+) Improvement Non-Homesite Value: | + | $369,260 | |
| (+) Land Homesite Value: | + | $0 | |
| (+) Land Non-Homesite Value: | + | $43,500 | |
| (+) Curr Use (HS): | + | $0 | $0 |
| (+) Curr Use (NHS): | + | $0 | $0 |
| | | -------------------------- | |
| (=) Market Value: | = | $412,760 | |
| (–) Productivity Loss: | – | $0 | |
| | | -------------------------- | |
| (=) Subtotal: | = | $412,760 | |
| (+) Senior Appraised Value: | + | $0 | |
| (+) Non-Senior Appraised Value: | + | $412,760 | |
| | | -------------------------- | |
| (=) Total Appraised Value: | = | $412,760 | |
| (–) Senior Exemption Loss: | – | $0 | |
| (–) Exemption Loss: | – | $0 | |
| | | -------------------------- | |
| (=) Taxable Value: | = | $412,760 | |
Taxing Jurisdiction
| Owner: | KINCAID TERRY M II & MORGAN L | | |
| % Ownership: | 100.0000000000% | | |
| Total Value: | $412,760 | | |
| Tax Area: | 1 - OL-140-F |
| CERFD | CURRENT EXPENSE REFUND 010 | 0.0000000000 | $412,760 | $412,760 | $0.00 | | |
| CURREXP | CURRENT EXPENSE 010 | 1.0175366760 | $412,760 | $412,760 | $420.00 | | |
| HUMNSERV | HUMAN SERVICES 119 | 0.0250000000 | $412,760 | $412,760 | $10.32 | | |
| SLDREL | SOLDIERS RELIEF 121 | 0.0155990005 | $412,760 | $412,760 | $6.44 | | |
| EMERGSER | EMS 147 | 0.3792580840 | $412,760 | $412,760 | $156.54 | | |
| EMSRFD | EMS REFUND 147 | 0.0000000000 | $412,760 | $412,760 | $0.00 | | |
| PORTRFD | PORT REFUND 640 | 0.0000000000 | $412,760 | $412,760 | $0.00 | | |
| PORTWWGEN | PORT OF WW 640 | 0.2460186015 | $412,760 | $412,760 | $101.55 | | |
| SD140BOND | SD #140 BOND 764 | 0.8342371393 | $412,760 | $412,760 | $344.34 | | |
| SD140GEN | SD #140 GENERAL 760 | 2.0646500647 | $412,760 | $412,760 | $852.20 | | |
| ST2 | STATE SCHOOL PART 2 600 | 0.8131451643 | $412,760 | $412,760 | $335.63 | | |
| STATESCHL | STATE SCHOOL 600 | 1.5158548041 | $412,760 | $412,760 | $625.68 | | |
| STREFUND | STATE REFUND LEVY 603 | 0.0000000000 | $412,760 | $412,760 | $0.00 | | |
| CWWBOND | C OF WW BOND 643 | 0.2760494372 | $412,760 | $412,760 | $113.94 | | |
| CWWGEN | CITY OF WW 631 | 1.6100204973 | $412,760 | $412,760 | $664.55 | | |
| CWWRFD | CITY OF WALLA WALLA REFUND 631 | 0.0000000000 | $412,760 | $412,760 | $0.00 | | |
| | Total Tax Rate: | 8.7973694689 | | | | | |
| | | | | Taxes w/Current Exemptions: | $3,631.19 | | |
| | | | | Taxes w/o Exemptions: | $3,631.19 | | |
Improvement / Building
| Improvement #1: | RESIDENTIAL | State Code: | 11 | 1120.0 sqft | Value: | $369,260 |
| Exterior Wall: | SIDING | Heating/Cooling: | WARM & COOLED AIR | | Number of Bathrooms: | 2 | Number of Bedrooms: | 3 | | Plumbing: | 10 | Roof Covering: | COMP SHINGLE |
|
| | Type | Description | Class CD | Sub Class CD | Year Built | Area |
| | MA | Main Area | 1 | 30 | 1920 | 1120.0 |
| | RCD | WOOD DECK W/ROOF, CEILED | 1 | 30 | 0 | 192.0 |
| | SI1 | SITE IMPROVEMENT | 1 | 30 | 0 | 2.5 |
| | BASE | BASEMENT | 1 | 30 | 1920 | 960.0 |
| | BPF | BASEMENT -PARTITIONED FINISH | 1 | 30 | 1920 | 960.0 |
| | DTG | Detached Garage | 1 | 30 | 1920 | 320.0 |
Sketch
Property Image
Land
| 1 | RES 1 | Converted: Residential | 0.1377 | 6000.00 | 0.00 | 0.00 | 1.00 | $43,500 | $0 |
Roll Value History
| 2026 | N/A | N/A | N/A | N/A | N/A |
| 2025 | $327,220 | $66,000 | $0 | $393,220 | $393,220 |
| 2024 | $327,220 | $66,000 | $0 | $393,220 | $393,220 |
| 2023 | $369,260 | $43,500 | $0 | $412,760 | $412,760 |
| 2022 | $369,260 | $43,500 | $0 | $412,760 | $412,760 |
| 2021 | $295,410 | $43,500 | $0 | $338,910 | $338,910 |
| 2020 | $236,330 | $43,500 | $0 | $279,830 | $279,830 |
| 2019 | $236,330 | $43,500 | $0 | $279,830 | $279,830 |
| 2018 | $205,500 | $43,500 | $0 | $249,000 | $249,000 |
| 2017 | $211,600 | $27,000 | $0 | $238,600 | $238,600 |
| 2016 | $184,000 | $27,000 | $0 | $211,000 | $211,000 |
| 2015 | $184,000 | $27,000 | $0 | $211,000 | $211,000 |
| 2014 | $184,000 | $27,000 | $0 | $211,000 | $211,000 |
| 2013 | $184,000 | $27,000 | $0 | $211,000 | $211,000 |
| 2012 | $195,600 | $27,000 | $0 | $0 | $0 |
| 2011 | $195,600 | $27,000 | $0 | $0 | $0 |
| 2010 | $185,000 | $27,000 | $0 | $0 | $0 |
| 2009 | $208,500 | $27,000 | $0 | $0 | $0 |
| 2008 | $123,200 | $24,000 | $0 | $0 | $0 |
| 2007 | $123,200 | $24,000 | $0 | $0 | $0 |
Deed and Sales History
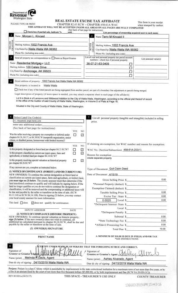
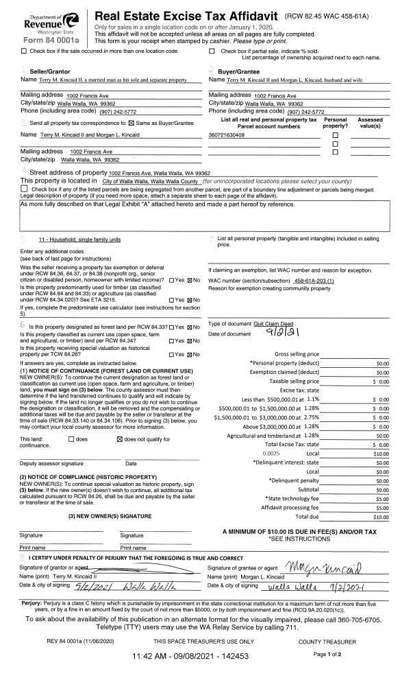
| 1 | 09/02/2021 | QCD | QUIT CLAIM DEED | KINCAID TERRY M II | KINCAID TERRY M II & MORGAN L | | | $0.00 | 142453 | 2021-11035 |
| 2 | 04/15/2019 | QCD | QUIT CLAIM DEED | KINCAID MORGAN L | KINCAID TERRY M II | | | | 136683 | 2019-02382 |
| 3 | 04/11/2019 | SWD | STATUTORY WARRANTY DEED | DUNN MARVIN G & ARDYS M | KINCAID TERRY M II | | | $300,000.00 | 136682 | 2019-02381 |
| 4 | 04/27/2007 | WARRANTY D | WARRANTY DEED | DAVIS, KRISTA A MC CORKLE | DUNN, MARVIN G & ARDYS M | | | $247,000.00 | 112707 | 2007-04714 |
| 5 | 07/19/2002 | WARRANTY D | WARRANTY DEED | | | | | $122,000.00 | 99977 | 2002-0008170 |
Payout Agreement
| No payout information available.. |