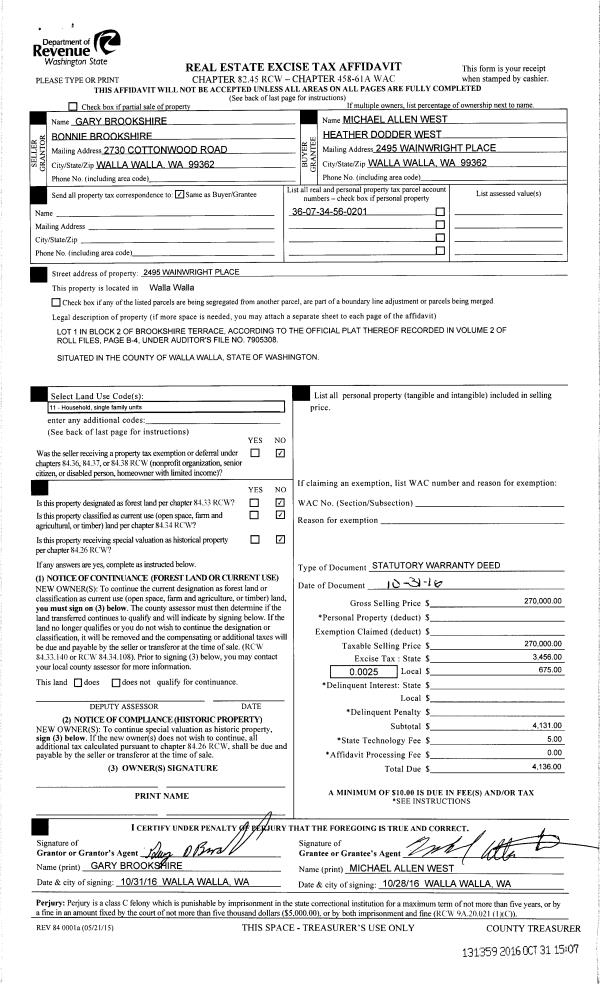
Property
Account |
| Property ID: | 17262 | Abbreviated Legal Description: | BROOKSHIRE TERRACE LOT 1 BLK 2 |
| Parcel Number: | 360734560201 | Agent Code: | |
| Type: | Real | | |
| Tax Area: | 101 - 140-4 | Land Use Code | 11 |
| Open Space: | N | DFL | N |
| Historic Property: | N | Remodel Property: | N |
| Multi-Family Redevelopment: | N | | |
| Township: | 7 | Section: | 34 |
| Range: | 36 |
Location |
| Address: | 2495 WAINWRIGHT PL WA 99362 | Mapsco: | |
| Neighborhood: | VG Res Rural/City Inf | Map ID: | |
| Neighborhood CD: | 415012 |
Owner |
| Name: | RICHARD TIMOTHY PAUL | Owner ID: | 65950 |
| Mailing Address: | KINDALL JEAN GEHRETT RICHARD 2495 WAINWRIGHT PL WALLA WALLA, WA 99362 | % Ownership: | 100.0000000000% |
| | | Exemptions: | |
Taxes and Assessment Details
Values
| (+) Improvement Homesite Value: | + | $0 | |
| (+) Improvement Non-Homesite Value: | + | $267,980 | |
| (+) Land Homesite Value: | + | $0 | |
| (+) Land Non-Homesite Value: | + | $173,240 | |
| (+) Curr Use (HS): | + | $0 | $0 |
| (+) Curr Use (NHS): | + | $0 | $0 |
| | | -------------------------- | |
| (=) Market Value: | = | $441,220 | |
| (–) Productivity Loss: | – | $0 | |
| | | -------------------------- | |
| (=) Subtotal: | = | $441,220 | |
| (+) Senior Appraised Value: | + | $0 | |
| (+) Non-Senior Appraised Value: | + | $441,220 | |
| | | -------------------------- | |
| (=) Total Appraised Value: | = | $441,220 | |
| (–) Senior Exemption Loss: | – | $0 | |
| (–) Exemption Loss: | – | $0 | |
| | | -------------------------- | |
| (=) Taxable Value: | = | $441,220 | |
Taxing Jurisdiction
| Owner: | RICHARD TIMOTHY PAUL | | |
| % Ownership: | 100.0000000000% | | |
| Total Value: | $441,220 | | |
| Tax Area: | 101 - 140-4 |
| CERFD | CURRENT EXPENSE REFUND 010 | 0.0000000000 | $441,220 | $441,220 | $0.00 | | |
| CURREXP | CURRENT EXPENSE 010 | 1.0175366760 | $441,220 | $441,220 | $448.96 | | |
| HUMNSERV | HUMAN SERVICES 119 | 0.0250000000 | $441,220 | $441,220 | $11.03 | | |
| SLDREL | SOLDIERS RELIEF 121 | 0.0155990005 | $441,220 | $441,220 | $6.88 | | |
| EMERGSER | EMS 147 | 0.3792580840 | $441,220 | $441,220 | $167.34 | | |
| EMSRFD | EMS REFUND 147 | 0.0000000000 | $441,220 | $441,220 | $0.00 | | |
| FD4EXP | FD #4 EXPENSE 686 | 0.8836993059 | $441,220 | $441,220 | $389.91 | | |
| RLBRFD | RURAL LIBRARY REFUND 623 | 0.0000000000 | $441,220 | $441,220 | $0.00 | | |
| RURALLIB | RURAL LIBRARY 623 | 0.3710609029 | $441,220 | $441,220 | $163.72 | | |
| PORTRFD | PORT REFUND 640 | 0.0000000000 | $441,220 | $441,220 | $0.00 | | |
| PORTWWGEN | PORT OF WW 640 | 0.2460186015 | $441,220 | $441,220 | $108.55 | | |
| SD140BOND | SD #140 BOND 764 | 0.8342371393 | $441,220 | $441,220 | $368.08 | | |
| SD140GEN | SD #140 GENERAL 760 | 2.0646500647 | $441,220 | $441,220 | $910.96 | | |
| ST2 | STATE SCHOOL PART 2 600 | 0.8131451643 | $441,220 | $441,220 | $358.78 | | |
| STATESCHL | STATE SCHOOL 600 | 1.5158548041 | $441,220 | $441,220 | $668.83 | | |
| STREFUND | STATE REFUND LEVY 603 | 0.0000000000 | $441,220 | $441,220 | $0.00 | | |
| COROAD | COUNTY ROAD 115 | 1.6549953990 | $441,220 | $441,220 | $730.22 | | |
| CRPRD | COUNTY ROAD REFUND 115 | 0.0000000000 | $441,220 | $441,220 | $0.00 | | |
| | Total Tax Rate: | 9.8210551422 | | | | | |
| | | | | Taxes w/Current Exemptions: | $4,333.26 | | |
| | | | | Taxes w/o Exemptions: | $4,333.26 | | |
Improvement / Building
| Improvement #1: | RESIDENTIAL | State Code: | 11 | 1282.0 sqft | Value: | $267,980 |
| Exterior Wall: | SIDING | Heating/Cooling: | WARM & COOLED AIR | | Number of Bathrooms: | 3 | Number of Bedrooms: | 3 | | Plumbing: | 12 | Roof Covering: | BITUMEN MEMBRANE |
|
| | Type | Description | Class CD | Sub Class CD | Year Built | Area |
| | MA | Main Area | 1 | 30 | 1976 | 1282.0 |
| | SI1 | SITE IMPROVEMENT | 1 | 30 | 1976 | 3.0 |
| | BASE | BASEMENT | 1 | 30 | 1976 | 1102.0 |
| | BPF | BASEMENT -PARTITIONED FINISH | 1 | 30 | 1976 | 802.0 |
| | S1F | Single One Story Fireplace | 1 | 30 | 1976 | 1.0 |
| | STG1 | Sub Terrain Garage Single | 1 | 30 | 1976 | 1.0 |
| | WOD | Wood Deck | 1 | 30 | 1976 | 64.0 |
| | CPC | COVERED CARPORT/PATIO | 1 | 30 | 1976 | 200.0 |
| | CPC | COVERED CARPORT/PATIO | 1 | 30 | 1976 | 360.0 |
| | WOD | Wood Deck | 1 | 30 | 2019 | 526.0 |
| | POL1 | POLE BUILDING-GRAVEL | 1 | 30 | 1976 | 1152.0 |
Sketch
Property Image
Land
| 1 | RES 1 | Converted: Residential | 1.1300 | 0.00 | 0.00 | 0.00 | 1.00 | $173,240 | $0 |
Roll Value History
| 2026 | N/A | N/A | N/A | N/A | N/A |
| 2025 | $294,780 | $173,240 | $0 | $468,020 | $468,020 |
| 2024 | $267,980 | $173,240 | $0 | $441,220 | $441,220 |
| 2023 | $267,980 | $173,240 | $0 | $441,220 | $441,220 |
| 2022 | $327,100 | $114,120 | $0 | $441,220 | $441,220 |
| 2021 | $204,440 | $114,120 | $0 | $318,560 | $318,560 |
| 2020 | $157,260 | $114,120 | $0 | $271,380 | $271,380 |
| 2019 | $157,260 | $114,120 | $0 | $271,380 | $271,380 |
| 2018 | $142,960 | $114,120 | $0 | $257,080 | $257,080 |
| 2017 | $142,960 | $114,120 | $0 | $257,080 | $257,080 |
| 2016 | $150,500 | $90,500 | $0 | $241,000 | $241,000 |
| 2015 | $143,330 | $90,500 | $0 | $233,830 | $233,830 |
| 2014 | $130,300 | $90,500 | $0 | $220,800 | $220,800 |
| 2013 | $130,300 | $90,500 | $0 | $220,800 | $220,800 |
| 2012 | $130,300 | $90,500 | $0 | $0 | $0 |
| 2011 | $102,700 | $120,500 | $0 | $0 | $0 |
| 2010 | $147,200 | $76,000 | $0 | $0 | $0 |
| 2009 | $172,000 | $76,000 | $0 | $0 | $0 |
| 2008 | $172,000 | $76,000 | $0 | $0 | $0 |
| 2007 | $113,400 | $44,800 | $0 | $0 | $0 |
Deed and Sales History
| 1 | 09/17/2019 | SWD | STATUTORY WARRANTY DEED | WEST MICHAEL ALLEN & HEATHER DODDER | RICHARD TIMOTHY PAUL | | | $355,000.00 | 137706 | 2019-07288 |
| 2 | 10/31/2016 | SWD | STATUTORY WARRANTY DEED | BROOKSHIRE GARY & BONNIE | WEST MICHAEL ALLEN & HEATHER DODDER | | | $270,000.00 | 131359 | 2016-09021 |
| 3 | 04/18/2007 | WARRANTY D | WARRANTY DEED | BROOKSHIRE, RONALD E & PEGGY | BROOKSHIRE, GARY & BONNIE | | | $160,000.00 | 112651 | 2007-04344 |
| 4 | 06/07/1979 | WARRANTY D | WARRANTY DEED | | | | | $0.00 | 0 | 7905-308 |
Payout Agreement
| No payout information available.. |