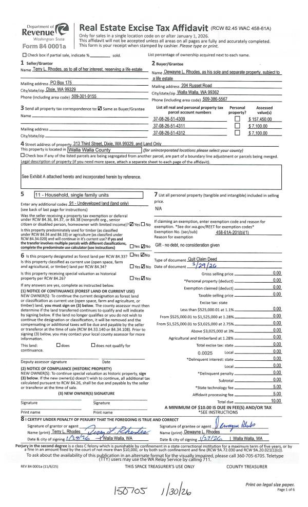
Property
Account |
| Property ID: | 17251 | Abbreviated Legal Description: | DIXIE LOTS 9 AND 10 BLK 43 |
| Parcel Number: | 370826514309 | Agent Code: | |
| Type: | Real | | |
| Tax Area: | 310 - 101-8 | Land Use Code | 11 |
| Open Space: | N | DFL | N |
| Historic Property: | N | Remodel Property: | N |
| Multi-Family Redevelopment: | N | | |
| Township: | 8 | Section: | 26 |
| Range: | 37 |
Location |
| Address: | 313 THIRD ST WA 99329 | Mapsco: | |
| Neighborhood: | Cycle 4 Dixie (SF) | Map ID: | |
| Neighborhood CD: | 413511 |
Owner |
| Name: | RHODES TERRY L | Owner ID: | 69606 |
| Mailing Address: | PO BOX 175 DIXIE, WA 99329 | % Ownership: | 100.0000000000% |
| | | Exemptions: | SNR/DSBL |
Taxes and Assessment Details
Values
| (+) Improvement Homesite Value: | + | $127,450 | |
| (+) Improvement Non-Homesite Value: | + | $0 | |
| (+) Land Homesite Value: | + | $30,000 | |
| (+) Land Non-Homesite Value: | + | $0 | |
| (+) Curr Use (HS): | + | $0 | $0 |
| (+) Curr Use (NHS): | + | $0 | $0 |
| | | -------------------------- | |
| (=) Market Value: | = | $157,450 | |
| (–) Productivity Loss: | – | $0 | |
| | | -------------------------- | |
| (=) Subtotal: | = | $157,450 | |
| (+) Senior Appraised Value: | + | $89,450 | |
| (+) Non-Senior Appraised Value: | + | $0 | |
| | | -------------------------- | |
| (=) Total Appraised Value: | = | $89,450 | |
| (–) Senior Exemption Loss: | – | $60,000 | |
| (–) Exemption Loss: | – | $0 | |
| | | -------------------------- | |
| (=) Taxable Value: | = | $29,450 | |
Taxing Jurisdiction
| Owner: | RHODES TERRY L | | |
| % Ownership: | 100.0000000000% | | |
| Total Value: | $157,450 | | |
| Tax Area: | 310 - 101-8 |
| CERFD | CURRENT EXPENSE REFUND 010 | 0.0000000000 | $157,450 | $29,450 | $0.00 | | |
| CURREXP | CURRENT EXPENSE 010 | 1.0175366760 | $157,450 | $29,450 | $29.97 | | |
| HUMNSERV | HUMAN SERVICES 119 | 0.0250000000 | $157,450 | $29,450 | $0.74 | | |
| SLDREL | SOLDIERS RELIEF 121 | 0.0155990005 | $157,450 | $29,450 | $0.46 | | |
| EMERGSER | EMS 147 | 0.3792580840 | $157,450 | $29,450 | $11.17 | | |
| EMSRFD | EMS REFUND 147 | 0.0000000000 | $157,450 | $29,450 | $0.00 | | |
| FD8EXP | FD #8 EXPENSE 697 | 0.6647992540 | $157,450 | $29,450 | $19.58 | | |
| RLBRFD | RURAL LIBRARY REFUND 623 | 0.0000000000 | $157,450 | $29,450 | $0.00 | | |
| RURALLIB | RURAL LIBRARY 623 | 0.3710609029 | $157,450 | $29,450 | $10.93 | | |
| PORTRFD | PORT REFUND 640 | 0.0000000000 | $157,450 | $29,450 | $0.00 | | |
| PORTWWGEN | PORT OF WW 640 | 0.2460186015 | $157,450 | $29,450 | $7.25 | | |
| SD101CAP | SD #101 CAP 752 | 0.0000000000 | $157,450 | $0 | $0.00 | | |
| SD101GEN | SD #101 GENERAL 750 | 0.0000000000 | $157,450 | $0 | $0.00 | | |
| ST2 | STATE SCHOOL PART 2 600 | 0.0000000000 | $157,450 | $0 | $0.00 | | |
| STATESCHL | STATE SCHOOL 600 | 1.5158548041 | $157,450 | $29,450 | $44.64 | | |
| STREFUND | STATE REFUND LEVY 603 | 0.0000000000 | $157,450 | $29,450 | $0.00 | | |
| COROAD | COUNTY ROAD 115 | 1.6549953990 | $157,450 | $29,450 | $48.74 | | |
| CRPRD | COUNTY ROAD REFUND 115 | 0.0000000000 | $157,450 | $29,450 | $0.00 | | |
| | Total Tax Rate: | 5.8901227220 | | | | | |
| | | | | Taxes w/Current Exemptions: | $173.48 | | |
| | | | | Taxes w/o Exemptions: | $1,265.62 | | |
Improvement / Building
| Improvement #1: | RESIDENTIAL | State Code: | 11 | 1192.0 sqft | Value: | $127,450 |
| Exterior Wall: | SIDING | Foundation: | POST & PIER | | Heating/Cooling: | FLOOR FURNACE | Number of Bathrooms: | 1 | | Number of Bedrooms: | 3 | Plumbing: | 6 | | Roof Covering: | COMP SHINGLE |   |   |
|
| | Type | Description | Class CD | Sub Class CD | Year Built | Area |
| | MA | Main Area | 1 | 20 | 1949 | 1192.0 |
| | SI1 | SITE IMPROVEMENT | 1 | 20 | 1949 | 1.0 |
| | CPC | COVERED CARPORT/PATIO | 1 | 20 | 1949 | 234.0 |
| | DTG | Detached Garage | 1 | 20 | 1949 | 1020.0 |
Sketch
Property Image
Land
| 1 | RES 1 | Converted: Residential | 0.2296 | 10000.00 | 0.00 | 0.00 | 1.00 | $30,000 | $0 |
Roll Value History
| 2026 | N/A | N/A | N/A | N/A | N/A |
| 2025 | $127,450 | $30,000 | $0 | $157,450 | $29,450 |
| 2024 | $127,450 | $30,000 | $0 | $157,450 | $29,450 |
| 2023 | $127,450 | $30,000 | $0 | $157,450 | $29,450 |
| 2022 | $116,020 | $25,000 | $0 | $141,020 | $29,450 |
| 2021 | $64,450 | $25,000 | $0 | $89,450 | $29,450 |
| 2020 | $40,280 | $25,000 | $0 | $65,280 | $65,280 |
| 2019 | $40,280 | $25,000 | $0 | $65,280 | $65,280 |
| 2018 | $40,280 | $25,000 | $0 | $65,280 | $65,280 |
| 2017 | $40,280 | $25,000 | $0 | $65,280 | $65,280 |
| 2016 | $32,400 | $25,000 | $0 | $57,400 | $57,400 |
| 2015 | $32,400 | $25,000 | $0 | $57,400 | $57,400 |
| 2014 | $32,400 | $25,000 | $0 | $57,400 | $57,400 |
| 2013 | $32,400 | $25,000 | $0 | $57,400 | $57,400 |
| 2012 | $32,400 | $25,000 | $0 | $0 | $0 |
| 2011 | $29,700 | $25,000 | $0 | $0 | $0 |
| 2010 | $29,700 | $25,000 | $0 | $0 | $0 |
| 2009 | $41,200 | $13,500 | $0 | $0 | $0 |
| 2008 | $28,600 | $13,500 | $0 | $0 | $0 |
| 2007 | $28,600 | $13,500 | $0 | $0 | $0 |
Deed and Sales History
| 1 | 06/15/2021 | AFFIDAVIT | AFFIDAVIT | RHODES HAROLD D & TERRY L | RHODES TERRY L | | 3 PARCELS | $0.00 | 141818 | 2021-07343 |
| 2 | 09/03/1985 | WARRANTY D | WARRANTY DEED | | | | | | 0 | 1528-506080 |
Payout Agreement
| No payout information available.. |