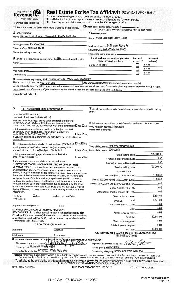
Property
Account |
| Property ID: | 17240 | Abbreviated Legal Description: | TABLEROCK SUBDIVISION II LOT 50 |
| Parcel Number: | 360604590050 | Agent Code: | |
| Type: | Real | | |
| Tax Area: | 5 - OL-140 | Land Use Code | 11 |
| Open Space: | N | DFL | N |
| Historic Property: | N | Remodel Property: | N |
| Multi-Family Redevelopment: | N | | |
| Township: | 6 | Section: | 4 |
| Range: | 36 |
Location |
| Address: | 254 THUNDER RIDGE RD WA 99362 | Mapsco: | |
| Neighborhood: | VG Res Rural/City Inf | Map ID: | |
| Neighborhood CD: | 615012 |
Owner |
| Name: | CATON WALTER & LAURIE | Owner ID: | 69838 |
| Mailing Address: | 254 THUNDER RIDGE RD WALLA WALLA, WA 99362 | % Ownership: | 100.0000000000% |
| | | Exemptions: | |
Taxes and Assessment Details
Property Tax Information as of
02/21/2026
Click on "Statement Details" to expand or collapse a tax statement.
* Please enter a valid date ** Please enter a valid date *
Statement Details |
| | TOTAL: | $0.00 | $0.00 | $0.00 | $0.00 | $0.00 | $0.00 |
|
| | $0.00 | $0.00 | $0.00 | $0.00 | $0.00 | $0.00 |
Values
| (+) Improvement Homesite Value: | + | $0 | |
| (+) Improvement Non-Homesite Value: | + | $632,460 | |
| (+) Land Homesite Value: | + | $0 | |
| (+) Land Non-Homesite Value: | + | $120,000 | |
| (+) Curr Use (HS): | + | $0 | $0 |
| (+) Curr Use (NHS): | + | $0 | $0 |
| | | -------------------------- | |
| (=) Market Value: | = | $752,460 | |
| (–) Productivity Loss: | – | $0 | |
| | | -------------------------- | |
| (=) Subtotal: | = | $752,460 | |
| (+) Senior Appraised Value: | + | $0 | |
| (+) Non-Senior Appraised Value: | + | $752,460 | |
| | | -------------------------- | |
| (=) Total Appraised Value: | = | $752,460 | |
| (–) Senior Exemption Loss: | – | $0 | |
| (–) Exemption Loss: | – | $0 | |
| | | -------------------------- | |
| (=) Taxable Value: | = | $752,460 | |
Taxing Jurisdiction
| Owner: | CATON WALTER & LAURIE | | |
| % Ownership: | 100.0000000000% | | |
| Total Value: | $752,460 | | |
| Tax Area: | 5 - OL-140 |
| CERFD | CURRENT EXPENSE REFUND 010 | 0.0000000000 | $752,460 | $752,460 | $0.00 | | |
| CURREXP | CURRENT EXPENSE 010 | 1.0175366760 | $752,460 | $752,460 | $765.66 | | |
| HUMNSERV | HUMAN SERVICES 119 | 0.0250000000 | $752,460 | $752,460 | $18.81 | | |
| SLDREL | SOLDIERS RELIEF 121 | 0.0155990005 | $752,460 | $752,460 | $11.74 | | |
| EMERGSER | EMS 147 | 0.3792580840 | $752,460 | $752,460 | $285.38 | | |
| EMSRFD | EMS REFUND 147 | 0.0000000000 | $752,460 | $752,460 | $0.00 | | |
| PORTRFD | PORT REFUND 640 | 0.0000000000 | $752,460 | $752,460 | $0.00 | | |
| PORTWWGEN | PORT OF WW 640 | 0.2460186015 | $752,460 | $752,460 | $185.12 | | |
| SD140BOND | SD #140 BOND 764 | 0.8342371393 | $752,460 | $752,460 | $627.73 | | |
| SD140GEN | SD #140 GENERAL 760 | 2.0646500647 | $752,460 | $752,460 | $1,553.57 | | |
| ST2 | STATE SCHOOL PART 2 600 | 0.8131451643 | $752,460 | $752,460 | $611.86 | | |
| STATESCHL | STATE SCHOOL 600 | 1.5158548041 | $752,460 | $752,460 | $1,140.62 | | |
| STREFUND | STATE REFUND LEVY 603 | 0.0000000000 | $752,460 | $752,460 | $0.00 | | |
| CWWBOND | C OF WW BOND 643 | 0.2760494372 | $752,460 | $752,460 | $207.72 | | |
| CWWGEN | CITY OF WW 631 | 1.6100204973 | $752,460 | $752,460 | $1,211.48 | | |
| CWWRFD | CITY OF WALLA WALLA REFUND 631 | 0.0000000000 | $752,460 | $752,460 | $0.00 | | |
| | Total Tax Rate: | 8.7973694689 | | | | | |
| | | | | Taxes w/Current Exemptions: | $6,619.69 | | |
| | | | | Taxes w/o Exemptions: | $6,619.69 | | |
Improvement / Building
| Improvement #1: | RESIDENTIAL | State Code: | 11 | 2450.0 sqft | Value: | $632,460 |
| Exterior Wall: | STUCCO | Heating/Cooling: | WARM & COOLED AIR | | Number of Bathrooms: | 3 | Number of Bedrooms: | 4 | | Plumbing: | 15 | Roof Covering: | COMP SHINGLE |
|
| | Type | Description | Class CD | Sub Class CD | Year Built | Area |
| | MA | Main Area | 4 | 50 | 2007 | 2450.0 |
| | SI1 | SITE IMPROVEMENT | 4 | 50 | 2007 | 6.0 |
| | UPFL | Upper Floor (included in main area) | 4 | 50 | 2007 | 597.0 |
| | ATG | Attached Garage | 4 | 50 | 2007 | 748.0 |
| | RPC | OPEN PORCH W/ROOF , CEILED | 4 | 50 | 2007 | 66.0 |
| | RPC | OPEN PORCH W/ROOF , CEILED | 4 | 50 | 2007 | 178.0 |
| | BONU | BONUS ROOM W/FINISH | 4 | 50 | 2007 | 377.0 |
| | GFP | GAS FIREPLACE | 4 | 50 | 2007 | 1.0 |
Sketch
Property Image
Land
| 1 | RES 1 | Converted: Residential | 0.4273 | 18613.00 | 0.00 | 0.00 | 1.00 | $120,000 | $0 |
Roll Value History
| 2026 | N/A | N/A | N/A | N/A | N/A |
| 2025 | $637,660 | $180,000 | $0 | $817,660 | $817,660 |
| 2024 | $632,460 | $120,000 | $0 | $752,460 | $752,460 |
| 2023 | $632,460 | $120,000 | $0 | $752,460 | $752,460 |
| 2022 | $632,460 | $95,000 | $0 | $727,460 | $727,460 |
| 2021 | $505,970 | $95,000 | $0 | $600,970 | $600,970 |
| 2020 | $439,970 | $95,000 | $0 | $534,970 | $534,970 |
| 2019 | $439,970 | $95,000 | $0 | $534,970 | $534,970 |
| 2018 | $388,560 | $50,000 | $0 | $438,560 | $438,560 |
| 2017 | $388,560 | $50,000 | $0 | $438,560 | $438,560 |
| 2016 | $388,560 | $50,000 | $0 | $438,560 | $438,560 |
| 2015 | $388,560 | $50,000 | $0 | $438,560 | $438,560 |
| 2014 | $323,800 | $50,000 | $0 | $373,800 | $373,800 |
| 2013 | $323,800 | $50,000 | $0 | $373,800 | $373,800 |
| 2012 | $309,400 | $65,000 | $0 | $0 | $0 |
| 2011 | $280,400 | $94,000 | $0 | $0 | $0 |
| 2010 | $280,400 | $94,000 | $0 | $0 | $0 |
| 2009 | $298,000 | $94,000 | $0 | $0 | $0 |
| 2008 | $298,000 | $94,000 | $0 | $0 | $0 |
| 2007 | $0 | $600 | $0 | $0 | $0 |
Deed and Sales History
| 1 | 07/16/2021 | SWD | STATUTORY WARRANTY DEED | MINCKLER MICHAEL R | CATON WALTER & LAURIE | | | $735,000.00 | 142053 | 2021-08666 |
| 2 | 07/27/2018 | SWD | STATUTORY WARRANTY DEED | MATSON DENNIS D & MELANIE J | MINCKLER MICHAEL R | | | $549,000.00 | 135207 | 2018-06111 |
| 3 | 04/13/2015 | SWD | STATUTORY WARRANTY DEED | COSMA CRISTIAN & MIHAELA | MATSON DENNIS D & MELANIE J | | | $443,900.00 | 127768 | 2015-02990 |
| 4 | 06/04/2008 | WARRANTY D | WARRANTY DEED | CLAYTON, RAYMOND M & MELISSA | COSMA, CRISTIAN & MIHAELA | | | $459,000.00 | 115128 | 2008-05625 |
| 5 | 10/12/2005 | WARRANTY D | WARRANTY DEED | GATEWOOD, W PAUL & CAROL | CLAYTON, RAYMOND M & MELISSA | | | $77,500.00 | 108748 | 2005-12752 |
Payout Agreement
| No payout information available.. |