Property
Account |
| Property ID: | 17238 | Abbreviated Legal Description: | MTN VIEW LESS WLY 25' LOT 24 BLK 13; LOT 25 BLK 13 |
| Parcel Number: | 360729851325 | Agent Code: | |
| Type: | Real | | |
| Tax Area: | 1 - OL-140-F | Land Use Code | 11 |
| Open Space: | N | DFL | N |
| Historic Property: | N | Remodel Property: | N |
| Multi-Family Redevelopment: | N | | |
| Township: | 7 | Section: | 29 |
| Range: | 36 |
Location |
| Address: | 227 SHERIDAN RD WA 99362 | Mapsco: | |
| Neighborhood: | A Res | Map ID: | |
| Neighborhood CD: | 613011 |
Owner |
| Name: | JILL HALLIBURTON TRUST | Owner ID: | 73821 |
| Mailing Address: | JILL HALLIBURTON TRUSTEE 227 SHERIDAN RD WALLA WALLA, WA 99362 | % Ownership: | 100.0000000000% |
| | | Exemptions: | |
Taxes and Assessment Details
Values
| (+) Improvement Homesite Value: | + | $278,750 | |
| (+) Improvement Non-Homesite Value: | + | $0 | |
| (+) Land Homesite Value: | + | $86,400 | |
| (+) Land Non-Homesite Value: | + | $0 | |
| (+) Curr Use (HS): | + | $0 | $0 |
| (+) Curr Use (NHS): | + | $0 | $0 |
| | | -------------------------- | |
| (=) Market Value: | = | $365,150 | |
| (–) Productivity Loss: | – | $0 | |
| | | -------------------------- | |
| (=) Subtotal: | = | $365,150 | |
| (+) Senior Appraised Value: | + | $0 | |
| (+) Non-Senior Appraised Value: | + | $365,150 | |
| | | -------------------------- | |
| (=) Total Appraised Value: | = | $365,150 | |
| (–) Senior Exemption Loss: | – | $0 | |
| (–) Exemption Loss: | – | $0 | |
| | | -------------------------- | |
| (=) Taxable Value: | = | $365,150 | |
Taxing Jurisdiction
| Owner: | JILL HALLIBURTON TRUST | | |
| % Ownership: | 100.0000000000% | | |
| Total Value: | $365,150 | | |
| Tax Area: | 1 - OL-140-F |
| CERFD | CURRENT EXPENSE REFUND 010 | 0.0000000000 | $365,150 | $365,150 | $0.00 | | |
| CURREXP | CURRENT EXPENSE 010 | 1.0175366760 | $365,150 | $365,150 | $371.55 | | |
| HUMNSERV | HUMAN SERVICES 119 | 0.0250000000 | $365,150 | $365,150 | $9.13 | | |
| SLDREL | SOLDIERS RELIEF 121 | 0.0155990005 | $365,150 | $365,150 | $5.70 | | |
| EMERGSER | EMS 147 | 0.3792580840 | $365,150 | $365,150 | $138.49 | | |
| EMSRFD | EMS REFUND 147 | 0.0000000000 | $365,150 | $365,150 | $0.00 | | |
| PORTRFD | PORT REFUND 640 | 0.0000000000 | $365,150 | $365,150 | $0.00 | | |
| PORTWWGEN | PORT OF WW 640 | 0.2460186015 | $365,150 | $365,150 | $89.83 | | |
| SD140BOND | SD #140 BOND 764 | 0.8342371393 | $365,150 | $365,150 | $304.62 | | |
| SD140GEN | SD #140 GENERAL 760 | 2.0646500647 | $365,150 | $365,150 | $753.91 | | |
| ST2 | STATE SCHOOL PART 2 600 | 0.8131451643 | $365,150 | $365,150 | $296.92 | | |
| STATESCHL | STATE SCHOOL 600 | 1.5158548041 | $365,150 | $365,150 | $553.51 | | |
| STREFUND | STATE REFUND LEVY 603 | 0.0000000000 | $365,150 | $365,150 | $0.00 | | |
| CWWBOND | C OF WW BOND 643 | 0.2760494372 | $365,150 | $365,150 | $100.80 | | |
| CWWGEN | CITY OF WW 631 | 1.6100204973 | $365,150 | $365,150 | $587.90 | | |
| CWWRFD | CITY OF WALLA WALLA REFUND 631 | 0.0000000000 | $365,150 | $365,150 | $0.00 | | |
| | Total Tax Rate: | 8.7973694689 | | | | | |
| | | | | Taxes w/Current Exemptions: | $3,212.36 | | |
| | | | | Taxes w/o Exemptions: | $3,212.36 | | |
Improvement / Building
| Improvement #1: | RESIDENTIAL | State Code: | 11 | 1362.0 sqft | Value: | $278,750 |
| Exterior Wall: | SIDING | Heating/Cooling: | WARM & COOLED AIR | | Number of Bathrooms: | 2 | Number of Bedrooms: | 3 | | Plumbing: | 8 | Roof Covering: | COMP SHINGLE |
|
| | Type | Description | Class CD | Sub Class CD | Year Built | Area |
| | MA | Main Area | 1 | 30 | 1956 | 1362.0 |
| | SI1 | SITE IMPROVEMENT | 1 | 30 | 1956 | 2.0 |
| | BASE | BASEMENT | 1 | 30 | 1956 | 648.0 |
| | BPF | BASEMENT -PARTITIONED FINISH | 1 | 30 | 1956 | 400.0 |
| | ATG | Attached Garage | 1 | 30 | 1956 | 364.0 |
| | RPO | OPEN PORCH W/ROOF | 1 | 30 | 1956 | 42.0 |
| | D2F | Double 2 Story Fireplace | 1 | 30 | 1956 | 1.0 |
| | RPO | OPEN PORCH W/ROOF | 1 | 30 | 1956 | 432.0 |
Sketch
Property Image
Land
| 1 | RES 1 | Converted: Residential | 0.2204 | 9600.00 | 0.00 | 0.00 | 1.00 | $86,400 | $0 |
Roll Value History
| 2026 | N/A | N/A | N/A | N/A | N/A |
| 2025 | $269,370 | $105,600 | $0 | $374,970 | $374,970 |
| 2024 | $278,750 | $86,400 | $0 | $365,150 | $365,150 |
| 2023 | $278,750 | $86,400 | $0 | $365,150 | $365,150 |
| 2022 | $278,750 | $69,600 | $0 | $348,350 | $89,192 |
| 2021 | $192,240 | $69,600 | $0 | $261,840 | $89,192 |
| 2020 | $160,200 | $69,600 | $0 | $229,800 | $89,192 |
| 2019 | $160,200 | $69,600 | $0 | $229,800 | $89,192 |
| 2018 | $176,180 | $46,800 | $0 | $222,980 | $89,192 |
| 2017 | $160,160 | $46,800 | $0 | $206,960 | $206,960 |
| 2016 | $123,200 | $46,800 | $0 | $170,000 | $170,000 |
| 2015 | $123,200 | $46,800 | $0 | $170,000 | $170,000 |
| 2014 | $123,200 | $46,800 | $0 | $170,000 | $170,000 |
| 2013 | $123,200 | $46,800 | $0 | $170,000 | $170,000 |
| 2012 | $123,200 | $46,800 | $0 | $0 | $0 |
| 2011 | $123,200 | $46,800 | $0 | $0 | $0 |
| 2010 | $115,100 | $46,800 | $0 | $0 | $0 |
| 2009 | $133,100 | $46,800 | $0 | $0 | $0 |
| 2008 | $133,100 | $46,800 | $0 | $0 | $0 |
| 2007 | $91,100 | $24,300 | $0 | $0 | $0 |
Deed and Sales History
| 1 | 06/22/2023 | QCD | QUIT CLAIM DEED | HALLIBURTON DEBRA JILL | JILL HALLIBURTON TRUST | | | $0.00 | 146026 | 2023-03452 |
| 2 | 05/12/2023 | DPR | DEED OF PERSONAL REPRESENTATIVE | FORREST HILDA M ESTATE OF | HALLIBURTON DEBRA JILL | | | $375,000.00 | 145806 | 2023-02543 |
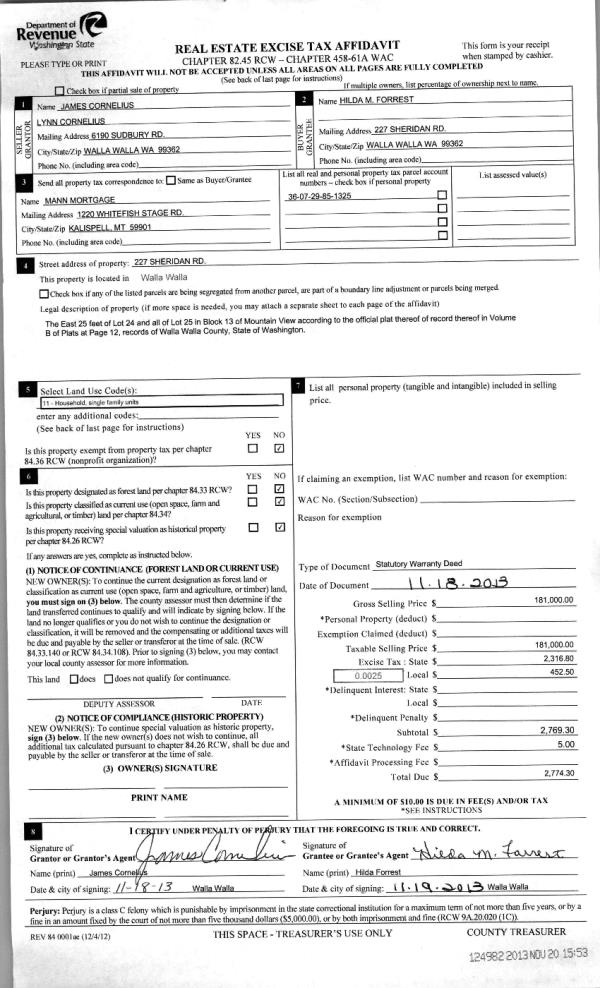
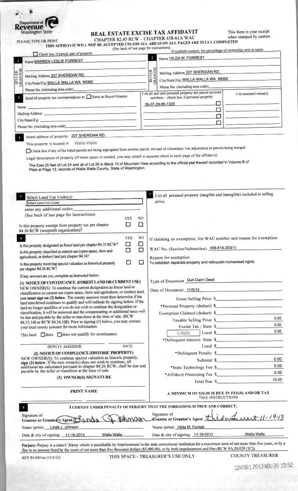
| 3 | 11/20/2013 | QCD | QUIT CLAIM DEED | FORREST HILDA M ESTATE OF | | | | | 0 | 2013-11374 |
| 4 | 11/20/2013 | WARRANTY D | WARRANTY DEED | CORNELIUS JAMES & LYNN | FORREST HILDA M ESTATE OF | | | $181,000.00 | 124982 | 2013-11375 |
| 5 | 04/10/2007 | QCD | QUIT CLAIM DEED | CORNELIUS, JAMES D | CORNELIUS JAMES & LYNN | | | | 112586 | 2007-03999 |
| 6 | 02/20/2004 | WARRANTY D | WARRANTY DEED | CORNELIUS, ELIZABETH D | CORNELIUS, JAMES D | | | | 0 | 02-3-00-98-8 |
| 7 | 06/28/1996 | WARRANTY D | WARRANTY DEED | | | | | $95,000.00 | 86391 | 2429-606466 |
Payout Agreement
| No payout information available.. |