Property
Account |
| Property ID: | 17222 | Abbreviated Legal Description: | BLALOCK ORCHARDS LOT 1 BLK 19, LESS W 121', LESS 24 X 33 IN NECORNER, LESS SELY PTN TO WW CO FOR RD |
| Parcel Number: | 350725521947 | Agent Code: | |
| Type: | Real | | |
| Tax Area: | 105 - 140-F-4 | Land Use Code | 11 |
| Open Space: | N | DFL | N |
| Historic Property: | N | Remodel Property: | N |
| Multi-Family Redevelopment: | N | | |
| Township: | 7 | Section: | 25 |
| Range: | 35 |
Location |
| Address: | 87 ELECTRIC AVE WA 99362 | Mapsco: | |
| Neighborhood: | A SFR Rural/City Infl | Map ID: | |
| Neighborhood CD: | 313012 |
Owner |
| Name: | OLTMAN JAKE & CRYSTAL | Owner ID: | 40234 |
| Mailing Address: | 87 ELECTRIC AVE WALLA WALLA, WA 99362 | % Ownership: | 100.0000000000% |
| | | Exemptions: | |
Taxes and Assessment Details
Values
| (+) Improvement Homesite Value: | + | $0 | |
| (+) Improvement Non-Homesite Value: | + | $359,360 | |
| (+) Land Homesite Value: | + | $0 | |
| (+) Land Non-Homesite Value: | + | $111,770 | |
| (+) Curr Use (HS): | + | $0 | $0 |
| (+) Curr Use (NHS): | + | $0 | $0 |
| | | -------------------------- | |
| (=) Market Value: | = | $471,130 | |
| (–) Productivity Loss: | – | $0 | |
| | | -------------------------- | |
| (=) Subtotal: | = | $471,130 | |
| (+) Senior Appraised Value: | + | $0 | |
| (+) Non-Senior Appraised Value: | + | $471,130 | |
| | | -------------------------- | |
| (=) Total Appraised Value: | = | $471,130 | |
| (–) Senior Exemption Loss: | – | $0 | |
| (–) Exemption Loss: | – | $0 | |
| | | -------------------------- | |
| (=) Taxable Value: | = | $471,130 | |
Taxing Jurisdiction
| Owner: | OLTMAN JAKE & CRYSTAL | | |
| % Ownership: | 100.0000000000% | | |
| Total Value: | $471,130 | | |
| Tax Area: | 105 - 140-F-4 |
| CERFD | CURRENT EXPENSE REFUND 010 | 0.0000000000 | $471,130 | $471,130 | $0.00 | | |
| CURREXP | CURRENT EXPENSE 010 | 1.0175366760 | $471,130 | $471,130 | $479.39 | | |
| HUMNSERV | HUMAN SERVICES 119 | 0.0250000000 | $471,130 | $471,130 | $11.78 | | |
| SLDREL | SOLDIERS RELIEF 121 | 0.0155990005 | $471,130 | $471,130 | $7.35 | | |
| EMERGSER | EMS 147 | 0.3792580840 | $471,130 | $471,130 | $178.68 | | |
| EMSRFD | EMS REFUND 147 | 0.0000000000 | $471,130 | $471,130 | $0.00 | | |
| FD4EXP | FD #4 EXPENSE 686 | 0.8836993059 | $471,130 | $471,130 | $416.34 | | |
| RLBRFD | RURAL LIBRARY REFUND 623 | 0.0000000000 | $471,130 | $471,130 | $0.00 | | |
| RURALLIB | RURAL LIBRARY 623 | 0.3710609029 | $471,130 | $471,130 | $174.82 | | |
| PORTRFD | PORT REFUND 640 | 0.0000000000 | $471,130 | $471,130 | $0.00 | | |
| PORTWWGEN | PORT OF WW 640 | 0.2460186015 | $471,130 | $471,130 | $115.91 | | |
| SD140BOND | SD #140 BOND 764 | 0.8342371393 | $471,130 | $471,130 | $393.03 | | |
| SD140GEN | SD #140 GENERAL 760 | 2.0646500647 | $471,130 | $471,130 | $972.72 | | |
| ST2 | STATE SCHOOL PART 2 600 | 0.8131451643 | $471,130 | $471,130 | $383.10 | | |
| STATESCHL | STATE SCHOOL 600 | 1.5158548041 | $471,130 | $471,130 | $714.16 | | |
| STREFUND | STATE REFUND LEVY 603 | 0.0000000000 | $471,130 | $471,130 | $0.00 | | |
| COROAD | COUNTY ROAD 115 | 1.6549953990 | $471,130 | $471,130 | $779.72 | | |
| CRPRD | COUNTY ROAD REFUND 115 | 0.0000000000 | $471,130 | $471,130 | $0.00 | | |
| | Total Tax Rate: | 9.8210551422 | | | | | |
| | | | | Taxes w/Current Exemptions: | $4,627.00 | | |
| | | | | Taxes w/o Exemptions: | $4,627.00 | | |
Improvement / Building
| Improvement #1: | RESIDENTIAL | State Code: | 11 | 1374.0 sqft | Value: | $359,360 |
| Exterior Wall: | SIDING | Heating/Cooling: | FORCED AIR | | Number of Bathrooms: | 2 | Number of Bedrooms: | 2 | | Plumbing: | 9 | Roof Covering: | COMP SHINGLE |
|
| | Type | Description | Class CD | Sub Class CD | Year Built | Area |
| | MA | Main Area | 4 | 40 | 1911 | 1374.0 |
| | SI1 | SITE IMPROVEMENT | 4 | 40 | 0 | 1.5 |
| | BASE | BASEMENT | 4 | 40 | 1911 | 1054.0 |
| | UPFL | Upper Floor (included in main area) | 4 | 40 | 1911 | 320.0 |
| | DTG | Detached Garage | 4 | 40 | 1911 | 1240.0 |
| | SWP | Solid Wall Porch | 4 | 40 | 1911 | 75.0 |
| | S1F | Single One Story Fireplace | 4 | 40 | 1911 | 1.0 |
| | POL3 | POLE BUILDING-CON,ELEC,INSU | 4 | 40 | 1911 | 1560.0 |
| | FBAT | FULL BATH | 4 | 40 | 1911 | 1.0 |
| | GIF | GARAGE INTERIOR FINISH | 4 | 40 | 1911 | 700.0 |
| | SWP | Solid Wall Porch | 4 | 40 | 1911 | 300.0 |
| | CPC | COVERED CARPORT/PATIO | 4 | 40 | 1911 | 80.0 |
| | POL2 | POLE BUILDING-CONCRETE | 4 | 40 | 1911 | 576.0 |
| | UTST | Utility Storage Shed | 4 | 40 | 1911 | 144.0 |
| | UTST | Utility Storage Shed | 4 | 40 | 1911 | 90.0 |
Sketch
Property Image
Land
| 1 | RES 1 | Converted: Residential | 0.7799 | 33972.00 | 0.00 | 0.00 | 1.00 | $111,770 | $0 |
Roll Value History
| 2026 | N/A | N/A | N/A | N/A | N/A |
| 2025 | $359,360 | $111,770 | $0 | $471,130 | $471,130 |
| 2024 | $359,360 | $111,770 | $0 | $471,130 | $471,130 |
| 2023 | $359,360 | $111,770 | $0 | $471,130 | $471,130 |
| 2022 | $359,360 | $111,770 | $0 | $471,130 | $471,130 |
| 2021 | $304,540 | $67,500 | $0 | $372,040 | $372,040 |
| 2020 | $304,540 | $67,500 | $0 | $372,040 | $372,040 |
| 2019 | $304,540 | $67,500 | $0 | $372,040 | $372,040 |
| 2018 | $284,620 | $67,500 | $0 | $352,120 | $352,120 |
| 2017 | $284,620 | $67,500 | $0 | $352,120 | $352,120 |
| 2016 | $284,620 | $67,500 | $0 | $352,120 | $352,120 |
| 2015 | $123,200 | $50,600 | $0 | $173,800 | $173,800 |
| 2014 | $123,200 | $50,600 | $0 | $173,800 | $173,800 |
| 2013 | $123,200 | $50,600 | $0 | $173,800 | $173,800 |
| 2012 | $123,200 | $50,600 | $0 | $0 | $0 |
| 2011 | $123,200 | $50,600 | $0 | $0 | $0 |
| 2010 | $108,000 | $67,500 | $0 | $0 | $0 |
| 2009 | $184,500 | $44,900 | $0 | $0 | $0 |
| 2008 | $113,300 | $44,900 | $0 | $0 | $0 |
| 2007 | $102,900 | $40,400 | $0 | $0 | $0 |
Deed and Sales History
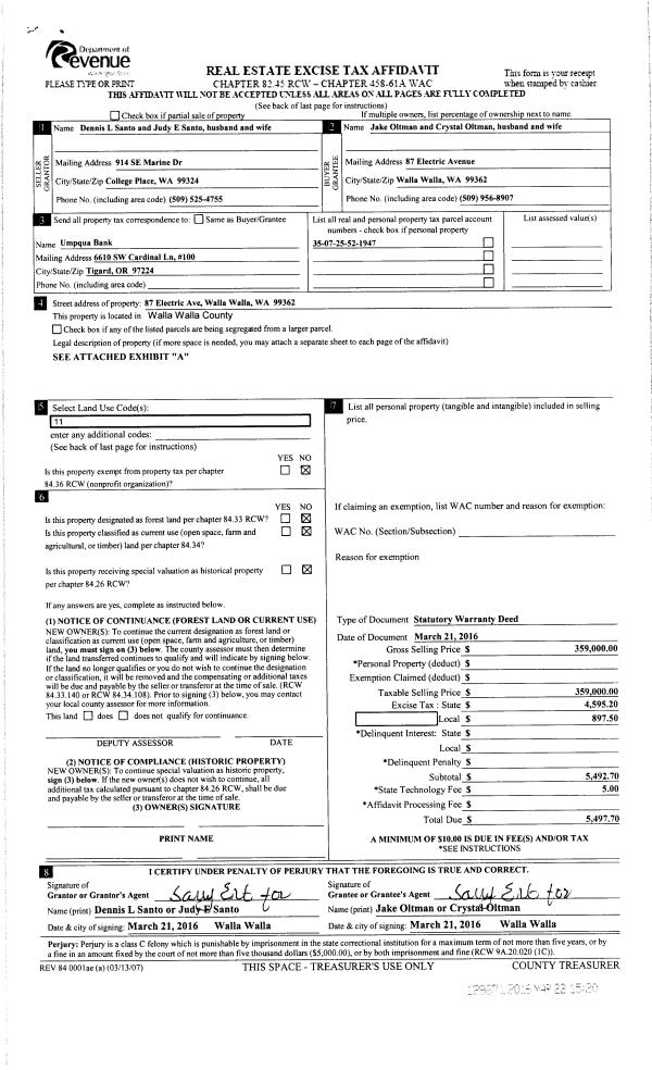
| 1 | 03/22/2016 | SWD | STATUTORY WARRANTY DEED | SANTO DENNIS L | OLTMAN JAKE & CRYSTAL | | | $359,000.00 | 129871 | 2016-02130 |
Payout Agreement
| No payout information available.. |