Property
Account |
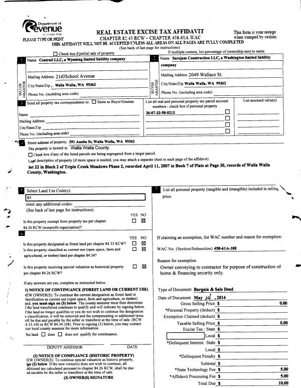
| Property ID: | 17174 | Abbreviated Legal Description: | TRIPLE CREEK MEADOWS PHASE 2 LOT 22 BLOCK 2 |
| Parcel Number: | 360733980213 | Agent Code: | |
| Type: | Real | | |
| Tax Area: | 5 - OL-140 | Land Use Code | 11 |
| Open Space: | N | DFL | N |
| Historic Property: | N | Remodel Property: | N |
| Multi-Family Redevelopment: | N | | |
| Township: | 7 | Section: | 33 |
| Range: | 36 |
Location |
| Address: | 391 AUSTIN ST WA 99362 | Mapsco: | |
| Neighborhood: | A Res | Map ID: | |
| Neighborhood CD: | 613011 |
Owner |
| Name: | ROMANIUK STACEY & GREGORY L | Owner ID: | 75595 |
| Mailing Address: | 391 AUSTIN ST WALLA WALLA, WA 99362 | % Ownership: | 100.0000000000% |
| | | Exemptions: | |
Taxes and Assessment Details
Values
| (+) Improvement Homesite Value: | + | N/A | |
| (+) Improvement Non-Homesite Value: | + | N/A | |
| (+) Land Homesite Value: | + | N/A | |
| (+) Land Non-Homesite Value: | + | N/A | Ag / Timber Use Value |
| (+) Curr Use (HS): | + | N/A | N/A |
| (+) Curr Use (NHS): | + | N/A | N/A |
| | | -------------------------- | |
| (=) Market Value: | = | N/A | |
| (–) Productivity Loss: | – | N/A | |
| | | -------------------------- | |
| (=) Subtotal: | = | N/A | |
| (+) Senior Appraised Value: | + | N/A | |
| (+) Non-Senior Appraised Value: | + | N/A | |
| | | -------------------------- | |
| (=) Total Appraised Value: | = | N/A | |
| (–) Senior Exemption Loss: | – | N/A | |
| (–) Exemption Loss: | – | N/A | |
| | | -------------------------- | |
| (=) Taxable Value: | = | N/A | |
Taxing Jurisdiction
| Owner: | ROMANIUK STACEY & GREGORY L | | |
| % Ownership: | 100.0000000000% | | |
| Total Value: | N/A | | |
| Tax Area: | 5 - OL-140 |
| CERFD | CURRENT EXPENSE REFUND 010 | N/A | N/A | N/A | N/A | | |
| CURREXP | CURRENT EXPENSE 010 | N/A | N/A | N/A | N/A | | |
| HUMNSERV | HUMAN SERVICES 119 | N/A | N/A | N/A | N/A | | |
| SLDREL | SOLDIERS RELIEF 121 | N/A | N/A | N/A | N/A | | |
| EMERGSER | EMS 147 | N/A | N/A | N/A | N/A | | |
| EMSRFD | EMS REFUND 147 | N/A | N/A | N/A | N/A | | |
| PORTRFD | PORT REFUND 640 | N/A | N/A | N/A | N/A | | |
| PORTWWGEN | PORT OF WW 640 | N/A | N/A | N/A | N/A | | |
| SD140BOND | SD #140 BOND 764 | N/A | N/A | N/A | N/A | | |
| SD140GEN | SD #140 GENERAL 760 | N/A | N/A | N/A | N/A | | |
| ST2 | STATE SCHOOL PART 2 600 | N/A | N/A | N/A | N/A | | |
| STATESCHL | STATE SCHOOL 600 | N/A | N/A | N/A | N/A | | |
| STREFUND | STATE REFUND LEVY 603 | N/A | N/A | N/A | N/A | | |
| CWWBOND | C OF WW BOND 643 | N/A | N/A | N/A | N/A | | |
| CWWGEN | CITY OF WW 631 | N/A | N/A | N/A | N/A | | |
| CWWRFD | CITY OF WALLA WALLA REFUND 631 | N/A | N/A | N/A | N/A | | |
| | Total Tax Rate: | N/A | | | | | |
| | | | | Taxes w/Current Exemptions: | N/A | | |
| | | | | Taxes w/o Exemptions: | N/A | | |
Improvement / Building
| Improvement #1: | RESIDENTIAL | State Code: | 11 | 1879.0 sqft | Value: | N/A |
| Exterior Wall: | HARDBOARD | Heating/Cooling: | WARM & COOLED AIR | | Number of Bathrooms: | 2 | Number of Bedrooms: | 3 | | Plumbing: | 13 | Roof Covering: | COMP SHINGLE |
|
| | Type | Description | Class CD | Sub Class CD | Year Built | Area |
| | MA | Main Area | 1 | 35 | 2015 | 1879.0 |
| | ATG | Attached Garage | 1 | 35 | 2015 | 650.0 |
| | RPC | OPEN PORCH W/ROOF , CEILED | 1 | 35 | 2015 | 96.0 |
| | RPC | OPEN PORCH W/ROOF , CEILED | 1 | 35 | 2015 | 21.0 |
| | SI1 | SITE IMPROVEMENT | 1 | 35 | 2015 | 3.5 |
| | WOD | Wood Deck | 1 | 30 | 2015 | 320.0 |
Sketch
Property Image
Land
| 1 | RES 1 | Converted: Residential | 0.2204 | 9600.00 | 0.00 | 0.00 | 1.00 | N/A | N/A |
Roll Value History
| 2026 | N/A | N/A | N/A | N/A | N/A |
| 2025 | $384,550 | $125,000 | $0 | $509,550 | $509,550 |
| 2024 | $415,600 | $100,000 | $0 | $515,600 | $515,600 |
| 2023 | $415,600 | $100,000 | $0 | $515,600 | $515,600 |
| 2022 | $361,390 | $85,000 | $0 | $446,390 | $446,390 |
| 2021 | $314,260 | $85,000 | $0 | $399,260 | $399,260 |
| 2020 | $196,410 | $85,000 | $0 | $281,410 | $281,410 |
| 2019 | $196,410 | $85,000 | $0 | $281,410 | $281,410 |
| 2018 | $209,000 | $50,000 | $0 | $259,000 | $259,000 |
| 2017 | $209,000 | $50,000 | $0 | $259,000 | $259,000 |
| 2016 | $209,000 | $50,000 | $0 | $259,000 | $259,000 |
| 2015 | $209,000 | $50,000 | $0 | $259,000 | $259,000 |
| 2014 | $0 | $50,000 | $0 | $50,000 | $50,000 |
| 2013 | $0 | $50,000 | $0 | $50,000 | $50,000 |
| 2012 | $0 | $55,000 | $0 | $0 | $0 |
| 2011 | $0 | $55,000 | $0 | $0 | $0 |
| 2010 | $0 | $55,000 | $0 | $0 | $0 |
| 2009 | $0 | $65,000 | $0 | $0 | $0 |
| 2008 | $0 | $65,000 | $0 | $0 | $0 |
| 2007 | $0 | $50,000 | $0 | $0 | $0 |
Deed and Sales History
| 1 | 07/10/2024 | SWD | STATUTORY WARRANTY DEED | MC GILL MARGARET | ROMANIUK STACEY & GREGORY L | | | $500,000.00 | 147835 | 2024-03693 |
| 2 | 04/10/2015 | SWD | STATUTORY WARRANTY DEED | SUREJAM CONSTRUCTION LLC | MC GILL MARGARET | | | $267,000.00 | 127752 | 2015-02908 |
| 3 | 05/16/2014 | BARGAIN & | BARGAIN & SALE DEED | CONTRAIL LLC | SUREJAM CONSTRUCTION LLC | | | $0.00 | 125901 | 2014-03335 |
| 4 | 10/17/2012 | WARRANTY D | WARRANTY DEED | MINNICK-HAYNER PS | CONTRAIL LLC | | | $71,546.00 | 122810 | 2012-09124 |
|   | |
Payout Agreement
| No payout information available.. |