Property
Account |
| Property ID: | 17128 | Abbreviated Legal Description: | AVALON ADDN #2 LOT 1 BLK 3 |
| Parcel Number: | 360733890301 | Agent Code: | |
| Type: | Real | | |
| Tax Area: | 1 - OL-140-F | Land Use Code | 11 |
| Open Space: | N | DFL | N |
| Historic Property: | N | Remodel Property: | N |
| Multi-Family Redevelopment: | N | | |
| Township: | 7 | Section: | 33 |
| Range: | 36 |
Location |
| Address: | 816 WHEATLAND ST WA 99362 | Mapsco: | |
| Neighborhood: | G Res | Map ID: | |
| Neighborhood CD: | 614011 |
Owner |
| Name: | CLAPP JENNIFER JOANNE | Owner ID: | 64940 |
| Mailing Address: | 816 WHEATLAND ST WALLA WALLA, WA 99362 | % Ownership: | 100.0000000000% |
| | | Exemptions: | |
Taxes and Assessment Details
Values
| (+) Improvement Homesite Value: | + | $0 | |
| (+) Improvement Non-Homesite Value: | + | $334,190 | |
| (+) Land Homesite Value: | + | $0 | |
| (+) Land Non-Homesite Value: | + | $120,000 | |
| (+) Curr Use (HS): | + | $0 | $0 |
| (+) Curr Use (NHS): | + | $0 | $0 |
| | | -------------------------- | |
| (=) Market Value: | = | $454,190 | |
| (–) Productivity Loss: | – | $0 | |
| | | -------------------------- | |
| (=) Subtotal: | = | $454,190 | |
| (+) Senior Appraised Value: | + | $0 | |
| (+) Non-Senior Appraised Value: | + | $454,190 | |
| | | -------------------------- | |
| (=) Total Appraised Value: | = | $454,190 | |
| (–) Senior Exemption Loss: | – | $0 | |
| (–) Exemption Loss: | – | $0 | |
| | | -------------------------- | |
| (=) Taxable Value: | = | $454,190 | |
Taxing Jurisdiction
| Owner: | CLAPP JENNIFER JOANNE | | |
| % Ownership: | 100.0000000000% | | |
| Total Value: | $454,190 | | |
| Tax Area: | 1 - OL-140-F |
| CERFD | CURRENT EXPENSE REFUND 010 | 0.0000000000 | $454,190 | $454,190 | $0.00 | | |
| CURREXP | CURRENT EXPENSE 010 | 1.0175366760 | $454,190 | $454,190 | $462.15 | | |
| HUMNSERV | HUMAN SERVICES 119 | 0.0250000000 | $454,190 | $454,190 | $11.35 | | |
| SLDREL | SOLDIERS RELIEF 121 | 0.0155990005 | $454,190 | $454,190 | $7.08 | | |
| EMERGSER | EMS 147 | 0.3792580840 | $454,190 | $454,190 | $172.26 | | |
| EMSRFD | EMS REFUND 147 | 0.0000000000 | $454,190 | $454,190 | $0.00 | | |
| PORTRFD | PORT REFUND 640 | 0.0000000000 | $454,190 | $454,190 | $0.00 | | |
| PORTWWGEN | PORT OF WW 640 | 0.2460186015 | $454,190 | $454,190 | $111.74 | | |
| SD140BOND | SD #140 BOND 764 | 0.8342371393 | $454,190 | $454,190 | $378.90 | | |
| SD140GEN | SD #140 GENERAL 760 | 2.0646500647 | $454,190 | $454,190 | $937.74 | | |
| ST2 | STATE SCHOOL PART 2 600 | 0.8131451643 | $454,190 | $454,190 | $369.32 | | |
| STATESCHL | STATE SCHOOL 600 | 1.5158548041 | $454,190 | $454,190 | $688.49 | | |
| STREFUND | STATE REFUND LEVY 603 | 0.0000000000 | $454,190 | $454,190 | $0.00 | | |
| CWWBOND | C OF WW BOND 643 | 0.2760494372 | $454,190 | $454,190 | $125.38 | | |
| CWWGEN | CITY OF WW 631 | 1.6100204973 | $454,190 | $454,190 | $731.26 | | |
| CWWRFD | CITY OF WALLA WALLA REFUND 631 | 0.0000000000 | $454,190 | $454,190 | $0.00 | | |
| | Total Tax Rate: | 8.7973694689 | | | | | |
| | | | | Taxes w/Current Exemptions: | $3,995.67 | | |
| | | | | Taxes w/o Exemptions: | $3,995.67 | | |
Improvement / Building
| Improvement #1: | RESIDENTIAL | State Code: | 11 | 1765.0 sqft | Value: | $334,190 |
| Exterior Wall: | VINYL | Heating/Cooling: | WARM & COOLED AIR | | Number of Bathrooms: | 2 | Number of Bedrooms: | 3 | | Plumbing: | 9 | Roof Covering: | COMP SHINGLE |
|
| | Type | Description | Class CD | Sub Class CD | Year Built | Area |
| | MA | Main Area | 1 | 35 | 1994 | 1765.0 |
| | SI1 | SITE IMPROVEMENT | 1 | 35 | 1994 | 3.5 |
| | ATG | Attached Garage | 1 | 35 | 1994 | 625.0 |
| | WOD | Wood Deck | 1 | 35 | 1994 | 600.0 |
| | PRC | PORCH W STEPS, ROOF,CEILED | 1 | 35 | 1994 | 54.0 |
| | GFP | GAS FIREPLACE | 1 | 35 | 1994 | 1.0 |
Sketch
Property Image
Land
| 1 | RES 1 | Converted: Residential | 0.2393 | 10422.00 | 0.00 | 0.00 | 1.00 | $120,000 | $0 |
Roll Value History
| 2026 | N/A | N/A | N/A | N/A | N/A |
| 2025 | $370,250 | $125,060 | $0 | $495,310 | $495,310 |
| 2024 | $334,190 | $120,000 | $0 | $454,190 | $454,190 |
| 2023 | $334,190 | $120,000 | $0 | $454,190 | $454,190 |
| 2022 | $303,810 | $85,000 | $0 | $388,810 | $388,810 |
| 2021 | $289,350 | $85,000 | $0 | $374,350 | $374,350 |
| 2020 | $214,330 | $85,000 | $0 | $299,330 | $299,330 |
| 2019 | $214,330 | $85,000 | $0 | $299,330 | $299,330 |
| 2018 | $201,800 | $60,000 | $0 | $261,800 | $261,800 |
| 2017 | $192,190 | $60,000 | $0 | $252,190 | $252,190 |
| 2016 | $174,720 | $60,000 | $0 | $234,720 | $234,720 |
| 2015 | $174,720 | $60,000 | $0 | $234,720 | $234,720 |
| 2014 | $166,400 | $60,000 | $0 | $226,400 | $226,400 |
| 2013 | $166,400 | $60,000 | $0 | $226,400 | $226,400 |
| 2012 | $166,400 | $60,000 | $0 | $0 | $0 |
| 2011 | $166,400 | $60,000 | $0 | $0 | $0 |
| 2010 | $166,400 | $60,000 | $0 | $0 | $0 |
| 2009 | $196,700 | $60,000 | $0 | $0 | $0 |
| 2008 | $196,700 | $60,000 | $0 | $0 | $0 |
| 2007 | $144,200 | $35,000 | $0 | $0 | $0 |
Deed and Sales History
| 1 | 04/12/2019 | SWD | STATUTORY WARRANTY DEED | BELL GLENN R | CLAPP JENNIFER JOANNE | | | $315,000.00 | 136660 | 2019-02314 |
| 2 | 11/02/2018 | QCD | QUIT CLAIM DEED | BELL KAREN V | BELL GLENN R | | | | 135872 | 2018-09137 |
| 3 | 11/02/2018 | SWD | STATUTORY WARRANTY DEED | TARNOWSKI DAVID G | BELL GLENN R | | | $315,000.00 | 135871 | 2018-09136 |
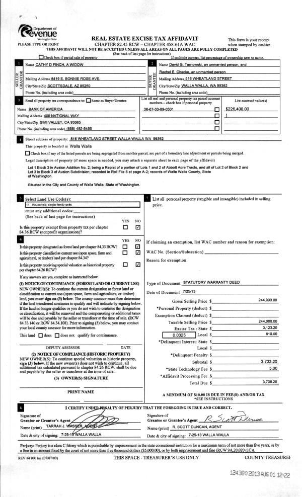
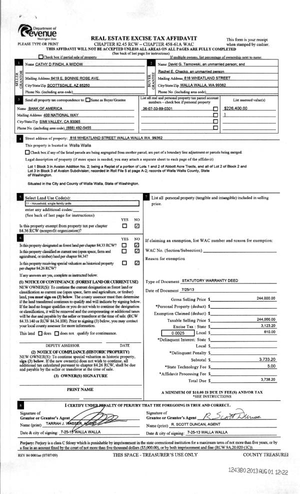
| 4 | 08/01/2013 | WARRANTY D | WARRANTY DEED | FINCH, CATHY D | TARNOWSKI, DAVID G | | | $244,000.00 | 124380 | 2013-07818 |
| 5 | 03/29/2007 | WARRANTY D | WARRANTY DEED | FENTON, THOMAS E ESTATE OF | FINCH, KENNETH E & CATHY D | | | $0.00 | 112485 | 2007-03514 |
| 6 | 07/31/1992 | WARRANTY D | WARRANTY DEED | | | | | $25,000.00 | 77338 | 1999-206737 |
Payout Agreement
| No payout information available.. |