Property
Account |
| Property ID: | 17126 | Abbreviated Legal Description: | WHITMAN P.U.D. PHASE IV LOT 7 BLOCK 1 |
| Parcel Number: | 350736480107 | Agent Code: | |
| Type: | Real | | |
| Tax Area: | 75 - CP 250 | Land Use Code | 11 |
| Open Space: | N | DFL | N |
| Historic Property: | N | Remodel Property: | N |
| Multi-Family Redevelopment: | N | | |
| Township: | | Section: | |
| Range: | |
Location |
| Address: | 753 SE BEDFORD LOOP WA 99324 | Mapsco: | |
| Neighborhood: | G SFR | Map ID: | |
| Neighborhood CD: | 114011 |
Owner |
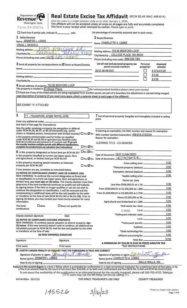
| Name: | LEMKE CHARLOTTE A | Owner ID: | 58355 |
| Mailing Address: | 753 SE BEDFORD LOOP COLLEGE PLACE, WA 99324-2172 | % Ownership: | 100.0000000000% |
| | | Exemptions: | |
Taxes and Assessment Details
Property Tax Information as of
02/21/2026
Click on "Statement Details" to expand or collapse a tax statement.
* Please enter a valid date ** Please enter a valid date *
Statement Details |
| | TOTAL: | $0.00 | $0.00 | $0.00 | $0.00 | $0.00 | $0.00 |
|
| | $0.00 | $0.00 | $0.00 | $0.00 | $0.00 | $0.00 |
Values
| (+) Improvement Homesite Value: | + | $0 | |
| (+) Improvement Non-Homesite Value: | + | $318,800 | |
| (+) Land Homesite Value: | + | $0 | |
| (+) Land Non-Homesite Value: | + | $70,000 | |
| (+) Curr Use (HS): | + | $0 | $0 |
| (+) Curr Use (NHS): | + | $0 | $0 |
| | | -------------------------- | |
| (=) Market Value: | = | $388,800 | |
| (–) Productivity Loss: | – | $0 | |
| | | -------------------------- | |
| (=) Subtotal: | = | $388,800 | |
| (+) Senior Appraised Value: | + | $0 | |
| (+) Non-Senior Appraised Value: | + | $388,800 | |
| | | -------------------------- | |
| (=) Total Appraised Value: | = | $388,800 | |
| (–) Senior Exemption Loss: | – | $0 | |
| (–) Exemption Loss: | – | $0 | |
| | | -------------------------- | |
| (=) Taxable Value: | = | $388,800 | |
Taxing Jurisdiction
| Owner: | LEMKE CHARLOTTE A | | |
| % Ownership: | 100.0000000000% | | |
| Total Value: | $388,800 | | |
| Tax Area: | 75 - CP 250 |
| CERFD | CURRENT EXPENSE REFUND 010 | 0.0000000000 | $388,800 | $388,800 | $0.00 | | |
| CURREXP | CURRENT EXPENSE 010 | 1.0175366760 | $388,800 | $388,800 | $395.62 | | |
| HUMNSERV | HUMAN SERVICES 119 | 0.0250000000 | $388,800 | $388,800 | $9.72 | | |
| SLDREL | SOLDIERS RELIEF 121 | 0.0155990005 | $388,800 | $388,800 | $6.06 | | |
| COLLPLBOND | C OF CP BOND 644 | 0.4374241808 | $388,800 | $388,800 | $170.07 | | |
| COLLPLGEN | CITY OF CP 632 | 1.4453819216 | $388,800 | $388,800 | $561.96 | | |
| EMERGSER | EMS 147 | 0.3792580840 | $388,800 | $388,800 | $147.46 | | |
| EMSRFD | EMS REFUND 147 | 0.0000000000 | $388,800 | $388,800 | $0.00 | | |
| RURALLIB | RURAL LIBRARY 623 | 0.3710609029 | $388,800 | $388,800 | $144.27 | | |
| PORTRFD | PORT REFUND 640 | 0.0000000000 | $388,800 | $388,800 | $0.00 | | |
| PORTWWGEN | PORT OF WW 640 | 0.2460186015 | $388,800 | $388,800 | $95.65 | | |
| SD250BOND | SD #250 BOND 773 | 1.4560608159 | $388,800 | $388,800 | $566.12 | | |
| SD250GEN | SD #250 GENERAL 770 | 2.3880724087 | $388,800 | $388,800 | $928.48 | | |
| ST2 | STATE SCHOOL PART 2 600 | 0.8131451643 | $388,800 | $388,800 | $316.15 | | |
| STATESCHL | STATE SCHOOL 600 | 1.5158548041 | $388,800 | $388,800 | $589.36 | | |
| STREFUND | STATE REFUND LEVY 603 | 0.0000000000 | $388,800 | $388,800 | $0.00 | | |
| | Total Tax Rate: | 10.1104125603 | | | | | |
| | | | | Taxes w/Current Exemptions: | $3,930.92 | | |
| | | | | Taxes w/o Exemptions: | $3,930.92 | | |
Improvement / Building
| Improvement #1: | RESIDENTIAL | State Code: | 11 | 1586.0 sqft | Value: | $318,800 |
| Exterior Wall: | SIDING | Heating/Cooling: | REV-HEAT-PUMP-W/DUCT | | Number of Bathrooms: | 2 | Number of Bedrooms: | 3 | | Plumbing: | 9 | Roof Covering: | COMP SHINGLE |
|
| | Type | Description | Class CD | Sub Class CD | Year Built | Area |
| | MA | Main Area | 1 | 35 | 2006 | 1586.0 |
| | SI1 | SITE IMPROVEMENT | 1 | 35 | 2006 | 2.0 |
| | ATG | Attached Garage | 1 | 35 | 2006 | 483.0 |
| | RPC | OPEN PORCH W/ROOF , CEILED | 1 | 35 | 2006 | 24.0 |
Sketch
Property Image
Land
| 1 | RES 1 | Converted: Residential | 0.1182 | 5149.00 | 0.00 | 0.00 | 1.00 | $70,000 | $0 |
Roll Value History
| 2026 | N/A | N/A | N/A | N/A | N/A |
| 2025 | $223,160 | $130,000 | $0 | $353,160 | $353,160 |
| 2024 | $318,800 | $70,000 | $0 | $388,800 | $388,800 |
| 2023 | $318,800 | $70,000 | $0 | $388,800 | $388,800 |
| 2022 | $303,610 | $70,000 | $0 | $373,610 | $373,610 |
| 2021 | $264,010 | $70,000 | $0 | $334,010 | $334,010 |
| 2020 | $188,580 | $70,000 | $0 | $258,580 | $258,580 |
| 2019 | $223,580 | $35,000 | $0 | $258,580 | $258,580 |
| 2018 | $194,420 | $35,000 | $0 | $229,420 | $229,420 |
| 2017 | $169,060 | $35,000 | $0 | $204,060 | $204,060 |
| 2016 | $161,010 | $35,000 | $0 | $196,010 | $196,010 |
| 2015 | $161,010 | $35,000 | $0 | $196,010 | $196,010 |
| 2014 | $178,900 | $35,000 | $0 | $213,900 | $213,900 |
| 2013 | $178,900 | $35,000 | $0 | $213,900 | $213,900 |
| 2012 | $153,300 | $65,000 | $0 | $0 | $0 |
| 2011 | $153,300 | $65,000 | $0 | $0 | $0 |
| 2010 | $153,300 | $65,000 | $0 | $0 | $0 |
| 2009 | $164,800 | $65,000 | $0 | $0 | $0 |
| 2008 | $179,300 | $30,000 | $0 | $0 | $0 |
| 2007 | $0 | $2,300 | $0 | $0 | $0 |
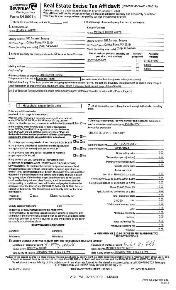
Deed and Sales History
| 1 | 03/16/2023 | QCD | QUIT CLAIM DEED | LEMKE CHARLOTTE A | LEMKE CHARLOTTE A | | | $0.00 | 145526 | 2023-01362 |
| 2 | 03/30/2022 | SWD | STATUTORY WARRANTY DEED | DIDARIO JAYNE E | LEMKE CHARLOTTE A | | | $432,000.00 | 143666 | 2022-02654 |
| 3 | 03/30/2022 | QCD | QUIT CLAIM DEED | CONLEY GENE R | DIDARIO JAYNE E | | | | 143665 | 2022-02653 |
| 4 | 03/30/2022 | QCD | QUIT CLAIM DEED | GOD WINK PROPERTIES LLC | DIDARIO JAYNE E | | | $0.00 | 143664 | 2022-02652 |
| 5 | 11/14/2019 | QCD | QUIT CLAIM DEED | CONLEY GENE R & ANNETTE L TRUSTEES OF THE | GOD WINK PROPERTIES LLC | | | $0.00 | 138074 | 2019-09390 |
| 6 | 03/29/2007 | QCD | QUIT CLAIM DEED | CONLEY, GENE R & ANNETTE | CONLEY, GENE R & ANNETTE L TRU | | | | 112474 | 2007-03470 |
| 7 | 12/13/2006 | WARRANTY D | WARRANTY DEED | JEFF MOELLER CONSTRUCTION INC | CONLEY, GENE R & ANNETTE | | | $213,000.00 | 111878 | 2006-14844 |
| 8 | 07/26/2006 | WARRANTY D | WARRANTY DEED | WHITMAN DEVELOPMENT CORP | JEFF MOELLER CONSTRUCTION INC | | | $160,000.00 | 110809 | 2006-08775 |
|   | |
Payout Agreement
| No payout information available.. |