Property
Account |
| Property ID: | 17122 | Abbreviated Legal Description: | REEDS LOT 6 BLK 2 |
| Parcel Number: | 360721710206 | Agent Code: | |
| Type: | Real | | |
| Tax Area: | 1 - OL-140-F | Land Use Code | 11 |
| Open Space: | N | DFL | N |
| Historic Property: | N | Remodel Property: | N |
| Multi-Family Redevelopment: | N | | |
| Township: | 7 | Section: | 21 |
| Range: | 36 |
Location |
| Address: | 804 E ALDER ST WA 99362 | Mapsco: | |
| Neighborhood: | A-SFR | Map ID: | |
| Neighborhood CD: | 513011 |
Owner |
| Name: | SCHIEBEL PHILIP A & LUCY L | Owner ID: | 63599 |
| Mailing Address: | 508 CATHERINE ST WALLA WALLA, WA 99362 | % Ownership: | 100.0000000000% |
| | | Exemptions: | |
Taxes and Assessment Details
Values
| (+) Improvement Homesite Value: | + | $0 | |
| (+) Improvement Non-Homesite Value: | + | $302,330 | |
| (+) Land Homesite Value: | + | $0 | |
| (+) Land Non-Homesite Value: | + | $45,000 | |
| (+) Curr Use (HS): | + | $0 | $0 |
| (+) Curr Use (NHS): | + | $0 | $0 |
| | | -------------------------- | |
| (=) Market Value: | = | $347,330 | |
| (–) Productivity Loss: | – | $0 | |
| | | -------------------------- | |
| (=) Subtotal: | = | $347,330 | |
| (+) Senior Appraised Value: | + | $0 | |
| (+) Non-Senior Appraised Value: | + | $347,330 | |
| | | -------------------------- | |
| (=) Total Appraised Value: | = | $347,330 | |
| (–) Senior Exemption Loss: | – | $0 | |
| (–) Exemption Loss: | – | $0 | |
| | | -------------------------- | |
| (=) Taxable Value: | = | $347,330 | |
Taxing Jurisdiction
| Owner: | SCHIEBEL PHILIP A & LUCY L | | |
| % Ownership: | 100.0000000000% | | |
| Total Value: | $347,330 | | |
| Tax Area: | 1 - OL-140-F |
| CERFD | CURRENT EXPENSE REFUND 010 | 0.0000000000 | $347,330 | $347,330 | $0.00 | | |
| CURREXP | CURRENT EXPENSE 010 | 1.0175366760 | $347,330 | $347,330 | $353.42 | | |
| HUMNSERV | HUMAN SERVICES 119 | 0.0250000000 | $347,330 | $347,330 | $8.68 | | |
| SLDREL | SOLDIERS RELIEF 121 | 0.0155990005 | $347,330 | $347,330 | $5.42 | | |
| EMERGSER | EMS 147 | 0.3792580840 | $347,330 | $347,330 | $131.73 | | |
| EMSRFD | EMS REFUND 147 | 0.0000000000 | $347,330 | $347,330 | $0.00 | | |
| PORTRFD | PORT REFUND 640 | 0.0000000000 | $347,330 | $347,330 | $0.00 | | |
| PORTWWGEN | PORT OF WW 640 | 0.2460186015 | $347,330 | $347,330 | $85.45 | | |
| SD140BOND | SD #140 BOND 764 | 0.8342371393 | $347,330 | $347,330 | $289.76 | | |
| SD140GEN | SD #140 GENERAL 760 | 2.0646500647 | $347,330 | $347,330 | $717.11 | | |
| ST2 | STATE SCHOOL PART 2 600 | 0.8131451643 | $347,330 | $347,330 | $282.43 | | |
| STATESCHL | STATE SCHOOL 600 | 1.5158548041 | $347,330 | $347,330 | $526.50 | | |
| STREFUND | STATE REFUND LEVY 603 | 0.0000000000 | $347,330 | $347,330 | $0.00 | | |
| CWWBOND | C OF WW BOND 643 | 0.2760494372 | $347,330 | $347,330 | $95.88 | | |
| CWWGEN | CITY OF WW 631 | 1.6100204973 | $347,330 | $347,330 | $559.21 | | |
| CWWRFD | CITY OF WALLA WALLA REFUND 631 | 0.0000000000 | $347,330 | $347,330 | $0.00 | | |
| | Total Tax Rate: | 8.7973694689 | | | | | |
| | | | | Taxes w/Current Exemptions: | $3,055.59 | | |
| | | | | Taxes w/o Exemptions: | $3,055.59 | | |
Improvement / Building
| Improvement #1: | RESIDENTIAL | State Code: | 11 | 2242.0 sqft | Value: | $302,330 |
| Exterior Wall: | SIDING | Heating/Cooling: | FORCED AIR | | Number of Bathrooms: | 2 | Number of Bedrooms: | 4 | | Plumbing: | 10 | Roof Covering: | COMP SHINGLE |
|
| | Type | Description | Class CD | Sub Class CD | Year Built | Area |
| | MA | Main Area | 2 | 35 | 1906 | 2242.0 |
| | UPFL | Upper Floor (included in main area) | 2 | 35 | 1906 | 850.0 |
| | SI1 | SITE IMPROVEMENT | 2 | 35 | 1906 | 1.5 |
| | BASE | BASEMENT | 2 | 35 | 1906 | 1044.0 |
| | RPS | PORCH W/STEPS,ROOF | 2 | 35 | 1906 | 48.0 |
| | DTG | Detached Garage | 2 | 35 | 1906 | 240.0 |
Sketch
Property Image
Land
| 1 | RES 1 | Converted: Residential | 0.1653 | 7200.00 | 0.00 | 0.00 | 1.00 | $45,000 | $0 |
Roll Value History
| 2026 | N/A | N/A | N/A | N/A | N/A |
| 2025 | $281,760 | $72,000 | $0 | $353,760 | $353,760 |
| 2024 | $268,340 | $72,000 | $0 | $340,340 | $340,340 |
| 2023 | $302,330 | $45,000 | $0 | $347,330 | $347,330 |
| 2022 | $287,940 | $45,000 | $0 | $332,940 | $332,940 |
| 2021 | $221,490 | $45,000 | $0 | $266,490 | $266,490 |
| 2020 | $184,580 | $45,000 | $0 | $229,580 | $229,580 |
| 2019 | $184,580 | $45,000 | $0 | $229,580 | $229,580 |
| 2018 | $160,500 | $45,000 | $0 | $205,500 | $205,500 |
| 2017 | $174,720 | $28,800 | $0 | $203,520 | $203,520 |
| 2016 | $218,400 | $28,800 | $0 | $247,200 | $247,200 |
| 2015 | $218,400 | $28,800 | $0 | $247,200 | $0 |
| 2014 | $182,000 | $28,800 | $0 | $210,800 | $0 |
| 2013 | $182,000 | $28,800 | $0 | $210,800 | $0 |
| 2012 | $0 | $0 | $0 | $0 | $0 |
| 2011 | $0 | $0 | $0 | $0 | $0 |
| 2010 | $0 | $0 | $0 | $0 | $0 |
| 2009 | $0 | $0 | $0 | $0 | $0 |
| 2008 | $0 | $0 | $0 | $0 | $0 |
| 2007 | $132,200 | $28,800 | $0 | $0 | $0 |
Deed and Sales History
| 1 | 07/25/2018 | SWD | STATUTORY WARRANTY DEED | CARLSON ERIC O | SCHIEBEL PHILIP A & LUCY L | | | $239,900.00 | 135177 | 2018-05985 |
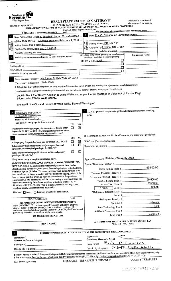
| 2 | 03/31/2017 | SWD | STATUTORY WARRANTY DEED | TRUST FOR THE 2014 CROSS REVOCABLE TRUST | CARLSON ERIC O | | | $199,500.00 | 132127 | 2017-02431 |
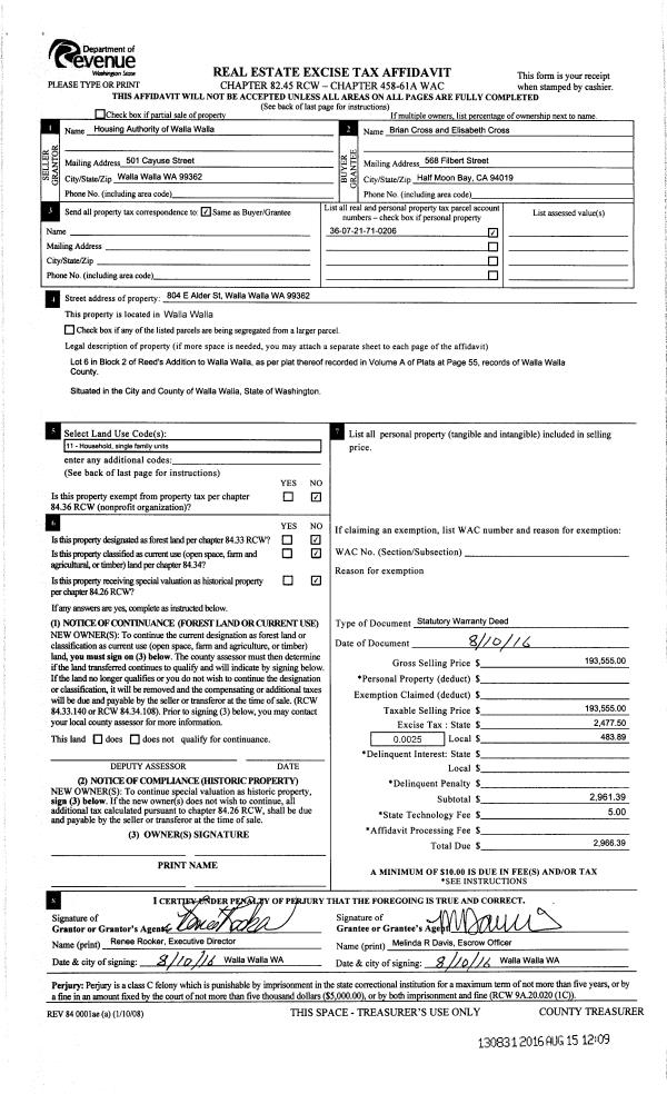
| 3 | 08/15/2016 | SWD | STATUTORY WARRANTY DEED | WALLA WALLA HOUSING AUTHORITY | TRUST FOR THE 2014 CROSS REVOCABLE TRUST | | | $193,555.00 | 130831 | 2016-06491 |
| 4 | 03/21/2007 | WARRANTY D | WARRANTY DEED | WHATLEY, BARBARA J | WALLA WALLA HOUSING AUTHORITY | | | $268,000.00 | 112438 | 2007-03116 |
| 5 | 11/23/2005 | WARRANTY D | WARRANTY DEED | WHATLEY, EILEEN R M ESTATE OF | WHATLEY, BARBARA J | | | | 109114 | 2005-14823 |
| 6 | 06/20/2001 | WARRANTY D | WARRANTY DEED | | | | | $116,500.00 | 97424 | 3150-106464 |
Payout Agreement
| No payout information available.. |