Property
Account |
| Property ID: | 17120 | Abbreviated Legal Description: | RITZ LOT 5 BLK 5 AND TRACT |
| Parcel Number: | 360730540505 | Agent Code: | |
| Type: | Real | | |
| Tax Area: | 1 - OL-140-F | Land Use Code | 18 |
| Open Space: | N | DFL | N |
| Historic Property: | N | Remodel Property: | N |
| Multi-Family Redevelopment: | N | | |
| Township: | 7 | Section: | 30 |
| Range: | 36 |
Location |
| Address: | 925 WILLOW ST WA 99362 | Mapsco: | |
| Neighborhood: | A Land Only | Map ID: | |
| Neighborhood CD: | 313091 |
Owner |
| Name: | VENEGAS JESUS & RAQUEL | Owner ID: | 70702 |
| Mailing Address: | 1215 E ALDER ST WALLA WALLA, WA 99362 | % Ownership: | 100.0000000000% |
| | | Exemptions: | |
Taxes and Assessment Details
Property Tax Information as of
02/21/2026
Click on "Statement Details" to expand or collapse a tax statement.
* Please enter a valid date ** Please enter a valid date *
Statement Details |
| | TOTAL: | $0.00 | $0.00 | $0.00 | $0.00 | $0.00 | $0.00 |
|
| | $0.00 | $0.00 | $0.00 | $0.00 | $0.00 | $0.00 |
Values
| (+) Improvement Homesite Value: | + | $0 | |
| (+) Improvement Non-Homesite Value: | + | $17,250 | |
| (+) Land Homesite Value: | + | $0 | |
| (+) Land Non-Homesite Value: | + | $55,690 | |
| (+) Curr Use (HS): | + | $0 | $0 |
| (+) Curr Use (NHS): | + | $0 | $0 |
| | | -------------------------- | |
| (=) Market Value: | = | $72,940 | |
| (–) Productivity Loss: | – | $0 | |
| | | -------------------------- | |
| (=) Subtotal: | = | $72,940 | |
| (+) Senior Appraised Value: | + | $0 | |
| (+) Non-Senior Appraised Value: | + | $72,940 | |
| | | -------------------------- | |
| (=) Total Appraised Value: | = | $72,940 | |
| (–) Senior Exemption Loss: | – | $0 | |
| (–) Exemption Loss: | – | $0 | |
| | | -------------------------- | |
| (=) Taxable Value: | = | $72,940 | |
Taxing Jurisdiction
| Owner: | VENEGAS JESUS & RAQUEL | | |
| % Ownership: | 100.0000000000% | | |
| Total Value: | $72,940 | | |
| Tax Area: | 1 - OL-140-F |
| CERFD | CURRENT EXPENSE REFUND 010 | 0.0000000000 | $72,940 | $72,940 | $0.00 | | |
| CURREXP | CURRENT EXPENSE 010 | 1.0175366760 | $72,940 | $72,940 | $74.22 | | |
| HUMNSERV | HUMAN SERVICES 119 | 0.0250000000 | $72,940 | $72,940 | $1.82 | | |
| SLDREL | SOLDIERS RELIEF 121 | 0.0155990005 | $72,940 | $72,940 | $1.14 | | |
| EMERGSER | EMS 147 | 0.3792580840 | $72,940 | $72,940 | $27.66 | | |
| EMSRFD | EMS REFUND 147 | 0.0000000000 | $72,940 | $72,940 | $0.00 | | |
| PORTRFD | PORT REFUND 640 | 0.0000000000 | $72,940 | $72,940 | $0.00 | | |
| PORTWWGEN | PORT OF WW 640 | 0.2460186015 | $72,940 | $72,940 | $17.94 | | |
| SD140BOND | SD #140 BOND 764 | 0.8342371393 | $72,940 | $72,940 | $60.85 | | |
| SD140GEN | SD #140 GENERAL 760 | 2.0646500647 | $72,940 | $72,940 | $150.60 | | |
| ST2 | STATE SCHOOL PART 2 600 | 0.8131451643 | $72,940 | $72,940 | $59.31 | | |
| STATESCHL | STATE SCHOOL 600 | 1.5158548041 | $72,940 | $72,940 | $110.57 | | |
| STREFUND | STATE REFUND LEVY 603 | 0.0000000000 | $72,940 | $72,940 | $0.00 | | |
| CWWBOND | C OF WW BOND 643 | 0.2760494372 | $72,940 | $72,940 | $20.14 | | |
| CWWGEN | CITY OF WW 631 | 1.6100204973 | $72,940 | $72,940 | $117.43 | | |
| CWWRFD | CITY OF WALLA WALLA REFUND 631 | 0.0000000000 | $72,940 | $72,940 | $0.00 | | |
| | Total Tax Rate: | 8.7973694689 | | | | | |
| | | | | Taxes w/Current Exemptions: | $641.68 | | |
| | | | | Taxes w/o Exemptions: | $641.68 | | |
Improvement / Building
| Improvement #1: | RESIDENTIAL | State Code: | 18 | 0.0 sqft | Value: | $17,250 |
| | Type | Description | Class CD | Sub Class CD | Year Built | Area |
| | TOOL | TOOL SHED | 1 | 30 | 1952 | 780.0 |
| | SI1 | SITE IMPROVEMENT | 1 | 30 | 1952 | 1.0 |
Sketch
Property Image
Land
| 1 | RES 1 | Converted: Residential | 0.1550 | 6750.00 | 0.00 | 0.00 | 1.00 | $55,690 | $0 |
Roll Value History
| 2026 | N/A | N/A | N/A | N/A | N/A |
| 2025 | $17,250 | $55,690 | $0 | $72,940 | $72,940 |
| 2024 | $17,250 | $55,690 | $0 | $72,940 | $72,940 |
| 2023 | $17,250 | $55,690 | $0 | $72,940 | $72,940 |
| 2022 | $17,250 | $55,690 | $0 | $72,940 | $72,940 |
| 2021 | $14,000 | $24,900 | $0 | $38,900 | $38,900 |
| 2020 | $14,000 | $24,900 | $0 | $38,900 | $38,900 |
| 2019 | $14,000 | $24,900 | $0 | $38,900 | $38,900 |
| 2018 | $14,000 | $24,900 | $0 | $38,900 | $38,900 |
| 2017 | $14,000 | $24,900 | $0 | $38,900 | $38,900 |
| 2016 | $14,000 | $24,900 | $0 | $38,900 | $38,900 |
| 2015 | $14,000 | $24,900 | $0 | $38,900 | $38,900 |
| 2014 | $14,000 | $24,900 | $0 | $38,900 | $38,900 |
| 2013 | $14,000 | $24,900 | $0 | $38,900 | $38,900 |
| 2012 | $14,000 | $24,900 | $0 | $0 | $0 |
| 2011 | $14,000 | $24,900 | $0 | $0 | $0 |
| 2010 | $3,700 | $24,900 | $0 | $0 | $0 |
| 2009 | $4,000 | $11,800 | $0 | $0 | $0 |
| 2008 | $4,000 | $11,800 | $0 | $0 | $0 |
| 2007 | $4,000 | $11,800 | $0 | $0 | $0 |
Deed and Sales History
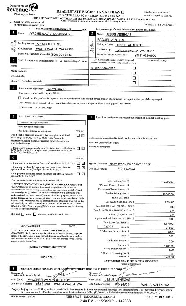
| 1 | 11/23/2021 | SWD | STATUTORY WARRANTY DEED | DUDENKOV VYACHESLAV V | VENEGAS JESUS & RAQUEL | | | $110,000.00 | 142938 | 2021-13960 |
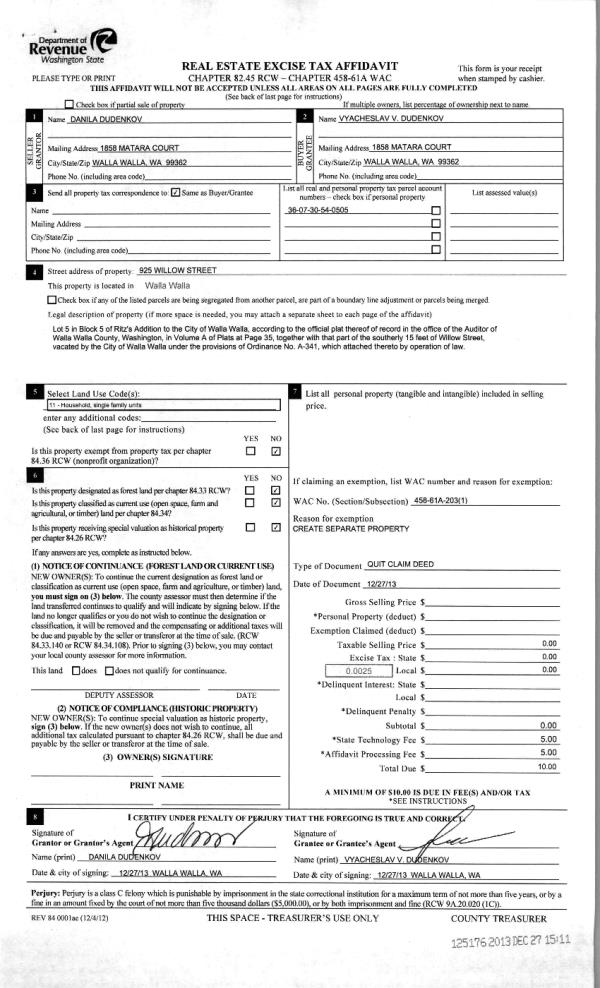
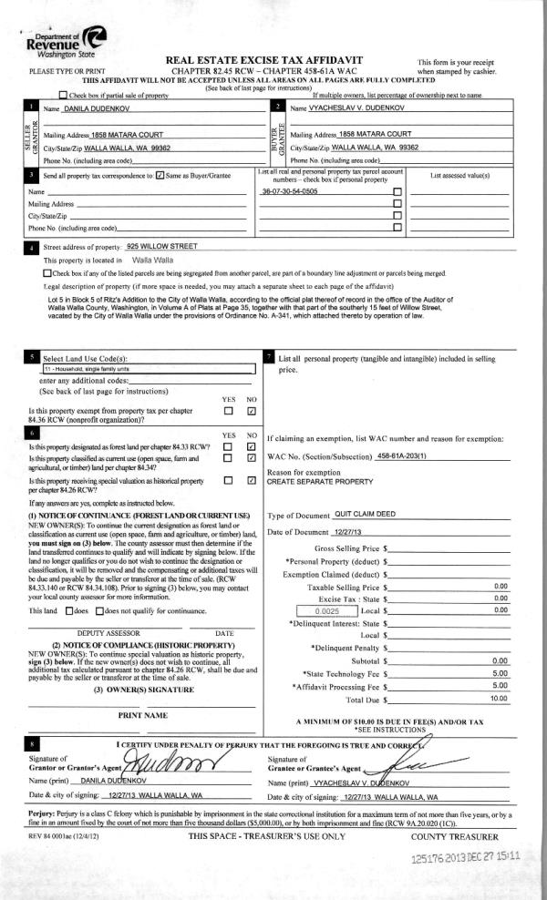
| 2 | 12/27/2013 | QCD | QUIT CLAIM DEED | DUDENKOV VYACHESLAV V | | | | | 0 | 2013-12291 |
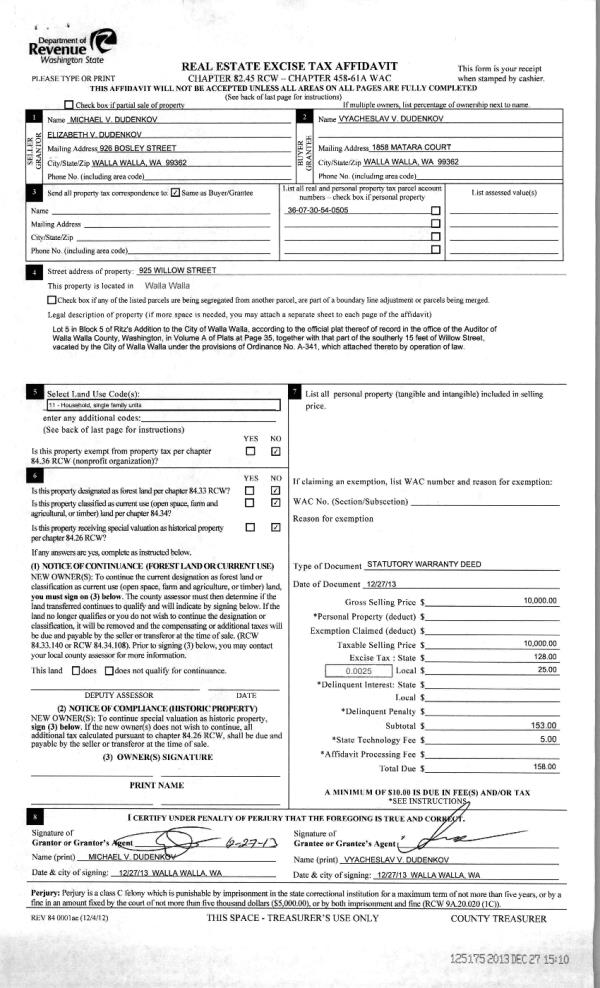
| 3 | 12/27/2013 | WARRANTY D | WARRANTY DEED | DUDENKOV MICHAEL V & ELIZABETH V | DUDENKOV VYACHESLAV V | | | $10,000.00 | 125175 | 2013-12290 |
| 4 | 03/23/2007 | WARRANTY D | WARRANTY DEED | TALLEY, PATRICK E & R RENEE | DUDENKOV, MICHAEL V & ELIZABET | | | $35,000.00 | 112451 | 2007-03236 |
| 5 | 02/05/2007 | WARRANTY D | WARRANTY DEED | CATHEY, MARIE E AS SEP PROPERT | TALLEY, PATRICK E & R RENEE | | | $17,000.00 | 112190 | 2007-01393 |
| 6 | 07/02/1979 | QCD | QUIT CLAIM DEED | | | | | $5,500.00 | 0 | 1959-201925 |
Payout Agreement
| No payout information available.. |