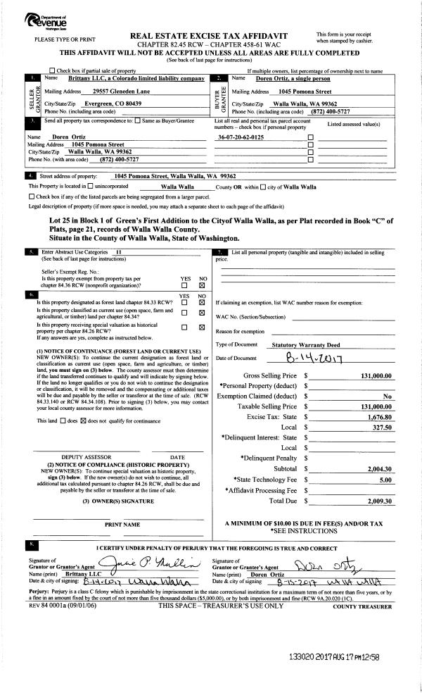
| 1 | 08/17/2017 | SWD | STATUTORY WARRANTY DEED | BRITTANY LLC | ORTIZ DOREN | | | $131,000.00 | 133020 | 2017-06385 |
| 2 | 09/02/2014 | SWD | STATUTORY WARRANTY DEED | SUNNYSIDE INVESTMENTS LLC | BRITTANY LLC | | | $71,500.00 | 126580 | 2014-06507 |
| 3 | 05/25/2007 | QCD | QUIT CLAIM DEED | SMITH, CARL & STEPHANIE E | SUNNYSIDE INVESTMENTS LLC | | | | 112905 | 2007-05965 |
| 4 | 04/03/2007 | WARRANTY D | WARRANTY DEED | ECHEVARRIA-KEARNEY, LYNETTE | SMITH, CARL & STEPHANIE E | | | $54,683.00 | 112543 | 2007-03699 |
| 5 | 04/03/2007 | QCD | QUIT CLAIM DEED | ECHEVARRIA, STEPHEN WARREN | ECHEVARRIA-KEARNEY, LYNETTE | | | | 112542 | 2007-03698 |
| 6 | 04/12/2002 | WARRANTY D | WARRANTY DEED | | | | | $40,000.00 | 99311 | 2002-0004461 |