Property
Account |
| Property ID: | 17099 | Abbreviated Legal Description: | CLARIDGE ADDN LOT 3 BLK 1 |
| Parcel Number: | 350735650103 | Agent Code: | |
| Type: | Real | | |
| Tax Area: | 75 - CP 250 | Land Use Code | 11 |
| Open Space: | N | DFL | N |
| Historic Property: | N | Remodel Property: | N |
| Multi-Family Redevelopment: | N | | |
| Township: | 7 | Section: | 35 |
| Range: | 35 |
Location |
| Address: | 301 SW 10TH ST WA 99324 | Mapsco: | |
| Neighborhood: | A SFR | Map ID: | |
| Neighborhood CD: | 113011 |
Owner |
| Name: | KLEIN JAMES D & TRUDY L | Owner ID: | 65451 |
| Mailing Address: | 575 DANA DR COLLEGE PLACE, WA 99324 | % Ownership: | 100.0000000000% |
| | | Exemptions: | |
Taxes and Assessment Details
Values
| (+) Improvement Homesite Value: | + | $0 | |
| (+) Improvement Non-Homesite Value: | + | $342,200 | |
| (+) Land Homesite Value: | + | $0 | |
| (+) Land Non-Homesite Value: | + | $60,770 | |
| (+) Curr Use (HS): | + | $0 | $0 |
| (+) Curr Use (NHS): | + | $0 | $0 |
| | | -------------------------- | |
| (=) Market Value: | = | $402,970 | |
| (–) Productivity Loss: | – | $0 | |
| | | -------------------------- | |
| (=) Subtotal: | = | $402,970 | |
| (+) Senior Appraised Value: | + | $0 | |
| (+) Non-Senior Appraised Value: | + | $402,970 | |
| | | -------------------------- | |
| (=) Total Appraised Value: | = | $402,970 | |
| (–) Senior Exemption Loss: | – | $0 | |
| (–) Exemption Loss: | – | $0 | |
| | | -------------------------- | |
| (=) Taxable Value: | = | $402,970 | |
Taxing Jurisdiction
| Owner: | KLEIN JAMES D & TRUDY L | | |
| % Ownership: | 100.0000000000% | | |
| Total Value: | $402,970 | | |
| Tax Area: | 75 - CP 250 |
| CERFD | CURRENT EXPENSE REFUND 010 | 0.0000000000 | $402,970 | $402,970 | $0.00 | | |
| CURREXP | CURRENT EXPENSE 010 | 1.0175366760 | $402,970 | $402,970 | $410.04 | | |
| HUMNSERV | HUMAN SERVICES 119 | 0.0250000000 | $402,970 | $402,970 | $10.07 | | |
| SLDREL | SOLDIERS RELIEF 121 | 0.0155990005 | $402,970 | $402,970 | $6.29 | | |
| COLLPLBOND | C OF CP BOND 644 | 0.4374241808 | $402,970 | $402,970 | $176.27 | | |
| COLLPLGEN | CITY OF CP 632 | 1.4453819216 | $402,970 | $402,970 | $582.45 | | |
| EMERGSER | EMS 147 | 0.3792580840 | $402,970 | $402,970 | $152.83 | | |
| EMSRFD | EMS REFUND 147 | 0.0000000000 | $402,970 | $402,970 | $0.00 | | |
| RURALLIB | RURAL LIBRARY 623 | 0.3710609029 | $402,970 | $402,970 | $149.53 | | |
| PORTRFD | PORT REFUND 640 | 0.0000000000 | $402,970 | $402,970 | $0.00 | | |
| PORTWWGEN | PORT OF WW 640 | 0.2460186015 | $402,970 | $402,970 | $99.14 | | |
| SD250BOND | SD #250 BOND 773 | 1.4560608159 | $402,970 | $402,970 | $586.75 | | |
| SD250GEN | SD #250 GENERAL 770 | 2.3880724087 | $402,970 | $402,970 | $962.32 | | |
| ST2 | STATE SCHOOL PART 2 600 | 0.8131451643 | $402,970 | $402,970 | $327.67 | | |
| STATESCHL | STATE SCHOOL 600 | 1.5158548041 | $402,970 | $402,970 | $610.84 | | |
| STREFUND | STATE REFUND LEVY 603 | 0.0000000000 | $402,970 | $402,970 | $0.00 | | |
| | Total Tax Rate: | 10.1104125603 | | | | | |
| | | | | Taxes w/Current Exemptions: | $4,074.20 | | |
| | | | | Taxes w/o Exemptions: | $4,074.20 | | |
Improvement / Building
| Improvement #1: | RESIDENTIAL | State Code: | 11 | 1028.0 sqft | Value: | $342,200 |
| Exterior Wall: | PLYWOOD | Heating/Cooling: | REV-HEAT-PUMP-W/DUCT | | Number of Bathrooms: | 2 | Number of Bedrooms: | 4 | | Plumbing: | 9 | Roof Covering: | WOOD SHAKE |
|
| | Type | Description | Class CD | Sub Class CD | Year Built | Area |
| | MA | Main Area | 11 | 30 | 1984 | 1028.0 |
| | SI1 | SITE IMPROVEMENT | 11 | 30 | 1984 | 1.5 |
| | BASE | BASEMENT | 11 | 30 | 1984 | 960.0 |
| | BPF | BASEMENT -PARTITIONED FINISH | 11 | 30 | 1984 | 960.0 |
| | ATG | Attached Garage | 11 | 30 | 1984 | 528.0 |
| | OSP | Open | 11 | 30 | 1984 | 28.0 |
Sketch
Property Image
Land
| 1 | RES 1 | Converted: Residential | 0.2079 | 9056.00 | 0.00 | 0.00 | 1.00 | $60,770 | $0 |
Roll Value History
| 2026 | N/A | N/A | N/A | N/A | N/A |
| 2025 | $325,090 | $90,110 | $0 | $415,200 | $415,200 |
| 2024 | $342,200 | $60,770 | $0 | $402,970 | $402,970 |
| 2023 | $342,200 | $60,770 | $0 | $402,970 | $402,970 |
| 2022 | $273,760 | $60,770 | $0 | $334,530 | $334,530 |
| 2021 | $182,510 | $60,770 | $0 | $243,280 | $243,280 |
| 2020 | $152,090 | $60,770 | $0 | $212,860 | $212,860 |
| 2019 | $166,560 | $46,300 | $0 | $212,860 | $212,860 |
| 2018 | $166,560 | $46,300 | $0 | $212,860 | $212,860 |
| 2017 | $151,420 | $46,300 | $0 | $197,720 | $197,720 |
| 2016 | $137,660 | $46,300 | $0 | $183,960 | $183,960 |
| 2015 | $131,100 | $46,300 | $0 | $177,400 | $177,400 |
| 2014 | $131,100 | $46,300 | $0 | $177,400 | $177,400 |
| 2013 | $131,100 | $46,300 | $0 | $177,400 | $177,400 |
| 2012 | $131,100 | $46,300 | $0 | $0 | $0 |
| 2011 | $140,400 | $46,300 | $0 | $0 | $0 |
| 2010 | $140,400 | $46,300 | $0 | $0 | $0 |
| 2009 | $161,100 | $46,300 | $0 | $0 | $0 |
| 2008 | $115,800 | $23,900 | $0 | $0 | $0 |
| 2007 | $115,800 | $23,900 | $0 | $0 | $0 |
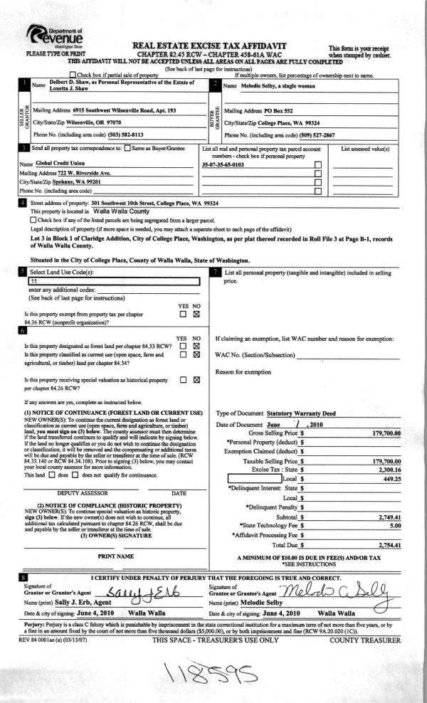
Deed and Sales History
| 1 | 07/10/2019 | SWD | STATUTORY WARRANTY DEED | SELBY MELODIE | KLEIN JAMES D & TRUDY L | | | $249,000.00 | 137242 | 2019-04910 |
| 2 | 06/08/2010 | WARRANTY D | WARRANTY DEED | SHAW, LOUETTA J ESTATE OF | SELBY, MELODIE | | | $179,700.00 | 118595 | 2010-04412 |
| 3 | 08/19/1994 | WARRANTY D | WARRANTY DEED | | | | | $126,500.00 | 82376 | 2229-409772 |
Payout Agreement
| No payout information available.. |