Property
Account |
| Property ID: | 17086 | Abbreviated Legal Description: | WASHINGTON SCHOOL HOMES PUD LOT 7 |
| Parcel Number: | 360719640007 | Agent Code: | |
| Type: | Real | | |
| Tax Area: | 1 - OL-140-F | Land Use Code | 11 |
| Open Space: | N | DFL | N |
| Historic Property: | N | Remodel Property: | N |
| Multi-Family Redevelopment: | N | | |
| Township: | 7 | Section: | 19 |
| Range: | 36 |
Location |
| Address: | 515 MARTHA ST WA 99362 | Mapsco: | |
| Neighborhood: | A-SFR | Map ID: | |
| Neighborhood CD: | 313011 |
Owner |
| Name: | GRIMES THOMAS H & LORI A | Owner ID: | 63560 |
| Mailing Address: | 515 MARTHA ST WALLA WALLA, WA 99362 | % Ownership: | 100.0000000000% |
| | | Exemptions: | |
Taxes and Assessment Details
Property Tax Information as of
04/19/2026
Click on "Statement Details" to expand or collapse a tax statement.
* Please enter a valid date ** Please enter a valid date *
Statement Details |
| | TOTAL: | $0.00 | $0.00 | $0.00 | $0.00 | $0.00 | $0.00 |
|
| | $0.00 | $0.00 | $0.00 | $0.00 | $0.00 | $0.00 |
Values
| (+) Improvement Homesite Value: | + | $0 | |
| (+) Improvement Non-Homesite Value: | + | $254,150 | |
| (+) Land Homesite Value: | + | $0 | |
| (+) Land Non-Homesite Value: | + | $55,000 | |
| (+) Curr Use (HS): | + | $0 | $0 |
| (+) Curr Use (NHS): | + | $0 | $0 |
| | | -------------------------- | |
| (=) Market Value: | = | $309,150 | |
| (–) Productivity Loss: | – | $0 | |
| | | -------------------------- | |
| (=) Subtotal: | = | $309,150 | |
| (+) Senior Appraised Value: | + | $0 | |
| (+) Non-Senior Appraised Value: | + | $309,150 | |
| | | -------------------------- | |
| (=) Total Appraised Value: | = | $309,150 | |
| (–) Senior Exemption Loss: | – | $0 | |
| (–) Exemption Loss: | – | $0 | |
| | | -------------------------- | |
| (=) Taxable Value: | = | $309,150 | |
Taxing Jurisdiction
| Owner: | GRIMES THOMAS H & LORI A | | |
| % Ownership: | 100.0000000000% | | |
| Total Value: | $309,150 | | |
| Tax Area: | 1 - OL-140-F |
| CERFD | CURRENT EXPENSE REFUND 010 | 0.0000000000 | $309,150 | $309,150 | $0.00 | | |
| CURREXP | CURRENT EXPENSE 010 | 1.0175366760 | $309,150 | $309,150 | $314.57 | | |
| HUMNSERV | HUMAN SERVICES 119 | 0.0250000000 | $309,150 | $309,150 | $7.73 | | |
| SLDREL | SOLDIERS RELIEF 121 | 0.0155990005 | $309,150 | $309,150 | $4.82 | | |
| EMERGSER | EMS 147 | 0.3792580840 | $309,150 | $309,150 | $117.25 | | |
| EMSRFD | EMS REFUND 147 | 0.0000000000 | $309,150 | $309,150 | $0.00 | | |
| PORTRFD | PORT REFUND 640 | 0.0000000000 | $309,150 | $309,150 | $0.00 | | |
| PORTWWGEN | PORT OF WW 640 | 0.2460186015 | $309,150 | $309,150 | $76.06 | | |
| SD140BOND | SD #140 BOND 764 | 0.8342371393 | $309,150 | $309,150 | $257.90 | | |
| SD140GEN | SD #140 GENERAL 760 | 2.0646500647 | $309,150 | $309,150 | $638.29 | | |
| ST2 | STATE SCHOOL PART 2 600 | 0.8131451643 | $309,150 | $309,150 | $251.38 | | |
| STATESCHL | STATE SCHOOL 600 | 1.5158548041 | $309,150 | $309,150 | $468.63 | | |
| STREFUND | STATE REFUND LEVY 603 | 0.0000000000 | $309,150 | $309,150 | $0.00 | | |
| CWWBOND | C OF WW BOND 643 | 0.2760494372 | $309,150 | $309,150 | $85.34 | | |
| CWWGEN | CITY OF WW 631 | 1.6100204973 | $309,150 | $309,150 | $497.74 | | |
| CWWRFD | CITY OF WALLA WALLA REFUND 631 | 0.0000000000 | $309,150 | $309,150 | $0.00 | | |
| | Total Tax Rate: | 8.7973694689 | | | | | |
| | | | | Taxes w/Current Exemptions: | $2,719.71 | | |
| | | | | Taxes w/o Exemptions: | $2,719.71 | | |
Improvement / Building
| Improvement #1: | RESIDENTIAL | State Code: | 11 | 1528.0 sqft | Value: | $254,150 |
| Exterior Wall: | SIDING | Foundation: | SLAB FOUNDATION | | Heating/Cooling: | WARM & COOLED AIR | Number of Bathrooms: | 2.5 | | Number of Bedrooms: | 3 | Plumbing: | 10 | | Roof Covering: | COMP SHINGLE |   |   |
|
| | Type | Description | Class CD | Sub Class CD | Year Built | Area |
| | MA | Main Area | 4 | 35 | 2007 | 1528.0 |
| | GFP | GAS FIREPLACE | 4 | 35 | 0 | 1.0 |
| | RPC | OPEN PORCH W/ROOF , CEILED | 4 | 35 | 0 | 56.0 |
| | RPC | OPEN PORCH W/ROOF , CEILED | 4 | 35 | 0 | 77.0 |
| | SI1 | SITE IMPROVEMENT | 4 | 35 | 0 | 1.5 |
| | BIG | Built In Garage | 4 | 35 | 2007 | 312.0 |
| | UPFL | Upper Floor (included in main area) | 4 | 35 | 2007 | 812.0 |
Sketch
Property Image
Land
| 1 | RES 1 | Converted: Residential | 0.0942 | 4103.00 | 0.00 | 0.00 | 1.00 | $55,000 | $0 |
Roll Value History
| 2026 | N/A | N/A | N/A | N/A | N/A |
| 2025 | $313,110 | $55,000 | $0 | $368,110 | $368,110 |
| 2024 | $284,650 | $55,000 | $0 | $339,650 | $339,650 |
| 2023 | $254,150 | $55,000 | $0 | $309,150 | $309,150 |
| 2022 | $203,320 | $55,000 | $0 | $258,320 | $258,320 |
| 2021 | $196,330 | $20,000 | $0 | $216,330 | $216,330 |
| 2020 | $170,720 | $20,000 | $0 | $190,720 | $190,720 |
| 2019 | $170,720 | $20,000 | $0 | $190,720 | $190,720 |
| 2018 | $142,270 | $20,000 | $0 | $162,270 | $162,270 |
| 2017 | $142,270 | $20,000 | $0 | $162,270 | $162,270 |
| 2016 | $135,490 | $20,000 | $0 | $155,490 | $155,490 |
| 2015 | $130,560 | $20,000 | $0 | $150,560 | $150,560 |
| 2014 | $128,000 | $20,000 | $0 | $148,000 | $148,000 |
| 2013 | $128,000 | $20,000 | $0 | $148,000 | $148,000 |
| 2012 | $131,000 | $20,000 | $0 | $0 | $0 |
| 2011 | $135,700 | $20,000 | $0 | $0 | $0 |
| 2010 | $0 | $0 | $0 | $0 | $0 |
| 2009 | $0 | $0 | $0 | $0 | $0 |
| 2008 | $0 | $0 | $0 | $0 | $0 |
| 2007 | $0 | $0 | $0 | $0 | $0 |
Deed and Sales History
| 1 | 07/11/2018 | SWD | STATUTORY WARRANTY DEED | HILL PAUL D & TINA G | GRIMES THOMAS H & LORI A | | | $206,500.00 | 135100 | 2018-05600 |
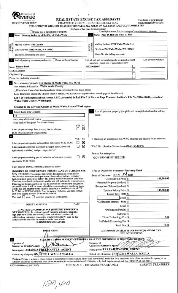
| 2 | 07/15/2011 | WARRANTY D | WARRANTY DEED | WALLA WALLA HOUSING AUTHORITY | HILL, PAUL D & TINA G | | | $149,900.00 | 120410 | 2011-05487 |
| 3 | 01/11/2007 | WARRANTY D | WARRANTY DEED | WALLA WALLA CITY OF | WALLA WALLA HOUSING AUTHORITY | | | | 112058 | 2007-00481 |
Payout Agreement
| No payout information available.. |