Property
Account |
| Property ID: | 17082 | Abbreviated Legal Description: | WASHINGTON SCHOOL HOMES PUD LOT 3 |
| Parcel Number: | 360719640003 | Agent Code: | |
| Type: | Real | | |
| Tax Area: | 1 - OL-140-F | Land Use Code | 11 |
| Open Space: | N | DFL | N |
| Historic Property: | N | Remodel Property: | N |
| Multi-Family Redevelopment: | N | | |
| Township: | 7 | Section: | 19 |
| Range: | 36 |
Location |
| Address: | 531 MARTHA ST WA 99362 | Mapsco: | |
| Neighborhood: | A-SFR | Map ID: | |
| Neighborhood CD: | 313011 |
Owner |
| Name: | DURAN MARIA E | Owner ID: | 66413 |
| Mailing Address: | 531 MARTHA ST WALLA WALLA, WA 99362 | % Ownership: | 100.0000000000% |
| | | Exemptions: | |
Taxes and Assessment Details
Values
| (+) Improvement Homesite Value: | + | $0 | |
| (+) Improvement Non-Homesite Value: | + | $258,060 | |
| (+) Land Homesite Value: | + | $0 | |
| (+) Land Non-Homesite Value: | + | $55,000 | |
| (+) Curr Use (HS): | + | $0 | $0 |
| (+) Curr Use (NHS): | + | $0 | $0 |
| | | -------------------------- | |
| (=) Market Value: | = | $313,060 | |
| (–) Productivity Loss: | – | $0 | |
| | | -------------------------- | |
| (=) Subtotal: | = | $313,060 | |
| (+) Senior Appraised Value: | + | $0 | |
| (+) Non-Senior Appraised Value: | + | $313,060 | |
| | | -------------------------- | |
| (=) Total Appraised Value: | = | $313,060 | |
| (–) Senior Exemption Loss: | – | $0 | |
| (–) Exemption Loss: | – | $0 | |
| | | -------------------------- | |
| (=) Taxable Value: | = | $313,060 | |
Taxing Jurisdiction
| Owner: | DURAN MARIA E | | |
| % Ownership: | 100.0000000000% | | |
| Total Value: | $313,060 | | |
| Tax Area: | 1 - OL-140-F |
| CERFD | CURRENT EXPENSE REFUND 010 | 0.0000000000 | $313,060 | $313,060 | $0.00 | | |
| CURREXP | CURRENT EXPENSE 010 | 1.0175366760 | $313,060 | $313,060 | $318.55 | | |
| HUMNSERV | HUMAN SERVICES 119 | 0.0250000000 | $313,060 | $313,060 | $7.83 | | |
| SLDREL | SOLDIERS RELIEF 121 | 0.0155990005 | $313,060 | $313,060 | $4.88 | | |
| EMERGSER | EMS 147 | 0.3792580840 | $313,060 | $313,060 | $118.73 | | |
| EMSRFD | EMS REFUND 147 | 0.0000000000 | $313,060 | $313,060 | $0.00 | | |
| PORTRFD | PORT REFUND 640 | 0.0000000000 | $313,060 | $313,060 | $0.00 | | |
| PORTWWGEN | PORT OF WW 640 | 0.2460186015 | $313,060 | $313,060 | $77.02 | | |
| SD140BOND | SD #140 BOND 764 | 0.8342371393 | $313,060 | $313,060 | $261.17 | | |
| SD140GEN | SD #140 GENERAL 760 | 2.0646500647 | $313,060 | $313,060 | $646.36 | | |
| ST2 | STATE SCHOOL PART 2 600 | 0.8131451643 | $313,060 | $313,060 | $254.56 | | |
| STATESCHL | STATE SCHOOL 600 | 1.5158548041 | $313,060 | $313,060 | $474.55 | | |
| STREFUND | STATE REFUND LEVY 603 | 0.0000000000 | $313,060 | $313,060 | $0.00 | | |
| CWWBOND | C OF WW BOND 643 | 0.2760494372 | $313,060 | $313,060 | $86.42 | | |
| CWWGEN | CITY OF WW 631 | 1.6100204973 | $313,060 | $313,060 | $504.03 | | |
| CWWRFD | CITY OF WALLA WALLA REFUND 631 | 0.0000000000 | $313,060 | $313,060 | $0.00 | | |
| | Total Tax Rate: | 8.7973694689 | | | | | |
| | | | | Taxes w/Current Exemptions: | $2,754.10 | | |
| | | | | Taxes w/o Exemptions: | $2,754.10 | | |
Improvement / Building
| Improvement #1: | RESIDENTIAL | State Code: | 11 | 1528.0 sqft | Value: | $258,060 |
| Exterior Wall: | SIDING | Foundation: | SLAB FOUNDATION | | Heating/Cooling: | WARM & COOLED AIR | Number of Bathrooms: | 2.5 | | Number of Bedrooms: | 3 | Plumbing: | 10 | | Roof Covering: | COMP SHINGLE |   |   |
|
| | Type | Description | Class CD | Sub Class CD | Year Built | Area |
| | MA | Main Area | 4 | 35 | 2007 | 1528.0 |
| | GFP | GAS FIREPLACE | 4 | 35 | 0 | 1.0 |
| | RPC | OPEN PORCH W/ROOF , CEILED | 4 | 35 | 0 | 56.0 |
| | RPC | OPEN PORCH W/ROOF , CEILED | 4 | 35 | 0 | 63.0 |
| | SI1 | SITE IMPROVEMENT | 4 | 35 | 0 | 2.5 |
| | BIG | Built In Garage | 4 | 35 | 2007 | 312.0 |
| | UPFL | Upper Floor (included in main area) | 4 | 35 | 2007 | 860.0 |
Sketch
Property Image
Land
| 1 | RES 1 | Converted: Residential | 0.0811 | 3531.00 | 0.00 | 0.00 | 1.00 | $55,000 | $0 |
Roll Value History
| 2026 | N/A | N/A | N/A | N/A | N/A |
| 2025 | $317,930 | $55,000 | $0 | $372,930 | $372,930 |
| 2024 | $289,030 | $55,000 | $0 | $344,030 | $344,030 |
| 2023 | $258,060 | $55,000 | $0 | $313,060 | $313,060 |
| 2022 | $206,450 | $55,000 | $0 | $261,450 | $261,450 |
| 2021 | $195,890 | $20,000 | $0 | $215,890 | $215,890 |
| 2020 | $195,890 | $20,000 | $0 | $215,890 | $215,890 |
| 2019 | $170,340 | $20,000 | $0 | $190,340 | $190,340 |
| 2018 | $141,950 | $20,000 | $0 | $161,950 | $161,950 |
| 2017 | $141,950 | $20,000 | $0 | $161,950 | $161,950 |
| 2016 | $135,190 | $20,000 | $0 | $155,190 | $155,190 |
| 2015 | $130,560 | $20,000 | $0 | $150,560 | $150,560 |
| 2014 | $128,000 | $20,000 | $0 | $148,000 | $148,000 |
| 2013 | $128,000 | $20,000 | $0 | $148,000 | $148,000 |
| 2012 | $131,000 | $20,000 | $0 | $0 | $0 |
| 2011 | $0 | $0 | $0 | $0 | $0 |
| 2010 | $0 | $0 | $0 | $0 | $0 |
| 2009 | $0 | $0 | $0 | $0 | $0 |
| 2008 | $0 | $0 | $0 | $0 | $0 |
| 2007 | $0 | $0 | $0 | $0 | $0 |
Deed and Sales History
| 1 | 12/11/2019 | SWD | STATUTORY WARRANTY DEED | RUIZ PEDRO L | DURAN MARIA E | | | $222,500.00 | 138238 | 2019-10271 |
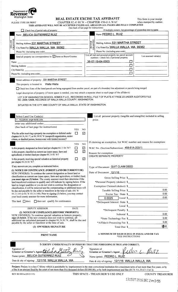
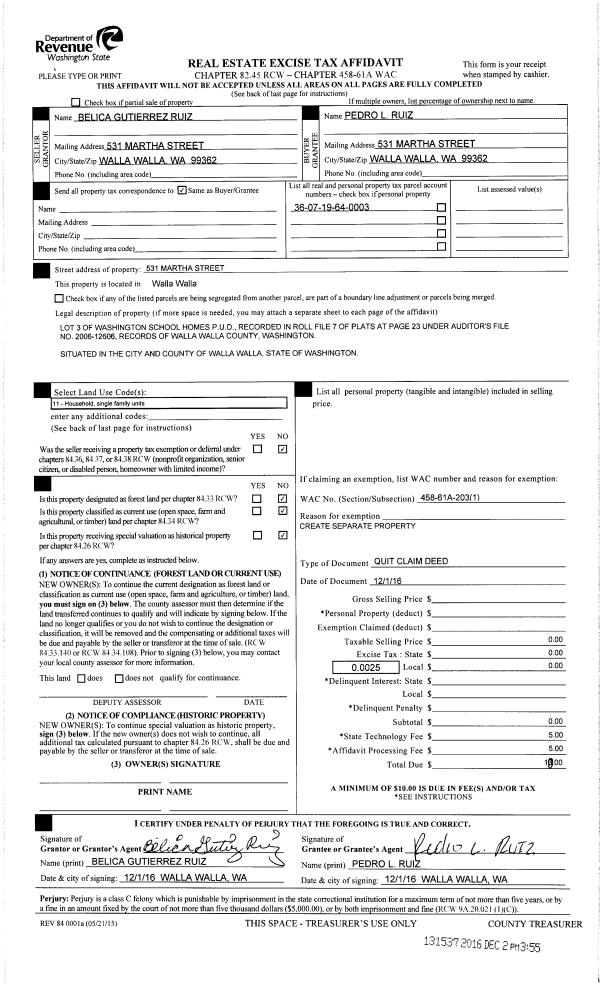
| 2 | 12/02/2016 | QCD | QUIT CLAIM DEED | RUIZ BELICA GUTIERREZ | RUIZ PEDRO L | | | | 131537 | 2016-09901 |
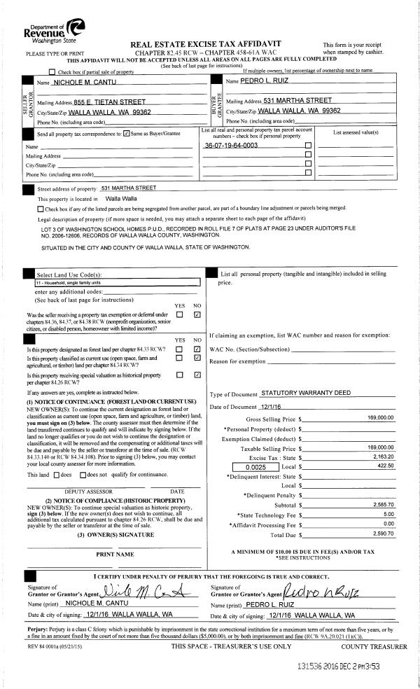
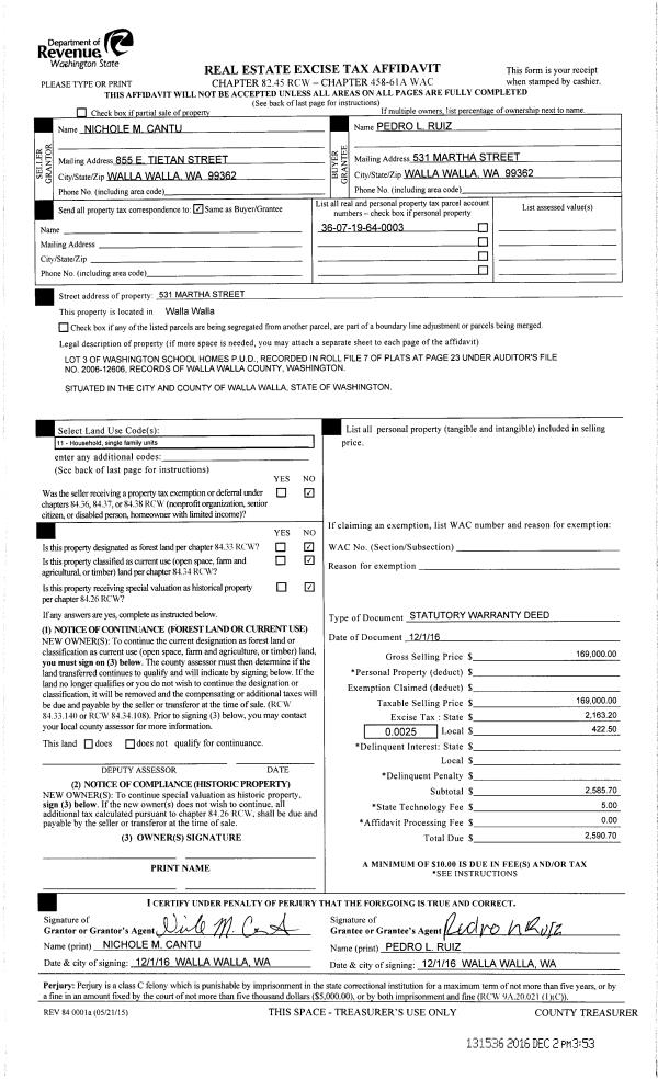
| 3 | 12/02/2016 | SWD | STATUTORY WARRANTY DEED | CANTU NICHOLE M | RUIZ PEDRO L | | | $169,000.00 | 131536 | 2016-09900 |
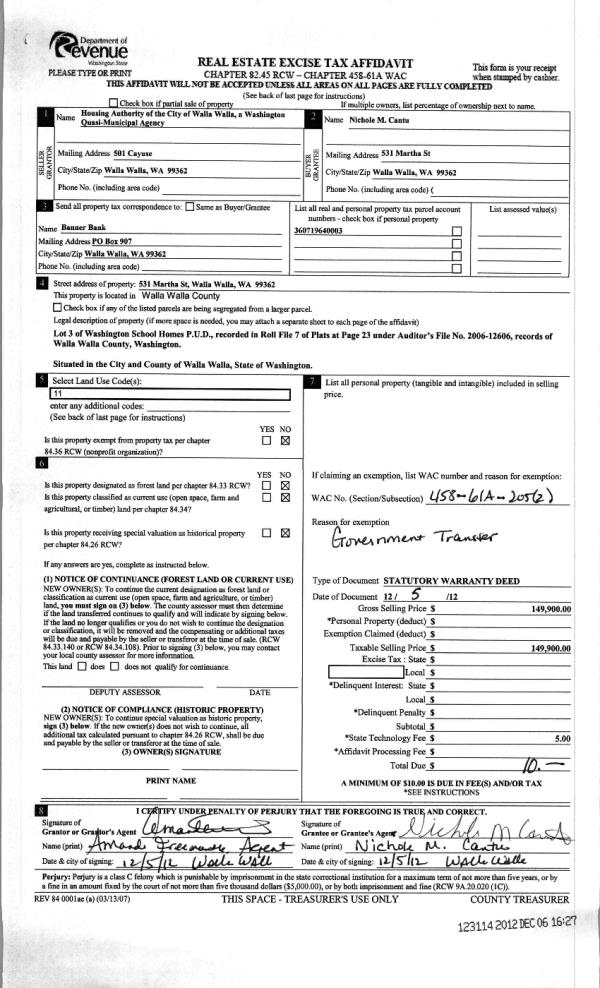
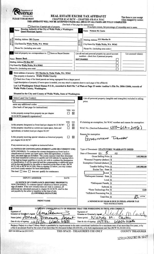
| 4 | 12/06/2012 | WARRANTY D | WARRANTY DEED | WALLA WALLA HOUSING AUTHORITY | CANTU, NICHOLE M | | | $149,900.00 | 123114 | 2012-10876 |
| 5 | 01/11/2007 | WARRANTY D | WARRANTY DEED | WALLA WALLA CITY OF | WALLA WALLA HOUSING AUTHORITY | | | | 112058 | 2007-00481 |
Payout Agreement
| No payout information available.. |