Property
Account |
| Property ID: | 17081 | Abbreviated Legal Description: | WASHINGTON SCHOOL HOMES PUD LOT 2 |
| Parcel Number: | 360719640002 | Agent Code: | |
| Type: | Real | | |
| Tax Area: | 1 - OL-140-F | Land Use Code | 11 |
| Open Space: | N | DFL | N |
| Historic Property: | N | Remodel Property: | N |
| Multi-Family Redevelopment: | N | | |
| Township: | 7 | Section: | 19 |
| Range: | 36 |
Location |
| Address: | 537 MARTHA ST WA 99362 | Mapsco: | |
| Neighborhood: | A-SFR | Map ID: | |
| Neighborhood CD: | 313011 |
Owner |
| Name: | CARTER REBECCA | Owner ID: | 65547 |
| Mailing Address: | 537 MARTHA ST WALLA WALLA, WA 99362 | % Ownership: | 100.0000000000% |
| | | Exemptions: | |
Taxes and Assessment Details
Property Tax Information as of
02/21/2026
Click on "Statement Details" to expand or collapse a tax statement.
* Please enter a valid date ** Please enter a valid date *
Statement Details |
| | TOTAL: | $0.00 | $0.00 | $0.00 | $0.00 | $0.00 | $0.00 |
|
| | $0.00 | $0.00 | $0.00 | $0.00 | $0.00 | $0.00 |
Values
| (+) Improvement Homesite Value: | + | $0 | |
| (+) Improvement Non-Homesite Value: | + | $251,780 | |
| (+) Land Homesite Value: | + | $0 | |
| (+) Land Non-Homesite Value: | + | $55,000 | |
| (+) Curr Use (HS): | + | $0 | $0 |
| (+) Curr Use (NHS): | + | $0 | $0 |
| | | -------------------------- | |
| (=) Market Value: | = | $306,780 | |
| (–) Productivity Loss: | – | $0 | |
| | | -------------------------- | |
| (=) Subtotal: | = | $306,780 | |
| (+) Senior Appraised Value: | + | $0 | |
| (+) Non-Senior Appraised Value: | + | $306,780 | |
| | | -------------------------- | |
| (=) Total Appraised Value: | = | $306,780 | |
| (–) Senior Exemption Loss: | – | $0 | |
| (–) Exemption Loss: | – | $0 | |
| | | -------------------------- | |
| (=) Taxable Value: | = | $306,780 | |
Taxing Jurisdiction
| Owner: | CARTER REBECCA | | |
| % Ownership: | 100.0000000000% | | |
| Total Value: | $306,780 | | |
| Tax Area: | 1 - OL-140-F |
| CERFD | CURRENT EXPENSE REFUND 010 | 0.0000000000 | $306,780 | $306,780 | $0.00 | | |
| CURREXP | CURRENT EXPENSE 010 | 1.0175366760 | $306,780 | $306,780 | $312.16 | | |
| HUMNSERV | HUMAN SERVICES 119 | 0.0250000000 | $306,780 | $306,780 | $7.67 | | |
| SLDREL | SOLDIERS RELIEF 121 | 0.0155990005 | $306,780 | $306,780 | $4.79 | | |
| EMERGSER | EMS 147 | 0.3792580840 | $306,780 | $306,780 | $116.35 | | |
| EMSRFD | EMS REFUND 147 | 0.0000000000 | $306,780 | $306,780 | $0.00 | | |
| PORTRFD | PORT REFUND 640 | 0.0000000000 | $306,780 | $306,780 | $0.00 | | |
| PORTWWGEN | PORT OF WW 640 | 0.2460186015 | $306,780 | $306,780 | $75.47 | | |
| SD140BOND | SD #140 BOND 764 | 0.8342371393 | $306,780 | $306,780 | $255.93 | | |
| SD140GEN | SD #140 GENERAL 760 | 2.0646500647 | $306,780 | $306,780 | $633.39 | | |
| ST2 | STATE SCHOOL PART 2 600 | 0.8131451643 | $306,780 | $306,780 | $249.46 | | |
| STATESCHL | STATE SCHOOL 600 | 1.5158548041 | $306,780 | $306,780 | $465.03 | | |
| STREFUND | STATE REFUND LEVY 603 | 0.0000000000 | $306,780 | $306,780 | $0.00 | | |
| CWWBOND | C OF WW BOND 643 | 0.2760494372 | $306,780 | $306,780 | $84.69 | | |
| CWWGEN | CITY OF WW 631 | 1.6100204973 | $306,780 | $306,780 | $493.92 | | |
| CWWRFD | CITY OF WALLA WALLA REFUND 631 | 0.0000000000 | $306,780 | $306,780 | $0.00 | | |
| | Total Tax Rate: | 8.7973694689 | | | | | |
| | | | | Taxes w/Current Exemptions: | $2,698.86 | | |
| | | | | Taxes w/o Exemptions: | $2,698.86 | | |
Improvement / Building
| Improvement #1: | RESIDENTIAL | State Code: | 11 | 1537.0 sqft | Value: | $251,780 |
| Exterior Wall: | SIDING | Foundation: | SLAB FOUNDATION | | Heating/Cooling: | WARM & COOLED AIR | Number of Bathrooms: | 2.5 | | Number of Bedrooms: | 3 | Plumbing: | 10 | | Roof Covering: | COMP SHINGLE |   |   |
|
| | Type | Description | Class CD | Sub Class CD | Year Built | Area |
| | MA | Main Area | 4 | 35 | 2007 | 1537.0 |
| | RPC | OPEN PORCH W/ROOF , CEILED | 4 | 35 | 0 | 52.0 |
| | RPC | OPEN PORCH W/ROOF , CEILED | 4 | 35 | 0 | 54.0 |
| | SI1 | SITE IMPROVEMENT | 4 | 35 | 0 | 1.5 |
| | BIG | Built In Garage | 4 | 35 | 2007 | 325.0 |
| | UPFL | Upper Floor (included in main area) | 4 | 35 | 2007 | 828.0 |
Sketch
Property Image
Land
| 1 | RES 1 | Converted: Residential | 0.0810 | 3530.00 | 0.00 | 0.00 | 1.00 | $55,000 | $0 |
Roll Value History
| 2026 | N/A | N/A | N/A | N/A | N/A |
| 2025 | $318,500 | $55,000 | $0 | $373,500 | $373,500 |
| 2024 | $289,540 | $55,000 | $0 | $344,540 | $344,540 |
| 2023 | $251,780 | $55,000 | $0 | $306,780 | $306,780 |
| 2022 | $201,420 | $55,000 | $0 | $256,420 | $256,420 |
| 2021 | $192,560 | $20,000 | $0 | $212,560 | $212,560 |
| 2020 | $173,480 | $20,000 | $0 | $193,480 | $193,480 |
| 2019 | $173,480 | $20,000 | $0 | $193,480 | $193,480 |
| 2018 | $144,570 | $20,000 | $0 | $164,570 | $164,570 |
| 2017 | $144,570 | $20,000 | $0 | $164,570 | $164,570 |
| 2016 | $133,860 | $20,000 | $0 | $153,860 | $153,860 |
| 2015 | $131,380 | $20,000 | $0 | $151,380 | $151,380 |
| 2014 | $128,800 | $20,000 | $0 | $148,800 | $148,800 |
| 2013 | $128,800 | $20,000 | $0 | $148,800 | $148,800 |
| 2012 | $130,300 | $20,000 | $0 | $0 | $0 |
| 2011 | $134,900 | $20,000 | $0 | $0 | $0 |
| 2010 | $155,500 | $20,000 | $0 | $0 | $0 |
| 2009 | $0 | $0 | $0 | $0 | $0 |
| 2008 | $0 | $0 | $0 | $0 | $0 |
| 2007 | $0 | $0 | $0 | $0 | $0 |
Deed and Sales History
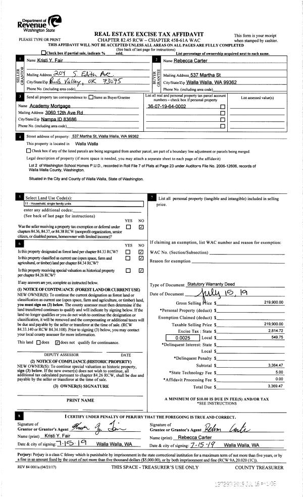
| 1 | 07/16/2019 | SWD | STATUTORY WARRANTY DEED | FAIR KRISTI Y | CARTER REBECCA | | | $219,900.00 | 137293 | 2019-05166 |
| 2 | 06/07/2010 | WARRANTY D | WARRANTY DEED | WALLA WALLA HOUSING AUTHORITY | FAIR, KRISTI Y | | | $165,000.00 | 118587 | 2010-04374 |
| 3 | 01/11/2007 | WARRANTY D | WARRANTY DEED | WALLA WALLA CITY OF | WALLA WALLA HOUSING AUTHORITY | | | | 112058 | 2007-00481 |
Payout Agreement
| No payout information available.. |