Property
Account |
| Property ID: | 17057 | Abbreviated Legal Description: | SPRING GROVE #2 LOTS 24 THRU 29 BLK 1 AND STRIPS |
| Parcel Number: | 360728720124 | Agent Code: | |
| Type: | Real | | |
| Tax Area: | 1 - OL-140-F | Land Use Code | 11 |
| Open Space: | N | DFL | N |
| Historic Property: | N | Remodel Property: | N |
| Multi-Family Redevelopment: | N | | |
| Township: | 7 | Section: | 28 |
| Range: | 36 |
Location |
| Address: | 816 STATESMAN ST WA 99362 | Mapsco: | |
| Neighborhood: | A Res | Map ID: | |
| Neighborhood CD: | 613011 |
Owner |
| Name: | SCHULTZE BENJAMIN & CHRISTOPHER R HERMAN | Owner ID: | 73489 |
| Mailing Address: | 816 STATESMAN ST WALLA WALLA, WA 99362 | % Ownership: | 100.0000000000% |
| | | Exemptions: | |
Taxes and Assessment Details
Values
| (+) Improvement Homesite Value: | + | $691,200 | |
| (+) Improvement Non-Homesite Value: | + | $0 | |
| (+) Land Homesite Value: | + | $97,610 | |
| (+) Land Non-Homesite Value: | + | $0 | |
| (+) Curr Use (HS): | + | $0 | $0 |
| (+) Curr Use (NHS): | + | $0 | $0 |
| | | -------------------------- | |
| (=) Market Value: | = | $788,810 | |
| (–) Productivity Loss: | – | $0 | |
| | | -------------------------- | |
| (=) Subtotal: | = | $788,810 | |
| (+) Senior Appraised Value: | + | $0 | |
| (+) Non-Senior Appraised Value: | + | $788,810 | |
| | | -------------------------- | |
| (=) Total Appraised Value: | = | $788,810 | |
| (–) Senior Exemption Loss: | – | $0 | |
| (–) Exemption Loss: | – | $0 | |
| | | -------------------------- | |
| (=) Taxable Value: | = | $788,810 | |
Taxing Jurisdiction
| Owner: | SCHULTZE BENJAMIN & CHRISTOPHER R HERMAN | | |
| % Ownership: | 100.0000000000% | | |
| Total Value: | $788,810 | | |
| Tax Area: | 1 - OL-140-F |
| CERFD | CURRENT EXPENSE REFUND 010 | 0.0000000000 | $788,810 | $788,810 | $0.00 | | |
| CURREXP | CURRENT EXPENSE 010 | 1.0175366760 | $788,810 | $788,810 | $802.64 | | |
| HUMNSERV | HUMAN SERVICES 119 | 0.0250000000 | $788,810 | $788,810 | $19.72 | | |
| SLDREL | SOLDIERS RELIEF 121 | 0.0155990005 | $788,810 | $788,810 | $12.30 | | |
| EMERGSER | EMS 147 | 0.3792580840 | $788,810 | $788,810 | $299.16 | | |
| EMSRFD | EMS REFUND 147 | 0.0000000000 | $788,810 | $788,810 | $0.00 | | |
| PORTRFD | PORT REFUND 640 | 0.0000000000 | $788,810 | $788,810 | $0.00 | | |
| PORTWWGEN | PORT OF WW 640 | 0.2460186015 | $788,810 | $788,810 | $194.06 | | |
| SD140BOND | SD #140 BOND 764 | 0.8342371393 | $788,810 | $788,810 | $658.05 | | |
| SD140GEN | SD #140 GENERAL 760 | 2.0646500647 | $788,810 | $788,810 | $1,628.62 | | |
| ST2 | STATE SCHOOL PART 2 600 | 0.8131451643 | $788,810 | $788,810 | $641.42 | | |
| STATESCHL | STATE SCHOOL 600 | 1.5158548041 | $788,810 | $788,810 | $1,195.72 | | |
| STREFUND | STATE REFUND LEVY 603 | 0.0000000000 | $788,810 | $788,810 | $0.00 | | |
| CWWBOND | C OF WW BOND 643 | 0.2760494372 | $788,810 | $788,810 | $217.75 | | |
| CWWGEN | CITY OF WW 631 | 1.6100204973 | $788,810 | $788,810 | $1,270.00 | | |
| CWWRFD | CITY OF WALLA WALLA REFUND 631 | 0.0000000000 | $788,810 | $788,810 | $0.00 | | |
| | Total Tax Rate: | 8.7973694689 | | | | | |
| | | | | Taxes w/Current Exemptions: | $6,939.44 | | |
| | | | | Taxes w/o Exemptions: | $6,939.44 | | |
Improvement / Building
| Improvement #1: | RESIDENTIAL | State Code: | 11 | 1653.0 sqft | Value: | $691,200 |
| Exterior Wall: | SIDING | Heating/Cooling: | WARM & COOLED AIR | | Number of Bathrooms: | 2.5 | Number of Bedrooms: | 3 | | Plumbing: | 12 | Roof Covering: | BITUMEN MEMBRANE |
|
| | Type | Description | Class CD | Sub Class CD | Year Built | Area |
| | MA | Main Area | 1 | 45 | 1963 | 1653.0 |
| | SI1 | SITE IMPROVEMENT | 1 | 45 | 1963 | 6.0 |
| | S1F | Single One Story Fireplace | 1 | 45 | 1963 | 1.0 |
| | RPC | OPEN PORCH W/ROOF , CEILED | 1 | 45 | 1963 | 40.0 |
| | RPC | OPEN PORCH W/ROOF , CEILED | 1 | 45 | 1963 | 182.0 |
| | ATG | Attached Garage | 1 | 45 | 1963 | 552.0 |
| | BRW | BREEZEWAY | 1 | 45 | 2021 | 68.0 |
| | GUH | GUEST HOUSE | 1 | 45 | 2021 | 701.0 |
Sketch
Property Image
Land
| 1 | RES 1 | Converted: Residential | 0.4649 | 20250.00 | 0.00 | 0.00 | 1.00 | $97,610 | $0 |
Roll Value History
| 2026 | N/A | N/A | N/A | N/A | N/A |
| 2025 | $694,150 | $119,270 | $0 | $813,420 | $813,420 |
| 2024 | $691,200 | $97,610 | $0 | $788,810 | $788,810 |
| 2023 | $691,200 | $97,610 | $0 | $788,810 | $788,810 |
| 2022 | $628,360 | $77,960 | $0 | $706,320 | $706,320 |
| 2021 | $536,780 | $77,960 | $0 | $614,740 | $614,740 |
| 2020 | $140,950 | $77,960 | $0 | $218,910 | $218,910 |
| 2019 | $140,950 | $77,960 | $0 | $218,910 | $218,910 |
| 2018 | $140,950 | $55,800 | $0 | $196,750 | $196,750 |
| 2017 | $122,560 | $55,800 | $0 | $178,360 | $93,100 |
| 2016 | $106,580 | $55,800 | $0 | $162,380 | $93,100 |
| 2015 | $101,500 | $55,800 | $0 | $157,300 | $43,100 |
| 2014 | $101,500 | $55,800 | $0 | $157,300 | $43,100 |
| 2013 | $101,500 | $55,800 | $0 | $157,300 | $157,300 |
| 2012 | $101,500 | $55,800 | $0 | $0 | $0 |
| 2011 | $101,500 | $55,800 | $0 | $0 | $0 |
| 2010 | $88,500 | $55,800 | $0 | $0 | $0 |
| 2009 | $104,500 | $55,800 | $0 | $0 | $0 |
| 2008 | $104,500 | $55,800 | $0 | $0 | $0 |
| 2007 | $81,800 | $33,300 | $0 | $0 | $0 |
Deed and Sales History
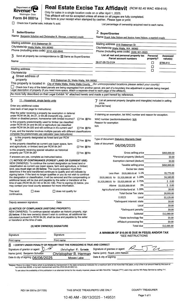
| 1 | 06/13/2025 | SWD | STATUTORY WARRANTY DEED | SCHULTZE BENJAMIN & CHRISTOPHER R HERMAN | NELSON ROARK JOHN & JESSICA ANNE | | | $850,000.00 | 149531 | 2025-03330 |
| 2 | 04/26/2023 | SWD | STATUTORY WARRANTY DEED | PRICE PETER C & SARA GRIPPEN | SCHULTZE BENJAMIN & CHRISTOPHER R HERMAN | | | $899,900.00 | 145715 | 2023-02180 |
| 3 | 11/23/2020 | SWD | STATUTORY WARRANTY DEED | KBM ENTERPRISES LLC | PRICE PETER C & SARA GRIPPEN | | | $589,000.00 | 140400 | 2020-12332 |
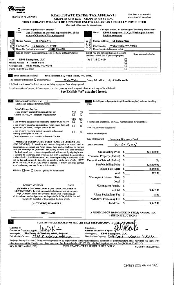
| 4 | 05/04/2018 | SWD | STATUTORY WARRANTY DEED | WIRTH CHARLOTTE ESTATE OF | KBM ENTERPRISES LLC | | | $225,000.00 | 134639 | 2018-03525 |
| 5 | 03/01/1963 | WARRANTY D | WARRANTY DEED | | | | | $6,000.00 | 0 | 3050-446802 |
Payout Agreement
| No payout information available.. |