Property
Account |
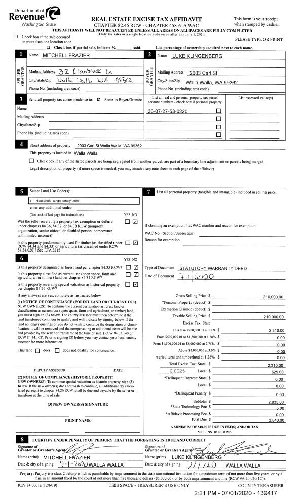
| Property ID: | 17054 | Abbreviated Legal Description: | EAST WALLA WALLA TAX 1 LOT 10 BLK 2 |
| Parcel Number: | 360727530220 | Agent Code: | |
| Type: | Real | | |
| Tax Area: | 105 - 140-F-4 | Land Use Code | 11 |
| Open Space: | N | DFL | N |
| Historic Property: | N | Remodel Property: | N |
| Multi-Family Redevelopment: | N | | |
| Township: | 7 | Section: | 27 |
| Range: | 36 |
Location |
| Address: | 2003 CARL ST WA 99362 | Mapsco: | |
| Neighborhood: | A Inferior Res | Map ID: | |
| Neighborhood CD: | 413111 |
Owner |
| Name: | KLINGENBERG LUKE | Owner ID: | 67433 |
| Mailing Address: | 2003 CARL ST WALLA WALLA, WA 99362 | % Ownership: | 100.0000000000% |
| | | Exemptions: | |
Taxes and Assessment Details
Values
| (+) Improvement Homesite Value: | + | $0 | |
| (+) Improvement Non-Homesite Value: | + | $221,760 | |
| (+) Land Homesite Value: | + | $0 | |
| (+) Land Non-Homesite Value: | + | $60,340 | |
| (+) Curr Use (HS): | + | $0 | $0 |
| (+) Curr Use (NHS): | + | $0 | $0 |
| | | -------------------------- | |
| (=) Market Value: | = | $282,100 | |
| (–) Productivity Loss: | – | $0 | |
| | | -------------------------- | |
| (=) Subtotal: | = | $282,100 | |
| (+) Senior Appraised Value: | + | $0 | |
| (+) Non-Senior Appraised Value: | + | $282,100 | |
| | | -------------------------- | |
| (=) Total Appraised Value: | = | $282,100 | |
| (–) Senior Exemption Loss: | – | $0 | |
| (–) Exemption Loss: | – | $0 | |
| | | -------------------------- | |
| (=) Taxable Value: | = | $282,100 | |
Taxing Jurisdiction
| Owner: | KLINGENBERG LUKE | | |
| % Ownership: | 100.0000000000% | | |
| Total Value: | $282,100 | | |
| Tax Area: | 105 - 140-F-4 |
| CERFD | CURRENT EXPENSE REFUND 010 | 0.0000000000 | $282,100 | $282,100 | $0.00 | | |
| CURREXP | CURRENT EXPENSE 010 | 1.0175366760 | $282,100 | $282,100 | $287.05 | | |
| HUMNSERV | HUMAN SERVICES 119 | 0.0250000000 | $282,100 | $282,100 | $7.05 | | |
| SLDREL | SOLDIERS RELIEF 121 | 0.0155990005 | $282,100 | $282,100 | $4.40 | | |
| EMERGSER | EMS 147 | 0.3792580840 | $282,100 | $282,100 | $106.99 | | |
| EMSRFD | EMS REFUND 147 | 0.0000000000 | $282,100 | $282,100 | $0.00 | | |
| FD4EXP | FD #4 EXPENSE 686 | 0.8836993059 | $282,100 | $282,100 | $249.29 | | |
| RLBRFD | RURAL LIBRARY REFUND 623 | 0.0000000000 | $282,100 | $282,100 | $0.00 | | |
| RURALLIB | RURAL LIBRARY 623 | 0.3710609029 | $282,100 | $282,100 | $104.68 | | |
| PORTRFD | PORT REFUND 640 | 0.0000000000 | $282,100 | $282,100 | $0.00 | | |
| PORTWWGEN | PORT OF WW 640 | 0.2460186015 | $282,100 | $282,100 | $69.40 | | |
| SD140BOND | SD #140 BOND 764 | 0.8342371393 | $282,100 | $282,100 | $235.34 | | |
| SD140GEN | SD #140 GENERAL 760 | 2.0646500647 | $282,100 | $282,100 | $582.44 | | |
| ST2 | STATE SCHOOL PART 2 600 | 0.8131451643 | $282,100 | $282,100 | $229.39 | | |
| STATESCHL | STATE SCHOOL 600 | 1.5158548041 | $282,100 | $282,100 | $427.62 | | |
| STREFUND | STATE REFUND LEVY 603 | 0.0000000000 | $282,100 | $282,100 | $0.00 | | |
| COROAD | COUNTY ROAD 115 | 1.6549953990 | $282,100 | $282,100 | $466.87 | | |
| CRPRD | COUNTY ROAD REFUND 115 | 0.0000000000 | $282,100 | $282,100 | $0.00 | | |
| | Total Tax Rate: | 9.8210551422 | | | | | |
| | | | | Taxes w/Current Exemptions: | $2,770.52 | | |
| | | | | Taxes w/o Exemptions: | $2,770.52 | | |
Improvement / Building
| Improvement #1: | RESIDENTIAL | State Code: | 11 | 1055.0 sqft | Value: | $221,760 |
| Exterior Wall: | SIDING | Heating/Cooling: | WARM & COOLED AIR | | Number of Bathrooms: | 1 | Number of Bedrooms: | 2 | | Plumbing: | 6 | Roof Covering: | COMP SHINGLE |
|
| | Type | Description | Class CD | Sub Class CD | Year Built | Area |
| | MA | Main Area | 1 | 30 | 1953 | 1055.0 |
| | CPC | COVERED CARPORT/PATIO | 1 | 30 | 0 | 220.0 |
| | SI1 | SITE IMPROVEMENT | 1 | 30 | 0 | 2.0 |
| | DTG | Detached Garage | 1 | 30 | 1953 | 1232.0 |
| | RPS | PORCH W/STEPS,ROOF | 1 | 30 | 1953 | 18.0 |
Sketch
Property Image
Land
| 1 | RES 1 | Converted: Residential | 0.1732 | 7543.00 | 0.00 | 0.00 | 1.00 | $60,340 | $0 |
Roll Value History
| 2026 | N/A | N/A | N/A | N/A | N/A |
| 2025 | $232,850 | $60,340 | $0 | $293,190 | $293,190 |
| 2024 | $232,850 | $60,340 | $0 | $293,190 | $293,190 |
| 2023 | $221,760 | $60,340 | $0 | $282,100 | $282,100 |
| 2022 | $238,710 | $39,600 | $0 | $278,310 | $278,310 |
| 2021 | $170,510 | $39,600 | $0 | $210,110 | $210,110 |
| 2020 | $89,740 | $39,600 | $0 | $129,340 | $129,340 |
| 2019 | $89,740 | $39,600 | $0 | $129,340 | $129,340 |
| 2018 | $89,740 | $39,600 | $0 | $129,340 | $129,340 |
| 2017 | $89,740 | $39,600 | $0 | $129,340 | $129,340 |
| 2016 | $84,340 | $45,000 | $0 | $129,340 | $129,340 |
| 2015 | $76,670 | $45,000 | $0 | $121,670 | $121,670 |
| 2014 | $69,700 | $45,000 | $0 | $114,700 | $114,700 |
| 2013 | $69,700 | $45,000 | $0 | $114,700 | $114,700 |
| 2012 | $69,700 | $45,000 | $0 | $0 | $0 |
| 2011 | $80,900 | $45,000 | $0 | $0 | $0 |
| 2010 | $80,900 | $45,000 | $0 | $0 | $0 |
| 2009 | $94,900 | $45,000 | $0 | $0 | $0 |
| 2008 | $94,900 | $45,000 | $0 | $0 | $0 |
| 2007 | $64,800 | $22,500 | $0 | $0 | $0 |
Deed and Sales History
| 1 | 07/01/2020 | SWD | STATUTORY WARRANTY DEED | FRAZIER MITCHELL | KLINGENBERG LUKE | | | $210,000.00 | 139417 | 2020-06189 |
| 2 | 06/30/2010 | WARRANTY D | WARRANTY DEED | REASE, ALFRED F & HELEN | FRAZIER, MITCHELL | | | $118,000.00 | 118699 | 2010-05093 |
| 3 | 04/15/2005 | QCD | QUIT CLAIM DEED | REASE, ALFRED F | REASE, ALFRED F & HELEN | | | | 107251 | 2005-04285 |
| 4 | 01/01/1954 | WARRANTY D | WARRANTY DEED | | | | | $0.00 | 0 | 2680-369380 |
Payout Agreement
| No payout information available.. |