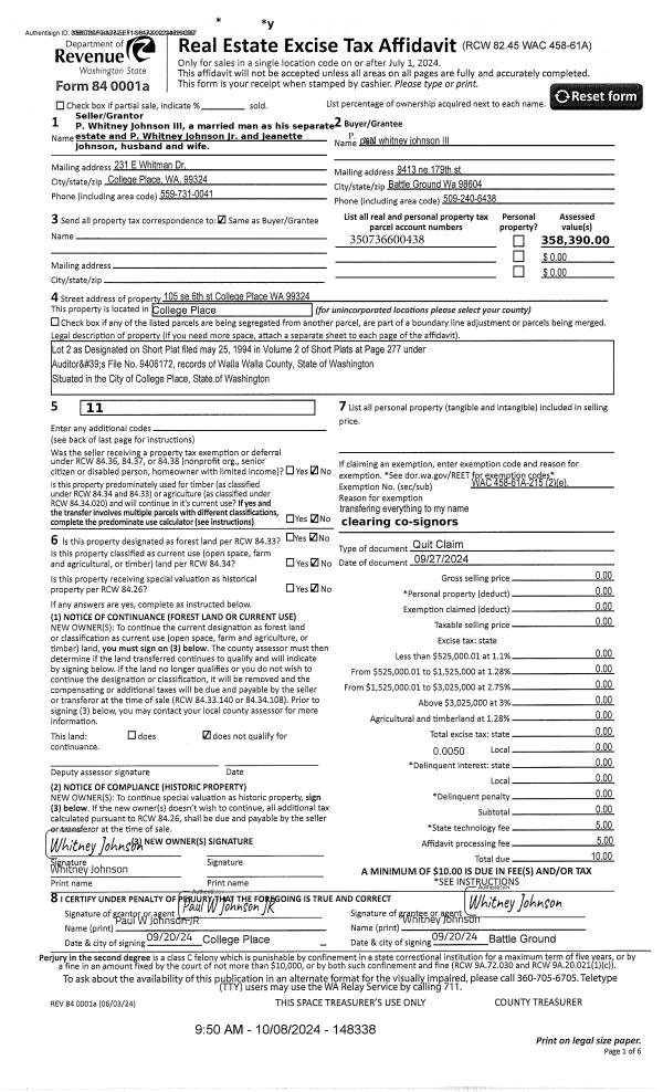
Property
Account |
| Property ID: | 17044 | Abbreviated Legal Description: | CP #2 LOT 2 OF S/P (SLY 116' OF WLY 72' OF LOT 4) BLK 4 |
| Parcel Number: | 350736600438 | Agent Code: | |
| Type: | Real | | |
| Tax Area: | 75 - CP 250 | Land Use Code | 11 |
| Open Space: | N | DFL | N |
| Historic Property: | N | Remodel Property: | N |
| Multi-Family Redevelopment: | N | | |
| Township: | 7 | Section: | 36 |
| Range: | 35 |
Location |
| Address: | 105 SE 6TH ST WA 99324 | Mapsco: | |
| Neighborhood: | A SFR | Map ID: | |
| Neighborhood CD: | 113011 |
Owner |
| Name: | JOHNSON P WHITNEY III | Owner ID: | 43809 |
| Mailing Address: | P WHITNEY JOHNSON JR & JEANETTE 105 SE 6TH ST COLLEGE PLACE, WA 99324 | % Ownership: | 100.0000000000% |
| | | Exemptions: | |
Taxes and Assessment Details
Values
| (+) Improvement Homesite Value: | + | $0 | |
| (+) Improvement Non-Homesite Value: | + | $301,280 | |
| (+) Land Homesite Value: | + | $0 | |
| (+) Land Non-Homesite Value: | + | $57,110 | |
| (+) Curr Use (HS): | + | $0 | $0 |
| (+) Curr Use (NHS): | + | $0 | $0 |
| | | -------------------------- | |
| (=) Market Value: | = | $358,390 | |
| (–) Productivity Loss: | – | $0 | |
| | | -------------------------- | |
| (=) Subtotal: | = | $358,390 | |
| (+) Senior Appraised Value: | + | $0 | |
| (+) Non-Senior Appraised Value: | + | $358,390 | |
| | | -------------------------- | |
| (=) Total Appraised Value: | = | $358,390 | |
| (–) Senior Exemption Loss: | – | $0 | |
| (–) Exemption Loss: | – | $0 | |
| | | -------------------------- | |
| (=) Taxable Value: | = | $358,390 | |
Taxing Jurisdiction
| Owner: | JOHNSON P WHITNEY III | | |
| % Ownership: | 100.0000000000% | | |
| Total Value: | $358,390 | | |
| Tax Area: | 75 - CP 250 |
| CERFD | CURRENT EXPENSE REFUND 010 | 0.0000000000 | $358,390 | $358,390 | $0.00 | | |
| CURREXP | CURRENT EXPENSE 010 | 1.0175366760 | $358,390 | $358,390 | $364.67 | | |
| HUMNSERV | HUMAN SERVICES 119 | 0.0250000000 | $358,390 | $358,390 | $8.96 | | |
| SLDREL | SOLDIERS RELIEF 121 | 0.0155990005 | $358,390 | $358,390 | $5.59 | | |
| COLLPLBOND | C OF CP BOND 644 | 0.4374241808 | $358,390 | $358,390 | $156.77 | | |
| COLLPLGEN | CITY OF CP 632 | 1.4453819216 | $358,390 | $358,390 | $518.01 | | |
| EMERGSER | EMS 147 | 0.3792580840 | $358,390 | $358,390 | $135.92 | | |
| EMSRFD | EMS REFUND 147 | 0.0000000000 | $358,390 | $358,390 | $0.00 | | |
| RURALLIB | RURAL LIBRARY 623 | 0.3710609029 | $358,390 | $358,390 | $132.98 | | |
| PORTRFD | PORT REFUND 640 | 0.0000000000 | $358,390 | $358,390 | $0.00 | | |
| PORTWWGEN | PORT OF WW 640 | 0.2460186015 | $358,390 | $358,390 | $88.17 | | |
| SD250BOND | SD #250 BOND 773 | 1.4560608159 | $358,390 | $358,390 | $521.84 | | |
| SD250GEN | SD #250 GENERAL 770 | 2.3880724087 | $358,390 | $358,390 | $855.86 | | |
| ST2 | STATE SCHOOL PART 2 600 | 0.8131451643 | $358,390 | $358,390 | $291.42 | | |
| STATESCHL | STATE SCHOOL 600 | 1.5158548041 | $358,390 | $358,390 | $543.27 | | |
| STREFUND | STATE REFUND LEVY 603 | 0.0000000000 | $358,390 | $358,390 | $0.00 | | |
| | Total Tax Rate: | 10.1104125603 | | | | | |
| | | | | Taxes w/Current Exemptions: | $3,623.46 | | |
| | | | | Taxes w/o Exemptions: | $3,623.46 | | |
Improvement / Building
| Improvement #1: | RESIDENTIAL | State Code: | 11 | 1581.0 sqft | Value: | $301,280 |
| Exterior Wall: | SIDING | Heating/Cooling: | WARM & COOLED AIR | | Number of Bathrooms: | 2 | Number of Bedrooms: | 4 | | Plumbing: | 9 | Roof Covering: | COMP SHINGLE |
|
| | Type | Description | Class CD | Sub Class CD | Year Built | Area |
| | MA | Main Area | 4 | 30 | 1927 | 1581.0 |
| | UPFL | Upper Floor (included in main area) | 4 | 30 | 1927 | 525.0 |
| | SI1 | SITE IMPROVEMENT | 4 | 30 | 1927 | 1.5 |
| | BASE | BASEMENT | 4 | 30 | 1927 | 320.0 |
| | BPF | BASEMENT -PARTITIONED FINISH | 4 | 30 | 1927 | 320.0 |
| | ATG | Attached Garage | 4 | 30 | 1927 | 716.0 |
| | WDR | WOOD DECK W/ROOF | 4 | 30 | 1927 | 200.0 |
| | RPS | PORCH W/STEPS,ROOF | 4 | 30 | 1927 | 126.0 |
| | LOFT | Loft Area | 4 | 30 | 1927 | 285.0 |
| | OUT | OUTSIDE BASEMENT ENTRY | 4 | 30 | 1927 | 1.0 |
Sketch
Property Image
Land
| 1 | RES 1 | Converted: Residential | 0.1942 | 8461.00 | 0.00 | 0.00 | 1.00 | $57,110 | $0 |
Roll Value History
| 2026 | N/A | N/A | N/A | N/A | N/A |
| 2025 | $301,280 | $84,610 | $0 | $385,890 | $385,890 |
| 2024 | $301,280 | $57,110 | $0 | $358,390 | $358,390 |
| 2023 | $301,280 | $57,110 | $0 | $358,390 | $358,390 |
| 2022 | $273,890 | $57,110 | $0 | $331,000 | $331,000 |
| 2021 | $195,640 | $57,110 | $0 | $252,750 | $252,750 |
| 2020 | $163,030 | $57,110 | $0 | $220,140 | $220,140 |
| 2019 | $174,340 | $45,800 | $0 | $220,140 | $220,140 |
| 2018 | $166,040 | $45,800 | $0 | $211,840 | $211,840 |
| 2017 | $138,360 | $45,800 | $0 | $184,160 | $184,160 |
| 2016 | $131,780 | $45,800 | $0 | $177,580 | $177,580 |
| 2015 | $125,500 | $45,800 | $0 | $171,300 | $171,300 |
| 2014 | $125,500 | $45,800 | $0 | $171,300 | $171,300 |
| 2013 | $125,500 | $45,800 | $0 | $171,300 | $171,300 |
| 2012 | $125,500 | $45,800 | $0 | $0 | $0 |
| 2011 | $125,500 | $45,800 | $0 | $0 | $0 |
| 2010 | $117,300 | $45,800 | $0 | $0 | $0 |
| 2009 | $135,400 | $45,800 | $0 | $0 | $0 |
| 2008 | $106,000 | $23,400 | $0 | $0 | $0 |
| 2007 | $106,000 | $23,400 | $0 | $0 | $0 |
Deed and Sales History
| 1 | 10/08/2024 | QCD | QUIT CLAIM DEED | JOHNSON P WHITNEY III | JOHNSON P WHITNEY III & KRISTI L SPURGEON JOHNSON | | | | 148340 | 2024-05855 |
| 2 | 10/08/2024 | QCD | QUIT CLAIM DEED | JOHNSON P WHITNEY III | JOHNSON P WHITNEY III | | | | 148338 | 2024-05854 |
| 3 | 02/23/2007 | WARRANTY D | WARRANTY DEED | GANDY, JOHN & NANCY | JOHNSON, P WHITNEY III | | | $186,300.00 | 112293 | 2007-02121 |
Payout Agreement
| No payout information available.. |