Property
Account |
| Property ID: | 17042 | Abbreviated Legal Description: | BLALOCK ORCHARDS LOT 2 OF S/P (SLY 165' OF ELY 78' OF E 140.34' OFLOT 8 BLK 44) |
| Parcel Number: | 350735524463 | Agent Code: | |
| Type: | Real | | |
| Tax Area: | 75 - CP 250 | Land Use Code | 11 |
| Open Space: | N | DFL | N |
| Historic Property: | N | Remodel Property: | N |
| Multi-Family Redevelopment: | N | | |
| Township: | 7 | Section: | 35 |
| Range: | 35 |
Location |
| Address: | 620 SW 2ND ST WA 99324 | Mapsco: | |
| Neighborhood: | A SFR | Map ID: | |
| Neighborhood CD: | 113011 |
Owner |
| Name: | PRATT JONATHAN E | Owner ID: | 68984 |
| Mailing Address: | 620 SW 2ND ST COLLEGE PLACE, WA 99324 | % Ownership: | 100.0000000000% |
| | | Exemptions: | |
Taxes and Assessment Details
Values
| (+) Improvement Homesite Value: | + | $0 | |
| (+) Improvement Non-Homesite Value: | + | $287,220 | |
| (+) Land Homesite Value: | + | $0 | |
| (+) Land Non-Homesite Value: | + | $63,180 | |
| (+) Curr Use (HS): | + | $0 | $0 |
| (+) Curr Use (NHS): | + | $0 | $0 |
| | | -------------------------- | |
| (=) Market Value: | = | $350,400 | |
| (–) Productivity Loss: | – | $0 | |
| | | -------------------------- | |
| (=) Subtotal: | = | $350,400 | |
| (+) Senior Appraised Value: | + | $0 | |
| (+) Non-Senior Appraised Value: | + | $350,400 | |
| | | -------------------------- | |
| (=) Total Appraised Value: | = | $350,400 | |
| (–) Senior Exemption Loss: | – | $0 | |
| (–) Exemption Loss: | – | $0 | |
| | | -------------------------- | |
| (=) Taxable Value: | = | $350,400 | |
Taxing Jurisdiction
| Owner: | PRATT JONATHAN E | | |
| % Ownership: | 100.0000000000% | | |
| Total Value: | $350,400 | | |
| Tax Area: | 75 - CP 250 |
| CERFD | CURRENT EXPENSE REFUND 010 | 0.0000000000 | $350,400 | $350,400 | $0.00 | | |
| CURREXP | CURRENT EXPENSE 010 | 1.0175366760 | $350,400 | $350,400 | $356.54 | | |
| HUMNSERV | HUMAN SERVICES 119 | 0.0250000000 | $350,400 | $350,400 | $8.76 | | |
| SLDREL | SOLDIERS RELIEF 121 | 0.0155990005 | $350,400 | $350,400 | $5.47 | | |
| COLLPLBOND | C OF CP BOND 644 | 0.4374241808 | $350,400 | $350,400 | $153.27 | | |
| COLLPLGEN | CITY OF CP 632 | 1.4453819216 | $350,400 | $350,400 | $506.46 | | |
| EMERGSER | EMS 147 | 0.3792580840 | $350,400 | $350,400 | $132.89 | | |
| EMSRFD | EMS REFUND 147 | 0.0000000000 | $350,400 | $350,400 | $0.00 | | |
| RURALLIB | RURAL LIBRARY 623 | 0.3710609029 | $350,400 | $350,400 | $130.02 | | |
| PORTRFD | PORT REFUND 640 | 0.0000000000 | $350,400 | $350,400 | $0.00 | | |
| PORTWWGEN | PORT OF WW 640 | 0.2460186015 | $350,400 | $350,400 | $86.20 | | |
| SD250BOND | SD #250 BOND 773 | 1.4560608159 | $350,400 | $350,400 | $510.20 | | |
| SD250GEN | SD #250 GENERAL 770 | 2.3880724087 | $350,400 | $350,400 | $836.78 | | |
| ST2 | STATE SCHOOL PART 2 600 | 0.8131451643 | $350,400 | $350,400 | $284.93 | | |
| STATESCHL | STATE SCHOOL 600 | 1.5158548041 | $350,400 | $350,400 | $531.16 | | |
| STREFUND | STATE REFUND LEVY 603 | 0.0000000000 | $350,400 | $350,400 | $0.00 | | |
| | Total Tax Rate: | 10.1104125603 | | | | | |
| | | | | Taxes w/Current Exemptions: | $3,542.68 | | |
| | | | | Taxes w/o Exemptions: | $3,542.68 | | |
Improvement / Building
| Improvement #1: | RESIDENTIAL | State Code: | 11 | 1720.0 sqft | Value: | $287,220 |
| Exterior Wall: | STUCCO | Heating/Cooling: | WARM & COOLED AIR | | Number of Bathrooms: | 4 | Number of Bedrooms: | 3 | | Plumbing: | 15 | Roof Covering: | COMP SHINGLE |
|
| | Type | Description | Class CD | Sub Class CD | Year Built | Area |
| | MA | Main Area | 4 | 30 | 1930 | 1720.0 |
| | UPFL | Upper Floor (included in main area) | 4 | 30 | 1930 | 480.0 |
| | SI1 | SITE IMPROVEMENT | 4 | 30 | 1930 | 2.0 |
| | BASE | BASEMENT | 4 | 30 | 1930 | 1240.0 |
| | BPF | BASEMENT -PARTITIONED FINISH | 4 | 30 | 1930 | 1240.0 |
| | DTG | Detached Garage | 4 | 30 | 1930 | 400.0 |
| | RPS | PORCH W/STEPS,ROOF | 4 | 30 | 1930 | 60.0 |
| | GFP | GAS FIREPLACE | 4 | 30 | 1930 | 1.0 |
Sketch
Property Image
Land
| 1 | RES 1 | Converted: Residential | 0.3053 | 13300.00 | 0.00 | 0.00 | 1.00 | $63,180 | $0 |
Roll Value History
| 2026 | N/A | N/A | N/A | N/A | N/A |
| 2025 | $287,220 | $94,960 | $0 | $382,180 | $382,180 |
| 2024 | $287,220 | $63,180 | $0 | $350,400 | $350,400 |
| 2023 | $287,220 | $63,180 | $0 | $350,400 | $350,400 |
| 2022 | $287,220 | $63,180 | $0 | $350,400 | $350,400 |
| 2021 | $220,940 | $63,180 | $0 | $284,120 | $284,120 |
| 2020 | $169,950 | $63,180 | $0 | $233,130 | $233,130 |
| 2019 | $183,230 | $49,900 | $0 | $233,130 | $233,130 |
| 2018 | $183,230 | $49,900 | $0 | $233,130 | $233,130 |
| 2017 | $183,230 | $49,900 | $0 | $233,130 | $233,130 |
| 2016 | $174,500 | $49,900 | $0 | $224,400 | $224,400 |
| 2015 | $174,500 | $49,900 | $0 | $224,400 | $224,400 |
| 2014 | $174,500 | $49,900 | $0 | $224,400 | $224,400 |
| 2013 | $79,200 | $49,900 | $0 | $129,100 | $129,100 |
| 2012 | $79,200 | $49,900 | $0 | $0 | $0 |
| 2011 | $79,200 | $49,900 | $0 | $0 | $0 |
| 2010 | $67,500 | $49,900 | $0 | $0 | $0 |
| 2009 | $67,500 | $49,900 | $0 | $0 | $0 |
| 2008 | $112,900 | $27,700 | $0 | $0 | $0 |
| 2007 | $112,900 | $27,700 | $0 | $0 | $0 |
Deed and Sales History
| 1 | 10/22/2020 | QCD | QUIT CLAIM DEED | PRATT JONATHAN E | PRATT JONATHAN E | | | | 140168 | 2021-02732 |
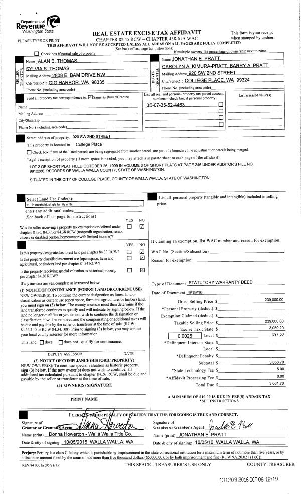
| 2 | 10/06/2016 | SWD | STATUTORY WARRANTY DEED | THOMAS ALAN B & SYLVIA S | PRATT JONATHAN E | | | $239,000.00 | 131209 | 2016-08241 |
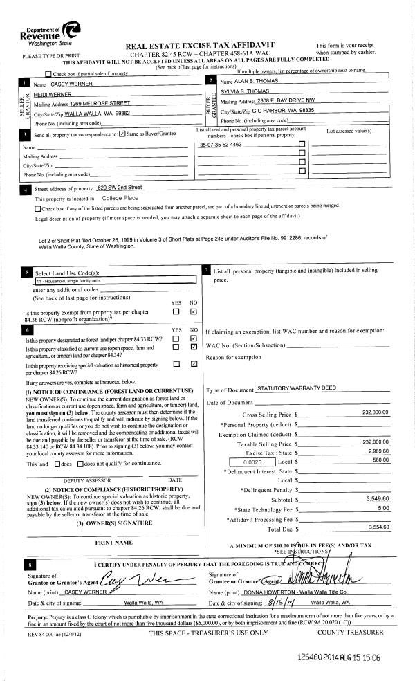
| 3 | 08/15/2014 | SWD | STATUTORY WARRANTY DEED | WERNER CASEY | THOMAS ALAN B & SYLVIA S | | | $232,000.00 | 126460 | 2014-05905 |
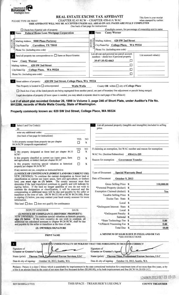
| 4 | 10/23/2013 | WARRANTY D | WARRANTY DEED | FEDERAL HOME LOAN MORTGAGE COR | WERNER, CASEY | | | $110,000.00 | 124869 | 2013-10657 |
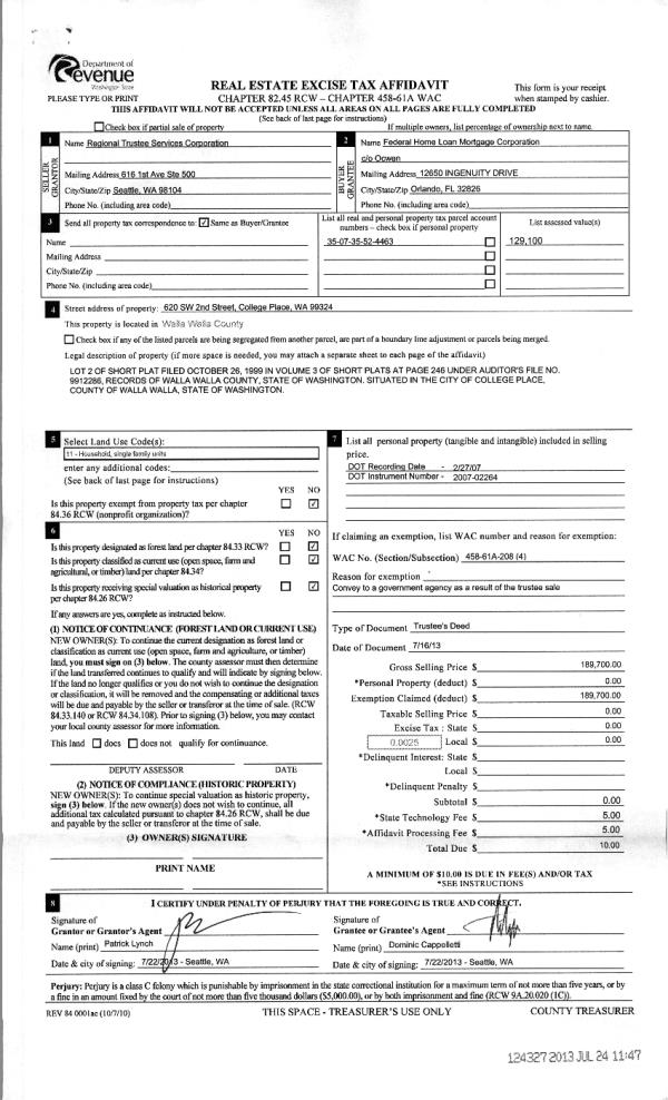
| 5 | 07/24/2013 | WARRANTY D | WARRANTY DEED | CARMAN, JEFFREY R & JACQUELYN | FEDERAL HOME LOAN MORTGAGE COR | | | $189,700.00 | 124327 | 2013-07458 |
| 6 | 02/27/2007 | WARRANTY D | WARRANTY DEED | BAGLEY, HARLEY E & ELLA | CARMAN, JEFFREY R & JACQUELYN | | | $250,000.00 | 112308 | 2007-02263 |
| 7 | 12/21/2000 | WARRANTY D | WARRANTY DEED | | | | | $35,000.00 | 96353 | 3060-012019 |
Payout Agreement
| No payout information available.. |