Property
Account |
| Property ID: | 17040 | Abbreviated Legal Description: | TRIPLE CREEK MEADOWS PHASE 1 LOT 3 BLOCK 1 |
| Parcel Number: | 360733970103 | Agent Code: | |
| Type: | Real | | |
| Tax Area: | 5 - OL-140 | Land Use Code | 11 |
| Open Space: | N | DFL | N |
| Historic Property: | N | Remodel Property: | N |
| Multi-Family Redevelopment: | N | | |
| Township: | 7 | Section: | 33 |
| Range: | 36 |
Location |
| Address: | 28 PAINTBRUSH CT WA 99362 | Mapsco: | |
| Neighborhood: | G Res Rural/City Inf | Map ID: | |
| Neighborhood CD: | 614012 |
Owner |
| Name: | MARSHALL JERRY S | Owner ID: | 64048 |
| Mailing Address: | BECKY A CARLSON 28 PAINTBRUSH CT WALLA WALLA, WA 99362 | % Ownership: | 100.0000000000% |
| | | Exemptions: | |
Taxes and Assessment Details
Values
| (+) Improvement Homesite Value: | + | $0 | |
| (+) Improvement Non-Homesite Value: | + | $382,040 | |
| (+) Land Homesite Value: | + | $0 | |
| (+) Land Non-Homesite Value: | + | $100,000 | |
| (+) Curr Use (HS): | + | $0 | $0 |
| (+) Curr Use (NHS): | + | $0 | $0 |
| | | -------------------------- | |
| (=) Market Value: | = | $482,040 | |
| (–) Productivity Loss: | – | $0 | |
| | | -------------------------- | |
| (=) Subtotal: | = | $482,040 | |
| (+) Senior Appraised Value: | + | $0 | |
| (+) Non-Senior Appraised Value: | + | $482,040 | |
| | | -------------------------- | |
| (=) Total Appraised Value: | = | $482,040 | |
| (–) Senior Exemption Loss: | – | $0 | |
| (–) Exemption Loss: | – | $0 | |
| | | -------------------------- | |
| (=) Taxable Value: | = | $482,040 | |
Taxing Jurisdiction
| Owner: | MARSHALL JERRY S | | |
| % Ownership: | 100.0000000000% | | |
| Total Value: | $482,040 | | |
| Tax Area: | 5 - OL-140 |
| CERFD | CURRENT EXPENSE REFUND 010 | 0.0000000000 | $482,040 | $482,040 | $0.00 | | |
| CURREXP | CURRENT EXPENSE 010 | 1.0175366760 | $482,040 | $482,040 | $490.49 | | |
| HUMNSERV | HUMAN SERVICES 119 | 0.0250000000 | $482,040 | $482,040 | $12.05 | | |
| SLDREL | SOLDIERS RELIEF 121 | 0.0155990005 | $482,040 | $482,040 | $7.52 | | |
| EMERGSER | EMS 147 | 0.3792580840 | $482,040 | $482,040 | $182.82 | | |
| EMSRFD | EMS REFUND 147 | 0.0000000000 | $482,040 | $482,040 | $0.00 | | |
| PORTRFD | PORT REFUND 640 | 0.0000000000 | $482,040 | $482,040 | $0.00 | | |
| PORTWWGEN | PORT OF WW 640 | 0.2460186015 | $482,040 | $482,040 | $118.59 | | |
| SD140BOND | SD #140 BOND 764 | 0.8342371393 | $482,040 | $482,040 | $402.14 | | |
| SD140GEN | SD #140 GENERAL 760 | 2.0646500647 | $482,040 | $482,040 | $995.24 | | |
| ST2 | STATE SCHOOL PART 2 600 | 0.8131451643 | $482,040 | $482,040 | $391.97 | | |
| STATESCHL | STATE SCHOOL 600 | 1.5158548041 | $482,040 | $482,040 | $730.70 | | |
| STREFUND | STATE REFUND LEVY 603 | 0.0000000000 | $482,040 | $482,040 | $0.00 | | |
| CWWBOND | C OF WW BOND 643 | 0.2760494372 | $482,040 | $482,040 | $133.07 | | |
| CWWGEN | CITY OF WW 631 | 1.6100204973 | $482,040 | $482,040 | $776.09 | | |
| CWWRFD | CITY OF WALLA WALLA REFUND 631 | 0.0000000000 | $482,040 | $482,040 | $0.00 | | |
| | Total Tax Rate: | 8.7973694689 | | | | | |
| | | | | Taxes w/Current Exemptions: | $4,240.68 | | |
| | | | | Taxes w/o Exemptions: | $4,240.68 | | |
Improvement / Building
| Improvement #1: | RESIDENTIAL | State Code: | 11 | 2302.0 sqft | Value: | $382,040 |
| Exterior Wall: | PLYWOOD | Heating/Cooling: | WARM & COOLED AIR | | Number of Bathrooms: | 2.5 | Number of Bedrooms: | 4 | | Plumbing: | 11 | Roof Covering: | COMP SHINGLE |
|
| | Type | Description | Class CD | Sub Class CD | Year Built | Area |
| | MA | Main Area | 2 | 35 | 2007 | 2302.0 |
| | SI1 | SITE IMPROVEMENT | 2 | 35 | 2007 | 3.5 |
| | UPFL | Upper Floor (included in main area) | 2 | 35 | 2007 | 1294.0 |
| | ATG | Attached Garage | 2 | 35 | 2007 | 620.0 |
| | GFP | GAS FIREPLACE | 2 | 35 | 2007 | 1.0 |
| | RPC | OPEN PORCH W/ROOF , CEILED | 2 | 35 | 2007 | 216.0 |
Sketch
Property Image
Land
| 1 | RES 1 | Converted: Residential | 0.2715 | 11828.00 | 0.00 | 0.00 | 1.00 | $100,000 | $0 |
Roll Value History
| 2026 | N/A | N/A | N/A | N/A | N/A |
| 2025 | $416,580 | $125,000 | $0 | $541,580 | $541,580 |
| 2024 | $382,040 | $100,000 | $0 | $482,040 | $482,040 |
| 2023 | $382,040 | $100,000 | $0 | $482,040 | $482,040 |
| 2022 | $347,310 | $85,000 | $0 | $432,310 | $432,310 |
| 2021 | $289,430 | $85,000 | $0 | $374,430 | $374,430 |
| 2020 | $231,540 | $85,000 | $0 | $316,540 | $316,540 |
| 2019 | $231,540 | $85,000 | $0 | $316,540 | $316,540 |
| 2018 | $225,090 | $50,000 | $0 | $275,090 | $275,090 |
| 2017 | $214,370 | $50,000 | $0 | $264,370 | $264,370 |
| 2016 | $214,370 | $50,000 | $0 | $264,370 | $264,370 |
| 2015 | $204,160 | $50,000 | $0 | $254,160 | $254,160 |
| 2014 | $185,600 | $50,000 | $0 | $235,600 | $235,600 |
| 2013 | $185,600 | $50,000 | $0 | $235,600 | $235,600 |
| 2012 | $180,600 | $55,000 | $0 | $0 | $0 |
| 2011 | $180,600 | $55,000 | $0 | $0 | $0 |
| 2010 | $180,600 | $55,000 | $0 | $0 | $0 |
| 2009 | $210,500 | $65,000 | $0 | $0 | $0 |
| 2008 | $210,500 | $65,000 | $0 | $0 | $0 |
| 2007 | $0 | $1,100 | $0 | $0 | $0 |
Deed and Sales History
| 1 | 09/28/2018 | SWD | STATUTORY WARRANTY DEED | ZAUGG DARREN R & RACHEL W | MARSHALL JERRY S | | | $332,000.00 | 135654 | 2018-08138 |
| 2 | 09/03/2015 | SWD | STATUTORY WARRANTY DEED | MELIAH SANDRA K | ZAUGG DARREN R & RACHEL W | | | $280,000.00 | 128765 | 2015-07805 |
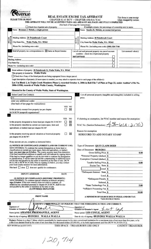
| 3 | 09/19/2011 | QCD | QUIT CLAIM DEED | MELIAH, BRENNAN J | MELIAH, SANDRA K | | | | 120714 | 2011-07322 |
| 4 | 09/06/2011 | QCD | QUIT CLAIM DEED | MELIAH, BRENNAN J | MELIAH, SANDRA K | | | | 120645 | 2011-06947 |
| 5 | 01/14/2011 | WARRANTY D | WARRANTY DEED | MELIAH, BRENNAN J | MELIAH, SANDRA K | | | | 0 | CC #10-3-00292-2 |
| 6 | 02/27/2007 | WARRANTY D | WARRANTY DEED | MAJERUS CONSTRUCTION INC | MELIAH, BRENNAN J & SANDRA K | | | $279,900.00 | 112303 | 2007-02245 |
| 7 | 10/27/2006 | QCD | QUIT CLAIM DEED | MAJERUS, DOUGLAS | MAJERUS CONSTRUCTION INC | | | | 111546 | 2006-12951 |
Payout Agreement
| No payout information available.. |