Property
Account |
| Property ID: | 17033 | Abbreviated Legal Description: | 33-7-36 PTNS TAX 22A, 64, & 21B WITHIN SW1/4SE1/4; TAX 69 (LOT B-3OF AMENDED S/P) |
| Parcel Number: | 360733430092 | Agent Code: | |
| Type: | Real | | |
| Tax Area: | 101 - 140-4 | Land Use Code | 11 |
| Open Space: | N | DFL | N |
| Historic Property: | N | Remodel Property: | N |
| Multi-Family Redevelopment: | N | | |
| Township: | 7 | Section: | 33 |
| Range: | 36 |
Location |
| Address: | 726 MCBETH RD WALLA WALLA, WA 99362 | Mapsco: | |
| Neighborhood: | VG Res Rural/City Inf | Map ID: | |
| Neighborhood CD: | 615012 |
Owner |
| Name: | DUDENKOV DANILA | Owner ID: | 57828 |
| Mailing Address: | 726 MCBETH RD WALLA WALLA, WA 99362 | % Ownership: | 100.0000000000% |
| | | Exemptions: | |
Taxes and Assessment Details
Property Tax Information as of
02/21/2026
Click on "Statement Details" to expand or collapse a tax statement.
* Please enter a valid date ** Please enter a valid date *
Statement Details |
| | TOTAL: | $0.00 | $0.00 | $0.00 | $0.00 | $0.00 | $0.00 |
|
| | $0.00 | $0.00 | $0.00 | $0.00 | $0.00 | $0.00 |
Values
| (+) Improvement Homesite Value: | + | $0 | |
| (+) Improvement Non-Homesite Value: | + | $143,920 | |
| (+) Land Homesite Value: | + | $0 | |
| (+) Land Non-Homesite Value: | + | $206,750 | |
| (+) Curr Use (HS): | + | $0 | $0 |
| (+) Curr Use (NHS): | + | $0 | $0 |
| | | -------------------------- | |
| (=) Market Value: | = | $350,670 | |
| (–) Productivity Loss: | – | $0 | |
| | | -------------------------- | |
| (=) Subtotal: | = | $350,670 | |
| (+) Senior Appraised Value: | + | $0 | |
| (+) Non-Senior Appraised Value: | + | $350,670 | |
| | | -------------------------- | |
| (=) Total Appraised Value: | = | $350,670 | |
| (–) Senior Exemption Loss: | – | $0 | |
| (–) Exemption Loss: | – | $0 | |
| | | -------------------------- | |
| (=) Taxable Value: | = | $350,670 | |
Taxing Jurisdiction
| Owner: | DUDENKOV DANILA | | |
| % Ownership: | 100.0000000000% | | |
| Total Value: | $350,670 | | |
| Tax Area: | 101 - 140-4 |
| CERFD | CURRENT EXPENSE REFUND 010 | 0.0000000000 | $350,670 | $350,670 | $0.00 | | |
| CURREXP | CURRENT EXPENSE 010 | 1.0175366760 | $350,670 | $350,670 | $356.82 | | |
| HUMNSERV | HUMAN SERVICES 119 | 0.0250000000 | $350,670 | $350,670 | $8.77 | | |
| SLDREL | SOLDIERS RELIEF 121 | 0.0155990005 | $350,670 | $350,670 | $5.47 | | |
| EMERGSER | EMS 147 | 0.3792580840 | $350,670 | $350,670 | $132.99 | | |
| EMSRFD | EMS REFUND 147 | 0.0000000000 | $350,670 | $350,670 | $0.00 | | |
| FD4EXP | FD #4 EXPENSE 686 | 0.8836993059 | $350,670 | $350,670 | $309.89 | | |
| RLBRFD | RURAL LIBRARY REFUND 623 | 0.0000000000 | $350,670 | $350,670 | $0.00 | | |
| RURALLIB | RURAL LIBRARY 623 | 0.3710609029 | $350,670 | $350,670 | $130.12 | | |
| PORTRFD | PORT REFUND 640 | 0.0000000000 | $350,670 | $350,670 | $0.00 | | |
| PORTWWGEN | PORT OF WW 640 | 0.2460186015 | $350,670 | $350,670 | $86.27 | | |
| SD140BOND | SD #140 BOND 764 | 0.8342371393 | $350,670 | $350,670 | $292.54 | | |
| SD140GEN | SD #140 GENERAL 760 | 2.0646500647 | $350,670 | $350,670 | $724.01 | | |
| ST2 | STATE SCHOOL PART 2 600 | 0.8131451643 | $350,670 | $350,670 | $285.15 | | |
| STATESCHL | STATE SCHOOL 600 | 1.5158548041 | $350,670 | $350,670 | $531.56 | | |
| STREFUND | STATE REFUND LEVY 603 | 0.0000000000 | $350,670 | $350,670 | $0.00 | | |
| COROAD | COUNTY ROAD 115 | 1.6549953990 | $350,670 | $350,670 | $580.36 | | |
| CRPRD | COUNTY ROAD REFUND 115 | 0.0000000000 | $350,670 | $350,670 | $0.00 | | |
| | Total Tax Rate: | 9.8210551422 | | | | | |
| | | | | Taxes w/Current Exemptions: | $3,443.95 | | |
| | | | | Taxes w/o Exemptions: | $3,443.95 | | |
Improvement / Building
| Improvement #1: | RESIDENTIAL | State Code: | 11 | 1206.0 sqft | Value: | $143,920 |
| Exterior Wall: | SIDING | Heating/Cooling: | HEAT PUMP | | Number of Bathrooms: | 1.5 | Number of Bedrooms: | 2 | | Plumbing: | 8 | Roof Covering: | GALVANIZED METAL |
|
| | Type | Description | Class CD | Sub Class CD | Year Built | Area |
| | MA | Main Area | 1 | 25 | 1951 | 1206.0 |
| | SI1 | SITE IMPROVEMENT | 1 | 25 | 1951 | 1.0 |
| | BASE | BASEMENT | 1 | 25 | 1951 | 858.0 |
| | OSP | Open | 1 | 25 | 1951 | 16.0 |
| | POL1 | POLE BUILDING-GRAVEL | 1 | 25 | 1951 | 1200.0 |
| | WOD | Wood Deck | 1 | 25 | 1951 | 84.0 |
Sketch
Property Image
Land
| 1 | RES 1 | Converted: Residential | 3.2200 | 0.00 | 0.00 | 0.00 | 1.00 | $206,750 | $0 |
Roll Value History
| 2026 | N/A | N/A | N/A | N/A | N/A |
| 2025 | $231,810 | $226,770 | $0 | $458,580 | $458,580 |
| 2024 | $143,920 | $206,750 | $0 | $350,670 | $350,670 |
| 2023 | $143,920 | $206,750 | $0 | $350,670 | $350,670 |
| 2022 | $143,920 | $183,390 | $0 | $327,310 | $327,310 |
| 2021 | $84,660 | $183,390 | $0 | $268,050 | $268,050 |
| 2020 | $60,470 | $183,390 | $0 | $243,860 | $243,860 |
| 2019 | $60,470 | $183,390 | $0 | $243,860 | $243,860 |
| 2018 | $110,950 | $92,800 | $0 | $203,750 | $203,750 |
| 2017 | $96,480 | $92,800 | $0 | $189,280 | $189,280 |
| 2016 | $80,400 | $92,800 | $0 | $173,200 | $173,200 |
| 2015 | $67,000 | $92,800 | $0 | $159,800 | $159,800 |
| 2014 | $67,000 | $92,800 | $0 | $159,800 | $159,800 |
| 2013 | $67,000 | $92,800 | $0 | $159,800 | $159,800 |
| 2012 | $68,800 | $92,800 | $0 | $0 | $0 |
| 2011 | $68,800 | $92,800 | $0 | $0 | $0 |
| 2010 | $68,800 | $92,800 | $0 | $0 | $0 |
| 2009 | $86,700 | $92,800 | $0 | $0 | $0 |
| 2008 | $86,700 | $92,800 | $0 | $0 | $0 |
| 2007 | $37,300 | $57,300 | $0 | $0 | $0 |
Deed and Sales History
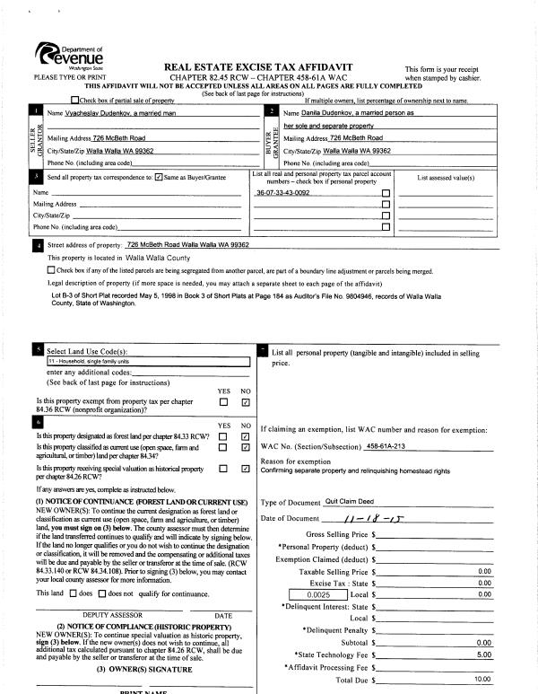
| 1 | 11/20/2015 | QCD | QUIT CLAIM DEED | DUDENKOV VYACHESLAV | DUDENKOV DANILA | | | | 129227 | 2015-10048 |
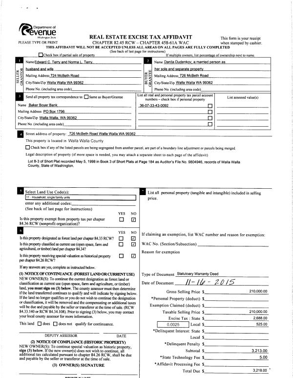
| 2 | 11/20/2015 | SWD | STATUTORY WARRANTY DEED | TERRY EDWARD C & NORMA L | DUDENKOV DANILA | | | $210,000.00 | 129226 | 2015-10047 |
| 3 | 08/10/1998 | WARRANTY D | WARRANTY DEED | | | | | $85,000.00 | 91016 | 2719-809075 |
|   | |
Payout Agreement
| No payout information available.. |