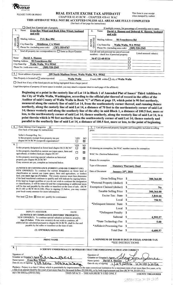
Property
Account |
| Property ID: | 17024 | Abbreviated Legal Description: | ISAACS 3RD NLY 70' OF LOT 14 BLK 1 |
| Parcel Number: | 360721600116 | Agent Code: | |
| Type: | Real | | |
| Tax Area: | 1 - OL-140-F | Land Use Code | 13 |
| Open Space: | N | DFL | N |
| Historic Property: | N | Remodel Property: | N |
| Multi-Family Redevelopment: | N | | |
| Township: | 7 | Section: | 21 |
| Range: | 36 |
Location |
| Address: | 209 N MADISON ST WA 99362 | Mapsco: | |
| Neighborhood: | G Superior Apartment | Map ID: | |
| Neighborhood CD: | 514221 |
Owner |
| Name: | HANSEN DAVID A & DEBORAH K | Owner ID: | 54716 |
| Mailing Address: | 50 FRENCHTOWN RD WALLA WALLA, WA 99362 | % Ownership: | 100.0000000000% |
| | | Exemptions: | |
Taxes and Assessment Details
Values
| (+) Improvement Homesite Value: | + | $0 | |
| (+) Improvement Non-Homesite Value: | + | $333,290 | |
| (+) Land Homesite Value: | + | $0 | |
| (+) Land Non-Homesite Value: | + | $50,750 | |
| (+) Curr Use (HS): | + | $0 | $0 |
| (+) Curr Use (NHS): | + | $0 | $0 |
| | | -------------------------- | |
| (=) Market Value: | = | $384,040 | |
| (–) Productivity Loss: | – | $0 | |
| | | -------------------------- | |
| (=) Subtotal: | = | $384,040 | |
| (+) Senior Appraised Value: | + | $0 | |
| (+) Non-Senior Appraised Value: | + | $384,040 | |
| | | -------------------------- | |
| (=) Total Appraised Value: | = | $384,040 | |
| (–) Senior Exemption Loss: | – | $0 | |
| (–) Exemption Loss: | – | $0 | |
| | | -------------------------- | |
| (=) Taxable Value: | = | $384,040 | |
Taxing Jurisdiction
| Owner: | HANSEN DAVID A & DEBORAH K | | |
| % Ownership: | 100.0000000000% | | |
| Total Value: | $384,040 | | |
| Tax Area: | 1 - OL-140-F |
| CERFD | CURRENT EXPENSE REFUND 010 | 0.0000000000 | $384,040 | $384,040 | $0.00 | | |
| CURREXP | CURRENT EXPENSE 010 | 1.0175366760 | $384,040 | $384,040 | $390.77 | | |
| HUMNSERV | HUMAN SERVICES 119 | 0.0250000000 | $384,040 | $384,040 | $9.60 | | |
| SLDREL | SOLDIERS RELIEF 121 | 0.0155990005 | $384,040 | $384,040 | $5.99 | | |
| EMERGSER | EMS 147 | 0.3792580840 | $384,040 | $384,040 | $145.65 | | |
| EMSRFD | EMS REFUND 147 | 0.0000000000 | $384,040 | $384,040 | $0.00 | | |
| PORTRFD | PORT REFUND 640 | 0.0000000000 | $384,040 | $384,040 | $0.00 | | |
| PORTWWGEN | PORT OF WW 640 | 0.2460186015 | $384,040 | $384,040 | $94.48 | | |
| SD140BOND | SD #140 BOND 764 | 0.8342371393 | $384,040 | $384,040 | $320.38 | | |
| SD140GEN | SD #140 GENERAL 760 | 2.0646500647 | $384,040 | $384,040 | $792.91 | | |
| ST2 | STATE SCHOOL PART 2 600 | 0.8131451643 | $384,040 | $384,040 | $312.28 | | |
| STATESCHL | STATE SCHOOL 600 | 1.5158548041 | $384,040 | $384,040 | $582.15 | | |
| STREFUND | STATE REFUND LEVY 603 | 0.0000000000 | $384,040 | $384,040 | $0.00 | | |
| CWWBOND | C OF WW BOND 643 | 0.2760494372 | $384,040 | $384,040 | $106.01 | | |
| CWWGEN | CITY OF WW 631 | 1.6100204973 | $384,040 | $384,040 | $618.31 | | |
| CWWRFD | CITY OF WALLA WALLA REFUND 631 | 0.0000000000 | $384,040 | $384,040 | $0.00 | | |
| | Total Tax Rate: | 8.7973694689 | | | | | |
| | | | | Taxes w/Current Exemptions: | $3,378.53 | | |
| | | | | Taxes w/o Exemptions: | $3,378.53 | | |
Improvement / Building
| Improvement #1: | RESIDENTIAL | State Code: | 13 | 3826.0 sqft | Value: | $333,290 |
| Exterior Wall: | STUCCO | Heating/Cooling: | FORCED AIR | | Number of Bathrooms: | 7 | Number of Bedrooms: | 8 | | Plumbing: | 35 | Roof Covering: | COMP SHINGLE |
|
| | Type | Description | Class CD | Sub Class CD | Year Built | Area |
| | MA | Main Area | 7 | 45 | 1900 | 3826.0 |
| | UPFL | Upper Floor (included in main area) | 7 | 45 | 1900 | 1910.0 |
| | SI1 | SITE IMPROVEMENT | 7 | 45 | 1900 | 3.0 |
| | BASE | BASEMENT | 7 | 45 | 1900 | 144.0 |
| | BRF | BASEMENT - REC FINISH | 7 | 45 | 1900 | 144.0 |
| | OPS | OPEN PORCH W/STEPS | 7 | 45 | 1900 | 158.0 |
| | BONU | BONUS ROOM W/FINISH | 7 | 45 | 1900 | 375.0 |
| | ATG | Attached Garage | 7 | 45 | 1900 | 560.0 |
Sketch
Property Image
Land
| 1 | RES 1 | Converted: Residential | 0.1607 | 7000.00 | 0.00 | 0.00 | 1.00 | $50,750 | $0 |
Roll Value History
| 2026 | N/A | N/A | N/A | N/A | N/A |
| 2025 | $319,500 | $70,000 | $0 | $389,500 | $389,500 |
| 2024 | $319,500 | $70,000 | $0 | $389,500 | $389,500 |
| 2023 | $333,290 | $50,750 | $0 | $384,040 | $384,040 |
| 2022 | $333,290 | $50,750 | $0 | $384,040 | $384,040 |
| 2021 | $277,740 | $50,750 | $0 | $328,490 | $328,490 |
| 2020 | $252,490 | $50,750 | $0 | $303,240 | $303,240 |
| 2019 | $252,490 | $50,750 | $0 | $303,240 | $303,240 |
| 2018 | $240,470 | $50,750 | $0 | $291,220 | $291,220 |
| 2017 | $245,830 | $31,500 | $0 | $277,330 | $277,330 |
| 2016 | $245,830 | $31,500 | $0 | $277,330 | $277,330 |
| 2015 | $189,100 | $31,500 | $0 | $220,600 | $220,600 |
| 2014 | $189,100 | $31,500 | $0 | $220,600 | $220,600 |
| 2013 | $189,100 | $31,500 | $0 | $220,600 | $220,600 |
| 2012 | $184,400 | $31,500 | $0 | $0 | $0 |
| 2011 | $184,400 | $31,500 | $0 | $0 | $0 |
| 2010 | $184,400 | $31,500 | $0 | $0 | $0 |
| 2009 | $184,400 | $31,500 | $0 | $0 | $0 |
| 2008 | $184,400 | $31,500 | $0 | $0 | $0 |
| 2007 | $184,400 | $31,500 | $0 | $0 | $0 |
Deed and Sales History
| 1 | 01/29/2016 | SWD | STATUTORY WARRANTY DEED | WITZEL EVAN ROY & RUTH ELLEN | HANSEN DAVID A & DEBORAH K | | | $300,364.00 | 129586 | 2016-00682 |
| 2 | 08/04/2006 | WARRANTY D | WARRANTY DEED | REYNOLDS FAMILY TRUST | WITZEL, EVAN ROY & RUTH ELLEN | | | $178,000.00 | 110876 | 2006-09190 |
| 3 | 08/01/1964 | QCD | QUIT CLAIM DEED | | | | | $0.00 | 0 | 3114-595000 |
Payout Agreement
| No payout information available.. |