Property
Account |
| Property ID: | 17003 | Abbreviated Legal Description: | RITZ LOT 7 BLOCK 11 & STRIP TO S |
| Parcel Number: | 360730541117 | Agent Code: | |
| Type: | Real | | |
| Tax Area: | 1 - OL-140-F | Land Use Code | 11 |
| Open Space: | N | DFL | N |
| Historic Property: | N | Remodel Property: | N |
| Multi-Family Redevelopment: | N | | |
| Township: | 7 | Section: | 30 |
| Range: | 36 |
Location |
| Address: | 1030 WILLOW ST WA 99362 | Mapsco: | |
| Neighborhood: | A-SFR | Map ID: | |
| Neighborhood CD: | 313011 |
Owner |
| Name: | LOCKEN NATOSHA | Owner ID: | 73773 |
| Mailing Address: | 1030 W WILLOW ST WALLA WALLA, WA 99362 | % Ownership: | 100.0000000000% |
| | | Exemptions: | |
Taxes and Assessment Details
Property Tax Information as of
02/21/2026
Click on "Statement Details" to expand or collapse a tax statement.
* Please enter a valid date ** Please enter a valid date *
Statement Details |
| | TOTAL: | $0.00 | $0.00 | $0.00 | $0.00 | $0.00 | $0.00 |
|
| | $0.00 | $0.00 | $0.00 | $0.00 | $0.00 | $0.00 |
Values
| (+) Improvement Homesite Value: | + | $0 | |
| (+) Improvement Non-Homesite Value: | + | $130,050 | |
| (+) Land Homesite Value: | + | $0 | |
| (+) Land Non-Homesite Value: | + | $53,630 | |
| (+) Curr Use (HS): | + | $0 | $0 |
| (+) Curr Use (NHS): | + | $0 | $0 |
| | | -------------------------- | |
| (=) Market Value: | = | $183,680 | |
| (–) Productivity Loss: | – | $0 | |
| | | -------------------------- | |
| (=) Subtotal: | = | $183,680 | |
| (+) Senior Appraised Value: | + | $0 | |
| (+) Non-Senior Appraised Value: | + | $183,680 | |
| | | -------------------------- | |
| (=) Total Appraised Value: | = | $183,680 | |
| (–) Senior Exemption Loss: | – | $0 | |
| (–) Exemption Loss: | – | $0 | |
| | | -------------------------- | |
| (=) Taxable Value: | = | $183,680 | |
Taxing Jurisdiction
| Owner: | LOCKEN NATOSHA | | |
| % Ownership: | 100.0000000000% | | |
| Total Value: | $183,680 | | |
| Tax Area: | 1 - OL-140-F |
| CERFD | CURRENT EXPENSE REFUND 010 | 0.0000000000 | $183,680 | $183,680 | $0.00 | | |
| CURREXP | CURRENT EXPENSE 010 | 1.0175366760 | $183,680 | $183,680 | $186.90 | | |
| HUMNSERV | HUMAN SERVICES 119 | 0.0250000000 | $183,680 | $183,680 | $4.59 | | |
| SLDREL | SOLDIERS RELIEF 121 | 0.0155990005 | $183,680 | $183,680 | $2.87 | | |
| EMERGSER | EMS 147 | 0.3792580840 | $183,680 | $183,680 | $69.66 | | |
| EMSRFD | EMS REFUND 147 | 0.0000000000 | $183,680 | $183,680 | $0.00 | | |
| PORTRFD | PORT REFUND 640 | 0.0000000000 | $183,680 | $183,680 | $0.00 | | |
| PORTWWGEN | PORT OF WW 640 | 0.2460186015 | $183,680 | $183,680 | $45.19 | | |
| SD140BOND | SD #140 BOND 764 | 0.8342371393 | $183,680 | $183,680 | $153.23 | | |
| SD140GEN | SD #140 GENERAL 760 | 2.0646500647 | $183,680 | $183,680 | $379.23 | | |
| ST2 | STATE SCHOOL PART 2 600 | 0.8131451643 | $183,680 | $183,680 | $149.36 | | |
| STATESCHL | STATE SCHOOL 600 | 1.5158548041 | $183,680 | $183,680 | $278.43 | | |
| STREFUND | STATE REFUND LEVY 603 | 0.0000000000 | $183,680 | $183,680 | $0.00 | | |
| CWWBOND | C OF WW BOND 643 | 0.2760494372 | $183,680 | $183,680 | $50.70 | | |
| CWWGEN | CITY OF WW 631 | 1.6100204973 | $183,680 | $183,680 | $295.73 | | |
| CWWRFD | CITY OF WALLA WALLA REFUND 631 | 0.0000000000 | $183,680 | $183,680 | $0.00 | | |
| | Total Tax Rate: | 8.7973694689 | | | | | |
| | | | | Taxes w/Current Exemptions: | $1,615.89 | | |
| | | | | Taxes w/o Exemptions: | $1,615.89 | | |
Improvement / Building
| Improvement #1: | RESIDENTIAL | State Code: | 11 | 576.0 sqft | Value: | $130,050 |
| Exterior Wall: | SIDING | Heating/Cooling: | BASEBOARD ELECTRIC | | Number of Bathrooms: | 1 | Number of Bedrooms: | 1 | | Plumbing: | 7 | Roof Covering: | COMP SHINGLE |
|
| | Type | Description | Class CD | Sub Class CD | Year Built | Area |
| | MA | Main Area | 1 | 20 | 1948 | 576.0 |
| | SI1 | SITE IMPROVEMENT | 1 | 20 | 0 | 1.0 |
| | BASE | BASEMENT | 1 | 20 | 1948 | 576.0 |
| | BPF | BASEMENT -PARTITIONED FINISH | 1 | 20 | 1948 | 576.0 |
| | OUT | OUTSIDE BASEMENT ENTRY | 1 | 20 | 1948 | 1.0 |
| | UTST | Utility Storage Shed | 1 | 20 | 1948 | 80.0 |
| | RPS | PORCH W/STEPS,ROOF | 1 | 20 | 1948 | 25.0 |
| | RPS | PORCH W/STEPS,ROOF | 1 | 20 | 1948 | 15.0 |
Sketch
Property Image
Land
| 1 | RES 1 | Converted: Residential | 0.1492 | 6500.00 | 0.00 | 0.00 | 1.00 | $53,630 | $0 |
Roll Value History
| 2026 | N/A | N/A | N/A | N/A | N/A |
| 2025 | $143,050 | $53,630 | $0 | $196,680 | $196,680 |
| 2024 | $143,050 | $53,630 | $0 | $196,680 | $196,680 |
| 2023 | $130,050 | $53,630 | $0 | $183,680 | $183,680 |
| 2022 | $81,280 | $53,630 | $0 | $134,910 | $134,910 |
| 2021 | $85,050 | $24,800 | $0 | $109,850 | $109,850 |
| 2020 | $70,880 | $24,800 | $0 | $95,680 | $95,680 |
| 2019 | $70,880 | $24,800 | $0 | $95,680 | $95,680 |
| 2018 | $67,500 | $24,800 | $0 | $92,300 | $92,300 |
| 2017 | $67,500 | $24,800 | $0 | $92,300 | $92,300 |
| 2016 | $67,500 | $24,800 | $0 | $92,300 | $92,300 |
| 2015 | $67,540 | $24,800 | $0 | $92,340 | $92,340 |
| 2014 | $61,400 | $24,800 | $0 | $86,200 | $86,200 |
| 2013 | $61,400 | $24,800 | $0 | $86,200 | $86,200 |
| 2012 | $61,400 | $24,800 | $0 | $0 | $0 |
| 2011 | $61,400 | $24,800 | $0 | $0 | $0 |
| 2010 | $38,300 | $24,800 | $0 | $0 | $0 |
| 2009 | $66,700 | $11,400 | $0 | $0 | $0 |
| 2008 | $26,700 | $11,400 | $0 | $0 | $0 |
| 2007 | $26,700 | $11,400 | $0 | $0 | $0 |
Deed and Sales History
| 1 | 06/16/2023 | SWD | STATUTORY WARRANTY DEED | TIMMS RYAN | LOCKEN NATOSHA | | | $205,000.00 | 146010 | 2023-03360 |
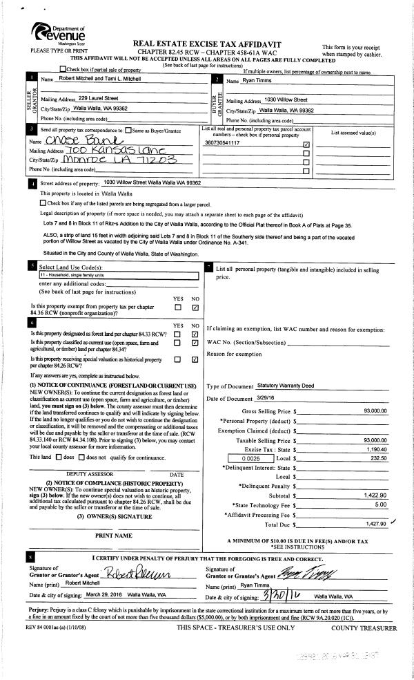
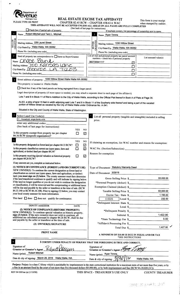
| 2 | 03/29/2016 | SWD | STATUTORY WARRANTY DEED | MITCHELL ROBERT R & TAMI L | TIMMS RYAN | | | $0.00 | 129996 | 2016-02638 |
| 3 | 03/31/2016 | SWD | STATUTORY WARRANTY DEED | MITCHELL ROBERT R & TAMI L | TIMMS RYAN | | | $93,000.00 | 129921 | 2016-02356 |
| 4 | 06/05/2006 | WARRANTY D | WARRANTY DEED | TEAL, JASON | MITCHELL, ROBERT R & TAMI L | | | $82,900.00 | 110439 | 2006--06487 |
Payout Agreement
| No payout information available.. |