Property
Account |
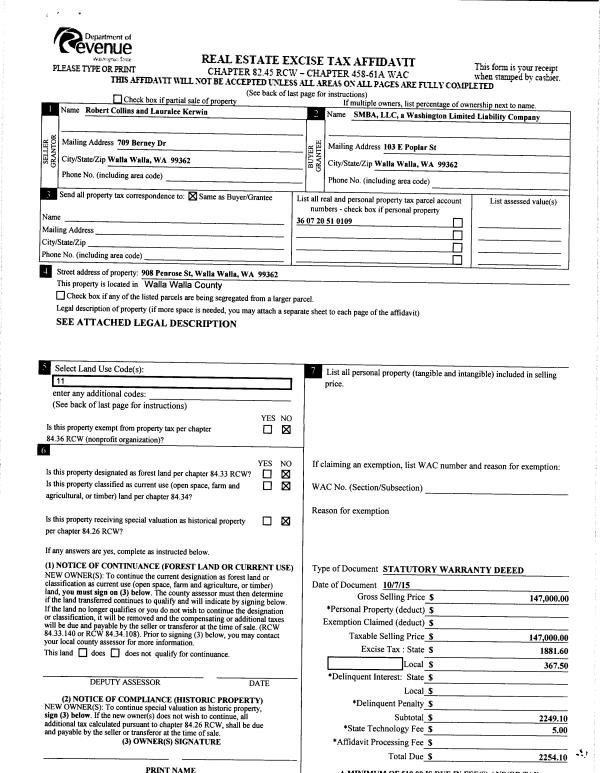
| Property ID: | 16994 | Abbreviated Legal Description: | GREENS PARK LOT 9 BLK 1 TAX 6 & 7 |
| Parcel Number: | 360720510109 | Agent Code: | |
| Type: | Real | | |
| Tax Area: | 1 - OL-140-F | Land Use Code | 11 |
| Open Space: | N | DFL | N |
| Historic Property: | N | Remodel Property: | N |
| Multi-Family Redevelopment: | N | | |
| Township: | 7 | Section: | 20 |
| Range: | 36 |
Location |
| Address: | 908 PENROSE ST WA 99362 | Mapsco: | |
| Neighborhood: | G-SFR | Map ID: | |
| Neighborhood CD: | 514011 |
Owner |
| Name: | PRINS LIA JANECE | Owner ID: | 71562 |
| Mailing Address: | 908 PENROSE ST WALLA WALLA, WA 99362 | % Ownership: | 100.0000000000% |
| | | Exemptions: | |
Taxes and Assessment Details
Property Tax Information as of
02/21/2026
Click on "Statement Details" to expand or collapse a tax statement.
* Please enter a valid date ** Please enter a valid date *
Statement Details |
| | TOTAL: | $0.00 | $0.00 | $0.00 | $0.00 | $0.00 | $0.00 |
|
| | $0.00 | $0.00 | $0.00 | $0.00 | $0.00 | $0.00 |
Values
| (+) Improvement Homesite Value: | + | $0 | |
| (+) Improvement Non-Homesite Value: | + | $330,430 | |
| (+) Land Homesite Value: | + | $0 | |
| (+) Land Non-Homesite Value: | + | $30,660 | |
| (+) Curr Use (HS): | + | $0 | $0 |
| (+) Curr Use (NHS): | + | $0 | $0 |
| | | -------------------------- | |
| (=) Market Value: | = | $361,090 | |
| (–) Productivity Loss: | – | $0 | |
| | | -------------------------- | |
| (=) Subtotal: | = | $361,090 | |
| (+) Senior Appraised Value: | + | $0 | |
| (+) Non-Senior Appraised Value: | + | $361,090 | |
| | | -------------------------- | |
| (=) Total Appraised Value: | = | $361,090 | |
| (–) Senior Exemption Loss: | – | $0 | |
| (–) Exemption Loss: | – | $0 | |
| | | -------------------------- | |
| (=) Taxable Value: | = | $361,090 | |
Taxing Jurisdiction
| Owner: | PRINS LIA JANECE | | |
| % Ownership: | 100.0000000000% | | |
| Total Value: | $361,090 | | |
| Tax Area: | 1 - OL-140-F |
| CERFD | CURRENT EXPENSE REFUND 010 | 0.0000000000 | $361,090 | $361,090 | $0.00 | | |
| CURREXP | CURRENT EXPENSE 010 | 1.0175366760 | $361,090 | $361,090 | $367.42 | | |
| HUMNSERV | HUMAN SERVICES 119 | 0.0250000000 | $361,090 | $361,090 | $9.03 | | |
| SLDREL | SOLDIERS RELIEF 121 | 0.0155990005 | $361,090 | $361,090 | $5.63 | | |
| EMERGSER | EMS 147 | 0.3792580840 | $361,090 | $361,090 | $136.95 | | |
| EMSRFD | EMS REFUND 147 | 0.0000000000 | $361,090 | $361,090 | $0.00 | | |
| PORTRFD | PORT REFUND 640 | 0.0000000000 | $361,090 | $361,090 | $0.00 | | |
| PORTWWGEN | PORT OF WW 640 | 0.2460186015 | $361,090 | $361,090 | $88.83 | | |
| SD140BOND | SD #140 BOND 764 | 0.8342371393 | $361,090 | $361,090 | $301.23 | | |
| SD140GEN | SD #140 GENERAL 760 | 2.0646500647 | $361,090 | $361,090 | $745.52 | | |
| ST2 | STATE SCHOOL PART 2 600 | 0.8131451643 | $361,090 | $361,090 | $293.62 | | |
| STATESCHL | STATE SCHOOL 600 | 1.5158548041 | $361,090 | $361,090 | $547.36 | | |
| STREFUND | STATE REFUND LEVY 603 | 0.0000000000 | $361,090 | $361,090 | $0.00 | | |
| CWWBOND | C OF WW BOND 643 | 0.2760494372 | $361,090 | $361,090 | $99.68 | | |
| CWWGEN | CITY OF WW 631 | 1.6100204973 | $361,090 | $361,090 | $581.36 | | |
| CWWRFD | CITY OF WALLA WALLA REFUND 631 | 0.0000000000 | $361,090 | $361,090 | $0.00 | | |
| | Total Tax Rate: | 8.7973694689 | | | | | |
| | | | | Taxes w/Current Exemptions: | $3,176.63 | | |
| | | | | Taxes w/o Exemptions: | $3,176.63 | | |
Improvement / Building
| Improvement #1: | RESIDENTIAL | State Code: | 11 | 756.0 sqft | Value: | $330,430 |
| Exterior Wall: | STUCCO | Heating/Cooling: | FLOOR FURNACE | | Number of Bathrooms: | 1 | Number of Bedrooms: | 1 | | Plumbing: | 7 | Roof Covering: | SLATE |
|
| | Type | Description | Class CD | Sub Class CD | Year Built | Area |
| | MA | Main Area | 1 | 30 | 1930 | 756.0 |
| | SI1 | SITE IMPROVEMENT | 1 | 30 | 1930 | 1.0 |
| | BASE | BASEMENT | 1 | 30 | 1930 | 756.0 |
| | DTG | Detached Garage | 1 | 30 | 1930 | 260.0 |
| | RPS | PORCH W/STEPS,ROOF | 1 | 30 | 1930 | 25.0 |
| | S1F | Single One Story Fireplace | 1 | 30 | 1930 | 1.0 |
Sketch
Property Image
Land
| 1 | RES 1 | Converted: Residential | 0.0971 | 4229.00 | 0.00 | 0.00 | 1.00 | $30,660 | $0 |
Roll Value History
| 2026 | N/A | N/A | N/A | N/A | N/A |
| 2025 | $328,080 | $46,520 | $0 | $374,600 | $374,600 |
| 2024 | $328,080 | $46,520 | $0 | $374,600 | $374,600 |
| 2023 | $330,430 | $30,660 | $0 | $361,090 | $361,090 |
| 2022 | $300,390 | $30,660 | $0 | $331,050 | $331,050 |
| 2021 | $182,050 | $30,660 | $0 | $212,710 | $212,710 |
| 2020 | $121,370 | $30,660 | $0 | $152,030 | $152,030 |
| 2019 | $121,370 | $30,660 | $0 | $152,030 | $152,030 |
| 2018 | $101,140 | $30,660 | $0 | $131,800 | $131,800 |
| 2017 | $124,510 | $19,000 | $0 | $143,510 | $143,510 |
| 2016 | $124,510 | $19,000 | $0 | $143,510 | $143,510 |
| 2015 | $113,190 | $19,000 | $0 | $132,190 | $132,190 |
| 2014 | $102,900 | $19,000 | $0 | $121,900 | $121,900 |
| 2013 | $102,900 | $19,000 | $0 | $121,900 | $121,900 |
| 2012 | $102,900 | $19,000 | $0 | $0 | $0 |
| 2011 | $102,900 | $19,000 | $0 | $0 | $0 |
| 2010 | $97,100 | $19,000 | $0 | $0 | $0 |
| 2009 | $110,000 | $19,000 | $0 | $0 | $0 |
| 2008 | $64,200 | $19,000 | $0 | $0 | $0 |
| 2007 | $64,200 | $19,000 | $0 | $0 | $0 |
Deed and Sales History
| 1 | 05/09/2022 | FUL | FULFILLMENT DEED | SMBA LLC | ROSE CANDACE | | | | 0 | 2022-03944 |
| 2 | 05/04/2022 | SWD | STATUTORY WARRANTY DEED | ROSE CANDACE | PRINS LIA JANECE | | | $432,000.00 | 143884 | 2022-03808 |
| 3 | 12/21/2021 | REAL ESTAT | REAL ESTATE CONTRACT | SMBA LLC | LITTLE SU WA WA LLC | | | $0.00 | 143096 | 2021-14923 |
| 4 | 02/07/2017 | REAL ESTAT | REAL ESTATE CONTRACT | SMBA LLC | ROSE CANDACE | | | $135,000.00 | 131873 | 2017-01020 |
| 5 | 10/09/2015 | SWD | STATUTORY WARRANTY DEED | COLLINS ROBERT | SMBA LLC | | | $147,000.00 | 128976 | 2015-08919 |
| 6 | 08/05/2009 | WARRANTY D | WARRANTY DEED | DOWLING, JILL ANNE | COLLINS, ROBERT | | | $125,000.00 | 117127 | 2009-07969 |
| 7 | 01/26/2007 | WARRANTY D | WARRANTY DEED | EMIGH, ROBERT & PAMELA | DOWLING, JILL ANNE | | | $137,500.00 | 112142 | 2007-01047 |
| 8 | 12/17/2001 | WARRANTY D | WARRANTY DEED | | | | | $57,500.00 | 98570 | 3250-113769 |
Payout Agreement
| No payout information available.. |