Property
Account |
| Property ID: | 16987 | Abbreviated Legal Description: | RIDGEVIEW ACRES LOT 4 |
| Parcel Number: | 350602510004 | Agent Code: | |
| Type: | Real | | |
| Tax Area: | 311 - 250-4 | Land Use Code | 11 |
| Open Space: | N | DFL | N |
| Historic Property: | N | Remodel Property: | N |
| Multi-Family Redevelopment: | N | | |
| Township: | 6 | Section: | 2 |
| Range: | 35 |
Location |
| Address: | 1060 MOJONNIER RD WA 99324 | Mapsco: | |
| Neighborhood: | G SFR Rural/City Inf | Map ID: | |
| Neighborhood CD: | 114012 |
Owner |
| Name: | HINER TAD L & GRACE E | Owner ID: | 60998 |
| Mailing Address: | 1060 MOJONNIER RD WALLA WALLA, WA 99362 | % Ownership: | 100.0000000000% |
| | | Exemptions: | |
Taxes and Assessment Details
Property Tax Information as of
02/21/2026
Click on "Statement Details" to expand or collapse a tax statement.
* Please enter a valid date ** Please enter a valid date *
Statement Details |
| | TOTAL: | $0.00 | $0.00 | $0.00 | $0.00 | $0.00 | $0.00 |
|
| | $0.00 | $0.00 | $0.00 | $0.00 | $0.00 | $0.00 |
Values
| (+) Improvement Homesite Value: | + | $447,460 | |
| (+) Improvement Non-Homesite Value: | + | $42,770 | |
| (+) Land Homesite Value: | + | $119,500 | |
| (+) Land Non-Homesite Value: | + | $0 | |
| (+) Curr Use (HS): | + | $0 | $0 |
| (+) Curr Use (NHS): | + | $0 | $0 |
| | | -------------------------- | |
| (=) Market Value: | = | $609,730 | |
| (–) Productivity Loss: | – | $0 | |
| | | -------------------------- | |
| (=) Subtotal: | = | $609,730 | |
| (+) Senior Appraised Value: | + | $0 | |
| (+) Non-Senior Appraised Value: | + | $609,730 | |
| | | -------------------------- | |
| (=) Total Appraised Value: | = | $609,730 | |
| (–) Senior Exemption Loss: | – | $0 | |
| (–) Exemption Loss: | – | $0 | |
| | | -------------------------- | |
| (=) Taxable Value: | = | $609,730 | |
Taxing Jurisdiction
| Owner: | HINER TAD L & GRACE E | | |
| % Ownership: | 100.0000000000% | | |
| Total Value: | $609,730 | | |
| Tax Area: | 311 - 250-4 |
| CERFD | CURRENT EXPENSE REFUND 010 | 0.0000000000 | $609,730 | $609,730 | $0.00 | | |
| CURREXP | CURRENT EXPENSE 010 | 1.0175366760 | $609,730 | $609,730 | $620.42 | | |
| HUMNSERV | HUMAN SERVICES 119 | 0.0250000000 | $609,730 | $609,730 | $15.24 | | |
| SLDREL | SOLDIERS RELIEF 121 | 0.0155990005 | $609,730 | $609,730 | $9.51 | | |
| EMERGSER | EMS 147 | 0.3792580840 | $609,730 | $609,730 | $231.25 | | |
| EMSRFD | EMS REFUND 147 | 0.0000000000 | $609,730 | $609,730 | $0.00 | | |
| FD4EXP | FD #4 EXPENSE 686 | 0.8836993059 | $609,730 | $609,730 | $538.82 | | |
| RLBRFD | RURAL LIBRARY REFUND 623 | 0.0000000000 | $609,730 | $609,730 | $0.00 | | |
| RURALLIB | RURAL LIBRARY 623 | 0.3710609029 | $609,730 | $609,730 | $226.25 | | |
| PORTRFD | PORT REFUND 640 | 0.0000000000 | $609,730 | $609,730 | $0.00 | | |
| PORTWWGEN | PORT OF WW 640 | 0.2460186015 | $609,730 | $609,730 | $150.00 | | |
| SD250BOND | SD #250 BOND 773 | 1.4560608159 | $609,730 | $609,730 | $887.80 | | |
| SD250GEN | SD #250 GENERAL 770 | 2.3880724087 | $609,730 | $609,730 | $1,456.08 | | |
| ST2 | STATE SCHOOL PART 2 600 | 0.8131451643 | $609,730 | $609,730 | $495.80 | | |
| STATESCHL | STATE SCHOOL 600 | 1.5158548041 | $609,730 | $609,730 | $924.26 | | |
| STREFUND | STATE REFUND LEVY 603 | 0.0000000000 | $609,730 | $609,730 | $0.00 | | |
| COROAD | COUNTY ROAD 115 | 1.6549953990 | $609,730 | $609,730 | $1,009.10 | | |
| CRPRD | COUNTY ROAD REFUND 115 | 0.0000000000 | $609,730 | $609,730 | $0.00 | | |
| | Total Tax Rate: | 10.7663011628 | | | | | |
| | | | | Taxes w/Current Exemptions: | $6,564.53 | | |
| | | | | Taxes w/o Exemptions: | $6,564.53 | | |
Improvement / Building
| Improvement #1: | RESIDENTIAL | State Code: | 11 | 2494.0 sqft | Value: | $447,460 |
| Exterior Wall: | SIDING | Heating/Cooling: | WARM & COOLED AIR | | Number of Bathrooms: | 2.5 | Number of Bedrooms: | 3 | | Plumbing: | 13 | Roof Covering: | COMP SHINGLE |
|
| | Type | Description | Class CD | Sub Class CD | Year Built | Area |
| | MA | Main Area | 1 | 35 | 1971 | 2494.0 |
| | SI1 | SITE IMPROVEMENT | 1 | 35 | 1971 | 4.0 |
| | BASE | BASEMENT | 1 | 35 | 1971 | 384.0 |
| | RPO | OPEN PORCH W/ROOF | 1 | 30 | 1971 | 49.0 |
| | ATG | Attached Garage | 1 | 35 | 1971 | 644.0 |
| | BPF | BASEMENT -PARTITIONED FINISH | 1 | 35 | 1971 | 384.0 |
| Improvement #2: | RESIDENTIAL | State Code: | 11 | 0.0 sqft | Value: | $42,770 |
| | Type | Description | Class CD | Sub Class CD | Year Built | Area |
| | DTG | Detached Garage | 1 | 30 | 1971 | 768.0 |
| | LNTD | LEAN TO DIRT FLOOR | 1 | 30 | 1971 | 384.0 |
Sketch
Property Image
Land
| 1 | RES 1 | Converted: Residential | 1.9000 | 0.00 | 0.00 | 0.00 | 1.00 | $119,500 | $0 |
Roll Value History
| 2026 | N/A | N/A | N/A | N/A | N/A |
| 2025 | $459,200 | $189,730 | $0 | $648,930 | $648,930 |
| 2024 | $510,230 | $119,500 | $0 | $629,730 | $629,730 |
| 2023 | $490,230 | $119,500 | $0 | $609,730 | $609,730 |
| 2022 | $490,230 | $119,500 | $0 | $609,730 | $609,730 |
| 2021 | $377,100 | $119,500 | $0 | $496,600 | $496,600 |
| 2020 | $271,170 | $119,500 | $0 | $390,670 | $390,670 |
| 2019 | $271,170 | $103,600 | $0 | $374,770 | $374,770 |
| 2018 | $235,800 | $103,600 | $0 | $339,400 | $339,400 |
| 2017 | $131,000 | $103,600 | $0 | $234,600 | $234,600 |
| 2016 | $117,750 | $103,600 | $0 | $221,350 | $88,540 |
| 2015 | $117,750 | $103,600 | $0 | $221,350 | $88,540 |
| 2014 | $117,750 | $103,600 | $0 | $221,350 | $88,540 |
| 2013 | $131,000 | $103,600 | $0 | $234,600 | $234,600 |
| 2012 | $131,000 | $103,600 | $0 | $0 | $0 |
| 2011 | $101,000 | $133,600 | $0 | $0 | $0 |
| 2010 | $172,200 | $133,600 | $0 | $0 | $0 |
| 2009 | $206,200 | $133,600 | $0 | $0 | $0 |
| 2008 | $190,400 | $48,600 | $0 | $0 | $0 |
| 2007 | $190,400 | $48,600 | $0 | $0 | $0 |
Deed and Sales History
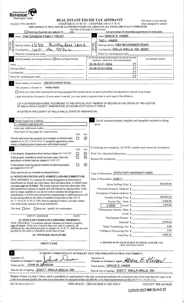
| 1 | 05/31/2017 | SWD | STATUTORY WARRANTY DEED | DAWSON FAMILY TRUST | HINER TAD L & GRACE E | | 2-PARCELS | $430,000.00 | 132509 | 2017-04149 |
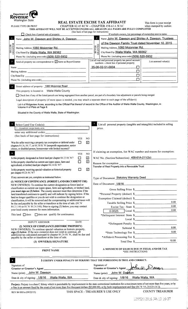
| 2 | 01/08/2016 | SWD | STATUTORY WARRANTY DEED | DAWSON JOHN W & SHIRLEY A | DAWSON FAMILY TRUST | | | $0.00 | 129520 | 2016-00295 |
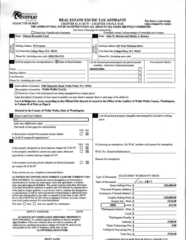
| 3 | 04/26/2010 | WARRANTY D | WARRANTY DEED | THIESEN, ROGER W TRUSTEE OF TH | DAWSON, JOHN W & SHIRLEY A | | | $245,000.00 | 118389 | 2010-03245 |
| 4 | 02/06/2007 | WARRANTY D | WARRANTY DEED | THIESEN, ROGER WILLIAM | THIESEN, ROGER W TRUSTEE OF TH | | | | 112201 | 2007-01513 |
| 5 | 08/09/1991 | WARRANTY D | WARRANTY DEED | | | | | $135,000.00 | 0 | 1909-105391 |
Payout Agreement
| No payout information available.. |