Property
Account |
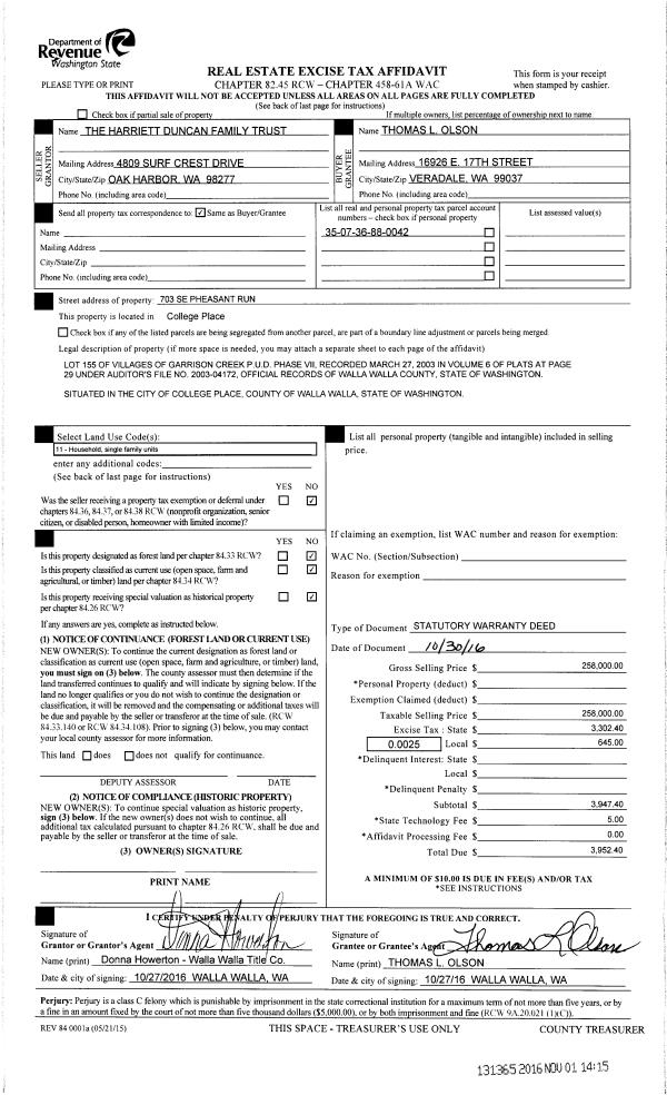
| Property ID: | 16983 | Abbreviated Legal Description: | VILLAGES OF GARRISON CREEK P.U.D. PHASE VII LOT 155 |
| Parcel Number: | 350736880042 | Agent Code: | |
| Type: | Real | | |
| Tax Area: | 77 - CP-250-F | Land Use Code | 11 |
| Open Space: | N | DFL | N |
| Historic Property: | N | Remodel Property: | N |
| Multi-Family Redevelopment: | N | | |
| Township: | 7 | Section: | 36 |
| Range: | 35 |
Location |
| Address: | 703 SE PHEASANT RUN WA 99324 | Mapsco: | |
| Neighborhood: | G SFR | Map ID: | |
| Neighborhood CD: | 114011 |
Owner |
| Name: | OLSON THOMAS & SANDRA LEFORE LIVING TRUST | Owner ID: | 66371 |
| Mailing Address: | 1101 E GRAVELSTONE CT HAYDEN, ID 83835 | % Ownership: | 100.0000000000% |
| | | Exemptions: | |
Taxes and Assessment Details
Property Tax Information as of
02/21/2026
Click on "Statement Details" to expand or collapse a tax statement.
* Please enter a valid date ** Please enter a valid date *
Statement Details |
| | TOTAL: | $0.00 | $0.00 | $0.00 | $0.00 | $0.00 | $0.00 |
|
| | $0.00 | $0.00 | $0.00 | $0.00 | $0.00 | $0.00 |
Values
| (+) Improvement Homesite Value: | + | $0 | |
| (+) Improvement Non-Homesite Value: | + | $380,300 | |
| (+) Land Homesite Value: | + | $0 | |
| (+) Land Non-Homesite Value: | + | $75,000 | |
| (+) Curr Use (HS): | + | $0 | $0 |
| (+) Curr Use (NHS): | + | $0 | $0 |
| | | -------------------------- | |
| (=) Market Value: | = | $455,300 | |
| (–) Productivity Loss: | – | $0 | |
| | | -------------------------- | |
| (=) Subtotal: | = | $455,300 | |
| (+) Senior Appraised Value: | + | $0 | |
| (+) Non-Senior Appraised Value: | + | $455,300 | |
| | | -------------------------- | |
| (=) Total Appraised Value: | = | $455,300 | |
| (–) Senior Exemption Loss: | – | $0 | |
| (–) Exemption Loss: | – | $0 | |
| | | -------------------------- | |
| (=) Taxable Value: | = | $455,300 | |
Taxing Jurisdiction
| Owner: | OLSON THOMAS & SANDRA LEFORE LIVING TRUST | | |
| % Ownership: | 100.0000000000% | | |
| Total Value: | $455,300 | | |
| Tax Area: | 77 - CP-250-F |
| CERFD | CURRENT EXPENSE REFUND 010 | 0.0000000000 | $455,300 | $455,300 | $0.00 | | |
| CURREXP | CURRENT EXPENSE 010 | 1.0175366760 | $455,300 | $455,300 | $463.28 | | |
| HUMNSERV | HUMAN SERVICES 119 | 0.0250000000 | $455,300 | $455,300 | $11.38 | | |
| SLDREL | SOLDIERS RELIEF 121 | 0.0155990005 | $455,300 | $455,300 | $7.10 | | |
| COLLPLBOND | C OF CP BOND 644 | 0.4374241808 | $455,300 | $455,300 | $199.16 | | |
| COLLPLGEN | CITY OF CP 632 | 1.4453819216 | $455,300 | $455,300 | $658.08 | | |
| EMERGSER | EMS 147 | 0.3792580840 | $455,300 | $455,300 | $172.68 | | |
| EMSRFD | EMS REFUND 147 | 0.0000000000 | $455,300 | $455,300 | $0.00 | | |
| RURALLIB | RURAL LIBRARY 623 | 0.3710609029 | $455,300 | $455,300 | $168.94 | | |
| PORTRFD | PORT REFUND 640 | 0.0000000000 | $455,300 | $455,300 | $0.00 | | |
| PORTWWGEN | PORT OF WW 640 | 0.2460186015 | $455,300 | $455,300 | $112.01 | | |
| SD250BOND | SD #250 BOND 773 | 1.4560608159 | $455,300 | $455,300 | $662.94 | | |
| SD250GEN | SD #250 GENERAL 770 | 2.3880724087 | $455,300 | $455,300 | $1,087.29 | | |
| ST2 | STATE SCHOOL PART 2 600 | 0.8131451643 | $455,300 | $455,300 | $370.22 | | |
| STATESCHL | STATE SCHOOL 600 | 1.5158548041 | $455,300 | $455,300 | $690.17 | | |
| STREFUND | STATE REFUND LEVY 603 | 0.0000000000 | $455,300 | $455,300 | $0.00 | | |
| | Total Tax Rate: | 10.1104125603 | | | | | |
| | | | | Taxes w/Current Exemptions: | $4,603.25 | | |
| | | | | Taxes w/o Exemptions: | $4,603.25 | | |
Improvement / Building
| Improvement #1: | RESIDENTIAL | State Code: | 11 | 1660.0 sqft | Value: | $380,300 |
| Exterior Wall: | PLYWOOD | Heating/Cooling: | WARM & COOLED AIR | | Number of Bathrooms: | 2 | Number of Bedrooms: | 2 | | Plumbing: | 11 | Roof Covering: | COMP SHINGLE |
|
| | Type | Description | Class CD | Sub Class CD | Year Built | Area |
| | MA | Main Area | 1 | 45 | 2003 | 1660.0 |
| | SI1 | SITE IMPROVEMENT | 1 | 45 | 2003 | 3.0 |
| | ATG | Attached Garage | 1 | 45 | 2003 | 484.0 |
| | GFP | GAS FIREPLACE | 1 | 45 | 2003 | 1.0 |
| | RPO | OPEN PORCH W/ROOF | 1 | 45 | 2003 | 128.0 |
| | RPO | OPEN PORCH W/ROOF | 1 | 45 | 2003 | 128.0 |
Sketch
Property Image
Land
| 1 | RES 1 | Converted: Residential | 0.1405 | 6120.00 | 0.00 | 0.00 | 1.00 | $75,000 | $0 |
Roll Value History
| 2026 | N/A | N/A | N/A | N/A | N/A |
| 2025 | $339,420 | $135,000 | $0 | $474,420 | $474,420 |
| 2024 | $399,320 | $75,000 | $0 | $474,320 | $474,320 |
| 2023 | $380,300 | $75,000 | $0 | $455,300 | $455,300 |
| 2022 | $330,700 | $75,000 | $0 | $405,700 | $405,700 |
| 2021 | $287,560 | $75,000 | $0 | $362,560 | $362,560 |
| 2020 | $213,010 | $75,000 | $0 | $288,010 | $288,010 |
| 2019 | $223,010 | $65,000 | $0 | $288,010 | $288,010 |
| 2018 | $193,920 | $65,000 | $0 | $258,920 | $258,920 |
| 2017 | $193,920 | $65,000 | $0 | $258,920 | $258,920 |
| 2016 | $184,690 | $65,000 | $0 | $249,690 | $249,690 |
| 2015 | $175,890 | $65,000 | $0 | $240,890 | $240,890 |
| 2014 | $159,900 | $65,000 | $0 | $224,900 | $224,900 |
| 2013 | $159,900 | $65,000 | $0 | $224,900 | $224,900 |
| 2012 | $184,900 | $65,000 | $0 | $0 | $0 |
| 2011 | $184,900 | $65,000 | $0 | $0 | $0 |
| 2010 | $184,900 | $65,000 | $0 | $0 | $0 |
| 2009 | $198,100 | $65,000 | $0 | $0 | $0 |
| 2008 | $150,000 | $35,000 | $0 | $0 | $0 |
| 2007 | $150,000 | $35,000 | $0 | $0 | $0 |
Deed and Sales History
| 1 | 12/13/2019 | QCD | QUIT CLAIM DEED | OLSON THOMAS L | OLSON THOMAS & SANDRA LEFORE LIVING TRUST | | | $0.00 | 138260 | 2019-10428 |
| 2 | 11/01/2016 | SWD | STATUTORY WARRANTY DEED | DUNCAN HARRIETT L TRUSTEE OF THE | OLSON THOMAS L | | | $258,000.00 | 131365 | 2016-09078 |
| 3 | 01/30/2007 | WARRANTY D | WARRANTY DEED | DUNCAN, HARRIET L | DUNCAN, HARRIETT L TRUSTEE OF | | | | 112148 | 2007-01151 |
| 4 | 12/06/2005 | WARRANTY D | WARRANTY DEED | LOCKWOOD, ZANE F & DEBRA J | DUNCAN, HARRIET L | | | $322,000.00 | 109191 | 2005-15288 |
| 5 | 08/02/2004 | WARRANTY D | WARRANTY DEED | PHASE FIVE DEVELOPMENT LLC | LOCKWOOD, ZANE F & DEBRA J | | | $293,000.00 | 105408 | 2004-08822 |
Payout Agreement
| No payout information available.. |