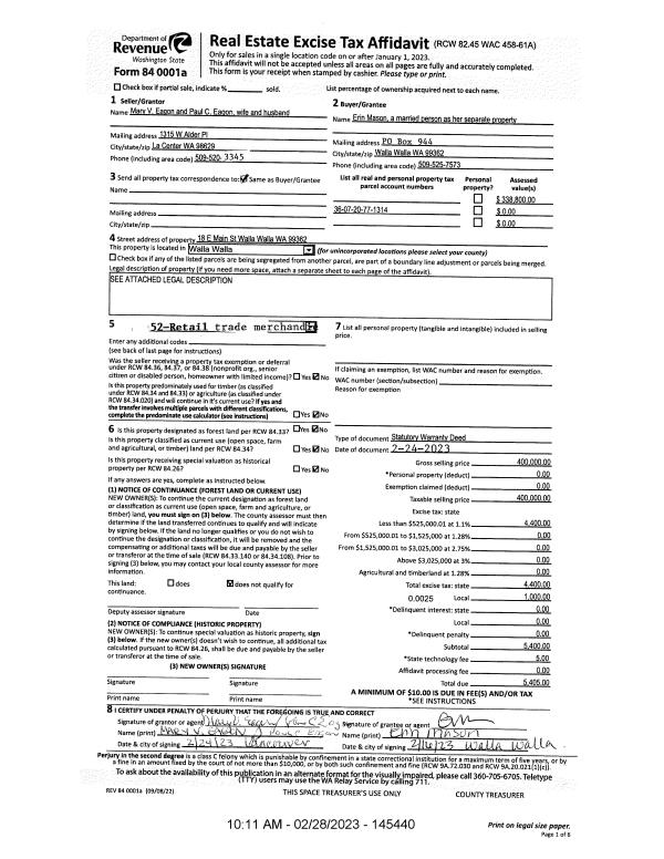
Property
Account |
| Property ID: | 16940 | Abbreviated Legal Description: | WALLA WALLA TAX 5 LOT 2 BLK 13 |
| Parcel Number: | 360720771314 | Agent Code: | |
| Type: | Real | | |
| Tax Area: | 1 - OL-140-F | Land Use Code | 52 |
| Open Space: | N | DFL | N |
| Historic Property: | N | Remodel Property: | N |
| Multi-Family Redevelopment: | N | | |
| Township: | 7 | Section: | 20 |
| Range: | 36 |
Location |
| Address: | 18 E MAIN ST WA 99362 | Mapsco: | |
| Neighborhood: | WW Downtown Core Area #1 | Map ID: | |
| Neighborhood CD: | 5341 |
Owner |
| Name: | MASON ERIN | Owner ID: | 73165 |
| Mailing Address: | 63 STARVIEW PL WALLA WALLA, WA 99362 | % Ownership: | 100.0000000000% |
| | | Exemptions: | |
Taxes and Assessment Details
Property Tax Information as of
02/21/2026
Click on "Statement Details" to expand or collapse a tax statement.
* Please enter a valid date ** Please enter a valid date *
Statement Details |
| | TOTAL: | $0.00 | $0.00 | $0.00 | $0.00 | $0.00 | $0.00 |
|
| | $0.00 | $0.00 | $0.00 | $0.00 | $0.00 | $0.00 |
Values
| (+) Improvement Homesite Value: | + | $0 | |
| (+) Improvement Non-Homesite Value: | + | $293,200 | |
| (+) Land Homesite Value: | + | $0 | |
| (+) Land Non-Homesite Value: | + | $45,600 | |
| (+) Curr Use (HS): | + | $0 | $0 |
| (+) Curr Use (NHS): | + | $0 | $0 |
| | | -------------------------- | |
| (=) Market Value: | = | $338,800 | |
| (–) Productivity Loss: | – | $0 | |
| | | -------------------------- | |
| (=) Subtotal: | = | $338,800 | |
| (+) Senior Appraised Value: | + | $0 | |
| (+) Non-Senior Appraised Value: | + | $338,800 | |
| | | -------------------------- | |
| (=) Total Appraised Value: | = | $338,800 | |
| (–) Senior Exemption Loss: | – | $0 | |
| (–) Exemption Loss: | – | $0 | |
| | | -------------------------- | |
| (=) Taxable Value: | = | $338,800 | |
Taxing Jurisdiction
| Owner: | MASON ERIN | | |
| % Ownership: | 100.0000000000% | | |
| Total Value: | $338,800 | | |
| Tax Area: | 1 - OL-140-F |
| CERFD | CURRENT EXPENSE REFUND 010 | 0.0000000000 | $338,800 | $338,800 | $0.00 | | |
| CURREXP | CURRENT EXPENSE 010 | 1.0175366760 | $338,800 | $338,800 | $344.74 | | |
| HUMNSERV | HUMAN SERVICES 119 | 0.0250000000 | $338,800 | $338,800 | $8.47 | | |
| SLDREL | SOLDIERS RELIEF 121 | 0.0155990005 | $338,800 | $338,800 | $5.28 | | |
| EMERGSER | EMS 147 | 0.3792580840 | $338,800 | $338,800 | $128.49 | | |
| EMSRFD | EMS REFUND 147 | 0.0000000000 | $338,800 | $338,800 | $0.00 | | |
| PORTRFD | PORT REFUND 640 | 0.0000000000 | $338,800 | $338,800 | $0.00 | | |
| PORTWWGEN | PORT OF WW 640 | 0.2460186015 | $338,800 | $338,800 | $83.35 | | |
| SD140BOND | SD #140 BOND 764 | 0.8342371393 | $338,800 | $338,800 | $282.64 | | |
| SD140GEN | SD #140 GENERAL 760 | 2.0646500647 | $338,800 | $338,800 | $699.50 | | |
| ST2 | STATE SCHOOL PART 2 600 | 0.8131451643 | $338,800 | $338,800 | $275.49 | | |
| STATESCHL | STATE SCHOOL 600 | 1.5158548041 | $338,800 | $338,800 | $513.57 | | |
| STREFUND | STATE REFUND LEVY 603 | 0.0000000000 | $338,800 | $338,800 | $0.00 | | |
| CWWBOND | C OF WW BOND 643 | 0.2760494372 | $338,800 | $338,800 | $93.53 | | |
| CWWGEN | CITY OF WW 631 | 1.6100204973 | $338,800 | $338,800 | $545.47 | | |
| CWWRFD | CITY OF WALLA WALLA REFUND 631 | 0.0000000000 | $338,800 | $338,800 | $0.00 | | |
| | Total Tax Rate: | 8.7973694689 | | | | | |
| | | | | Taxes w/Current Exemptions: | $2,980.53 | | |
| | | | | Taxes w/o Exemptions: | $2,980.53 | | |
Improvement / Building
| Improvement #1: | COMMERCIAL | State Code: | 52 | 3764.0 sqft | Value: | $293,200 |
| | Type | Description | Class CD | Sub Class CD | Year Built | Area |
| | MA | Main Area | D | * | 1916 | 3764.0 |
| | UPFL | Upper Floor (included in main area) | D | * | 1916 | 1520.0 |
| | BASE | BASEMENT | D | * | 1916 | 1520.0 |
Sketch
Property Image
Land
| 1 | COM 1 | Converted: Commercial | 0.0523 | 2280.00 | 0.00 | 0.00 | 1.00 | $45,600 | $0 |
Roll Value History
| 2026 | N/A | N/A | N/A | N/A | N/A |
| 2025 | $375,300 | $45,600 | $0 | $420,900 | $420,900 |
| 2024 | $362,700 | $45,600 | $0 | $408,300 | $408,300 |
| 2023 | $293,200 | $45,600 | $0 | $338,800 | $338,800 |
| 2022 | $293,200 | $45,600 | $0 | $338,800 | $338,800 |
| 2021 | $293,200 | $45,600 | $0 | $338,800 | $338,800 |
| 2020 | $293,200 | $45,600 | $0 | $338,800 | $338,800 |
| 2019 | $293,200 | $45,600 | $0 | $338,800 | $338,800 |
| 2018 | $293,200 | $45,600 | $0 | $338,800 | $338,800 |
| 2017 | $293,200 | $45,600 | $0 | $338,800 | $338,800 |
| 2016 | $293,200 | $45,600 | $0 | $338,800 | $338,800 |
| 2015 | $180,500 | $27,400 | $0 | $207,900 | $207,900 |
| 2014 | $180,500 | $27,400 | $0 | $207,900 | $207,900 |
| 2013 | $180,500 | $27,400 | $0 | $207,900 | $207,900 |
| 2012 | $126,100 | $31,900 | $0 | $0 | $0 |
| 2011 | $126,100 | $31,900 | $0 | $0 | $0 |
| 2010 | $126,100 | $31,900 | $0 | $0 | $0 |
| 2009 | $132,900 | $25,100 | $0 | $0 | $0 |
| 2008 | $132,900 | $25,100 | $0 | $0 | $0 |
| 2007 | $132,900 | $25,100 | $0 | $0 | $0 |
Deed and Sales History
| 1 | 02/28/2023 | SWD | STATUTORY WARRANTY DEED | EAGON PAUL C & MARY V | MASON ERIN | | | $400,000.00 | 145440 | 2023-00989 |
| 2 | 12/12/2008 | WARRANTY D | WARRANTY DEED | MARTIN, EDITH C | EAGON, PAUL C & MARY V | | | | 111869 | 2008-12283 |
| 3 | 12/12/2006 | WARRANTY D | WARRANTY DEED | MARTIN, EDITH C | EAGON, PAUL C & MARY V | | | $158,000.00 | 111869 | 2006-14792 |
| 4 | 12/05/2006 | QCD | QUIT CLAIM DEED | MARTIN, PORT C | MARTIN, EDITH C | | | | 111815 | 2006-14496 |
| 5 | 07/21/1981 | WARRANTY D | WARRANTY DEED | | | | | $50,000.00 | 0 | 1298-105414 |
Payout Agreement
| No payout information available.. |